Планировка хрущевки 4 квартиры на этаже. Особенности «хрущевок»
- Планировка хрущевки 4 квартиры на этаже. Особенности «хрущевок»
- Длина и ширина комнат в хрущевке. Планировка однокомнатной квартиры в хрущёвке
- Кирпичная хрущевка планировка. Серия 447 (1957)
- Размеры хрущевки 2 комнаты. Типовые проекты
- Планировка хрущевки 3 комнаты. Типовые виды планировки хрущевок с тремя комнатами
- Хрущевка планировка 2-х комнатная угловая. Отличительные черты планировки хрущевок в кирпичных домах
- Планировка хрущевок 2 комнаты. Нюансы перепланировки хрущёвки из двух комнат
- Планировка хрущевки 2 комнаты распашонка. Перепланировка 1-комнатной квартиры в хрущевке
Планировка хрущевки 4 квартиры на этаже. Особенности «хрущевок»
Строительство домов такого типа началось в 1958 году и продолжалось до 1985-го. На тот момент остро стоял вопрос об обеспечении жильем огромного количества людей по всей стране. Нужен был простой проект, способный в кратчайшие сроки решить эту проблему.
Дома с компактными квартирами возводились быстро и не требовали больших расходов. Впоследствии они были прозваны «хрущевками», так как строились во времена нахождения на посту главы государства Никиты Сергеевича Хрущева.
Квартиры в этих постройках отличались малым количеством квадратных метров, проходными комнатами, небольшой высотой потолков, совмещенными санузлами и безлифтовыми подъездами. Существовало несколько серий типовых планировок квартир в домах-хрущевках, выделяемых по:
- материалу стен;
- месту размещения кладовки;
- вариантам расположения комнат относительно гостиной;
- площади кухни и комнат.
Известно четыре серии типовых домов «хрущевского» типа:
- серия 1-464 (1960-1967 годы строительства);
- серия 1-335 (1963-1967 годы строительства);
- серия 1-434 (1958-1964 годы строительства);
- серия 1-434С (1958-1964 годы строительства).

Изначально дома такого типа считались временным жильем. Они возводились для быстрого решения жилищной проблемы и рассчитывались на эксплуатацию не более 25 лет. Позже срок был продлен до 50 лет и более.

На данный момент «хрущевки» столицы и Санкт-Петербурга идут под снос, но в других регионах они продолжают активно эксплуатироваться. Особо популярны здания из кирпича. Они имеют толстые стены, удобные холодильники под кухонным подоконником и вместительные кладовые.

Планировки квартир в кирпичных «хрущевках» легко подвергаются изменениям, превращая типовые квартиры в современное стильное жилье.

Длина и ширина комнат в хрущевке. Планировка однокомнатной квартиры в хрущёвке
В квартирах 60-х годов, конечно, было не всё удобно: маленькие кухни- 6-7 кв. м, смежные комнаты, совмещённый санузел. Ко всему этому ещё и довольно низкие потолки, высотой от 2.45 м до 2.55 м. Если вы всё-таки стали обладателем такого раритета, то особого повода для беспокойства нет, так как на сегодняшний день есть вполне доступные способы превратить минусы этой квартиры в плюсы.
При помощи практичных идей можно преобразить «бабушкино наследство» в удобный и уютный уголок. Рассмотрим самую простую однокомнатную квартиру.
Стандартная планировка однокомнатной квартиры в хрущёвке
В квартире-хрущёвке с одной комнатой не удастся обустроить отдельную спальню. К сожалению, комната будет многофункциональной: и гостиной, и кабинетом, и спальной комнатой, и даже детской. От кроватей и прикроватных тумбочек тоже лучше отказаться. Но как тогда сделать такую комнату уютной и хоть более-менее удобной?
Незаменимыми помощниками в таком жилище послужат трансформеры, которые были широко распространены всё в тех же 60-х.
Наиболее популярной считается диван-кровать, которая обладает самыми различными формами: «книжка», «раскладушка», диван-кровати, имеющие выдвижной механизм и с откидывающимися боковушками. Но, безусловное лидерство нужно отдать дивану гипертрансформеру. В нём отгибается почти всё, что есть – с лёгкостью можно убирать спинку, подлокотники, подушки и т.п.
Кроме таких многофункциональных диванов, не обойтись и без раздвижных столов, стеллажей и лёгких полочек разных видов. Удачным решением будут и раздвижные двери. Вот, пожалуй, и весь основной ассортимент мебели для квартир подобной планировки.
Сравнительно небольшая площадь вызывает нехватку пространства в квартирах с одной комнатой, а уж тем более в наших хрущёвках. Придётся приложить усилия для высвобождения каждого сантиметра жилого пространства. Можно прибегнуть к такому приёму, как увеличение площади комнаты или санузла и кухни за счёт расширения коридора.
Остеклив и утеплив балкон, вы можете создать очень удобное место. Еще лучше, если эта зона станет жилой по заранее разработанному и утверждённому проекту. Можно поместить там, например, кресло-кровать.
Кирпичная хрущевка планировка. Серия 447 (1957)
1-447 — самая распространённая на всей территории СССР серия кирпичных "хрущёвок". Благодаря толстым стенам из силикатного или красного кирпича превосходит по тепло- и звукоизоляции панельные "хрущёвки" и более поздние панельные дома. Внутренние стены в квартирах не капитальные, позволяют перепланировку. В остальном это обычные хрущёвки с тесными квартирами.
Не относятся к «сносимым» сериям и обладают повышенным сроком службы по сравнению с панельными хрущёвками. На основе серии было создано много поздних модификаций с индексом 1-447С, которые относят уже к брежневским домам.
Узнаваемы по наружным стенам из необлицованного кирпича, 2-м рядам окон в торцевых сторонах (обычно без балконов) и прямоугольному корпусу без угловых секций и выступов. Дома - длиной от 2 до 8 секций, наиболее часто - 4-хсекционные (из торцевых и рядовых секций). Стены из кирпича, чаще белого силикатного, реже - красного. Штукатурки нет. Некоторые дома покрашены или применено сочетание красного и белого кирпича для декора. Несущие стены — продольные наружные и внутренняя центральная, поперечные межквартирные и стены лестничных клеток. Перегородки гипсобетонные, толщина — 80 мм; перекрытия — многопустотные железобетонные плиты толщиной 220 мм. Крыша у большинства домов 4-хскатная, покрыта асбоцементным шифером или кровельным железом. Водостоки — наружные водосточные трубы. Существуют дома с плоской крышей с битумным покрытием. Высота потолков 2,48 м. 1-й этаж, как правило, жилой. Балконы на всех этажах, кроме первого. Существуют дома без балконов в угловых квартирах или вообще без балконов (чаще в 4- и 6-секционных домах (модификации 1-447С-3, 5, 9, 10, 12, 29, 30, 31, 32) отсутствуют балконы в 1-комнатных квартирах, как угловых (1-я и 4-я либо 6-я секции), так и на стыке секций - 2-й и 3-й и, если есть, 4-й и 5-й).
Размеры хрущевки 2 комнаты. Типовые проекты
Итак, у нас есть поэтажный план дома, и на нем мы нашли свою квартиру. Изучим возможности для модернизации. Наша двухкомнатная «хрущевка» имеет стандартный метраж от 30 («полуторка») до 43 кв. м. общей площади. Комнаты, как правило, смежные. Санузел и ванная объединены в одно помещение. Коридор не более 3 кв. м, туда выходит дверь кухни, большой комнаты и ванной. Балкон или лоджия в наличии, если это не первый этаж.
Смежные комнаты располагаются по типу «трамвай»: из зала ведет дверь в узкую и длинную комнату. Здесь удобно продлить коридор за счет большой комнаты, узкую комнату оставить без изменения, в конце коридора расположить шкаф – купе. Таким образом, мы получаем две небольшие изолированные комнаты для взрослых членов семьи и детей.
Для одиноких владельцев можно предложить вариант объединения кухни и зала.
Второй тип планировки: комнаты располагаются друг за другом, зал проходной, между кухней и залом коридор заменяет ниша. Тут уже наличествует объединение функциональных зон, и, однозначно, стена между кухней и смежной комнатой, в которой размещена ниша не является несущей. Здесь можно применить следующие методы переустройства: снести часть стены между кухней и залом, объединив эти две зоны, и оставить простенок, отделяющий входную дверь. Так пространство квартиры будет более уютным и камерным.
Более радикальный способ – сносится вся стена между кухней, залом, прихожей, остается нетронутым сантехнический блок. Современный минимализм в дизайне помещений опирается именно на такие полностью открытые пространства, И, наконец, противоположное решение для изоляции помещения. Ниша достраивается до полноценной стены, делается обычный дверной проем и получается изолированные коридор, кухня, зал. Такой вариант предпочтителен для семей с детьми, где нужно удовлетворить запросы нескольких домочадцев с различными режимами сна и бодрствования.
Третий тип – угловая квартира 2 х комнатной планировки , особенность угловых квартир в том, что в одной из комнат находится два окна. Это, с одной стороны, затрудняет расстановку мебели, а с другой, расширяет возможности для стильного дизайнерского оформления пространства. Если нет препятствий со стороны несущих конструкций, то из этой комнаты можно сделать две маленькие спальни или спальню и кабинет, спальню и детскую. А зал объединить в единое пространство с кухней и прихожей, где сможет собираться вся семья.
Сегодня в дизайне квартир модным направлением является наличие единого пространства без капитальных стен, но с функциональным зонированием с помощью мебели, трансформирующихся систем и отделочных материалов.
Планировка хрущевки 3 комнаты. Типовые виды планировки хрущевок с тремя комнатами
То, каким будет проект перепланировки 3-комнатной хрущевки, зависит от ее исходного вида – характера расположения комнат и других помещений. В типовых домах встречается жилье, в котором одна большая и две маленькие комнаты, а также и такое, в котором все жилые помещения примерно равны по площади. Варианты, когда все комнаты полностью разделены и имеют отдельные входы, бывают очень редко и в основном в хрущевках самого позднего поколения.
Чаще всего встречаются такие типы планировки хрущевок с тремя комнатами:
Трамвай
Такая жилплощадь переоборудуется чаще всего, поскольку ее жилые помещения расположены симметрично и достаточно отдалены от входа. Трехкомнатная квартира в хрущевской пятиэтажке подобного типа имеет просторное общее помещение, являющееся проходным. Его площадь колеблется в пределах от 18 до 20 квадратных метров. Из него имеются входы в две разделенные кладовыми спальни, каждая из которых насчитывает от 8 до 11 квадратных метров.
Коридора как такового между комнатами нет – его своеобразной заменой служит просторный зал. Кухня в квартирах-“трамваях” отличается очень скромными размерами, а санузел, как правило, отделен от ванной.
Распашонка
Планировку такой квартиры лишь условно можно назвать удобной. Она очень сильно напоминает двухкомнатные хрущевки с аналогичным названием, в которых отдаленная от входа комната была разделена перегородкой и превращена в две отдельные.
Распашонка в общих чертах похожа на “трамвай”, за исключением того, что между спальнями отсутствуют кладовки, и они разделены только стеной. Самая большая комната, из которой есть выход на балкон – полностью проходная. Санузел также разделен, а кухня довольно тесная.
Книжка
Этот вариант плана 3-комнатной квартиры хрущевки считается самым неудобным и почти всегда перестраивается, но в это же время располагает множеством вариантов для реконструкции. Из явных минусов – все окна такого жилища выходят только на одну сторону дома. Если она окажется северной, жильцы рискуют столкнуться с целой чередой неудобств.
Из плюсов – здесь не одна, а целых две комнаты с выходом в общий коридор, наибольшая из которых – проходная. Жилые помещения также неоднородны по размеру – более крупная спальня и проходной зал имеют по 13-17 квадратных метров, тогда как меньшая – всего 8 или 9.
Кухня по площади лишь незначительно крупнее той же квартиры-“трамвая” и не дотягивает даже до 6 квадратных метров. Еще одно преимущество “книжки” – слегка удлиненный коридор, что достигается уменьшением площади одной из спален.
Хрущевка улучшенной планировки
Такие квартиры встречаются очень редко и только в домах, представляющих собой хрущевки последнего поколения. Обе спальни в них примерно равны по площади и просторны, насколько это вообще возможно в этом типе строений. Третья комната, как и в прежних видах планировки, больше, но уже не проходная.
Все жилые помещения, образующие условный полукруг, выходят в общий коридор. Кухня в хрущевках-“улучшенках” слегка расширена и достигает 6 квадратных метров.
Хрущевка планировка 2-х комнатная угловая. Отличительные черты планировки хрущевок в кирпичных домах
При рационализации строительства панельных домов было принято решение заменить железобетонные панели, которые в то время использовались для строительства на силикатный кирпич. Его было удобно перевозить на место стройки. Был заново разработан новый проект, который немного отличался от разработанного до этого для панельных зданий.

Если в двухкомнатной хрущевке проживает пара или семья с ребенком, квартира нуждается в переделке.
Было разработано новое архитектурное новшество, которое подразумевало переделку комнат с использованием продольного расположения. Это уменьшало количество однокомнатных квартир в жилом доме. Изменились также габариты кухни – они стали меньше, но увеличилась площадь, которую занимают кладовки и добавились лоджии.

Если снести все стены (за исключением несущих), получится квартира со свободной планировкой.
Угловая 2 комнатная хрущевка отличается измененной планировкой, которая выводит окна на две стороны, и существует возможность обзора улицы с разных ракурсов. На этом плюсы этой жилплощади заканчиваются. При возведении панельных домов стены делались тонкими, что уменьшало их теплоизоляционные свойства.

Эти квартиры были холоднее по сравнению с другими, которые находились, например, внутри здания.
В кирпичных домах, где стены достаточно толстые (полметра и больше), такая проблема с промерзанием угловых стен не бывает такой актуальной. В таких помещениях намного теплее и комфортнее.
Планировка хрущевок 2 комнаты. Нюансы перепланировки хрущёвки из двух комнат
Прежде всего следует выяснить, какие действия можно выполнять, а какие нет. В некоторых случаях потребуется разрешение соответствующих органов для согласования и утверждения нового плана квартиры.
Законная перепланировка допускает следующее:
- объединение туалета и ванной, присоединение к ним части коридора;
- увеличение площади комнаты за счёт прихожей;
- совмещение жилого помещения и кухни с электрической плитой в одно пространство;
- перенос дверных проёмов в стенах, которые не являются несущими;
- демонтаж антресолей, встроенных стенных шкафов;
- удаление части стены, выходящей на балкон или лоджию после остекления и утепления.






Существует также список действий, которые запрещены в процессе переоборудования.
- В домах, оборудованных газопроводом, объединять кухню с жилыми комнатами.
- Увеличивать площадь кухни за счёт соседних помещений (спальни, зала, прихожей и санузла).
- Проводить полный демонтаж стены дома, выходящей на балкон.
- Разрушать вентиляционные короба.
- Вести работы, блокирующие доступ к инженерным коммуникациям.
- Объединять квартиры, расположенные на соседних этажах, путем нарушения целостности перекрытий.
- Возводить дополнительные пристройки, которые планируется сделать частью квартиры на первом этаже.
Кроме того, не следует использовать для постройки межкомнатных перегородок слишком тяжёлые материалы.
В домах, которые входят в реестр аварийных зданий, запрещены любые виды перепланировки.
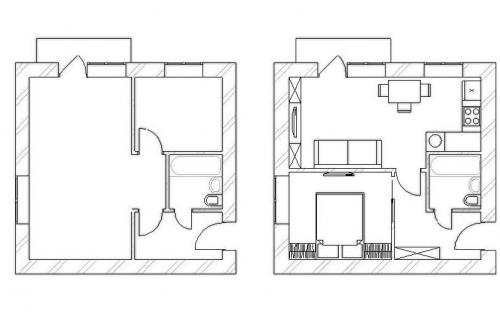
Планировка хрущевки 2 комнаты распашонка. Перепланировка 1-комнатной квартиры в хрущевке
Перепланировка однокомнатной квартиры в хрущевке подразумевает два варианта – либо мы находим способы выкроить дополнительные квадратные метры и делаем пространство максимально свободным, либо делим одну комнату на две. Нередко перепланировка затрагивает балконы и лоджии, присоединяя их к общей полезной площади. В таком случае необходимо буде позаботиться об их дополнительном утеплении.
Проект 1
На сегодняшний день немалой популярностью пользуются квартиры-студии, где отсутствуют практически все внутренние перегородки, за исключением тех, что отделяют санузел. В хрущевках воплотить такой проект проще, чем в панельных домах, так как несущими являются лишь стены по периметру квартиры. В результате демонтажа всех внутренних стен (кроме санузла) получается довольно большое пространство, где с помощью зонирования размещают отдельные функциональные островки. Рабочая зона кухни остается на прежнем месте, так как перенос коммуникаций не целесообразен, на территории комнаты размещаем зону отдыха, а обеденный комплекс можно установить на границе, где ранее находилась стена. По желанию хозяев стену можно не полностью демонтировать, а лишь наполовину, при этом нижняя часть, после проведения отделочных работ, превратиться в барную стойку или обеденный стол.




Проект 2
В данном случае владельцы нашли грамотный выход, как увеличить пространство гостиной и в то же время скрыть часть приватной территории от посторонних глаз. Здесь с помощью гипсокартонной перегородки отделили спальню, а остальное пространство комнаты объединили с кухней, демонтировав разделяющую их стену. Такие способы перепланировки встречаются нередко, по сути, однокомнатная квартира перестраивается в двухкомнатную. Можно также задействовать территорию балкона. Если нет желания или возможности присоединить его к территории квартиры, достаточно застеклить, утеплить стены и сделать эксплуатируемой территорией, установив, например, шкаф или рабочий стол.




