Особенности планировки 2-комнатной хрущёвки. Двухкомнатная хрущевка: 80+ фото, планировки, идеи дизайна
- Особенности планировки 2-комнатной хрущёвки. Двухкомнатная хрущевка: 80+ фото, планировки, идеи дизайна
- Хрущевка планировка 2 комнатная. Особенности планировки
- Планировка хрущевки 2 комнаты смежные. Популярные варианты
- Планировка хрущевки 2 комнаты 42 м. Планировки 42 метров
- Хрущевка планировка 2-х комнатная угловая. Особенности 2-комнатной «хрущевки»
- Планировка хрущевки 2 комнаты 40 кв м. Дизайн 2х комнатной хрущевки: проекты, перепланировка, лучшие фото идеи дизайна
- Планировка хрущевки 2 комнаты с кладовкой. Как переделать двухкомнатную хрущевку?
Особенности планировки 2-комнатной хрущёвки. Двухкомнатная хрущевка: 80+ фото, планировки, идеи дизайна

Планировка 2х комнатной хрущевки
Типовая хрущевка имеет очень маленькую кухню – 5-6 квадратов. Ещё одна особенность – невысокие потолки до 2,7 метров. Двушки без перепланировки зачастую бывают неудобны, особенно, если вторая комната проходная.
Стандартная площадь двухкомнатной хрущевки – около 43-44 кв метров. Дома пятиэтажные. В большинстве своем комнаты смежные, окна выходят на одну сторону (за исключением угловой квартиры с двумя окнами). В качестве достоинств хрущевки можно выделить наличие кладовки и балкона.
Рассмотрим самые распространенные типы планировок подробней.
Книжка
Такая планировка считается самой неудачной: проходная комната с широким дверным проемом играет роль столовой, а в семье с детьми – ещё и спальни. Уединенности в таком пространстве добиться трудно. Чтобы разделить помещения, придется пожертвовать частью комнаты. Без перегородок, на снос которых необходимо получить разрешение, хрущевку можно превратить в просторную студию.



На фото маленькая угловая кухня со встроенным холодильником и столом, вписанным в подоконник.
Трамвайчик
Такое народное название (также употребляется слово «паровозик») планировка получила за расположенные друг за другом комнаты, напоминающие вагоны. Гостиная с балконом является проходной, но переделка решает эту проблему: если отсечь часть комнаты и превратить ее в коридор с двумя входами, в получившейся нише можно организовать систему хранения.



На фото комната в кремовых тонах с акцентной стеной в телевизионной зоне.
Хрущевка планировка 2 комнатная. Особенности планировки
Прежде, чем изменить хрущевку, нужно понять, что она собой представляет. Почти во всех типовых проектах 2-комнатные квартиры имеют смежные комнаты. Их общая площадь составляет 40- 45 кв м, жилая – 26-31 кв м, высота потолков – 250 см, толщина наружных стен – 30-40 см. Из-за тонких стен тепло- и звукоизоляция слабая. В таких квартирах санузлы могут быть совмещенными или раздельными.
Небольшая площадь, наличие проходных комнат, низкие потолки, отсутствие лифтов в домах делают это жилье не самым привлекательным, поэтому жильцы обращаются к перепланировке.
Главной проблемой предстоящих изменений становится регистрация в БТИ. Столкнувшись со сложностями получения документов, жильцы стараются не афишировать переделки своей жилплощади. И напрасно, так как квартиру с незаконной планировкой невозможно продать, подарить или произвести любые другие юридические действия.
К положительным моментам относится возможность убрать стены внутри помещения (так как в хрущевках несущих стен нет) и приступить к осуществлению нового проекта с любыми фантазиями. Чаще всего перестраиваются кухня и коридор . Многие совмещают санузел. В изначальном виде в ванной комнате помещалась раковина и сама ванная (место под стиральную машину не предполагалось). Совмещая санузел, унитаз оставляют на месте, а канализационный стояк перенести невозможно. Ванную разворачивают к другой стене или ставят душевую кабинку.
В полученной площади помещают стиральную машину. Возможны минимальные предметы мебели. Коридор становится больше за счет кладовки. Встроенный шкаф-купе вполне ее заменит. Комнаты нередко объединяются в одну . А, соединяя их с кухней и коридором, можно получить студию. В таком варианте придется газовую печь заменить электрической или соорудить перегородку по типу шкафа-купе.
В условиях газоснабжения кухня должна быть изолирована от жилых помещений.
В хрущевке можно проводить демонтаж кладовых, антресолей, ниш и любых подсобных помещений. Можно переносить дверные проемы или делать их в виде арок. Допустима и установка второй входной двери.
Разрешено объединение жилой площади с балконом при условии его утепления. При этом разбирается часть несущей стены под окном. Но радиаторы общего отопления должны оставаться на месте. Над ними делают барную стойку. В перепланировке двухкомнатной квартиры следует учитывать и другие особенности, а точнее то, чего делать нельзя:
- трогать несущие стены (например, сделать дополнительное окно). Могут разрешить сделать дверь, если предполагается пристройка;
- переносить радиаторы на лоджии и балконы;
- демонтировать или замуровывать каналы вентиляции;
- расширять санузел, ванную за счет жилой комнаты или кухни. Это можно сделать, разобрав кладовку или уменьшив коридор;
- квартиры, размещенные на разных этажах, нельзя объединять за счет монтажа межэтажных перекрытий;
- кухню нельзя переносить в жилую комнату или ванную, а можно только расширить;
- точно так же нельзя перенести санузел или ванную на территорию жилой площади. Это связано не только со сложностями общей канализационной системы, но и протечками, которые могут произойти на жилые комнаты соседей внизу;
- запрещен перенос газовых труб;
- демонтаж канализационного стояка;
- нельзя самовольно пристраивать балконы и другие сооружения;
- эти условия следует выполнять, чтобы не причинить вред дому. Их несоблюдение карается штрафами.
Учитывая все запреты и возможности, составляется проект перепланировки для подачи в жилищную комиссию. Но следует помнить, что аварийное жилье перестраивать не разрешается.
Планировка хрущевки 2 комнаты смежные. Популярные варианты
Практика показывает, что реконструкции хрущевок дают потрясающий результат – при совмещении санузла освобождается место для стиральной машинки; при сносе перегородки между комнатой и кухней появляется пространство для обеденного стола. На приведенных ниже схемах показано еще несколько способов повысить комфорт двухкомнатных хрущевок.
2 смежные комнаты в хрущевке
Смежными называются помещения, имеющие общую стену. Планировка со смежными комнатами и разными входами называется "мини-улучшенка". Если в квартире есть кладовка , за счет нее можно увеличить площадь кухни: кладовая разбирается, санузел переносится на ее место, а к площади кухни прибавляется 3 кв метра.

На фото увеличенная кухня в двухкомнатной хрущевке, где нашлось место обеденному столу.


Без перегородки между кухней хрущевка превратится в евродвушку, а владелец получит просторную кухню-гостиную. Если кухня газифицирована, проем необходимо оборудовать раздвижной перегородкой. Лоджию можно утеплить и использовать в качестве кабинета .


Планировка хрущевки 2 комнаты 42 м. Планировки 42 метров
Маленькая квартира, несмотря на свой метраж, может быть переоборудована с учетом интересов каждого члена семьи: в ней без труда найдется место для трех человек. В соответствие со стандартным планом, двушка оборудована крохотной кухней, но если снести перегородку, она легко превратится в евродвушку с отдельной спальней. Ценители простора, холостяки или творческие личности предпочтут обустроить на 42 кв. м. свободную квартиру-студию.
На приведённых схемах можно подробней рассмотреть варианты разнообразных планировок.
Для однокомнатной квартиры
Владельцы однушки 42 кв. метра могут похвастаться довольно просторной кухней и большой спальней. В кухне можно разместить не только стол, но и удобный диванчик. В комнате хватит места для отдыха, кровати, шкафов и рабочего уголка.

На фото однокомнатная квартира с гостиной и невысокой перегородкой, отделяющей спальную зону.


Удачным вариантом для спального места выступает ниша: уютное компактное пространство дает ощущение уединённости и безопасности, особенно если зонировать кровать занавесками или рулонной шторой. В неглубокой нише можно обустроить кабинет или скрыть там шкаф.


Для квартиры-студии
Квартира 42 кв. м., где стеной отделен лишь санузел, может выглядеть еще просторней, если использовать светлую отделку. Темные тона сужают пространство, но и придают уюта.
Чтобы в квартире было больше света, не стоит использовать подоконники в качестве мест для хранения вещей (максимум – немного комнатных растений). Обилие предметов в оконном проёме загромождает пространство и, даже если во всём помещении идеальный порядок, захламленные подоконники испортят всю картину.



Обычно в студии 42 кв. метра отделяют кухонную зону с помощью барной стойки: это удобно и красиво. Кроме того, её поверхность может служить дополнительным местом для готовки. Увеличение окон меняет облик квартиры до неузнаваемости, но это не только затратный процесс, требующий согласования с государственными органами, но и недопустимый в панельных домах.

На фото квартира-студия 42 кв. м. с панорамными окнами.
Для 2-х комнатной
Двушка в типичной хрущёвке отличается маленькими кухней, ванной и туалетом. Иногда снести часть перегородок и объединить кухню с гостиной и ванную с туалетом – наилучшее решение для создания комфортного жилья. Спальня остается изолированной. Таким образом, квартира превращается в просторную евродвушку, и в распоряжении владельцев по-прежнему остаётся две комнаты.

На фото хрущёвка с новой перепланировкой: кухня присоединилась к гостиной, в санузле стало больше места. Это идеальный вариант для семьи из двух человек.


Евродвушка подойдёт и для пары с ребёнком: тогда небольшая спальня превращается в детскую, а родители размещаются в смежной гостиной. В просторном помещении, соединённом с кухней, можно поставить раскладной диван и останется место для телевизора или компьютера. Если комната оборудована балконом, рабочее место можно вынести туда, предварительно его утеплив: тогда квартира превратиться в трёшку.



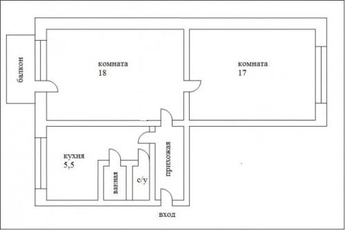
Хрущевка планировка 2-х комнатная угловая. Особенности 2-комнатной «хрущевки»
Узнать «хрущевку» можно по широким квадратным окнам, проходным комнатам, маленьким кухонькам. Совмещенный санузел – еще одна типовая деталь в плане-проекте таких квартир. Стандартная ванна в таком маленьком санузле даже поместиться не могла. Многие квартиры обустроены балконом и кладовкой.
Двухкомнатная «хрущевка» – очень компактная квартира. В новостройках даже «однушки» современной планировки располагают схожей площадью (40-45 кв. м) и даже больше. «Хрущевка» максимально имеет метраж в 46 квадратов, если это «двушка», но благодаря компактности зон тем не менее на них можно удобно разместить все. Просто от стандартных схем порой выгоднее отклониться, поискав новые решения.
Иногда это глобальная перепланировка, которая предполагает изменение геометрии квартиры. Естественно, чтобы не пострадали несущие стены, перепланировку требуется узаконить в соответствующих инстанциях.
Существует несколько вариантов стандартной планировки.
- «Книжка». Так принято называть квартиру, в которой комнаты идут друг за другом последовательно. Общий метраж такого жилища 42-43 квадрата.
- «Трамвай». А это «двушка», площадь которой 47 квадратов, комнаты в ней смежные, одна из них угловая.
- Улучшенная. Данная планировка не предполагает проходной комнаты, более того, в ней даже есть нетипичный для «хрущевки» раздельный санузел. Правда, кухня в таком жилище крошечная.
- «Бабочка» . В такой квартире кухня находится посередине, а по краям – жилые комнаты. Раздельный санузел тоже является выгодной стороной данной планировки.
Сказать, какая из этих планировок удобнее для перестройки, точно нельзя. Например, в «книжке» смежные комнаты легко объединить в одну (если это задумано), и тогда жилище превратится в полноправную студию. В любом случае подумать есть над чем.
Планировка хрущевки 2 комнаты 40 кв м. Дизайн 2х комнатной хрущевки: проекты, перепланировка, лучшие фото идеи дизайна
Миллионы людей живут в малогабаритных квартирах с типовой планировкой. Мечтая о современном и удобном жилье, одни владельцы задумываются о переезде. Другие же устраивают ремонт в хрущевке 2-х комнатной, фото которой после проведенных работ едва ли выдает время постройки дома. Благодаря огромному ассортименту строительных материалов и безграничным вариациям готовых дизайнерских решений, сегодня можно реализовать любые желания. Главное не пренебрегать советами специалистов.

Хрущевки — первые многоэтажные дома массовой застройки. Во времена СССР квартиры в них раздавали практически бесплатно, что решило вопрос острой нехватки жилья. Небольшая площадь, проходные комнаты, неудобное расположение дверей отличает их от “сталинок” и других домов. Есть и другие, не менее значимые недостатки: низкая шумоизоляция, невысокие потолки, маленькие прихожая и кухня, отсутствие балкона на первом этаже. На нынешнем рынке такая недвижимость мало ценится.

Несмотря на очевидные минусы, плюсы здесь тоже есть. В каждом жилище времен Хрущева Н. С. предусмотрены кладовки. Санузел обычно совмещен, что экономит место. А варианты дизайна таких помещений безграничны. Зачем покупать типовую мебель и жертвовать большой ванной, если даже в советской двушке реально осуществить любые идеи?


Планировка хрущевок, состоящих из 2 комнат, бывает 4 видов:
Трамвай | около 47 кв. м | Две комнаты в такой квартире имеют одну, смежную стену. Гостиная обычно угловая. |
Бабочка | 46 кв. м | Кухня располагается между двумя комнатами. |

“Книжка” достаточно неудобная, как в первоначальном виде, так и в измененном. Так как комнаты следуют друг за другом, сделать радикальное перепроектирование помещения невозможно.

Объединение комнат
При входе в дом первое, что бросается в глаза — прихожая. В хрущёвке она маленькая, узкая и темная. Если увеличить дверной проем в комнате, коридор станет светлее и визуально больше. С этого обычно и начинается составление плана ремонта 2-комнатной квартиры. Что касается радикального сноса стен, чаще всего объединяют:
- Кухню и зал. На месте убранной стены устанавливается барная стойка или стол с мягким диваном.
- Зал и спальню. Подходит для семьи без детей. При наличии ребенка детская в хрущевке оформляется путем зонирования помещения.
- Зал и кабинет. Для создания рабочего пространства подойдет стеллаж или мобильные ширмы. Иногда дизайнеры используют невысокий подиум.
- Спальню и кабинет. Комната разделяется на 2 функциональные зоны, стол для работы ставится около окна.

Зонирование
Перестройка малогабаритной квартиры 40 кв. м или другой площади не обходится без зонирования. Каждому члену семьи необходима личная зона в квартире. При этом нельзя уменьшать и без того маленький размер кухни. Рабочее место должно быть вместительным. Для разделения разных участков используются:
- гипсокартонные фальшстены;
- передвижные перегородки;
- занавески, шторы;
- диваны, шкафы, другие предметы мебели;
- разноуровневые потолок и пол.

Раздвижные двери — лучшая альтернатива распашным. Они удобны в обращении и стильно смотрятся.

Отделка
Эффективным способом зрительного увеличения пространства любой дизайнер назовет использование светлых оттенков. Но это утверждение нельзя воспринимать буквально, иначе ремонт в 2х комнатной хрущевке по фото будет напоминать больничную палату. То же касается и 1х, 3х комнатных квартир. Удачное сочетание цветов приведет к успешному обновлению интерьера.

Полы
Единственное строгое требование к выбору напольного покрытия — табу на темные оттенки. В домах небольшого размера пол является фоном для других предметов и не должен привлекать внимание. Лучшие цвета: серый, бежевый, молочный. Также уместна имитация фактуры дерева или сам натуральный материал. Ламинат, паркетная доска, линолеум, ковролин, плитка — любое покрытие эффектно дополнит дизайн, если учтены требования к цвету.

Потолки
Чем ярче освещение в маленькой комнате, тем лучше. В дополнение к люстре рекомендованы точечные светильники, расположенные по периметру. Скрыть все неровности и дефекты на потолке поможет натяжной вариант. Не менее выгодно смотрится многоуровневый верх.

Стены
Прежде чем приступить к отделке стен, в 9 случаях из 10 их придется выровнять. В панельных домах, как и кирпичных, разница в высоте или наклоне разных стен достигает 2-3 см. Даже если кривизна не бросается в глаза, она создаст большие проблемы при ремонтных работах. Поверхность выравнивается шпаклевкой или гипсокартоном. По окончании подготовки комната оформляется обоями, например:
- флизелиновыми, виниловыми, акриловыми с вертикальным рисунком;
- фотообоями с городским пейзажем или природой;
- жидкими бесшовными обоями.

Цвет стен должен гармонировать с задуманным дизайном хрущевки, состоящей из 2 комнат. Правило “чем выше цена, тем лучше” работает не всегда. Даже самая дорогая шелкография подходит далеко не к каждому интерьеру.
Планировка хрущевки 2 комнаты с кладовкой. Как переделать двухкомнатную хрущевку?
Квартиры, в которых 2 комнаты смежные, а есть ещё кладовая в коридоре или возле кухни, составляют большую часть жилья в домах-хрущевках. Недостатки в виде неудачной планировки и малого метража распространяются на все жилье, поэтому собственники стараются сделать перепланировку, снося стены.
Итак, исходные данные выглядят следующим образом: типовая планировка хрущевка 2 комнаты с кладовкой. Желательно расширить жилое пространство или сделать три комнаты за счет кладовой. Для этого нужна отдельная перегородка между комнатой и коридором. Это помещение можно сделать гардеробной или подсобкой.
Вторая комната делится на секторы гостиной и спальни, для чего ставят гипсокартонный разделитель. Переход может быть от одной стены до другой, в торце второй комнаты находится кладовая.
Перенос приводит к изменению ванной – она становится прямоугольной, а первая комната и коридор объединяются. Эта площадь используется как вход на кухню. Остальная часть квартиры делится на две комнаты, при этом перегородка может быть сделанной в виде гардеробной.
Типовая двухкомнатная квартира может стать стильной студией, в которой объединены кухня и гостиная. Главное при перепланировке панельной хрущевки получить согласование на перенос места входной двери в квартиру. При положительном ответе жилищных комиссий коридор становится гардеробной, а гостиную и кухню объединяют в единое помещение.
Часть перегородки сносится, санузел также становится одной комнатой. Если нужно, вторая комната также может быть разбита на две гипсокартонной стенкой, отделяющей кабинет от спальни. К высоте этой перегородки также предъявляется требования до 1,5 метров, чтобы не перекрывать доступ солнечного света.
В такой переделке из двухкомнатной квартиры получается «трешка» с увеличенным санузлом, скосом в коридоре и неполной перегородкой между кухней и жилой гостиной. Вторая комната делится на два помещения с встроенным шкафом и кладовой. В каждой из комнат есть окна. Коридор имеет небольшую диагональ, но площадь изменена незначительно.