Планировки квартир типовой серии хрущевки. Описание хрущевки 1-447 первого поколения
- Планировки квартир типовой серии хрущевки. Описание хрущевки 1-447 первого поколения
- Планировка хрущевок 2 комнаты. Хрущевка 2 комнатная планировка, размеры, виды планировки
- Планировка хрущевка 3 квартиры на этаже. Достоинства и недостатки
- Кирпичная хрущевка планировка. Серия 447 (1957)
- Планировка хрущевки 5 этажей. Описание квартир
- Планировка хрущевки 2 комнаты распашонка. Двухкомнатная хрущевка: 80+ фото, планировки, идеи дизайна
- Планировки хрущевок 3 комнаты. Типовые виды планировки хрущевок с тремя комнатами
Планировки квартир типовой серии хрущевки. Описание хрущевки 1-447 первого поколения
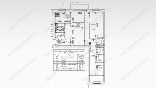
Отличительной чертой планов первого поколения квартир СССР l-447 является наличие проходных комнат (неизолированных) во всем жилье, кроме квартир с одной жилой комнатой. Все сантехнические узлы в жилье совмещенные. Каждая квартира пятиэтажки имеет встроенный шкаф для хранения вещей.
Высота потолков данной серии составляет 2,48 м, а высота этажа 2,8 м
В хрущевке I-447 запроектированы 1 2 и трехкомнатные квартиры. В этом типе дома есть 2х комнатные и 3х комнатные квартиры с расположением комнат на обе стороны здания (распашонки / бабочки). Эти помещения располагаются в центральной секции.
Балконы проектировались на всех этажах здания кроме первого.
Форма помещений в плане представляет собой, в большинстве случаев, прямоугольник скошенных углов ни в каких помещениях нет.
Несущие стены в здании запроектированы продольные (наружная и центральная), некоторые поперечные и стены лестничных клеток. Внутриквартирные перегородки являются самонесущими их можно сносить, перемещать и делать в них проемы, только после получения официального разрешения на перепланировку.
Наружные стены в советском здании i447 первого поколения выполнялись из штучного кирпича толщиной 38-40см.
Внутренняя (центральная) стена которая расположена вдоль здания, межквартирные и стены лестничных клеток — 38 см.
В жилых комнатах были предусмотрены перегородки толщиной 8 см из гипсобетона. В санузлах перегородки из шлакобетона толщиной 6 см.
Помещения в жилье имеют следующую квадратуру:
- Детская 10,28-11,61м2;
- Кладовая (гардеробная) 1,27-2,16 м.кв;
- Комната (проходная) 17,2-20,02 кв.м;
- Кухня 5,95-5,99 кв. метр;
- Прихожая 1,96-4,25 м2;
- Санузел (совмещенный) 2,91-2,93 метр кв;
- Спальня 11,56 кв м;
- Шкаф 0,7-0,74 м2.
Площадь помещений можно посмотреть на чертежах в таблице экспликации помещений 1-447. Чертежи планов 1-447 зданий первого поколения содержат длину и ширину помещений и метраж.






Планировка хрущевок 2 комнаты. Хрущевка 2 комнатная планировка, размеры, виды планировки
Есть несколько типичных планировок двухкомнатных квартир. Они отличаются по размерам, расположению помещений и другим характеристикам. Квартиры подобного типа строили на протяжении долгого времени, поэтому при их сооружении применяли разные материалы и технологии. Из-за этого 2 похожих жилья могут иметь достаточно разные характеристики и цену на рынке.
Книжка
Данный тип планировки подразумевает наличие проходного помещения. Площадь жилья — до 41 м². Санузел совмещенный, кухня маленькая. Грамотная планировка такого жилья вращается вокруг использования гостиной: она достаточно большая поэтому занимает практически половину метража.

Планировочное решение квартиры 2 комнатной хрущевки с проходными комнатами с размерами ( расположение комнат по типу -книжка) серия 1-434 год постройки — 1959г.
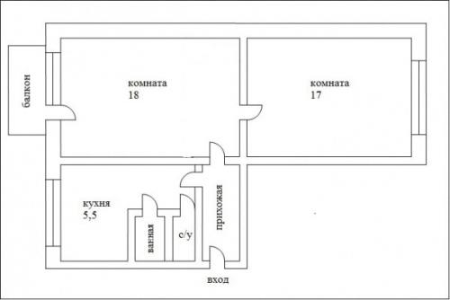
Трамвайчик
Это планировка квартиры 2 комнатной хрущевки с проходными комнатами расположенными друг за другом, как вагоны в трамвае. Размер жилья сравнительно большой — до 48 м². Помимо жилых площадей 9-17 м², жилище включает кухню, санузел, небольшую прихожую. При планировке важно грамотное зонирование обоих жилых зон.
Распашонка
Это планировка квартиры 2 комнатной хрущевки с изолированными комнатами, в которой комнаты расположены по обе стороны от коридора. Такая схема планировки считается удачной, поскольку личные и общие пространства жильцов располагаются симметрично и изолированны друг от друга. Почти всегда хрущевка распашонка 2 комнатная имеет балкон. Площадь двухкомнатной квартиры в хрущевке — до 46 м².
Планировка хрущевка 3 квартиры на этаже. Достоинства и недостатки
При выборе квартир в домах «хрущевках» предпочтение отдается строениям из кирпича. За счет толстых стен они не нагреваются летом, что дает возможность экономить на кондиционерах, и не промерзают зимой. Небольшая площадь квартир легко прогревается чугунными радиаторами.
В отличие от современных монолитно-каркасных и панельных домов, кирпичные пятиэтажки имеют толстые несущие стены, что создает хорошую звукоизоляцию между квартирами. Качество вентиляции «хрущевок» тоже достаточно велико — из нижних квартир не поступают посторонние запахи.

Несмотря на типовые жилые помещения в таких домах, можно подобрать варианты на любой кошелек и вкус. На представленных фото планировок квартир «хрущевок» можно увидеть, что в пределах одного подъезда могут быть представлены и однокомнатные, и двухкомнатные, и трехкомнатные жилища.

Почти во всех квартирах предусмотрен балкон, который, при желании, можно превратить в дополнительное функциональное помещение.

Конструкция зданий предполагает хорошую устойчивость и прочность. Дома надежно стоят на любой почве и не боятся сейсмической активности.

Еще один плюс — квартиру «хрущевского» типа легко перестроить. Любые работы в плане перепланировки можно произвести в короткие сроки и недорого.
Существует немало интересных проектов изменения планировки однокомнатной квартиры в хрущевке и превращения ее в студию. Также есть варианты, при которых планировка двухкомнатной квартиры «хрущевки» превращается в проект современной евро-двушки.

Однако помимо достоинств жилища такого типа имеют и свои недостатки. К их числу относятся слишком низкие потолки, маленькие кухни и тесные прихожие. Чаще всего мебель для этих помещений приходится изготавливать на заказ. Санузел всегда совмещенный, но благодаря этому — достаточно просторный, позволяющий установить стиральную машину.

Гостиная в «хрущевке» всегда проходная, поэтому не может быть превращена в спальню или детскую.
Кирпичная хрущевка планировка. Серия 447 (1957)
1-447 — самая распространённая на всей территории СССР серия кирпичных "хрущёвок". Благодаря толстым стенам из силикатного или красного кирпича превосходит по тепло- и звукоизоляции панельные "хрущёвки" и более поздние панельные дома. Внутренние стены в квартирах не капитальные, позволяют перепланировку. В остальном это обычные хрущёвки с тесными квартирами.
Не относятся к «сносимым» сериям и обладают повышенным сроком службы по сравнению с панельными хрущёвками. На основе серии было создано много поздних модификаций с индексом 1-447С, которые относят уже к брежневским домам.
Узнаваемы по наружным стенам из необлицованного кирпича, 2-м рядам окон в торцевых сторонах (обычно без балконов) и прямоугольному корпусу без угловых секций и выступов. Дома - длиной от 2 до 8 секций, наиболее часто - 4-хсекционные (из торцевых и рядовых секций). Стены из кирпича, чаще белого силикатного, реже - красного. Штукатурки нет. Некоторые дома покрашены или применено сочетание красного и белого кирпича для декора. Несущие стены — продольные наружные и внутренняя центральная, поперечные межквартирные и стены лестничных клеток. Перегородки гипсобетонные, толщина — 80 мм; перекрытия — многопустотные железобетонные плиты толщиной 220 мм. Крыша у большинства домов 4-хскатная, покрыта асбоцементным шифером или кровельным железом. Водостоки — наружные водосточные трубы. Существуют дома с плоской крышей с битумным покрытием. Высота потолков 2,48 м. 1-й этаж, как правило, жилой. Балконы на всех этажах, кроме первого. Существуют дома без балконов в угловых квартирах или вообще без балконов (чаще в 4- и 6-секционных домах (модификации 1-447С-3, 5, 9, 10, 12, 29, 30, 31, 32) отсутствуют балконы в 1-комнатных квартирах, как угловых (1-я и 4-я либо 6-я секции), так и на стыке секций - 2-й и 3-й и, если есть, 4-й и 5-й).
Планировка хрущевки 5 этажей. Описание квартир
Пятиэтажные здания, которые сегодня больше известны как «хрущевки», впервые были построены в середине 50-х, во время очередного кризиса на строительном рынке, когда тысячи людей в срочном порядке нуждались в жилье. Преимущество этих зданий на тот момент было в том, насколько быстро удается их возвести. Поскольку в приоритете при разработке проекта была именно скорость, на тонкости внутренней планировки не сильно обращали внимание. В результате россияне получили множество типовых квартир и, зайдя в гости к другу, можно было с легкостью узнать в планировке его жилища свою квартиру.
Но даже среди этого однообразия можно выделить некоторые виды планировок:
- Типовые варианты. Стандартная квартира в «хрущевке» представляет собой, как правило, жилье, состоящее из одной или нескольких комнат, 6-метровой кухни, небольшого коридора, а также очень маленькой ванной комнаты. Квартиры в 5-этажных домах бывают от однокомнатных (в 31 кв. м. ) и 2-х комнатных (площадью в 44-45 метров, где примерно 32-33 метра приходится на жилое пространство) до даже 4-х комнатных, хотя это встречается уже намного реже. Размеры помещений тоже стандартны, например, трехкомнатные квартиры, как правило, имеют площадь в 58 метров, из которых 48 отведены под жилые помещения. Четырехкомнатная квартира – пожалуй, самое подходящее жилье в том случае, если вы предполагаете делать радикальную перепланировку.
- Нестандартные виды квартир представлены так называемыми полуторками (сейчас этот необычный вид планировки больше известен как «еврооднушка») и «распашонками», где две комнаты имеют выход в третью. На современном рынке жилья именно эти варианты наиболее востребованы.
Планировка хрущевки 2 комнаты распашонка. Двухкомнатная хрущевка: 80+ фото, планировки, идеи дизайна

Планировка 2х комнатной хрущевки
Типовая хрущевка имеет очень маленькую кухню – 5-6 квадратов. Ещё одна особенность – невысокие потолки до 2,7 метров. Двушки без перепланировки зачастую бывают неудобны, особенно, если вторая комната проходная.
Стандартная площадь двухкомнатной хрущевки – около 43-44 кв метров. Дома пятиэтажные. В большинстве своем комнаты смежные, окна выходят на одну сторону (за исключением угловой квартиры с двумя окнами). В качестве достоинств хрущевки можно выделить наличие кладовки и балкона.
Рассмотрим самые распространенные типы планировок подробней.
Книжка
Такая планировка считается самой неудачной: проходная комната с широким дверным проемом играет роль столовой, а в семье с детьми – ещё и спальни. Уединенности в таком пространстве добиться трудно. Чтобы разделить помещения, придется пожертвовать частью комнаты. Без перегородок, на снос которых необходимо получить разрешение, хрущевку можно превратить в просторную студию.



На фото маленькая угловая кухня со встроенным холодильником и столом, вписанным в подоконник.
Трамвайчик
Такое народное название (также употребляется слово «паровозик») планировка получила за расположенные друг за другом комнаты, напоминающие вагоны. Гостиная с балконом является проходной, но переделка решает эту проблему: если отсечь часть комнаты и превратить ее в коридор с двумя входами, в получившейся нише можно организовать систему хранения.



На фото комната в кремовых тонах с акцентной стеной в телевизионной зоне.
Планировки хрущевок 3 комнаты. Типовые виды планировки хрущевок с тремя комнатами
То, каким будет проект перепланировки 3-комнатной хрущевки, зависит от ее исходного вида – характера расположения комнат и других помещений. В типовых домах встречается жилье, в котором одна большая и две маленькие комнаты, а также и такое, в котором все жилые помещения примерно равны по площади. Варианты, когда все комнаты полностью разделены и имеют отдельные входы, бывают очень редко и в основном в хрущевках самого позднего поколения.
Чаще всего встречаются такие типы планировки хрущевок с тремя комнатами:
Трамвай
Такая жилплощадь переоборудуется чаще всего, поскольку ее жилые помещения расположены симметрично и достаточно отдалены от входа. Трехкомнатная квартира в хрущевской пятиэтажке подобного типа имеет просторное общее помещение, являющееся проходным. Его площадь колеблется в пределах от 18 до 20 квадратных метров. Из него имеются входы в две разделенные кладовыми спальни, каждая из которых насчитывает от 8 до 11 квадратных метров.
Коридора как такового между комнатами нет – его своеобразной заменой служит просторный зал. Кухня в квартирах-“трамваях” отличается очень скромными размерами, а санузел, как правило, отделен от ванной.
Распашонка
Планировку такой квартиры лишь условно можно назвать удобной. Она очень сильно напоминает двухкомнатные хрущевки с аналогичным названием, в которых отдаленная от входа комната была разделена перегородкой и превращена в две отдельные.
Распашонка в общих чертах похожа на “трамвай”, за исключением того, что между спальнями отсутствуют кладовки, и они разделены только стеной. Самая большая комната, из которой есть выход на балкон – полностью проходная. Санузел также разделен, а кухня довольно тесная.
Книжка
Этот вариант плана 3-комнатной квартиры хрущевки считается самым неудобным и почти всегда перестраивается, но в это же время располагает множеством вариантов для реконструкции. Из явных минусов – все окна такого жилища выходят только на одну сторону дома. Если она окажется северной, жильцы рискуют столкнуться с целой чередой неудобств.
Из плюсов – здесь не одна, а целых две комнаты с выходом в общий коридор, наибольшая из которых – проходная. Жилые помещения также неоднородны по размеру – более крупная спальня и проходной зал имеют по 13-17 квадратных метров, тогда как меньшая – всего 8 или 9.
Кухня по площади лишь незначительно крупнее той же квартиры-“трамвая” и не дотягивает даже до 6 квадратных метров. Еще одно преимущество “книжки” – слегка удлиненный коридор, что достигается уменьшением площади одной из спален.
Хрущевка улучшенной планировки
Такие квартиры встречаются очень редко и только в домах, представляющих собой хрущевки последнего поколения. Обе спальни в них примерно равны по площади и просторны, насколько это вообще возможно в этом типе строений. Третья комната, как и в прежних видах планировки, больше, но уже не проходная.
Все жилые помещения, образующие условный полукруг, выходят в общий коридор. Кухня в хрущевках-“улучшенках” слегка расширена и достигает 6 квадратных метров.