Трансформация пространства: дизайн двухкомнатной хрущевки с и без перепланировки
- Трансформация пространства: дизайн двухкомнатной хрущевки с и без перепланировки
- Связанные вопросы и ответы
- Какие ключевые различия в дизайне двухкомнатной хрущевки с перепланировкой и без
- Как спланировать пространство в двухкомнатной квартире для максимального комфорта
- Какие дизайнерские решения могут визуально расширить пространство в малогабаритной квартире
- Как выбрать цветовую гамму для стен и мебели в двухкомнатной хрущевке
- Какие основные этапы планировки двухкомнатной квартиры с перепланировкой
Трансформация пространства: дизайн двухкомнатной хрущевки с и без перепланировки
Введение
Хрущевки — это типовые панельные дома, которые были построены в СССР в 1950-80-х годах. Эти квартиры имеют небольшие площади и стандартные планировки, что делает их менее удобными для современного образа жизни. Однако с помощью правильного дизайна и перепланировки можно превратить такую квартиру в уютное и функциональное жилое пространство.
Дизайн двухкомнатной хрущевки без перепланировки
Использование света и цвета
Одним из ключевых элементов в дизайне небольшой квартиры является освещение. Правильное использование света может визуально увеличить пространство и сделать его более комфортным. Используйте светлые тона в интерьере, чтобы создать ощущение простора. Также можно добавить дополнительные источники света, такие как напольные лампы или встроенные светильники.
Выбор мебели
Мебель играет важную роль в дизайне квартиры. Для небольших помещений идеально подходят компактные и многофункциональные варианты. Например, можно использовать transforming furniture, такую как кровати-диваны или столы с откидными листьями. Это позволит сэкономить пространство и сделать комнату более функциональной.
Роль текстиля
Текстиль может добавить уюта и комфорта в интерьер. Используйте легкие занавески, пледы и подушки в светлых тонах, чтобы создать ощущение тепла и уюта. Также можно добавить ковры, которые помогут зонировать пространство и сделать его более комфортным.
| Элемент дизайна | Рекомендации |
|---|---|
| Освещение | Используйте светлые тона и дополнительные источники света |
| Мебель | Выбирайте компактные и многофункциональные варианты |
| Текстиль | Используйте легкие и светлые ткани |
Дизайн двухкомнатной хрущевки с перепланировкой
Объединение кухни и гостиной
Одним из популярных вариантов перепланировки является объединение кухни и гостиной. Это позволяет создать более просторное и удобное пространство для отдыха и приготовления пищи. При этом можно сохранить функциональность кухни, разместив все необходимые приборы и мебель.
Создание студии
Если вы хотите создать более открытую и современную планировку, можно рассмотреть вариант студии. Это предполагает полное или частичное удаление стен между комнатами, что позволяет создать единое пространство. Такой подход идеально подходит для небольших квартир, так как визуально увеличивает площадь.
Добавление дополнительных комнат
Если позволяет площадь, можно добавить дополнительные комнаты, такие как кабинет или детская. Для этого можно использовать перегородки или шкафы-купе, которые помогут зонировать пространство. Это позволит создать более функциональное и удобное жилое пространство.
Преимущества и недостатки перепланировки
- Преимущества:
- Увеличение функциональности пространства
- Возможность создать современный и удобный интерьер
- Увеличение площади жилого пространства
- Недостатки:
- Высокая стоимость
- Необходимость получения разрешений
- Возможные сложности с инженерными системами
| Вариант перепланировки | Описание |
|---|---|
| Объединение кухни и гостиной | Создание просторного пространства для отдыха и приготовления пищи |
| Создание студии | Объединение всех комнат в единое пространство |
| Добавление дополнительных комнат | Создание кабинета или детской с помощью перегородок |
Связанные вопросы и ответы:
Вопрос 1: Какие ключевые особенности дизайна двухкомнатной хрущевки с перепланировкой и без
Дизайн двухкомнатной хрущевки с перепланировкой и без имеет существенные различия. Без перепланировки сохраняется классическая планировка с небольшими комнатами, узкими коридорами и стандартными дверными проемами. В таком случае дизайн чаще ориентирован на минимализм и функциональность, с акцентом на использование каждого уголка. С перепланировкой же пространство становится более открытым и современным, что позволяет объединить комнаты, убрать лишние стены и создать более просторные зоны. Такой подход дает возможность воплотить более смелые дизайнерские идеи, такие как создание студии или общего пространства для отдыха и кухни.
Вопрос 2: Какие преимущества и недостатки имеет перепланировка в двухкомнатной хрущевке
Перепланировка в двухкомнатной хрущевке имеет свои преимущества и недостатки. Среди плюсов можно выделить увеличение полезной площади, возможность создания более современного и удобного пространства, а также улучшение функциональности квартиры. Однако существенным недостатком является необходимость получения разрешений и соблюдение строительных норм, что может занять много времени и средств. Кроме того, перепланировка часто сопровождается повышенными затратами на демонтаж, строительство и ремонт, что может быть неприемлемо для бюджета некоторых жителей.
Вопрос 3: Какие современные стили дизайна подходят для двухкомнатной хрущевки
Для двухкомнатной хрущевки подходят различные современные стили дизайна, которые помогают обновить интерьер и сделать его более комфортным. Один из популярных стилей – скандинавский минимализм, который подходит для небольших помещений благодаря своей простоте и светлым оттенкам. Еще один стиль – лофт, который предполагает использование открытых пространств, кирпичных стен и современных материалов. Также можно рассмотреть стиль модерн, который сочетает функциональность и эстетику, или эклектизм, который позволяет комбинировать разные стили и элементы. Каждый стиль может быть адаптирован под конкретные размеры и планировку квартиры.
Вопрос 4: Как организовать функциональные зоны в двухкомнатной хрущевке с перепланировкой
Организация функциональных зон в двухкомнатной хрущевке с перепланировкой требует тщательного планирования. Одним из популярных решений является объединение кухни и гостиной в единое пространство, что создает просторную зону для отдыха и приготовления пищи. Спальня может быть выделена в отдельную комнату с использованием раздвижных дверей или перегородок для сохранения приватности. Также можно обустроить рабочую зону в коридоре или при входе, используя компактные шкафы и полки. Важно учитывать естественное освещение и расположение окон при создании зон, чтобы пространство выглядело более просторным и комфортным.
Вопрос 5: Как сделать дизайн двухкомнатной хрущевки более современным и стильным без перепланировки
Для того чтобы сделать дизайн двухкомнатной хрущевки более современным и стильным без перепланировки, можно воспользоваться несколькими простыми и эффективными методами. Во-первых, стоит обратить внимание на цветовую гамму – использование светлых оттенков на стенах и потолке поможет визуально увеличить пространство. Во-вторых, можно обновить мебель, выбрав современные модели с минималистским дизайном, которые не загружают пространство. В-третьих, добавление текстур и узоров через ковры, подушки и шторы может добавить интерьеру индивидуальности. Наконец, использование современных осветительных приборов и аксессуаров поможет создать уютную и модную атмосферу.
Вопрос 6: Какие световые решения подходят для двухкомнатной хрущевки
Для двухкомнатной хрущевки подходят различные световые решения, которые помогают создать уютную и функциональную атмосферу. Одним из самых популярных вариантов является использование встроенных светильников в потолке, которые обеспечивают равномерное освещение и не загружают пространство. Также можно использовать напольные лампы или настольные лампы, которые добавляют тепла и комфорта. Еще один вариант – использование светодиодных лент, которые можно разместить под мебелью или вдоль стен, создавая современный и стильный эффект. Важно также учитывать естественное освещение и использовать легкие шторы или жалюзи, чтобы регулировать уровень света в комнате.
Какие ключевые различия в дизайне двухкомнатной хрущевки с перепланировкой и без
- Изменение «сталинки»
С учетом отсутствия несущих стен «сталинки» легче поддаются перепланировке. При этом учитывайте, что демонтаж даже обычных перегородок может потребовать значительных усилий, поскольку строили тогда на века. Если высокие потолки вам не по нраву, то можно их легко опустить, используя подвесные или натяжные конструкции. Часто приходится расширять оконные проемы, так как оригинальные окна по сегодняшним меркам малы.
Перепланировка может выражаться не только в объединении комнат, но и в их новом разделении, чему способствуют значительные размеры помещений в сталинских домах. К примеру, можно часть кухни слить с кладовкой или лоджией, а оставшееся пространство преобразовать в студию, совмещенную с гостиной. Вторая комната в этом случае будет служить спальней или рабочим кабинетом.
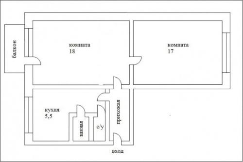
- Хрущевка
Здесь для создания комфорта потребуется приложить больше усилий. Совмещенный санузел, как правило, не имеет смысла делить, – в противном случае придется отрезать метры от прихожей, которая и так невелика. Более значимой проблемой является расширение кухни, и осуществить подобную «операцию» лучше всего за счет балкона, если это возможно.
Планировка двухкомнатной квартиры в хрущевках обычно предполагает, что одна комната является проходной, что не слишком удобно. Поэтому стоит продумать, как создать раздельные комнаты с помощью новой перегородки. Очевидно, что это будет сопровождаться выделением небольшого коридора, но зато вы получите два самостоятельных помещения, которые могут иметь разный дизайн.

Варианты планировок
- Работа с «брежневкой»
В отличие от хрущевок, санузел и комнаты здесь обычно раздельные, и можно оставить такую планировку. Желание расширения чаще всего касается кухни, и изъять метры для нее можно только от коридора или комнаты. Потолки, как в хрущевках, так и в «брежневках», можно поднять, используя визуальные средства – скажем, натяжные конструкции, легкость которым обеспечивает правильная подсветка.
- Большие квартиры
Сейчас встречаются проекты планировки двухкомнатных квартир с площадью 70 и более кв. м, что в разы превосходит размеры хрущевок и «брежневок». Не представляет труда найти новостройку, где внутренние перегородки не сооружаются строителями.
Такое жилье полностью готово к перепланировке: количество и размер комнат определяет владелец, возводя стены там, где они нужны. К примеру, можно оставить единое пространство, получив огромную квартиру-студию, или, наоборот, к гостиной добавить две спальни.
Как спланировать пространство в двухкомнатной квартире для максимального комфорта

Освещение в квартире определяет настроение людей, которые будут там жить, функциональность комнаты, помогает сделать интерьер уютнее и даже визуально увеличивает пространство. Для этого нужно знать, как правильно спланировать свет.
1. Выбирайте для спальни неяркий свет
Спальня — пожалуй, единственное место в доме, где основной свет должен быть неярким. Планируйте несколько сценариев освещения: общий, например, лампу под потоком, и направленный — бра над кроватью или настольные светильники на прикроватных тумбочках. Выбор нужно сделать заранее, так как работы по проводке всегда осуществляются во время черновых ремонтных работ.

2. В гостиной можно использовать потолочные светильники
Один из самых простых и оптимальных вариантов — сделать в гостиной встроенное освещение с помощью спотов. Учитывайте правильное расположение точечных светильников: расстояние до стен, шкафов и окон должно быть не менее 20 см.
Лучше, если будут и дополнительные источники света. Например, торшер у кресла или настольная лампа у дивана. Так вы сможете создать в комнате разную обстановку, в зависимости от вашего настроения.

3. В кухне должно быть несколько световых сценариев
Если оставить один плафон на потолке — он создаст тени и визуально уменьшит пространство. В интерьере кухни также лучше предусмотреть несколько источников света.
Во-первых, общее освещение (можно с помощью встроенных спотов).
Во-вторых, подсветка рабочей зоны — это не только удобство, но и безопасность, так как на кухне мы постоянно работаем с ножами.
В-третьих, подсветка обеденной группы.
Последнее — на ваше усмотрение, но светильник над столом создает уют и расслабленную атмосферу. Если есть барная стойка, над ней можно повесить несколько осветительных приборов на длинных шнурах. Главное — разместить их на равных расстояниях друг от друга.

4. Мощность освещения в санузле зависит от его площади
Есть одно главное правило в планировании освещения санузла: если он совмещенный, нужно делать несколько разных типов светильников. Запланируйте потолочный свет, подсветку в зоне раковины, можно также разделить свет в зоне туалета и ванны (душевой).


Если санузел раздельный, то в маленьком туалете вполне можно обойтись только потолочным освещением, но хорошей мощности.
5. В прихожей нужен мощный свет
Прихожая в квартире — зона без естественного освещения, и это приходится компенсировать с помощью искусственного света. Специалисты рекомендуют предусмотреть несколько вариантов освещения.Общее потолочное — должно быть достаточно ярким и мощным. Также можно разместить небольшую лампу, например, на входе — будет удобно, когда понадобится включить свет вечером и не разбудить им домочадцев.


6. Устанавливайте по светильнику 20 Вт на 1 кв.м. потолка
Специалисты рекомендуют считать оптимальный уровень освещения по этому правилу. Заранее сделайте схему, по которой вы будете располагать светильники и просчитайте их количество.

7. Выбирайте тип освещения в зависимости от размера комнаты
В интерьере небольшой комнаты лучше использовать маленькие светильники. А также способы, которые помогут визуально увеличить пространство. Например, подсветку карниза, бра на стене, рассеянный свет. Можно усилить эффект увеличения комнаты с помощью зеркала на стене. А еще эти приемы работают лучше вместе со светлой отделкой стен, которая хорошо отражает свет.

8. Если не знаете, какие лампы выбрать — выбирайте споты
Точечные светильники сегодня применяют не только для освещения, но и для декора интерьера. Ведь их можно закрепить на любой поверхности — как горизонтальной, так и вертикальной.

9. Следуйте последним модным тенденциям — выбирайте светодиодную подсветку
Один из модных трендов в дизайне — светодиоды. Они на самом деле открывают большие возможности для экспериментов с освещением и к тому же намного эффективнее привычных осветительных приборов. Так, например, LED-светильники помогают экономить электроэнергию, и отличаются долгим сроком службы — до 25 лет. Еще одно преимущество, за которое их любят дизайнеры жилых комнат — они излучают свет, максимально близкий к естественному.

10. Учитывайте психологический аспект
Это действительно важный фактор при планировании освещения в доме. На эмоциональное состояние человека влияет температура ламп: «холодная» или «теплая». Доказано, что выбор температуры определяет восприятия интерьера комнаты и влияет на биоритмы людей, которые в ней находятся.
Так, в рабочей зоне нужен холодный свет — он помогает сконцентрировать внимание. А в спальне, наоборот, теплый — он способствует релаксу.
11. Выбирайте правильный тип ламп
Попробуйте просчитать количество люксов для конкретного помещения или закажите проект освещения, а так же не забывайте о нескольких сценариях освещения для помещения.
Сравнительные таблицы помогут сделать правильный выбор освещения.

Какие дизайнерские решения могут визуально расширить пространство в малогабаритной квартире
Нельзя начать ремонт двухкомнатной квартиры хрущевки без понимания ее особенностей.
Кухня с небольшим метражом (5–6 метров).
Низкие потолки.
Одна из комнат – проходная.
Санузел и ванна совмещенные, при этом у комнаты небольшой метраж, который не позволяет смонтировать стандартную ванную.
Если отдельная кладовка.
Если квартира расположена не на первом этаже – есть балкон или лоджия.
Еще две грустные особенности «хрущевок» – очень малый метраж прихожей и плохая шумоизоляция. Впрочем, практически все недостатки квартиры можно нивелировать современным ремонтом.

Скажем еще пару слов об особенностях планировок в домах разных серий, а потом дадим рекомендации по улучшению ситуации.
Метражи и особенности планировки двухкомнатных хрущевок
Встречаются разные варианты планировок:
«Книжки». Квартиры этой планировки имеют площадь в 42–43 м2. Их главная особенность – кухня, спальня и гостиная идут друг за другом. Проходная комната должна выполнять роль столовой. Если семья больше двух человек, придется в ней же спать, что очень неудобно. Жирный минус такой планировки – проходная комната останется проходной, как бы и что вы ни запланировали. Самый распространенный вариант изменения в такой комнате – снос перегородок между кухней и столовой (комната превращается в уверенную студию).

«Трамваи» (они же «Павровозики») – квартиры с метражом в 47 метров. В такой планировке две спальные комнаты располагаются смежно. При этом одна из них угловая, а вторая – проходная. Чаще всего при такой планировке «отрезается» часть проходной комнаты, достраивается стена и создается своеобразный коридор (в котором дополнительно размещают системы хранения вещей).

«Бабочки» (они же «Распашонки») – квартиры с метражом в 46 м2. Сразу за прихожей размещается кухня и санузел, комнаты располагаются по бокам. Достаточно удобный вариант, главный минус – санузел находится практически на кухне.

Неважно, какая именно планировка у вашей квартиры – с помощью продуманного ремонта ее можно превратить в дом вашей мечты.
Комплексный ремонт квартир под ключ
Всё включено
В стоимость ремонта входит всё: работы, материалы, документы.
Без вашего участия
После согласования проекта мы беспокоим хозяев только при сдаче ремонта.
Цена известна заранее
Стоимость ремонта фиксируется в договоре.
Фиксированный срок ремонта
Ремонт квартиры под ключ за 3,5 месяца. Срок закреплен в договоре.
Как выбрать цветовую гамму для стен и мебели в двухкомнатной хрущевке

В дизайне интерьера каждый элемент играет роль. Однако, текстуры – это тайный ингредиент, который превращает обычное пространство в произведение искусства. Planirovki.by мастерски использует текстуры для придания глубины, характера и визуального интереса каждому проекту .
Важность текстуры в интерьере
Текстура в интерьере занимает центральное место в создании заданной атмосферы. Она может усилить или смягчить визуальное впечатление, улучшить звуковую изоляцию и придать неповторимый стиль. Текстурированные поверхности привлекают взгляд и призывают нас касаться и ощущать, тем самым усиливая связь человека с окружающим пространством.
Разнообразие и баланс
Мастера Planirovki.by знают, что ключ к удачной текстурной композиции – баланс. Слишком много разных или сильно текстурированных поверхностей могут создать хаос, в то время как правильно подобранное сочетание разнообразных текстур оживляет интерьер, не перегружая его.
"Теплые" и "холодные" текстуры

"Теплые" текстуры, такие как шерсть, мех, кожа и дерево, вносят в помещение ощущение комфорта и домашнего уюта. Они отражают натуральную эстетику и являются идеальными для создания расслабленной атмосферы. В то же время, "холодные" текстуры, такие как металл, стекло и камень, придают пространству современный и стильный вид.
Выбор материалов
Выбор правильных материалов имеет решающее значение. Мы акцентируем внимание на качестве и экотекстурах, используя натуральные и возобновляемые ресурсы, которые не только прекрасно выглядят, но и являются устойчивым выбором.
Вдохновение черпается из природы, адаптируется и интегрируется в современные интерьеры для создания пространства, которое будет восхищать вас годами.

В Planirovki.by каждый проект уникален. Мы тщательно подходим к выбору текстур, чтобы ваше пространство было не только эстетически привлекательным, но и функциональным. Позвольте нам создать дизайн-проект , который будет радовать вас каждый день, сочетая традиции и инновации.
Создание интерьеров с учетом текстур – это искусство, котороым наша команда владеет в совершенстве. Свяжитесь с нами сегодня, чтобы начать преобразование вашего дома с помощью текстур, которые рассказывают истории.
Итак, вплетение текстур в дизайн интерьера – это не просто тренд, это необходимость для тех, кто стремится к созданию живого, дышащего пространства. Познайте магию текстур с Planirovki.by.
Какие основные этапы планировки двухкомнатной квартиры с перепланировкой
Неузаконенная перепланировка или переустройство квартиры может остаться и незамеченной, однако стоит понимать, что продать такую квартиру в будущем будет сложнее: узаконить изменения все же придется или нужно будет найти покупателя, который согласится принять на себя ответственность за нарушения.
Приобретение квартиры с самовольно проведенными изменениями может усложняться отказом банка в предоставлении ипотечного кредита из-за несоответствия фактического плана помещения с данными в его техническом паспорте или данными Единого государственного реестра недвижимости. Банк может пренебречь перепланировкой или переустройством, если изменения незначительны, однако полагаться на такой исход событий не стоит. Кроме того, Росреестр может отказать в государственной регистрации права собственности нового покупателя на такую квартиру.
При обнаружении неузаконенной перепланировки или переустройства владельца недвижимости ожидает несколько вариантов развития событий.
Если узаконить изменения невозможно, собственник помещения обязан привести его в прежнее состояние в разумный срок и в порядке, которые установлены органом, осуществляющим согласование.
Если этого не произойдет, то суд по иску органа, осуществляющего согласование, может принять решение о продаже квартиры с публичных торгов.
Судом может быть принято решение о сохранении помещения в переустроенном и (или) перепланированном состоянии, если изменения не нарушают права и законные интересы граждан, не создают угрозу жизни и здоровью.