Варианты улучшения планировки в хрущевках. Демонтаж перегородки между кухней и комнатой.
- Варианты улучшения планировки в хрущевках. Демонтаж перегородки между кухней и комнатой.
- Перепланировка хрущевки 3 комнаты. Перепланировка 1-комнатной квартиры в хрущевке
- Хрущевка планировка с размерами. Планировка квартиры в хрущевке: планировка, зонирование, новинки дизайна, выбор мебели, идеи для отделки
- Перепланировка хрущевки 2 комнаты. Двухкомнатная хрущевка: 80+ фото, планировки, идеи дизайна
- Планировка хрущевки 2 комнаты 44 м. Дизайн 2х комнатной хрущевки: проекты, перепланировка, лучшие фото идеи дизайна
- Планировка хрущевки 5 этажей. Параметры кухонь
- Хрущевка планировка 1 комнатная. Планировки серий домов раннего строительства
- Хрущевка планировка 2 комнатная. Особенности 2-комнатной «хрущевки»
- Планировка хрущевки 3 комнаты. Типовые виды планировки хрущевок с тремя комнатами
Варианты улучшения планировки в хрущевках. Демонтаж перегородки между кухней и комнатой.
Более подробно о таком переустройстве кухонь Вы можете прочесть здесь .
Как видно из всего перечисленного, перепланировка и ремонт хрущевки относятся к достаточно сложным мероприятиям, требующим тщательного планирования и проработки планировки. В целом, к сожалению, такие квартиры, прежде всего из-за своей маленькой площади, дают мало простора для реализации дизайнерской мысли. Безусловно, перепланировка трёхкомнатной хрущевки или перепланировка четырехкомнатной хрущевки в этом плане предоставляют гораздо больше вариантов планировки, чем перепланировка хрущевки с одной или двумя комнатами, что, в общем-то, логично.
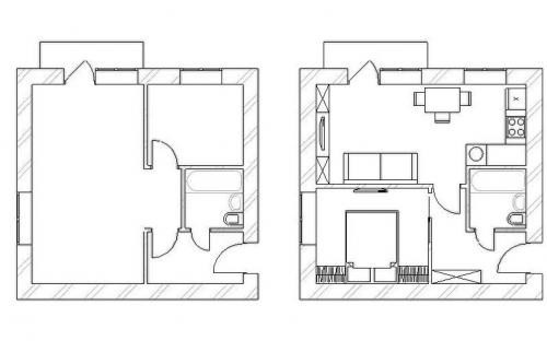
Ниже мы решили привести идеи и варианты перепланировки хрущевки , которые были успешно согласованы и на которые были получены соответствующие разрешения (это подтверждается наличием на листе из проекта соответствующего штампа жилищной инспекции). Возможно, некоторые из них совпадают с планировками Ваших квартир, позволят составить мнение о допустимости того или иного переустройства, а, может быть, даже подкинут какую-нибудь стоящую идею к преобразованию Вашей квартиры. На каждой картинке представлен согласованный план перепланировки хрущевки из соответствующего проекта с отметкой демонтируемых и возводимых перегородок. Либо план квартиры до и после переустройства. Демонтируемые перегородки отмечены пунктиром, а возводимые закрашены сплошным цветом. Также советуем Вам прочесть статью о том, как узаконить перепланировку квартиры .
Перепланировка хрущевки 3 комнаты. Перепланировка 1-комнатной квартиры в хрущевке
Перепланировка однокомнатной квартиры в хрущевке подразумевает два варианта – либо мы находим способы выкроить дополнительные квадратные метры и делаем пространство максимально свободным, либо делим одну комнату на две. Нередко перепланировка затрагивает балконы и лоджии, присоединяя их к общей полезной площади. В таком случае необходимо буде позаботиться об их дополнительном утеплении.
Проект 1
На сегодняшний день немалой популярностью пользуются квартиры-студии, где отсутствуют практически все внутренние перегородки, за исключением тех, что отделяют санузел. В хрущевках воплотить такой проект проще, чем в панельных домах, так как несущими являются лишь стены по периметру квартиры. В результате демонтажа всех внутренних стен (кроме санузла) получается довольно большое пространство, где с помощью зонирования размещают отдельные функциональные островки. Рабочая зона кухни остается на прежнем месте, так как перенос коммуникаций не целесообразен, на территории комнаты размещаем зону отдыха, а обеденный комплекс можно установить на границе, где ранее находилась стена. По желанию хозяев стену можно не полностью демонтировать, а лишь наполовину, при этом нижняя часть, после проведения отделочных работ, превратиться в барную стойку или обеденный стол.




Проект 2
В данном случае владельцы нашли грамотный выход, как увеличить пространство гостиной и в то же время скрыть часть приватной территории от посторонних глаз. Здесь с помощью гипсокартонной перегородки отделили спальню, а остальное пространство комнаты объединили с кухней, демонтировав разделяющую их стену. Такие способы перепланировки встречаются нередко, по сути, однокомнатная квартира перестраивается в двухкомнатную. Можно также задействовать территорию балкона. Если нет желания или возможности присоединить его к территории квартиры, достаточно застеклить, утеплить стены и сделать эксплуатируемой территорией, установив, например, шкаф или рабочий стол.





Хрущевка планировка с размерами. Планировка квартиры в хрущевке: планировка, зонирование, новинки дизайна, выбор мебели, идеи для отделки
В любом городе России и стран, ранее входивших в состав СССР, можно увидеть привычные глазу типовые панельные и кирпичные дома, называемые «хрущевками». Этажность этих строений варьируется от 2-х до 5-ти, а планировки квартир знакомы практически всем.

Особенности «хрущевок»
Строительство домов такого типа началось в 1958 году и продолжалось до 1985-го. На тот момент остро стоял вопрос об обеспечении жильем огромного количества людей по всей стране. Нужен был простой проект, способный в кратчайшие сроки решить эту проблему.
Дома с компактными квартирами возводились быстро и не требовали больших расходов. Впоследствии они были прозваны «хрущевками», так как строились во времена нахождения на посту главы государства Никиты Сергеевича Хрущева.
Квартиры в этих постройках отличались малым количеством квадратных метров, проходными комнатами, небольшой высотой потолков, совмещенными санузлами и безлифтовыми подъездами. Существовало несколько серий типовых планировок квартир в домах-хрущевках, выделяемых по:
- материалу стен;
- месту размещения кладовки;
- вариантам расположения комнат относительно гостиной;
- площади кухни и комнат.
Известно четыре серии типовых домов «хрущевского» типа:
- серия 1-464 (1960-1967 годы строительства);
- серия 1-335 (1963-1967 годы строительства);
- серия 1-434 (1958-1964 годы строительства);
- серия 1-434С (1958-1964 годы строительства).

Изначально дома такого типа считались временным жильем. Они возводились для быстрого решения жилищной проблемы и рассчитывались на эксплуатацию не более 25 лет. Позже срок был продлен до 50 лет и более.

На данный момент «хрущевки» столицы и Санкт-Петербурга идут под снос, но в других регионах они продолжают активно эксплуатироваться. Особо популярны здания из кирпича. Они имеют толстые стены, удобные холодильники под кухонным подоконником и вместительные кладовые.

Планировки квартир в кирпичных «хрущевках» легко подвергаются изменениям, превращая типовые квартиры в современное стильное жилье.

Достоинства и недостатки
При выборе квартир в домах «хрущевках» предпочтение отдается строениям из кирпича. За счет толстых стен они не нагреваются летом, что дает возможность экономить на кондиционерах, и не промерзают зимой. Небольшая площадь квартир легко прогревается чугунными радиаторами.
В отличие от современных монолитно-каркасных и панельных домов, кирпичные пятиэтажки имеют толстые несущие стены, что создает хорошую звукоизоляцию между квартирами. Качество вентиляции «хрущевок» тоже достаточно велико — из нижних квартир не поступают посторонние запахи.

Несмотря на типовые жилые помещения в таких домах, можно подобрать варианты на любой кошелек и вкус. На представленных фото планировок квартир «хрущевок» можно увидеть, что в пределах одного подъезда могут быть представлены и однокомнатные, и двухкомнатные, и трехкомнатные жилища.

Почти во всех квартирах предусмотрен балкон, который, при желании, можно превратить в дополнительное функциональное помещение.

Конструкция зданий предполагает хорошую устойчивость и прочность. Дома надежно стоят на любой почве и не боятся сейсмической активности.

Еще один плюс — квартиру «хрущевского» типа легко перестроить. Любые работы в плане перепланировки можно произвести в короткие сроки и недорого.
Существует немало интересных проектов изменения планировки однокомнатной квартиры в хрущевке и превращения ее в студию. Также есть варианты, при которых планировка двухкомнатной квартиры «хрущевки» превращается в проект современной евро-двушки.

Однако помимо достоинств жилища такого типа имеют и свои недостатки. К их числу относятся слишком низкие потолки, маленькие кухни и тесные прихожие. Чаще всего мебель для этих помещений приходится изготавливать на заказ. Санузел всегда совмещенный, но благодаря этому — достаточно просторный, позволяющий установить стиральную машину.

Гостиная в «хрущевке» всегда проходная, поэтому не может быть превращена в спальню или детскую.
Дизайнерские решения для лучшего обустройства
Несмотря на некоторые минусы планировок, «хрущевки» продолжают привлекать внимание покупателей — при умелом обустройстве эти квартиры могут превратиться в уютное и комфортное жилье. Грамотно оформленный дизайн планировок квартир в хрущевках и правильно подобранная мебель способны значительно преобразить типовые варианты:
- современный минималистский стиль позволит не загромождать площадь;
- предпочтение, отданное многофункциональной мебели даст возможность иметь все необходимое, не перегружая комнаты;
- глянцевый натяжной потолок добавит высоты;

Душевая кабина вместо ванны зрительно увеличит высоту потолка и освободит место под стиральную машину или мебель. Хорошо экономят площадь угловые модели раковин или ванн.
Перепланировка хрущевки 2 комнаты. Двухкомнатная хрущевка: 80+ фото, планировки, идеи дизайна

Планировка 2х комнатной хрущевки
Типовая хрущевка имеет очень маленькую кухню – 5-6 квадратов. Ещё одна особенность – невысокие потолки до 2,7 метров. Двушки без перепланировки зачастую бывают неудобны, особенно, если вторая комната проходная.
Стандартная площадь двухкомнатной хрущевки – около 43-44 кв метров. Дома пятиэтажные. В большинстве своем комнаты смежные, окна выходят на одну сторону (за исключением угловой квартиры с двумя окнами). В качестве достоинств хрущевки можно выделить наличие кладовки и балкона.
Рассмотрим самые распространенные типы планировок подробней.
Книжка
Такая планировка считается самой неудачной: проходная комната с широким дверным проемом играет роль столовой, а в семье с детьми – ещё и спальни. Уединенности в таком пространстве добиться трудно. Чтобы разделить помещения, придется пожертвовать частью комнаты. Без перегородок, на снос которых необходимо получить разрешение, хрущевку можно превратить в просторную студию.



На фото маленькая угловая кухня со встроенным холодильником и столом, вписанным в подоконник.
Трамвайчик
Такое народное название (также употребляется слово «паровозик») планировка получила за расположенные друг за другом комнаты, напоминающие вагоны. Гостиная с балконом является проходной, но переделка решает эту проблему: если отсечь часть комнаты и превратить ее в коридор с двумя входами, в получившейся нише можно организовать систему хранения.



На фото комната в кремовых тонах с акцентной стеной в телевизионной зоне.
Планировка хрущевки 2 комнаты 44 м. Дизайн 2х комнатной хрущевки: проекты, перепланировка, лучшие фото идеи дизайна
Миллионы людей живут в малогабаритных квартирах с типовой планировкой. Мечтая о современном и удобном жилье, одни владельцы задумываются о переезде. Другие же устраивают ремонт в хрущевке 2-х комнатной, фото которой после проведенных работ едва ли выдает время постройки дома. Благодаря огромному ассортименту строительных материалов и безграничным вариациям готовых дизайнерских решений, сегодня можно реализовать любые желания. Главное не пренебрегать советами специалистов.

Хрущевки — первые многоэтажные дома массовой застройки. Во времена СССР квартиры в них раздавали практически бесплатно, что решило вопрос острой нехватки жилья. Небольшая площадь, проходные комнаты, неудобное расположение дверей отличает их от “сталинок” и других домов. Есть и другие, не менее значимые недостатки: низкая шумоизоляция, невысокие потолки, маленькие прихожая и кухня, отсутствие балкона на первом этаже. На нынешнем рынке такая недвижимость мало ценится.

Несмотря на очевидные минусы, плюсы здесь тоже есть. В каждом жилище времен Хрущева Н. С. предусмотрены кладовки. Санузел обычно совмещен, что экономит место. А варианты дизайна таких помещений безграничны. Зачем покупать типовую мебель и жертвовать большой ванной, если даже в советской двушке реально осуществить любые идеи?


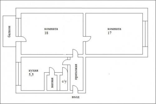
Планировка хрущевок, состоящих из 2 комнат, бывает 4 видов:
Трамвай | около 47 кв. м | Две комнаты в такой квартире имеют одну, смежную стену. Гостиная обычно угловая. |
Бабочка | 46 кв. м | Кухня располагается между двумя комнатами. |

“Книжка” достаточно неудобная, как в первоначальном виде, так и в измененном. Так как комнаты следуют друг за другом, сделать радикальное перепроектирование помещения невозможно.

Объединение комнат
При входе в дом первое, что бросается в глаза — прихожая. В хрущёвке она маленькая, узкая и темная. Если увеличить дверной проем в комнате, коридор станет светлее и визуально больше. С этого обычно и начинается составление плана ремонта 2-комнатной квартиры. Что касается радикального сноса стен, чаще всего объединяют:
- Кухню и зал. На месте убранной стены устанавливается барная стойка или стол с мягким диваном.
- Зал и спальню. Подходит для семьи без детей. При наличии ребенка детская в хрущевке оформляется путем зонирования помещения.
- Зал и кабинет. Для создания рабочего пространства подойдет стеллаж или мобильные ширмы. Иногда дизайнеры используют невысокий подиум.
- Спальню и кабинет. Комната разделяется на 2 функциональные зоны, стол для работы ставится около окна.

Зонирование
Перестройка малогабаритной квартиры 40 кв. м или другой площади не обходится без зонирования. Каждому члену семьи необходима личная зона в квартире. При этом нельзя уменьшать и без того маленький размер кухни. Рабочее место должно быть вместительным. Для разделения разных участков используются:
- гипсокартонные фальшстены;
- передвижные перегородки;
- занавески, шторы;
- диваны, шкафы, другие предметы мебели;
- разноуровневые потолок и пол.

Раздвижные двери — лучшая альтернатива распашным. Они удобны в обращении и стильно смотрятся.

Отделка
Эффективным способом зрительного увеличения пространства любой дизайнер назовет использование светлых оттенков. Но это утверждение нельзя воспринимать буквально, иначе ремонт в 2х комнатной хрущевке по фото будет напоминать больничную палату. То же касается и 1х, 3х комнатных квартир. Удачное сочетание цветов приведет к успешному обновлению интерьера.

Полы
Единственное строгое требование к выбору напольного покрытия — табу на темные оттенки. В домах небольшого размера пол является фоном для других предметов и не должен привлекать внимание. Лучшие цвета: серый, бежевый, молочный. Также уместна имитация фактуры дерева или сам натуральный материал. Ламинат, паркетная доска, линолеум, ковролин, плитка — любое покрытие эффектно дополнит дизайн, если учтены требования к цвету.
Потолки
Чем ярче освещение в маленькой комнате, тем лучше. В дополнение к люстре рекомендованы точечные светильники, расположенные по периметру. Скрыть все неровности и дефекты на потолке поможет натяжной вариант. Не менее выгодно смотрится многоуровневый верх.
Стены
Прежде чем приступить к отделке стен, в 9 случаях из 10 их придется выровнять. В панельных домах, как и кирпичных, разница в высоте или наклоне разных стен достигает 2-3 см. Даже если кривизна не бросается в глаза, она создаст большие проблемы при ремонтных работах. Поверхность выравнивается шпаклевкой или гипсокартоном. По окончании подготовки комната оформляется обоями, например:
- флизелиновыми, виниловыми, акриловыми с вертикальным рисунком;
- фотообоями с городским пейзажем или природой;
- жидкими бесшовными обоями.
Цвет стен должен гармонировать с задуманным дизайном хрущевки, состоящей из 2 комнат. Правило “чем выше цена, тем лучше” работает не всегда. Даже самая дорогая шелкография подходит далеко не к каждому интерьеру.
Планировка хрущевки 5 этажей. Параметры кухонь
Несмотря на то, что есть разные типы планировки квартир в 5 этажном доме, кухонное пространство в них всегда строили по общему принципу. Чтобы убедиться в этом, достаточно посмотреть на любой план хрущевки. Размер кухни в хрущевке и ее метраж здесь не первостепенен. Планировка 3 –шки с 5- или в 6-метровым кухонным пространством предусматривала установку плиты с правой либо с левой стороны от окна (место зависело от того, как расположен пятиэтажный дом).
Это условие было обязательным для соблюдения правил пожаробезопасности в 5 этажном доме, поскольку через окно огонь лучше видно с улицы. Возле плиты ставили газовую колонку, а в углу – раковину. Такое размещение связано с близким расположением ванной. Каковые размеры кухни в хрущевке? Сколько квадратных метров для хозяек выделили советские архитекторы? Чаще всего, эти значения составляли от 5,1 и до 6,8 м².
При этом в сталинках минимальные показатели были от 7 м². Например, в серии 1-464, построенной с 1960 по 1967 гг., метраж равен 5,8 м². Такие же цифры были и в 1-434 (период возведения – с 1958 по 1964 гг.).
При этом в 1960 г. в данной серии архитекторы предусмотрели кухни по 6,2 м², а в 1964 г. вернулись к предыдущему значению. По стандарту для 1-335 (1963-1967 гг.) определили площадь 6,2 м². При строительстве 1-434C (с 1958 по 1964 гг.) метраж достигал 5,2-6,1 м². Иными словами, в разные периоды разница не была значительной, и колебалась в пределах квадратного метра. И на это не оказывало влияние месторасположение жилья. Так, размер кухни в хрущевке, которая была в угловой части строения, был равен метражу той, что находилась в середине. Есть современное жилье, схожее с хрущевским по типу постройки, где площадь достигает от 7 м². Но эти параметры нетипичны для стандартной жилплощади такого типа.
Кроме того, при застройке предполагалось, что должно оставаться место для небольшого столика и шкафа-буфета, в котором хранится посуда, сервиз, бакалея и прочие мелочи. Других предметов мебели здесь не предусматривали. Поэтому пространство в панельных, кирпичных или комбинированных домах в наше время кажется настолько непрактичным. Но для того периода советской эпохи строительство так называемых хрущеб было настоящим прорывом, поскольку в них заселялись те, кто раньше жил в коммуналках с общим санузлом, а также люди, которые переезжали в города из сел и деревень. Наличие удобств, водопровода, системы центрального отопления и электричества кардинально изменило бытовые условия для граждан СССР.
Хрущевка планировка 1 комнатная. Планировки серий домов раннего строительства
Итак, какие же разновидности малометражек существовали в Советском Союзе и существуют по сей день? Первая, и самая популярная серия жилья возводилась под номером 1-464. Все квартиры этой серии оборудованы балконами и небольшими кладовыми, но в подъездах отсутствует лифт и мусоропровод. В таких домах были двухкомнатные, трехкомнатные и однокомнатные квартиры. На площадке четыре двери. Начиная с 1963 года на протяжении четырех лет активно строились малометражки серии 1-335. Здесьуже больше на 4 см, а размер столовой зоны достигает 6,2 квадрата. Даже планировка 1-комнатной хрущевки этой серии предполагает наличие. На площадку выходят четыре двери, максимальный размер — трешки. Четырехкомнатных квартир в типовых домах не было.
Хрущевка планировка 2 комнатная. Особенности 2-комнатной «хрущевки»
Узнать «хрущевку» можно по широким квадратным окнам, проходным комнатам, маленьким кухонькам. Совмещенный санузел – еще одна типовая деталь в плане-проекте таких квартир. Стандартная ванна в таком маленьком санузле даже поместиться не могла. Многие квартиры обустроены балконом и кладовкой.
Двухкомнатная «хрущевка» – очень компактная квартира. В новостройках даже «однушки» современной планировки располагают схожей площадью (40-45 кв. м) и даже больше. «Хрущевка» максимально имеет метраж в 46 квадратов, если это «двушка», но благодаря компактности зон тем не менее на них можно удобно разместить все. Просто от стандартных схем порой выгоднее отклониться, поискав новые решения.
Иногда это глобальная перепланировка, которая предполагает изменение геометрии квартиры. Естественно, чтобы не пострадали несущие стены, перепланировку требуется узаконить в соответствующих инстанциях.
Существует несколько вариантов стандартной планировки.
- «Книжка». Так принято называть квартиру, в которой комнаты идут друг за другом последовательно. Общий метраж такого жилища 42-43 квадрата.
- «Трамвай». А это «двушка», площадь которой 47 квадратов, комнаты в ней смежные, одна из них угловая.
- Улучшенная. Данная планировка не предполагает проходной комнаты, более того, в ней даже есть нетипичный для «хрущевки» раздельный санузел. Правда, кухня в таком жилище крошечная.
- «Бабочка» . В такой квартире кухня находится посередине, а по краям – жилые комнаты. Раздельный санузел тоже является выгодной стороной данной планировки.
Сказать, какая из этих планировок удобнее для перестройки, точно нельзя. Например, в «книжке» смежные комнаты легко объединить в одну (если это задумано), и тогда жилище превратится в полноправную студию. В любом случае подумать есть над чем.
Источник: https://proremont-dom.ru/stati/dvushka-v-hrushchevke-planirovka-i-dizayn-osobennosti-planirovki
Планировка хрущевки 3 комнаты. Типовые виды планировки хрущевок с тремя комнатами
То, каким будет проект перепланировки 3-комнатной хрущевки, зависит от ее исходного вида – характера расположения комнат и других помещений. В типовых домах встречается жилье, в котором одна большая и две маленькие комнаты, а также и такое, в котором все жилые помещения примерно равны по площади. Варианты, когда все комнаты полностью разделены и имеют отдельные входы, бывают очень редко и в основном в хрущевках самого позднего поколения.
Чаще всего встречаются такие типы планировки хрущевок с тремя комнатами:
Трамвай
Такая жилплощадь переоборудуется чаще всего, поскольку ее жилые помещения расположены симметрично и достаточно отдалены от входа. Трехкомнатная квартира в хрущевской пятиэтажке подобного типа имеет просторное общее помещение, являющееся проходным. Его площадь колеблется в пределах от 18 до 20 квадратных метров. Из него имеются входы в две разделенные кладовыми спальни, каждая из которых насчитывает от 8 до 11 квадратных метров.
Коридора как такового между комнатами нет – его своеобразной заменой служит просторный зал. Кухня в квартирах-“трамваях” отличается очень скромными размерами, а санузел, как правило, отделен от ванной.
Распашонка
Планировку такой квартиры лишь условно можно назвать удобной. Она очень сильно напоминает двухкомнатные хрущевки с аналогичным названием, в которых отдаленная от входа комната была разделена перегородкой и превращена в две отдельные.
Распашонка в общих чертах похожа на “трамвай”, за исключением того, что между спальнями отсутствуют кладовки, и они разделены только стеной. Самая большая комната, из которой есть выход на балкон – полностью проходная. Санузел также разделен, а кухня довольно тесная.
Книжка
Этот вариант плана 3-комнатной квартиры хрущевки считается самым неудобным и почти всегда перестраивается, но в это же время располагает множеством вариантов для реконструкции. Из явных минусов – все окна такого жилища выходят только на одну сторону дома. Если она окажется северной, жильцы рискуют столкнуться с целой чередой неудобств.
Из плюсов – здесь не одна, а целых две комнаты с выходом в общий коридор, наибольшая из которых – проходная. Жилые помещения также неоднородны по размеру – более крупная спальня и проходной зал имеют по 13-17 квадратных метров, тогда как меньшая – всего 8 или 9.
Кухня по площади лишь незначительно крупнее той же квартиры-“трамвая” и не дотягивает даже до 6 квадратных метров. Еще одно преимущество “книжки” – слегка удлиненный коридор, что достигается уменьшением площади одной из спален.
Хрущевка улучшенной планировки
Такие квартиры встречаются очень редко и только в домах, представляющих собой хрущевки последнего поколения. Обе спальни в них примерно равны по площади и просторны, насколько это вообще возможно в этом типе строений. Третья комната, как и в прежних видах планировки, больше, но уже не проходная.
Все жилые помещения, образующие условный полукруг, выходят в общий коридор. Кухня в хрущевках-“улучшенках” слегка расширена и достигает 6 квадратных метров.