Как сделать антресоль в коридоре своими руками в хрущёвке. Что предпочесть: готовую антресоль или сделать ее своими руками?
- Как сделать антресоль в коридоре своими руками в хрущёвке. Что предпочесть: готовую антресоль или сделать ее своими руками?
- Антресоль своими руками пошаговая инструкция. Как сделать антресоль в коридоре своими руками в хрущёвке.
- Двери для антресоли своими руками. Основные этапы создания стационарной антресоли
- Антресоль между кухней и коридором. Как можно переделать старую антресоль между кухней и коридором
- Антресоль в коридоре хрущевке. 5 причин почему не стоит сносить антресоли в хрущевке
- Антресоль на шкаф своими руками. Как сделать антресоль своими руками?
- Антресоль на балконе своими руками. Как красиво сделать шкаф на балкон (лоджию) своими руками: инструкция с фото
- Антресоли в коридоре на заказ. Антресоль в коридор на заказ! Узнайте цену в Санкт-Петербурге!
Как сделать антресоль в коридоре своими руками в хрущёвке. Что предпочесть: готовую антресоль или сделать ее своими руками?
Для начала следует позаботиться о приобретении материала, из которого будет изготовлена антресоль.
Это может быть:
- массив дерева. Этот материал не содержит вредных примесей, долог и легок в эксплуатации и монтаже. К минусам можно отнести: высокая стоимость, при перепадах температуры, способен подвергаться деформации;
- гипсокартон. Преимущества его использования – низкая цена, не реагирует на резкие перепады температурных режимов, обладает звукоизолирующими свойствами, пластичный, а с монтажом справится даже новичок, ничего не смыслящий в строительстве. Недостатки: может немного уменьшить объемы помещения;
- ДСП и МДФ. Имеют невысокую стоимость, не реагируют на повышенную влажность, благодаря ровной и гладкой поверхности, монтаж не доставляет проблем. Если говорить о недостатках, к ним можно отнести: если на плите появятся повреждения, заделать их невозможно.
Сделать антресоль в коридоре можно самостоятельно, главное – ознакомиться с инструкцией и советами специалистов
При желании можно с легкостью скомбинировать искусственный материал и массив дерева. К примеру, если внешнюю часть конструкции сделать из дерева, а для внутренней – использовать гипсокартон, МДФ или ДСП, может получится прекрасное изделие, не уступающее обычной мебели по внешнему виду.
После того, как чертеж готов, нужно сделать разметки на выбранном материале. Изготовление разметок требует серьёзного подхода, очень важно, чтобы в процессе нанесения чертежа на материал, отходов было, как можно меньше. Таким образом, его можно сэкономить для дальнейшего использования.
Для изготовления внутренних полочек можно использовать как ДСП, так и гипсокартон, они великолепно для этого подходят.
Варианты крепления:
- Деревянные брусья. Этот вариант великолепно подойдет монтажа антресоли между двух стен.
- Металлические профиля.
Все детали конструкции скрепляются саморезами.
- Изучить необходимое место в помещении на наличие проводки. Пригодится в этом случае специальный детектор/индикаторная отвертка, в ином случае рассмотреть область стены над выключателем.
- Определиться с выбором типа антресоли (с дверцами или без). Второй тип, безусловно, сэкономит время и материалы.
- Разметка нижней панели и стенок шкафчика с измерением высоты антресоли.
- Используя дрель (перфоратор), сделать отверстия для нижней части конструкции.
- С помощью строительного уровня установить алюминиевые направляющие.
- Подобрать необходимый материал (фанера или доска), и сделать днище. Хрущевка славится своими неровностями в стене, поэтому этот фактор необходимо учитывать при подборки планочек.
- Нижнюю конструкцию выставить на уголки, а планочки закрепить подходящими саморезами.
- Произвести отделку антресоли с использованием современных материалов (лак, краска, пластик).
- Далее сделать дверную коробку, изготовив ее из узких планочек.

- Сделанную коробку прикрепить к стенам.
- С помощью рояльных петель прикрепить дверцы. Выбрать дверцы можно при наличии различных вариантов: раздвижные (купе) либо обычные – распашные. Материал для дверей можно использовать в качестве декора. Здесь отличным помощником станут листы ДСП, МДФ или кусочки пластика.

Антресоль своими руками пошаговая инструкция. Как сделать антресоль в коридоре своими руками в хрущёвке.
Владельцы квартир небольшого размера в домах старого образца, построенные в далекие советские годы, с известным названием хрущевка, делая ремонт, сталкиваются с проблемой очень узких коридоров. Сделав антресоль в коридоре своими руками, настоящий хозяин сможет превратить недостаток малой площади в создание дополнительного места для различных вещей и экономии общего пространства. Главная задача состоит в построении грамотной и правильной конструкции, которая не будет визуально опускать потолок в помещении и не создаст неудобств своим жителям. Также можно покрасить антресоль в цвет потолка, что создаст иллюзию совпадения.
Следует отметить, что антресоль в коридоре своими руками – это выгодное предложение для людей умеющих экономить свой бюджет. Ведь купить дополнительную мебель в квартиру хорошего качества сегодня достаточно дорого.
Итак, антресоль представляет собой небольшой шкафчик, расположенный под потолком. В состав конструкции входит:
- Полочка – днище (ширина — не менее 30 см);
- Дверцы

Чтобы антресоль гармонично смотрелась в коридоре, необходимо расположить ее в удобном месте. Идеальным вариантом при ремонте станет антресоль, сконструированная над дверью.

Виды антресолей подразделяются на:
- Простые;
- Угловые (треугольная форма).
Рассмотрим пошаговую инструкцию по строительству антресоли в коридоре, сделанную своими руками. Для всего процесса потребуются строительные инструменты: дрель, уровень, деревянные бруски размером 40х40 мм, кронштейны/металлические уголки, саморезы и материал для шкафчика.
Пошаговое руководство как сделать антресоль в коридоре своими руками:
- Изучить необходимое место в помещении на наличие проводки. Пригодится в этом случае специальный детектор/индикаторная отвертка, в ином случае рассмотреть область стены над выключателем.
- Определиться с выбором типа антресоли (с дверцами или без). Второй тип, безусловно, сэкономит время и материалы.
- Разметка нижней панели и стенок шкафчика с измерением высоты антресоли.
- Используя дрель (перфоратор), сделать отверстия для нижней части конструкции.
- С помощью строительного уровня установить алюминиевые направляющие.
- Подобрать необходимый материал (фанера или доска), и сделать днище. Хрущевка славится своими неровностями в стене, поэтому этот фактор необходимо учитывать при подборки планочек.
- Нижнюю конструкцию выставить на уголки, а планочки закрепить подходящими саморезами.

- Произвести отделку антресоли с использованием современных материалов (лак, краска, пластик).
- Далее сделать дверную коробку, изготовив ее из узких планочек.

- Сделанную коробку прикрепить к стенам.
- С помощью рояльных петель прикрепить дверцы. Выбрать дверцы можно при наличии различных вариантов: раздвижные (купе) либо обычные – распашные. Материал для дверей можно использовать в качестве декора. Здесь отличным помощником станут листы ДСП, МДФ или кусочки пластика.

Такой незамысловатый способ позволит сделать узкий коридор в хрущевке удобным и интересным. Содержимое в антресоли может быть различного веса и размера, главное продумать все заранее.
Двери для антресоли своими руками. Основные этапы создания стационарной антресоли
- Первым делом подготовьте необходимый материал и определитесь с размером будущей надстройки.
- После этого можно приступать к созданию чертежа. Рассчитайте длину и ширину мебельных щитов и распределите их таким образом, чтобы у вас осталось как можно меньше отходов. Внутри будут размещаться полки, а по бокам – металлические уголки для укрепления конструкции.
- Согласно чертежу, размечаем на материале отдельные детали и вырезаем их при помощи лобзика или циркулярной пилы.
- Каждый отдельный элемент фасада антресоли обрабатываем фрезерным станком. Особое внимание уделите дверкам.
- Изготавливаем внутренние полки изделия из ДСП или гипсокартона. Их толщина должна быть достаточной, чтобы выдержать вес вещей, которые вы планируете положить в антресоль.
- Соединяем все детали конструкции при помощи саморезов. На задней панели закрепляем металлические «ушки», которые необходимы для крепления антресоли.
Дверцы изделия могут быть раздвижными или распашными. В качестве декора используйте самоклейку, шпон, лакокрасочное покрытие. Если не уверены в своих дизайнерских возможностях, можете сделать антресоль самостоятельно, а в мастерской заказать изготовление декоративных дверок, которые будут гармонично дополнять интерьер комнаты.
Варианты крепления изделия
Существует два наиболее распространённых способа надёжного крепления стационарной антресоли:
- Использование деревянных брусов. Для этого вам понадобятся брусочки с просверлёнными отверстиями через каждые 25 см. Используйте строительный уровень, чтобы прочертить на стене идеально ровную линию. Прикладываем к ней деревянные элементы и делаем отметку в каждом отверстии. При помощи дрели делаем ямки глубиной 60 мм, и в каждую вставляем пластиковые дюбеля. После этого можно смело крепить рейку надёжными саморезами. Этот способ крепления подходит для установки антресоли между двумя стенами.
- Использование металлического профиля. Для таких работ вам понадобится потолочный профиль ПН 28х27мм, который нужно закрепить по периметру нижней части изделия. Из ПП 60х27 мм делаем поперечины. Нижняя часть такого каркаса обязательно обшивается гипсокартоном, а сверху выполняется настил из прочного листа фанеры. Конструкция должна быть достаточно жёсткой, чтобы выдержать вес антресоли с вещами и не прогнуться.
Воспользуйтесь советами профессионалов, чтобы правильно и точно выполнить крепление конструкции.
Двери для антресоли своими руками. Основные этапы создания стационарной антресоли
Дверцы изделия могут быть раздвижными или распашными. В качестве декора используйте самоклейку, шпон, лакокрасочное покрытие. Если не уверены в своих дизайнерских возможностях, можете сделать антресоль самостоятельно, а в мастерской заказать изготовление декоративных дверок, которые будут гармонично дополнять интерьер комнаты.
Существует два наиболее распространённых способа надёжного крепления стационарной антресоли:
Воспользуйтесь советами профессионалов, чтобы правильно и точно выполнить крепление конструкции.
- Нижняя часть полки должна находиться на высоте не менее 2 метров. Все оставшееся до потолка пространство можно занять вещами.
- Если вы крепите конструкцию над входной дверью, следите за тем, чтобы низ был выставлен по верху дверного проёма. Так антресоль будет выглядеть гармоничнее.
- Между верхом изделия и потолком не должно оставаться свободного пространства. Эта зона вам никак не пригодится и будет только собирать пыль.
- Не крепите антресоль в непосредственной близости к источнику света, если не хотите затемнить помещение.
Антресоль между кухней и коридором. Как можно переделать старую антресоль между кухней и коридором
Планировка большинства старых квартир включает в себя антресоль, размещенную под потолком между кухней и коридором. Это совершенно привычная для большинства вещь, которая является очень удобным местом для хранения кухонной техники и консервации.
Антресоль в коридоре
Капитальный ремонт квартиры ставит перед ее хозяевами серьезный вопрос: избавляться от антресоли или нет? Мы советуем ни в коем случае не лишать себя этого удобного дополнительного пространства.
Преимущества антресоли
- Большинство современных кухонь не отличаются большим размером . Существует множество небольших предметов, которые не нужны каждый день, однако им всё равно нужно место для хранения.
© Depositphotos - Полноценный шкафчик далеко не на каждой кухне может поместиться. А вот антресоль не занимает много места, хотя в ней зачастую располагается целая армия баночек, судочков для еды и даже твой любимый кухонный комбайн.
© Depositphotos - Пространство над дверью в любом случае будет пустовать. А вот другие части кухни могут использоваться более продуктивно, потому не стоит их загромождать тумбочками и шкафчиками.
© Depositphotos
- Старую антресоль можно обновить так, что она отлично впишется в пространство современной кухни. Этот пункт будет особенно важен для всех, кто любит, чтобы их домашнее пространство было оформлено органично и сдержанно.
© Depositphotos - Переустановка или обновление старой антресоли — дело совсем несложное. Конструкция весьма проста в установке. Многие изготовители кухонной мебели берутся за изготовление антресоли в стиле всех остальных элементов кухонной мебели.
© Depositphotos
Если ты хочешь обновить антресоль в коридоре своими руками , смело берись за дело и не бойся никаких сложностей.
Для начала тебе нужно будет открепить всю конструкцию от потолка и оценить ее состояние. Это важно, если ты хочешь использовать материал, из которого была сделана антресоль первоначально.
Разбери конструкцию на составляющие. Если антресоль была сделана из настоящего качественного дерева, есть большая вероятность того, что оно хорошо сохранилось. В таком случае необходимо зашкурить поверхность и покрыть ее специальным защитным раствором.
Дверцы можно покрасить в тон стен, если ты планируешь сделать конструкцию незаметной. Также ты можешь заказать антресоли в коридор у мастера, который делал твой мебельный комплект. Таким образом антресоль красиво впишется в новую кухню.
Если же старый материал антресоли совсем не пригоден для эксплуатации, ты можешь по размерам старой антресоли вырезать новые части и установить их на прежнюю железную конструкцию.
Советуем позаботиться о сохранности своей новой антресоли заранее и застелить ее дно специальной пленкой или хотя бы куском старой клеенки.
Антресоль в коридоре хрущевке. 5 причин почему не стоит сносить антресоли в хрущевке

Привычные нам антресоли в квартирах в хрущевских домах на кухне или в прихожей – это своеобразный подвид встроенного шкафа.

Одни владельцы хрущевок считают, что такая кладовая – это очень удобно, а другие уверены, что такие сооружения только отнимают драгоценные площадь и простор и в без того тесных квартирках. Так что делать с антресолями в хрущевке, сносить или оставить и украсить?
Стоит ли согласовывать снос?
Антресоль – это просто встроенный шкаф, находящийся под потолком. Если при его сносе не будут задеты стены и потолок, то ничего согласовывать с БТИ не нужно. То же самое относится и к жилищной инспекции.

Можно не беспокоиться, снося встроенную кладовую, что у вас возникнут какие-либо проблемы из-за незаконной перепланировки квартиры. Но, прежде чем убрать такое удобное и вместительное хранилище, которое никому не мешает, следует хорошенько подумать.
Стоит ли оставлять антресоли?
Антресоли в хрущевских квартирах как раз и были сделаны ради экономии драгоценного места, ведь находятся они наверху и никому не мешают.

В маленькой квартире всегда возникает проблема хранения вещей, которые используются крайне редко, например, новогодней елки или старой обуви.
Такие конструкции помогут эффективно использовать свободное пространство под потолком и будут служить отличной кладовой.
На таких встроенных полках можно хранить все, что угодно, но многие владельцы хрущевок все же отказываются от них, аргументируя это тем, что тогда в квартире будут больше воздуха и простора.
Если вопрос, где хранить вещи у вас не возникает, то вполне можно отказаться от такой, по правде сказать, громоздкой конструкции, как антресоли в прихожей или над входом на кухню.

Если же сама мысль, что от полки можно отказаться для вас неприемлема, то нужно попытаться превратить дверцы шкафа в красивое дополнение к интерьеру вашего дома.
Если дверцы в шкафчик двухсторонние, то можно обклеить их пленкой или обоями в тон комнате, или украсить различными яркими стикерами. Односторонние дверцы часто перевешивают, чтобы удобнее было открывать кладовую.
Многие хозяева заказывают дверцы в такие кладовки из МДФ или ДСП. В этом случае антресоли будут выглядеть как лаконичное продолжение интерьера прихожей и не будут раздражать глаз.
В принципе, дверцы с кладовой вообще можно убрать, и в этом случае получится большая, очень вместительная полка, но все же многие предпочитают, чтобы шкафчик был закрыт.

В любом случае дверцы можно оформить как душе угодно. Можно даже заказать дверцы из яркого пластика.
Подключив немного воображения и фантазии такую неприглядную деталь интерьера, как кладовая под потолком можно превратить в яркое акцентное пятно в комнате.
С помощью дверец можно придать комнате современный и яркий вид. Главное – не переборщить, и добиться сочетания с общим интерьером квартиры.
Сносить верхние шкафчики в хрущевке или нет каждый решает для себя сам.
Но на самом деле такая кладовая под самым потолком – это удачное решение, чтобы складывать вещи, которые редко используются. А вы оставили такие кладовки в квартире?
Антресоль на шкаф своими руками. Как сделать антресоль своими руками?

Прихожие в квартирах советской постройки редко могли похвастать большим метражом. И количество шкафов на этой тесной территории было маленьким – особо не вместишь. Потому выручали антресоли , малозаметные конструкции, вместительность которых не переоценивают и сегодня. Отрадно, что антресоли сравнительно несложно сделать самостоятельно.
Выбор материалов
Антресоль – удобный, компактный с виду, утилитарный ящик. И делается он из разных материалов. Обычно используют МДФ и ДСП в силу доступности и дешевизны этих материалов. Если есть возможность, применяется и массив дерева, который по своему качеству выигрывает у двух вышеуказанных вариантов. Гипсокартон тоже используется, но по большому счету для внешней отделки. Из вагонки нередко делают обшивку ящика-антресоли.
Рассмотрим материалы, которые наиболее часто используются для изготовления антресольного ящика.
- ДСП . Хороший выбор материала по размерам и толщине, доступная стоимость, достаточный выбор оттенков ламинированного ДСП. Это значит, что материал не так сложно подобрать, чтобы он сочетался с мебелью в прихожей. Из минусов – смолы в составе ДСП, которые первое время могут источать не самый приятный запах. Стоит помнить, что материал боится влаги и при его самостоятельном распиле возрастает риск сколов.
- МДФ . Применяется внутри и снаружи ящика, в плане цветовой гаммы и по габаритам выбор велик, устойчив к влаге. Смолы в момент изготовления МДФ не применяются. Неприятного запаха не будет. Материал будет высокопрочным, он устойчив к механическим повреждениям. Можно рассчитывать на долгий срок службы. Но цена такого продукта выше, чем у ДСП, он тяжелее, распил придется заказать на производстве, ведь самостоятельно, без спецоборудования, справиться сложно.
- Массив . Это экоматериал, натуральный, хорошо поддающийся распилу и обработке. Можно рассчитывать на его многолетнюю службу. Но стоит он дорого, высокую влажность переносит не лучшим образом. Чересчур сухой воздух вызовет появление трещин. При температурных скачках может деформироваться.
- Гипсокартон . Стоит относительно дешево, к влаге и термоскачкам терпим, в манипуляциях и монтаже удобен. Легкий материал, но хрупкий, работать с ним надо осторожно. Для основания не подходит, используется исключительно для внешней отделки. Потребуется делать еще и лаги, которые станут поддержкой и основанием подпотолочного ящика.
Выбирая материал, нужно сразу продумывать, какой будет внешняя отделка ящика. Она должна гармонировать с интерьером помещения.
Инструменты и комплектующие
Изначально конструкцию нужно продумать, просчитать ее размеры, количество необходимого материала. Лучшим решением будет сделать чертеж ящика. Надо убедиться, что стены, которые будут держать ящик, действительно прочны и справятся с новой нагрузкой.
Из инструментов в работе пригодятся:
- уровень;
- рулетка;
- отвертка, а лучше – шуруповерт;
- перфоратор;
- лобзик;
- алюминиевый профиль;
- деревянный брус;
- дюбели, саморезы;
- карандаш;
- необходимая фурнитура, петли либо направляющие;
- возможно, будет использоваться антресольный кронштейн «клик-кляк».
К этому списку должны добавиться те предметы и средства, которые помогут декорировать антресоль.
Технология изготовления
Сначала надо определить место , где в прихожей (либо в другой точке квартиры) проходит электропроводка. Если этот момент упустить, в процессе монтажа можно задеть кабель, что обернется неприятными последствиями. Поможет найти проводку индикаторная отвертка или специальный искатель, который продается в любом крупном строймаркете.
Разметка и крепление опоры
- Используя рулетку и строительный уровень, нужно на стене в коридоре начертить линию, которая станет ориентиром. По ней будут монтироваться базовые крепления для упора антресоли.
- В роли крепления можно использовать или деревянный брус, или металлический уголок. В крепеже надо просверлить отверстие под саморез, используя шаг 15-20 см. Деталь прикладывается к линии, выставленной на стене, помечается через созданные отверстия на участках фиксации в стене.
- Теперь надо взять в руки дрель и проделать в стене отверстия, поставить туда дюбели с саморезами, закрепить к стене направляющие. Те же действия производятся по симметрии на стене параллельной, а также над самой дверью.
- Если ящик решено изготовить так, что он будет обшиваться гипсокартоном, из алюминиевого профиля делаются лаги к стенам. И тогда готовый каркас сразу можно закрепить, обшить гипсокартонными плитами или любым иным идентичным материалом, фанерой либо ДВП, а иногда даже и пластиковыми панелями.
- Когда опора сделана, сооружение все больше похоже на маленький ящик или шкаф. Собственно, это будет небольшой встроенный шкаф под потолком. Такие делают не только в прихожих и коридорах, но и, например, в туалете.
Антресоль на балконе своими руками. Как красиво сделать шкаф на балкон (лоджию) своими руками: инструкция с фото
Шкаф на балконе (лоджии) – вещь, которая спасает каждую хозяйку от беспорядочного захламления этой нежилой площади. Изначально в советское время стали строить многоэтажные дома с балконом или лоджией. Задумка была такая, что граждане могут выйти подышать свежим воздухом в любое время, поэтому в крупных городах, в старой части города, вы можете увидеть маленькие кованые балкончики, вмещающие не более одного человека. Сейчас балкон – это функциональная и полноценная площадь квартиры. Они застеклены и иногда утеплены. Хозяева приспосабливают эту площадь под бытовые нужды и шкаф на лоджии – явление весьма распространенное, благодаря своей функциональности.

Корпусная система хранения на балконе
Как сделать шкаф на балкон (лоджию) своими руками: чертежи и схемы
Очередь мебели приходит после завершения отделки лоджии , и она часто приспосабллена под хранение сезонных вещей, типа верхней одежды, редко используемых приспособлений, заготовок и инструментов, поэтому его делают со множеством полок и с удобной глубиной порядка шестидесяти сантиметров.
Обычно, для изготовления выбирают ДСП или металлическую основу. Для дверей используют дерево, ДСП, пластик.
Места хранения бывают встроенные, угловые и корпусные.
Обычно корпусные делают на неотапливаемых балконах, чтобы сделать зазор между стенами лоджии и мебельной конструкции для вентиляции воздуха.
Если балкон не отапливается, то ставить шкаф вплотную к стене не стоит, потому что может появиться конденсат или роса, и появится плесень.
Также по дверной системе они различаются на:
- Распашную,
- Раздвижную (купе),
- Систему жалюзи.
На узких балконах целесообразно использовать распашную систему или жалюзи. Это обеспечит полноценный доступ во внутренности шкафа. И поместить на полку широкий предмет без преград.

Распашная система открытия
Система жалюзи представлена на фото.

Вариант замены дверей
На распашные двери могут устанавливаться магниты, для автоматического закрытия дверок или доводчики.
В бюджетных вариантах для закрытия дверц используют обычные шпингалеты.
Систему купе используют на широких балконах, либо, если шкаф поровну разделен на две независимые области.

Вариант раздвижных дверей на балконе
Часто бывает, что нижняя ширина балкона уже (вследствие отделки и утепления), чем верх. В таком случае делают комбинацию из двух шкафов: до окна и выше подоконника.

Вариант мебели разной ширины
Общая инструкция по изготовлению системы хранения с дверями купе проста и описана в этой статье :
1. Делаете замеры и чертеж.
2. Покупаете материал.
3. Если шкаф встроенный, то начинаете устанавливать бруски (40*40 мм) по краям, прикручивая к стене так, чтобы их не вырвало.
Бруски для работ
4. Все открытые поверхности, кроме лицевой, закрываются фанерой или ДСП.
5. Устанавливаются полки на уголки.
6. Навешиваются двери на обычные петли или вставляются в направляющие.
Обязательно, все горизонтальные и вертикальные поверхности вымеряются уровнем.
Если вы делаете корпусный шкаф, то при сборке каркаса, необходимо замерить диагонали конструкции, так вы избежите искривления дверей и полок.
При его установке на балкон нужно отступить полтора сантиметра от стен, чтобы воздух спокойно вентилировался.

Примерные схемы и чертежи представлены на фото.
Схема внешнего и внутреннего наполнения шкафа с размерами.

Пример чертежа узкой мебельной сборки.

Стандартная конструкция мебели на балкон
Схема корпусного шкафа на ножках.

Размеры на чертеже
Вид готового шкафа с чертежом и вариациями наполнения.

Схема наполнения гардероба
Угловой шкаф на балкон из вагонки
Угловые шкафы подходят для узких или нестандартных балконов (лоджий). Основой являются полки, которые нужно четко вымерить под размеры угла.

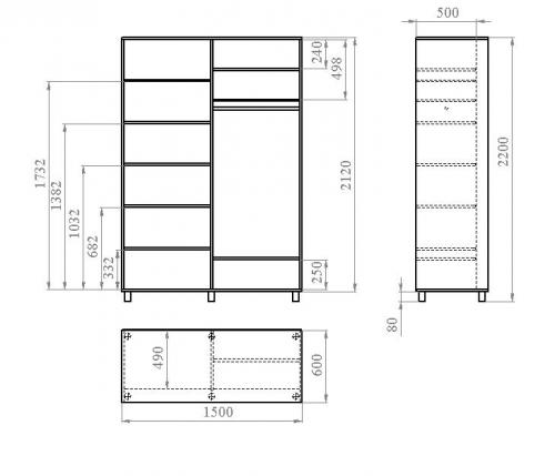
Антресоли в коридоре на заказ. Антресоль в коридор на заказ! Узнайте цену в Санкт-Петербурге!
Чтобы сделать коридор более уютным и скрыть все вещи, которые могут портить внешний вид помещения, стоит приобрести антресоль на заказ . Такой шкафчик будет уместно смотреться в прихожей и станет удачным интерьерным элементом. Компания «Невские Артели» занимается изготовлением подобных изделий разных форм и размеров. Антресоль подойдет для хранения многих вещей, способных загромождать помещение. С ней вы сможете более рационально использовать освободившееся пространство и сохранять порядок.
Как выбрать оптимальную антресоль для коридора?
Шкафы-антресоли на заказ нужно подбирать с учетом таких важных показателей, как:
- Размер. Этот показатель стоит определять индивидуально, после проведения замеров.
- Материал. Полки из разного сырья выдерживают определенный вес. Вы можете выбрать изделие из таких материалов, как: ламинат, шпон, экошпон, древесина ценных пород, МДФ и т.д.
- Цвет. Чтобы антресоль идеально дополняла интерьер помещения, стоит ответственно подойти к выбору цвета. Популярными расцветками считаются такие, как: орех, белый, груша, бук, венге, вишня и т.д.
Какие выгоды доступны клиентам нашей фирмы?
Если вы хотите приобрести антресоль на заказ в СПб , мы сможем предложить вам следующие преимущества:
- Собственное производство дает возможность выполнять изделия самых сложных конструкций и выбирать проверенные материалы, благодаря чему наши клиенты получают гарантию.
- Замерщик приедет к вам, чтобы показать образцы используемых материалов, провести замеры, а также по их результатам подготовить точную смету.
- Доставка готовых изделий происходит в кратчайшие сроки, а их установкой занимаются квалифицированные мастера.
- Наша компания предлагает продукцию по выгодным ценам и с хорошими скидками.
Вы всегда сможете получить бесплатную консультацию от сотрудников компании «Невские Артели» по телефону или через форму на сайте. Мы работаем добросовестно и всегда предоставляем безукоризненный сервис!
Цены на антресоли
№ | Фасад (минимальна расчетная стоимость за 1 кв. м ) | Цена за ед. | Сумма, руб. |
1 | Створка ламинированная с 2-х сторон с кромкой толщ. 16 мм, площадь кв. м (1) | 1500 | 1500 |
2 | Коробка, м/п (4) | 150 | 600 |
3 | Петля мебельная, шт. (2) | 100 | 200 |
Итого блок | 2300 |
| 4 | Полка толщиной 16 мм, ламинированная с двух сторон, с кромкой (до 0,5 кв.м), шт. | 500 |
| 5 | Полка толщиной 16 мм, ламинированная с двух сторон, с кромкой (от 0,5 до 1 кв.м), шт. | 800 |
| 6 | Вырез под трубу, шт. | 100 |
| 7 | Наличник по периметру ( 70 мм), м.п. |






© Depositphotos
© Depositphotos 
© Depositphotos
© Depositphotos