Планировка хрущевки 2 комнаты. Учитываем особенности планировки
- Планировка хрущевки 2 комнаты. Учитываем особенности планировки
- Планировка хрущевки 5 этажей. Планировка «хрущевка»: история «хрущевской» планировки квартир
- Планировка хрущевки 3 комнаты. Перепланировка 3-х комнатной хрущевки: чудо превращения возможно
- Планировка хрущевки 2 комнаты угловая. Особенности планировки двухкомнатных «хрущевок»
Планировка хрущевки 2 комнаты. Учитываем особенности планировки
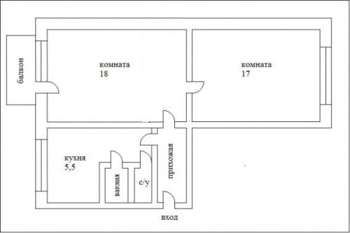
Типовая хрущевка имеет очень маленькую кухню – 5-6 квадратов. Ещё одна особенность – невысокие потолки до 2,7 метров. Двушки без перепланировки зачастую бывают неудобны, особенно, если вторая комната проходная.
Стандартная площадь двухкомнатной хрущевки – около 43-44 кв метров. Дома пятиэтажные. В большинстве своем комнаты смежные, окна выходят на одну сторону (за исключением угловой квартиры с двумя окнами). В качестве достоинств хрущевки можно выделить наличие кладовки и балкона.
Рассмотрим самые распространенные типы планировок подробней.
Книжка
Такая планировка считается самой неудачной: проходная комната с широким дверным проемом играет роль столовой, а в семье с детьми – ещё и спальни. Уединенности в таком пространстве добиться трудно. Чтобы разделить помещения, придется пожертвовать частью комнаты. Без перегородок, на снос которых необходимо получить разрешение, хрущевку можно превратить в просторную студию.



На фото маленькая угловая кухня со встроенным холодильником и столом, вписанным в подоконник.
Трамвайчик
Такое народное название (также употребляется слово "паровозик") планировка получила за расположенные друг за другом комнаты, напоминающие вагоны. Гостиная с балконом является проходной, но переделка решает эту проблему: если отсечь часть комнаты и превратить ее в коридор с двумя входами, в получившейся нише можно организовать систему хранения.



На фото комната в кремовых тонах с акцентной стеной в телевизионной зоне.
На фото проект двухкомнатной хрущевки 44 кв. м.
Распашонка
Вполне удобная планировка, при которой комнаты разделены кухней и прихожей, но такой тип хрущевки встречается нечасто. Также ее называют "бабочкой" благодаря схожести комнат с симметричными крыльями.



На фото крошечная кухня , где глянцевые белые шкафчики-нивидимки занимают всё межпотолочное пространство.
Планировка хрущевки 5 этажей. Планировка «хрущевка»: история «хрущевской» планировки квартир
Крупнопанельная планировка Хрущевки серии 1-335 самая распространенная планировка домов на территории России. Самое большое их количество было построено в Санкт-Петербурге, теперь же по количеству эксплуатируемых домов этой планировки лидирует Омск.
Высказать мнение
Владимир Да
Читаю комменты и ох****ю))) Потолки им низкие, комната проходная не угодила, вентиляция не та… Люди в эти квартиры из коммуналок перебирались, и тогда, для них это было счастье!
Анна Гончарова
Хрущевки безобразны и по внешнему виду и по содержанию. Жила в такой квартире несколько лет. Потолок натирает темечко, слышимость аховая, проходная комната, чтоб ее. Но я против их сноса. Прочность хрущевок в разы превосходит некоторые новостройки. И потом — это кусок целой эпохи. Был Хрущев, так пусть и хрущевки остаются)))
Галина Кулиева- Аверкина
Мои родители долго жили в двухкомнатной хрущевке. Согласна, что это очень неудобное жилье, но уже тогда многие делали перепланировку чтобы исправить главный недостаток — проходную большую комнату, но при этом лишались кладовки — из коридора делали проход в спальную. Для этого ставилась стена, которая уменьшала большую комнату. Также в началу 2000-х кое-где хрущевские дома увеличивали по внешнему периметру — на метр от дома ставили внешнюю стену — получались лоджии и каким-то образом не которые помещение вытягивали. Конечно, хрущевка решает только одну проблему — где жить, а комфорт нервно курит в стороне.
Елена
А мы сами чистили) и не знали, что это обязанность УК. Конечно, там страсти-мордасти в этой вытяжке, обломки кирпича и даже кости, вываливались. Как они туда попали — не понятно. Мы 2 ведра всякой грязи вычистили. Зато сейчас аж свистит когда с кухни в санузел тянет.
Антон Величко
Спасибо, Марина, исправил!)
А насчет того, что дым тянет, то скорее всего это плохая работа вытяжки, которая должна работать так, чтобы никаких запахов у вас в квартире не было, тем более от соседей. Надо еще почитать законы, насколько я понимаю, УК должно произвести чистку воздуховодов.
Марина
Антон, исправьте. Туалет и ванная комната, у Вас а, вместо и. Могу сказать, что хрущевки очень малогабаритны, но на более просторное жилье денег, к сожалению, нет у большинства людей. А, вот то, что вентиляция естественная — это вообще катастрофа. У нас тянет кошмарно запахом курива от соседей через стенку, затягивает в санузел и на кухню, в обе вытяжки.
Ксюша
Мне вот интересно, у нас вроде бы Хрущёвка, но квартира 4-х комнатная, это возможно? Она фактически по планировке как трёшка, но так как подъезд крайний, вместо кладовки ( уменьшена соседняя комната) комната с окно которое выходит с торца дома.
Alexandr
Герои популярного в США сериала «Друзья» жили на Манхэттене в элитном районе Гринвич-Виллидж. Жили они не в хрущёвке, но в сериале показывают между эпизодами панораму этого района. В одной из панорам я с огромным удивлением узнал хрущёвки, почти один в один, с разницей что американские раза в три длиннее советских.
Irina
Посмотрела вчера одну серию проекта «Намедни» (был популярен 25 лет назад). В ней как раз говорилось про хрущёвки, которые начали строить в 1961 году.
Однако, что интересно — в те годы CCCP по темпам строительства вышел на передовые позиции в мире. За неделю бригада собирала дом!
Пусть квартирки были маленькие, экономичные — но сколько людей переселились в них из бараков!
Планировка хрущевки 3 комнаты. Перепланировка 3-х комнатной хрущевки: чудо превращения возможно
8 мин.
Планировка
Каждый человек мечтает о просторном, красивом и удобном жилье, однако желания часто не совпадают с возможностями. Особенно остро проблема нехватки места ощущается в хрущевках, которые строились как временное жилье, поэтому о комфортном проживании в этих зданиях никто не задумывался. В таких домах квартиры «славятся» малым метражом и крайне неудобной планировкой, поэтому хозяева вынуждены прикладывать максимум усилий, чтобы превратить неуютные «хрущобы» в место, подходящее для жизни. Наличие трех комнат в них тоже не означает большой жилплощади. Нередко она ограничивается 50-55 м2. Однако спасение есть: это перепланировка 3-х комнатной хрущевки, задача трудная, но посильная. Правильная реорганизация пространства позволит преобразить жилье, сделать его максимально комфортным, стильным, современным и функциональным.
Особенности квартир в хрущевках

Такие типовые дома начали возводить в конце 60-х годов. Строительство шло ударными темпами, потому что главной задачей было обеспечение временным жильем всех нуждающихся. Она была решена, а хрущевки из временного неудобного жилья вдруг превратились в постоянные «пристанища». Обидное прозвище «хрущоба» такие здания заслужили, потому что квартиры в них обладают незавидными характеристиками. Они не могут гордиться:
- маленькой площадью, которая чаще не превышает 60 м2;
- невысокими или очень низкими потолками (до 2,5 мм);
- узкими и тесными коридорами, проходными комнатами;
- крошечными кухнями и такими же совмещенными санузлами;
- довольно плохой звуко-, теплоизоляцией.
В некоторых хрущевских «апартаментах» есть балконы, кладовки и встроенные антресоли. Главное отличие их от других жилых зданий — отсутствие внутренних несущих перегородок. Эта особенность — несомненное достоинство, она позволяет преобразить пространство, улучшив вид и функционал квартир, но не затратить много сил на узаконивание такой операции.
Способ реорганизации жилья зависит лишь от первоначального расположения всех «хрущобных» помещений. Есть несколько типов таких квартир, поэтому перепланировка 3-х комнатной хрущевки в каждом конкретном случае будет своя. Типичные варианты жилья:

- две крошечные комнатки и одна просторная;
- пара больших смежных комнат и одна отдельная, но маленькая;
- жилые комнаты, расположенные по обе стороны коридора;
- почти идеал — все комнаты прилегают к коридору, поэтому имеют отдельные входы.
В последнем случае серьезной перестройки не требуется. Нередко в одной из комнат прячется небольшая кладовка. В этом помещении имеет смысл устроить спальню, а кладовку превратить в гардеробную. Одна из комнат становится гостиной. Если в семье есть ребенок, то третью, маленькую, отдают в его распоряжение. Когда у супругов несколько детей, они, наоборот, получают большое помещение.

Источник: https://dom-na-vodah.ru/novosti/plan-tipovoy-hrushchevki-2-komnaty-uchityvaem-osobennosti-planirovki
Планировка хрущевки 2 комнаты угловая. Особенности планировки двухкомнатных «хрущевок»
Требования к массовому возведению послевоенной архитектуры должны были соответствовать стандартам простого и недорого жилья. Низкие потолки, проходящие комнаты, небольшая квадратура – все это является отличительной особенностью жилья по типу «хрущевок». За стандарт бралась планировка двухкомнатной квартиры и уже на ее основе разрабатывались проекты одно, трех и четырехкомнатных квартир.
В течение времени проекты жилплощади этого типа видоизменялись и вносились другие коррективы. Менялась высота потолка от начального 2,5 метра до 2, 7. Габариты комнат не сильно менялись. Гостиная комната почти всегда оставалась проходной и для попадания в спальню или детскую, требовалось пересечь эту комнату.

Проходная комната с широким дверным проемом играет роль столовой, а в семье с детьми – ещё и спальни.
Санузел чаще всего проектировался совмещенного типа, но в некоторых домах встречались и раздельные варианты этих комнат. Они всегда располагались на одном уровне с кухней и прихожей, так как это минимизировало количество водных коммуникаций и канализационных труб.
Все узлы водных и электроразвязок чаще всего располагались в подвале здания и архитектурные особенности домов не подразумевали наличие отдельного помещения для технических нужд.

Реконструкции хрущевок дают потрясающий результат – при совмещении санузла освобождается место для стиральной машинки.
К сведению! При строительстве зданий данного типа использовалось несколько проектов с вводимыми усовершенствованиями. В 1967 году квадратура кухни была расширена, но звукоизоляционные свойства остались на прежнем невысоком уровне. Спустя 10 лет при постройке в строительные материалы стал добавляться керамзит, что улучшило звуковую непроходимость.
При перепланировке данных квартир предусмотрено в первую очередь разрешение БТИ. Только после этого можно переделывать жилплощадь по другому архитектурному проекту. Чаще всего таким изменениям подвергаются кухня, коридор и санузел.

Перекрытия внутри хрущевки не являются несущими, поэтому согласовать такую переделку будет несложно.
Источник: https://otoplen-dom.ru/novosti/planirovka-2-dvuhkomnatnoy-kvartiry-hrushchevki-varianty-planirovki