Ремонт в хрущевке 2х комнатной. Типы исходной планировки с вариантами улучшений
Ремонт в хрущевке 2х комнатной. Типы исходной планировки с вариантами улучшений
Базовая планировка 2-комнатной хрущевки определяется не только размером свободной площади, но еще и характером расположения жилых комнат. В этом плане есть несколько вариантов, и мы пробежимся по самым популярным из них — со вполне конкретным предложением по кардинальным преобразованиям к каждому.
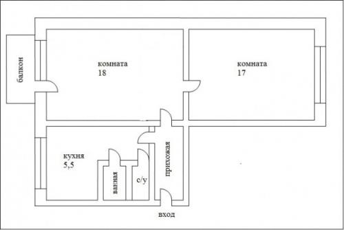
«Распашонка»
Примерно одинаковые по площади жилые комнаты (16-17 кв.метров) расположены по левую и правую стороны от прихожей и изолированы друг от друга. Между ними располагается санузел и небольшая кухня примерно на 5 кв. метров.

Что можно сделать:
Самое слабое звено в этой схеме — скромная кухня, и ее можно увеличить за счет одной из комнат.

Планировка распашонкой для 2-комнатной хрущевки смотрится одним из самых удачных решений, так как позволяет обойтись минимумом потраченных усилий для придания квартирному пространству более современного вида.

«Книжка»
Две жилые комнаты является смежными — их разделяет одна длинная стена. Кухня на 4-5 кв.метра и санузел располагаются по левую-правую сторону от коридора.


Что можно сделать:
- увеличить кухню за счет объединения с прилегающей к ней комнатой;
- продлить коридор и сделать пространство при входе более свободным.



Мини-улучшенка
2 жилые комнаты изолированы друг от друга. Вход в каждую оформлен через прихожую. Выделяется гостиная с прилегающим балконом — примерно на 20 кв. метров. Вторая комната поменьше, на 10-11 квадратов: за ней расположена очень маленькая кухня. Такая планировка 2-комнатной хрущевки занимает в общей сложности 45 кв. метров и признается одной из лучших среди квартир советского типа.
Что можно сделать:
- сделать более просторной кухню за счет объединения с малой комнатой или прихожей;
- убрать перегородку между гостиной и балконом;
- объединить туалет и ванную комнату.

Трамвай
Прихожую в хрущевках такого типа венчает вход в большую гостиную, к которой примыкает вторая аналогичная по размеру смежная комната. Справа от прихожей располагается раздельный на туалет и ванную санузел.


Это очень выгодная планировка, так как кухня при такой схеме имеет вполне комфортные размеры.
Хрущевка 43 кв м планировка. Учитываем особенности планировки
Типовая хрущевка имеет очень маленькую кухню – 5-6 квадратов. Ещё одна особенность – невысокие потолки до 2,7 метров. Двушки без перепланировки зачастую бывают неудобны, особенно, если вторая комната проходная.
Стандартная площадь двухкомнатной хрущевки – около 43-44 кв метров. Дома пятиэтажные. В большинстве своем комнаты смежные, окна выходят на одну сторону (за исключением угловой квартиры с двумя окнами). В качестве достоинств хрущевки можно выделить наличие кладовки и балкона.
Рассмотрим самые распространенные типы планировок подробней.
Книжка
Такая планировка считается самой неудачной: проходная комната с широким дверным проемом играет роль столовой, а в семье с детьми – ещё и спальни. Уединенности в таком пространстве добиться трудно. Чтобы разделить помещения, придется пожертвовать частью комнаты. Без перегородок, на снос которых необходимо получить разрешение, хрущевку можно превратить в просторную студию.



На фото маленькая угловая кухня со встроенным холодильником и столом, вписанным в подоконник.
Трамвайчик
Такое народное название (также употребляется слово "паровозик") планировка получила за расположенные друг за другом комнаты, напоминающие вагоны. Гостиная с балконом является проходной, но переделка решает эту проблему: если отсечь часть комнаты и превратить ее в коридор с двумя входами, в получившейся нише можно организовать систему хранения.



На фото комната в кремовых тонах с акцентной стеной в телевизионной зоне.
На фото проект двухкомнатной хрущевки 44 кв. м.
Распашонка
Вполне удобная планировка, при которой комнаты разделены кухней и прихожей, но такой тип хрущевки встречается нечасто. Также ее называют "бабочкой" благодаря схожести комнат с симметричными крыльями.



На фото крошечная кухня , где глянцевые белые шкафчики-нивидимки занимают всё межпотолочное пространство.
Дизайн 2 комнатной хрущевки без перепланировки. Дизайн 2х комнатной хрущевки: проекты, перепланировка, лучшие фото идеи дизайна
Миллионы людей живут в малогабаритных квартирах с типовой планировкой. Мечтая о современном и удобном жилье, одни владельцы задумываются о переезде. Другие же устраивают ремонт в хрущевке 2-х комнатной, фото которой после проведенных работ едва ли выдает время постройки дома. Благодаря огромному ассортименту строительных материалов и безграничным вариациям готовых дизайнерских решений, сегодня можно реализовать любые желания. Главное не пренебрегать советами специалистов.

Хрущевки — первые многоэтажные дома массовой застройки. Во времена СССР квартиры в них раздавали практически бесплатно, что решило вопрос острой нехватки жилья. Небольшая площадь, проходные комнаты, неудобное расположение дверей отличает их от “сталинок” и других домов. Есть и другие, не менее значимые недостатки: низкая шумоизоляция, невысокие потолки, маленькие прихожая и кухня, отсутствие балкона на первом этаже. На нынешнем рынке такая недвижимость мало ценится.

Несмотря на очевидные минусы, плюсы здесь тоже есть. В каждом жилище времен Хрущева Н. С. предусмотрены кладовки. Санузел обычно совмещен, что экономит место. А варианты дизайна таких помещений безграничны. Зачем покупать типовую мебель и жертвовать большой ванной, если даже в советской двушке реально осуществить любые идеи?


Планировка хрущевок, состоящих из 2 комнат, бывает 4 видов:
Трамвай | около 47 кв. м | Две комнаты в такой квартире имеют одну, смежную стену. Гостиная обычно угловая. |
Бабочка | 46 кв. м | Кухня располагается между двумя комнатами. |

“Книжка” достаточно неудобная, как в первоначальном виде, так и в измененном. Так как комнаты следуют друг за другом, сделать радикальное перепроектирование помещения невозможно.

Объединение комнат
При входе в дом первое, что бросается в глаза — прихожая. В хрущёвке она маленькая, узкая и темная. Если увеличить дверной проем в комнате, коридор станет светлее и визуально больше. С этого обычно и начинается составление плана ремонта 2-комнатной квартиры. Что касается радикального сноса стен, чаще всего объединяют:
- Кухню и зал. На месте убранной стены устанавливается барная стойка или стол с мягким диваном.
- Зал и спальню. Подходит для семьи без детей. При наличии ребенка детская в хрущевке оформляется путем зонирования помещения.
- Зал и кабинет. Для создания рабочего пространства подойдет стеллаж или мобильные ширмы. Иногда дизайнеры используют невысокий подиум.
- Спальню и кабинет. Комната разделяется на 2 функциональные зоны, стол для работы ставится около окна.

Зонирование
Перестройка малогабаритной квартиры 40 кв. м или другой площади не обходится без зонирования. Каждому члену семьи необходима личная зона в квартире. При этом нельзя уменьшать и без того маленький размер кухни. Рабочее место должно быть вместительным. Для разделения разных участков используются:
- гипсокартонные фальшстены;
- передвижные перегородки;
- занавески, шторы;
- диваны, шкафы, другие предметы мебели;
- разноуровневые потолок и пол.

Раздвижные двери — лучшая альтернатива распашным. Они удобны в обращении и стильно смотрятся.

Отделка
Эффективным способом зрительного увеличения пространства любой дизайнер назовет использование светлых оттенков. Но это утверждение нельзя воспринимать буквально, иначе ремонт в 2х комнатной хрущевке по фото будет напоминать больничную палату. То же касается и 1х, 3х комнатных квартир. Удачное сочетание цветов приведет к успешному обновлению интерьера.

Полы
Единственное строгое требование к выбору напольного покрытия — табу на темные оттенки. В домах небольшого размера пол является фоном для других предметов и не должен привлекать внимание. Лучшие цвета: серый, бежевый, молочный. Также уместна имитация фактуры дерева или сам натуральный материал. Ламинат, паркетная доска, линолеум, ковролин, плитка — любое покрытие эффектно дополнит дизайн, если учтены требования к цвету.

Потолки
Чем ярче освещение в маленькой комнате, тем лучше. В дополнение к люстре рекомендованы точечные светильники, расположенные по периметру. Скрыть все неровности и дефекты на потолке поможет натяжной вариант. Не менее выгодно смотрится многоуровневый верх.

Стены
Прежде чем приступить к отделке стен, в 9 случаях из 10 их придется выровнять. В панельных домах, как и кирпичных, разница в высоте или наклоне разных стен достигает 2-3 см. Даже если кривизна не бросается в глаза, она создаст большие проблемы при ремонтных работах. Поверхность выравнивается шпаклевкой или гипсокартоном. По окончании подготовки комната оформляется обоями, например:
- флизелиновыми, виниловыми, акриловыми с вертикальным рисунком;
- фотообоями с городским пейзажем или природой;
- жидкими бесшовными обоями.

Цвет стен должен гармонировать с задуманным дизайном хрущевки, состоящей из 2 комнат. Правило “чем выше цена, тем лучше” работает не всегда. Даже самая дорогая шелкография подходит далеко не к каждому интерьеру.