Планировка 2 двухкомнатной квартиры хрущевки. Варианты планировки
Планировка 2 двухкомнатной квартиры хрущевки. Варианты планировки
Существуют варианты планировка хрущевки с размерами 2 комнат . Разновидности плана типовой хрущевки можно расположить следующим образом в порядке убывания удобства.
Для распашонки
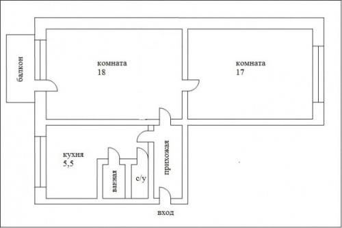
Две изолированные комнаты приличной площади (чаще всего — одинаковой). Они расположены по разные стороны квартиры, между ними — прихожая, санузел, ванная и кухня. Этот проект во многом предпочтительнее и удобнее, чем распространенный трехкомнатный вариант с проходной комнатой.
Несмотря на преимущество планировки и выигрышную жилую площадь, площадь кухни типична для домов рассматриваемого типа и составляет 5,5 квадратных метров. При этом планировка практически не оставляет возможностей для ее увеличения. Чаще рассматривается вариант увеличения площади кухни за счет одной из комнат, но в этом случае уменьшаемая комната примет неправильную форму.

Комнаты в мини-улучшенке
Комнаты изолированные, одна — весьма неплохой площади, другая — довольно маленькая, расположены рядом, за маленькой комнатой расположена кухня. Общая площадь квартиры 44,6 квадратных метров. Главный недостаток — небольшая площадь кухни: 5,2 м2. В основном работы по перепланировке касаются увеличения площади кухни (есть возможность увеличить до 8 метров за счет прихожей и кладовки).

Трамвай
Комнаты в квартире такого типа смежные, стыкуются между собой узкими стенами. Общая площадь квартиры — 48 квадратных метров. Разделение комнат весьма удачно. В этом случае прихожая продлевается в глубину прилегающей к ней комнаты настолько, насколько это продиктовано интересами хозяина.

Книжка
Комнаты в таких квартирах также смежные, стыкуются между собой длинными стенами. Чтобы попасть в дальнюю, приходится пересекать проходную по диагонали. Общая площадь квартиры — 41 квадратный метр. Крайне неудачна для перепланировки, поскольку то, что останется от проходной комнаты после продления коридора, будет иметь совсем небольшую площадь.

Перепланировка двухкомнатной хрущевки в трехкомнатную. Нарезка комнат по-новому
Такую перепланировку требуется заверить в соответствующих инстанциях, так как по документам увеличится жилая площадь квартиры и изменится количество комнат. В противном случае придётся оплачивать штраф за незаконную перепланировку. Сумма его очень внушительная.
Есть несколько способов, чтобы сделать перепланировку двухкомнатной квартиры в трёхкомнатную.
Перед началом работ необходимо определить количество несущих стен в квартире. Если такие стены находятся только по «краям» жилища, то можно будет осуществлять совершенно новую планировку трёхкомнатной квартиры. С несущими конструкциями нельзя ничего делать.
Далее необходимо сосчитать количество окон и утвердить нужное количество комнат.
Варианты перепланировки квартиры с нарезкой комнат по-новому
Такой выбор разграничения пространства, как правило, встречается в квартирах со свободной планировкой. В них имеется 3-4 окна. Кухонная зона совмещена с гостиной. Для того чтобы в такой квартире сделать три комнаты, нужно таким образом распределить пространство, чтобы в каждой комнате было хотя бы одно окно.
Можно будет увеличить пространство за счёт балкона или лоджии. Для этого необходимо утеплить дополнительные помещения и снести разделительную стену между балконом или лоджией. В результате комната может увеличиться на несколько квадратов.
После того, как вы чётко определились, где именно должна находиться та или иная комната, можно смело переходить к планированию ее площади.
Совет. Как правило, удобной и очень уютной считается комната, которая имеет площадь от 10-15 квадратов. Если нужно сделать детскую, то её площадь должна быть не менее 12 квадратов.
В маленьком возрасте ребенок может жить и на меньшей площади, только со временем придётся заново пересмотреть планировку — ребенок растёт и ему может понадобиться большая комната.
Можно будет перенести гостиную в кухонную зону и сделать её немного меньше. За счёт этого увеличится используемая для перепланировки площадь. Такие действия также необходимо согласовать с соответствующими инстанциями, так как кухня считается опасной зоной для жизни человека.
Планировка и перенос гостиной в кухонную зону
После утверждения плана перепланировки нужно определиться с выбором строительного материала для перегородок. Если планируется делать основательную перепланировку, которая в ближайшее время не будет подвержена изменениям, то стоит остановить свой выбор на кирпиче. Если же со временем будет желание снова изменить количество комнат, то будет рационально использовать гипсокартон.
Такой строительный материал на сегодняшний день пользуется большой популярностью из-за своей универсальности. С его помощью можно сделать не только многоуровневые потолочные конструкции и выравнивание поверхностей, но и изготовить разделительные стенки. Крепится он на предварительно сооруженный металлический каркас из специальных профилей. Они монтируются в стену и потолок для придания большей прочности всей конструкции.
На металлический каркас гипсокартон крепится с двух сторон. Затем его штукатурят, шпаклюют. Только после этого осуществляют чистовые отделочные работы по оклеиванию или окрашиванию поверхности.
Планировка хрущевки 2 комнаты 44 м. Учитываем особенности планировки
Типовая хрущевка имеет очень маленькую кухню – 5-6 квадратов. Ещё одна особенность – невысокие потолки до 2,7 метров. Двушки без перепланировки зачастую бывают неудобны, особенно, если вторая комната проходная.
Стандартная площадь двухкомнатной хрущевки – около 43-44 кв метров. Дома пятиэтажные. В большинстве своем комнаты смежные, окна выходят на одну сторону (за исключением угловой квартиры с двумя окнами). В качестве достоинств хрущевки можно выделить наличие кладовки и балкона.
Рассмотрим самые распространенные типы планировок подробней.
Книжка
Такая планировка считается самой неудачной: проходная комната с широким дверным проемом играет роль столовой, а в семье с детьми – ещё и спальни. Уединенности в таком пространстве добиться трудно. Чтобы разделить помещения, придется пожертвовать частью комнаты. Без перегородок, на снос которых необходимо получить разрешение, хрущевку можно превратить в просторную студию.



На фото маленькая угловая кухня со встроенным холодильником и столом, вписанным в подоконник.
Трамвайчик
Такое народное название (также употребляется слово "паровозик") планировка получила за расположенные друг за другом комнаты, напоминающие вагоны. Гостиная с балконом является проходной, но переделка решает эту проблему: если отсечь часть комнаты и превратить ее в коридор с двумя входами, в получившейся нише можно организовать систему хранения.



На фото комната в кремовых тонах с акцентной стеной в телевизионной зоне.
На фото проект двухкомнатной хрущевки 44 кв. м.
Распашонка
Вполне удобная планировка, при которой комнаты разделены кухней и прихожей, но такой тип хрущевки встречается нечасто. Также ее называют "бабочкой" благодаря схожести комнат с симметричными крыльями.



На фото крошечная кухня , где глянцевые белые шкафчики-нивидимки занимают всё межпотолочное пространство.
Планировка хрущевки 2 комнаты угловая. Типы исходной планировки с вариантами улучшений
Базовая планировка 2-комнатной хрущевки определяется не только размером свободной площади, но еще и характером расположения жилых комнат. В этом плане есть несколько вариантов, и мы пробежимся по самым популярным из них — со вполне конкретным предложением по кардинальным преобразованиям к каждому.
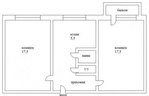
«Распашонка»
Примерно одинаковые по площади жилые комнаты (16-17 кв.метров) расположены по левую и правую стороны от прихожей и изолированы друг от друга. Между ними располагается санузел и небольшая кухня примерно на 5 кв. метров.

Что можно сделать:
Самое слабое звено в этой схеме — скромная кухня, и ее можно увеличить за счет одной из комнат.

Планировка распашонкой для 2-комнатной хрущевки смотрится одним из самых удачных решений, так как позволяет обойтись минимумом потраченных усилий для придания квартирному пространству более современного вида.

«Книжка»
Две жилые комнаты является смежными — их разделяет одна длинная стена. Кухня на 4-5 кв.метра и санузел располагаются по левую-правую сторону от коридора.


Что можно сделать:
- увеличить кухню за счет объединения с прилегающей к ней комнатой;
- продлить коридор и сделать пространство при входе более свободным.



Мини-улучшенка
2 жилые комнаты изолированы друг от друга. Вход в каждую оформлен через прихожую. Выделяется гостиная с прилегающим балконом — примерно на 20 кв. метров. Вторая комната поменьше, на 10-11 квадратов: за ней расположена очень маленькая кухня. Такая планировка 2-комнатной хрущевки занимает в общей сложности 45 кв. метров и признается одной из лучших среди квартир советского типа.
Что можно сделать:
- сделать более просторной кухню за счет объединения с малой комнатой или прихожей;
- убрать перегородку между гостиной и балконом;
- объединить туалет и ванную комнату.

Трамвай
Прихожую в хрущевках такого типа венчает вход в большую гостиную, к которой примыкает вторая аналогичная по размеру смежная комната. Справа от прихожей располагается раздельный на туалет и ванную санузел.


Это очень выгодная планировка, так как кухня при такой схеме имеет вполне комфортные размеры.