Планировки квартир в хрущевках. Возможные перепланировки
Планировки квартир в хрущевках. Возможные перепланировки
Хрущевка - это малогабаритная квартира с однотипной планировкой, в которой не совсем удобно расположены комнаты, присутствуют низкие потолки, узкие коридоры, маленькие кухни и ванные. Однако, за счет дизайнерских возможностей, учитывающих все особенности, неудобное жилище можно сделать максимально комфортным и уютным.
Варианты перепланировки 1-комнатной хрущевки
Несмотря на скромные габариты, существует ряд возможных примеров трансформации однушки.
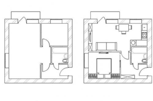
Хрущевка с двумя окнами
Квартира с балконом и двумя окнами, является угловой. Хрущевка с подобной планировкой может представлять собой не самый лучший вариант или наоборот, предоставить большое количество интересных идей перепланировки.



На фото пример перепланировки угловой хрущевки однушки с двумя окнами.
Хрущевка с одним окном
Однушки, имеющие одно окно и балкон, встречаются в кирпичных домах серии 1-511, в панельных застройках серии 1-515 и прочих. В таких квартирах присутствует раздельный санузел и коридор. В хрущевках с другой планировкой данное пространство представляет жилую комнату, что создает ограничение при переделке жилья.



На фото перепланировка однокомнатной квартиры хрущевки 30 кв с одним оконным проемом.
Перепланировка из 1-комнатной в двухкомнатную хрущевку
Самый простой и бюджетный способ перепланировки - установить гипсокартонную перегородку и сделать в ней дверной проем. Таким образом получится два небольших помещения с разным функциональным назначением.
Также трансформировать однокомнатную хрущевку в двушку или полуторку можно за счет раздвижных дверей, которые не займут много места и позволят обособить такие комнаты, как детская, спальня или зал.
Немалое значение в дизайне играет выбор мебельных конструкций. Например, сэкономить пространство поможет встроенная бытовая техника в виде уменьшенного холодильника или маленькой плиты.



На фото однокомнатная квартира хрущевка с перепланировкой в двушку.

Планировка хрущевки 2 комнаты 44 м. Учитываем особенности планировки
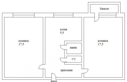
Типовая хрущевка имеет очень маленькую кухню – 5-6 квадратов. Ещё одна особенность – невысокие потолки до 2,7 метров. Двушки без перепланировки зачастую бывают неудобны, особенно, если вторая комната проходная.
Стандартная площадь двухкомнатной хрущевки – около 43-44 кв метров. Дома пятиэтажные. В большинстве своем комнаты смежные, окна выходят на одну сторону (за исключением угловой квартиры с двумя окнами). В качестве достоинств хрущевки можно выделить наличие кладовки и балкона.
Рассмотрим самые распространенные типы планировок подробней.
Книжка
Такая планировка считается самой неудачной: проходная комната с широким дверным проемом играет роль столовой, а в семье с детьми – ещё и спальни. Уединенности в таком пространстве добиться трудно. Чтобы разделить помещения, придется пожертвовать частью комнаты. Без перегородок, на снос которых необходимо получить разрешение, хрущевку можно превратить в просторную студию.



На фото маленькая угловая кухня со встроенным холодильником и столом, вписанным в подоконник.
Трамвайчик
Такое народное название (также употребляется слово "паровозик") планировка получила за расположенные друг за другом комнаты, напоминающие вагоны. Гостиная с балконом является проходной, но переделка решает эту проблему: если отсечь часть комнаты и превратить ее в коридор с двумя входами, в получившейся нише можно организовать систему хранения.



На фото комната в кремовых тонах с акцентной стеной в телевизионной зоне.
На фото проект двухкомнатной хрущевки 44 кв. м.
Распашонка
Вполне удобная планировка, при которой комнаты разделены кухней и прихожей, но такой тип хрущевки встречается нечасто. Также ее называют "бабочкой" благодаря схожести комнат с симметричными крыльями.



На фото крошечная кухня , где глянцевые белые шкафчики-нивидимки занимают всё межпотолочное пространство.
Хрущевка планировка размеры. Планировки квартир-хрущевок: плюсы и минусы
Хрущевские малометражки можно встретить всюду: от мегаполисов до маленьких райцентров. Эти дома возводились на протяжении почти трех десятков лет и изначально планировались как временные дома для советских граждан. Но, как известно, нет ничего более постоянного, чем временное, и эти дома существуют на рынке недвижимости и сейчас. Несмотря на все минусы, это вполне конкурентноспособный вид жилья. И все это благодаря преимуществам, которые у них тоже есть.
Плюсы
- Существенный плюс — развитая инфраструктура. Поскольку эти дома возводились больше полувека назад, они уже успели как следует обрасти школами, садами, поликлиниками, парками и другими общественно-полезными объектами.
- Транспортная доступность. Да, возможно, новые ЖК комфортабельнее и просторнее, но советские малометражки обеспечены всеми видами транспорта, до них не надо добираться на метро с пересадкой на маршрутку и несколько километров идти пешком.
- Сегодня старые дома подлежат сносу, в первую очередь это касается Москвы и других крупных городов, а это значит, что, инвестировав в квартиру хрущевского типа, вы наверняка в будущем получите обновленное жилье или, как вариант, реконструкцию своего старого дома.
Минусы
- Слабая шумоизоляция — если вам попались шумные соседи, вы рискуете стать невольным свидетелем их разговоров. Чуть лучше дело обстояло в кирпичных домах.