Варианты перепланировки трехкомнатной квартиры в хрущевке. Варианты перепланировки 1-комнатной хрущевки
- Варианты перепланировки трехкомнатной квартиры в хрущевке. Варианты перепланировки 1-комнатной хрущевки
- Перепланировка трехкомнатной хрущевки распашонки. Перепланировка трехкомнатной квартиры в хрущевке-фото лучших вариантов
- Перепланировка хрущевки распашонки. Перепланировка 2-комнатной квартиры в хрущевке
- Дизайн трехкомнатной хрущевки с проходными комнатами. Варианты перепланировки трехкомнатной хрущевки
- Перепланировка трехкомнатной хрущевки в панельном доме. Перепланировка 3-х комнатной хрущевки: чудо превращения возможно
- Перепланировка трехкомнатной квартиры с длинным коридором. Стиль для узкого коридора
Варианты перепланировки трехкомнатной квартиры в хрущевке. Варианты перепланировки 1-комнатной хрущевки
Несмотря на скромные габариты, существует ряд возможных примеров трансформации однушки.
Хрущевка с двумя окнами
Квартира с балконом и двумя окнами, является угловой. Хрущевка с подобной планировкой может представлять собой не самый лучший вариант или наоборот, предоставить большое количество интересных идей перепланировки.



На фото пример перепланировки угловой хрущевки однушки с двумя окнами.
Хрущевка с одним окном
Однушки, имеющие одно окно и балкон, встречаются в кирпичных домах серии 1-511, в панельных застройках серии 1-515 и прочих. В таких квартирах присутствует раздельный санузел и коридор. В хрущевках с другой планировкой данное пространство представляет жилую комнату, что создает ограничение при переделке жилья.



На фото перепланировка однокомнатной квартиры хрущевки 30 кв с одним оконным проемом.
Перепланировка из 1-комнатной в двухкомнатную хрущевку
Самый простой и бюджетный способ перепланировки - установить гипсокартонную перегородку и сделать в ней дверной проем. Таким образом получится два небольших помещения с разным функциональным назначением.
Также трансформировать однокомнатную хрущевку в двушку или полуторку можно за счет раздвижных дверей, которые не займут много места и позволят обособить такие комнаты, как детская, спальня или зал.
Немалое значение в дизайне играет выбор мебельных конструкций. Например, сэкономить пространство поможет встроенная бытовая техника в виде уменьшенного холодильника или маленькой плиты.



На фото однокомнатная квартира хрущевка с перепланировкой в двушку.



Перепланировка трехкомнатной хрущевки распашонки. Перепланировка трехкомнатной квартиры в хрущевке-фото лучших вариантов
Дизайн трехкомнатной квартиры типа «Хрущевка» не может похвастаться удобной планировкой. Часто она не способствует даже удобному проживанию, так как очень тесная, не вместительная, несмотря на нормальную площадь.

Любой может самостоятельно разработать перепланировку квартиры в хрущевке по собственным планам.

Виды планировки
Есть несколько основных видов типичной панельной трехкомнатной квартиры:
- Распашонка. Состоит из одной большой комнаты и 2 поменьше. Самая неудачная планировка трехкомнатной квартиры. Изменениям практически не поддается.
- Книга. 2 большие комнаты и 1 маленькая. Подходит для создания индивидуального плана, но требует затрат квадратных метров.
- Трамвай. Дизайн 3 комнатной квартиры похож на трамвайный проход. Часто все 3 комнаты расположены одна за другой. При изменении плана нужно ставить специальные перегородки.
- Дизайн трехкомнатной квартиры 60 кв м. Все комнаты находятся в изоляции друг от друга, не соединены друг с другом. Вариант наиболее удобный, так как могут не потребоваться генеральные меры.

Варианты перепланировки
Перепланировка 3 х комнатной хрущевки – процесс многоступенчатый и может происходить в разных комнатах. Превратить 3 отдельных помещения в 1 не получится, но соединить близлежащие можно, что поможет увеличить пространство и квартиру пригодной для жилья.

Объединяем кухню и гостиную
Самая распространенная модификация, так как гостиная и кухня часто расположены рядом.

Это решает сразу несколько проблем:
- Увеличивает пространство. Во многих хрущевках обе эти комнаты имеют скромную площадь. Соединив их, можно уравновесить размер и уместить больше мебели, техники и аксессуаров.
- Простота демонтажа перегородки. Между гостиной и кухней часто расположена тонкая стенка, не имеющая несущей способности. Строится из кирпича или газобетона, поэтому снести ее можно буквально двумя ударами кувалды.

В общей сложности существует несколько видов изменения кухни в хрущевке.

Классика
Снос перегородки – это наиболее простой способ одновременного расширения маленькой кухни в хрущевке и повышения просторности зала.
Стенка не выполняет несущей функции и распространяется на всю длину столовой, как на фото.

Студия имеет следующие преимущества:
- Два окна значительно повышают количество естественного освещения. Этот подход позволит поставить в комнате солнцелюбивые растения, даже если дом на северной стороне.
- Помогают добавить новые предметы. Например, на месте прежней перегородки устанавливается поперечная барная стойка, поставить вешалки для бокалов.
- Открывают дорогу для большинства дизайна. Лофт, сканди, кантри, классицизм – все эти стили требуют простоты и эта конфигурация – лучший способ.
Частичное соединение
В этом случае часть стены, либо оставляют, либо достраивают. Перепланировка квартиры этого толка подразумевает декоративный подход и стена может выполнять художественные или прикладные функции.

Декоративное направление:
- Оставшаяся перегородка может быть оформлена с помощью рамок с фотографиями, постерами к фильмам, другими аксессуарами.
- Неровное оформление кирпича – частый прием в лофте. Сколы могут создаваться искусственно или оставаться после демонтажа.

Прикладное направление:
- Частая проблема после сноса стены – нет места для телевизора. Так как удобнее его вешать на перегородку, а ее отсутствие не даст правильно разместить диван, можно установить панель на остаточной стене.
- Здесь возможно установить полочки или сделать стеллаж, что позволит значительно повысить мобильность и комфорт помещения.

Расширяем ванную
Квартиры в хрущевке часто оборудованы малым санитарным узлом. В нем банально некомфортно принимать душ и заниматься утренним приготовлением перед работой. Более того, иногда в них даже невозможно уместить длинную ванну.

Выход – расширение санузла или повышение компактности, что позволит значительно улучшить качество комнаты.

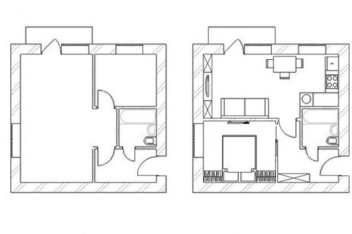
Перепланировка хрущевки распашонки. Перепланировка 2-комнатной квартиры в хрущевке
Двухкомнатные хрущевки, в большинстве своем, имеют множество перегородок, ниш, кладовых, которые «крадут» квадратные метры полезной площади. При этом комнаты не могут похвастаться удобной планировкой и выгодным метражом. Зачастую перепланировать и расширить пространство не так уж просто. Одним из выгодных вариантов изначальной планировки квартиры остается так называемая «распашонка», где комнаты расположены по обе стороны от кухни и не являются проходными. Но и перестроить площадь таким образом, чтобы получить третью комнату, не удастся. Даже разделив одну из комнат перегородкой, мы получим два помещения, одно из которых будет без окон, а во второе нужно будет организовать вход с территории и без того маленькой кухни. Поэтому такие квартиры, чаще всего, оставляют в первозданном виде.
Проект 1
Как мы уже говорили, наличие ниш и кладовых вполне можно использовать для увеличения площади. Например, как показано на фото, владельцы одной из квартир решили вопрос расширения кухни за счет смещения санузла в сторону кладовой. При данной планировке можно запросто объединить кухню с прилежащей комнатой и даже прихожей, в результате чего получится просторный зал. Однако нужно учитывать, что, если в квартире проживает полноценная семья с детьми, такая перепланировка окажется не целесообразной, лишая кого-либо из домочадцев личного пространства.


Проект 2
Один из самых неудобных проектов двухкомнатных квартир, именуемый «книжкой», предполагает наличие двух небольших смежных комнат, одна из которых проходная. В данном случае перепланировать обстановку таким образом, чтобы получить две отдельные комнаты, не получится без потери полезной площади одной из них. Здесь оптимальным вариантом выступает продление коридора за счет уменьшения площади проходной комнаты. В то же время, в комнате остается балкон, который можно утеплить и присоединить к полезной площади.


Проект 3
Квартиры типа «трамвай» также подразумевают наличие смежных комнат, но здесь можно разделить их, сохранив большее количество жилой площади. Один из вариантов предлагает попросту продлить коридор, обустроив в тупике гардеробную или кладовую. В таком случае сооружается дополнительная перегородка с дверью, которая отделит комнату. Второй вариант – продлить коридор только до конца дверного проема, ведущего в правую комнату. В данном случае необходимо будет соорудить две небольшие перегородки – одна будет тупиком коридора, а вторая – отделять комнату справа.


Источник: https://otoplen-dom.ru/novosti/pereplanirovka-kvartiry-v-hrushchevke-kvartira-hrushchevka
Дизайн трехкомнатной хрущевки с проходными комнатами. Варианты перепланировки трехкомнатной хрущевки
При подготовке к ремонту учитывайте, что все стены, которые находятся внутри вашего жилья не являются несущими — за редким исключением. Поэтому их можно сносить и снова возводить в соответствии вашей задумке.
Есть два основных варианта проведения таких капитальных работ:
- Преобразить трешку в большую студию, убрав все стены.
- Частично объединить площадь.
Расскажем подробнее.
Объединяем кухню и гостиную
Вариант, который встречается чаще всего — это. По завершении всех работ вы получите возможность размещенияили обеденного стола для большой семьи.
В данном случае вам нужно продумать дизайн заранее, чтобы кухонный гарнитур сочетался с зоной отдыха. Кроме того,все равно необходимо. Его можно осуществить с помощью напольного покрытия или потолков.
Важно предусмотреть установку мощной вытяжки, которая поможет избежать распространения запаха во время приготовления еды.
Расширение ванной комнаты
Плюсом объединения кухни и гостиной также становится расширение площади санузла за счет уже нефункционального прохода в обеденную зону. Однако нужно учитывать, что за счет жилых помещений это, поскольку это не соответствует заявленным санитарным нормам.
Если же объединение кухни и гостиной не освободило коридор, либо его вовсе нет, то увеличить ее можно другими способами.
- Замените ванну душевой кабиной
- Установите узкую раковину
- При обилии места на кухне перенесите туда стиральную машину
Изоляция комнат
Если в трешке живет целая семья, то связанные между собой комнаты лишают людей личного пространства.
Чтобы их сделать отдельными, между ними полностью сносятся перегородки и строятся заново, однако с учетом того, что сбоку от них пройдет коридор с отдельными входами.
Перепланировка трехкомнатной хрущевки в панельном доме. Перепланировка 3-х комнатной хрущевки: чудо превращения возможно
8 мин.
Планировка
Каждый человек мечтает о просторном, красивом и удобном жилье, однако желания часто не совпадают с возможностями. Особенно остро проблема нехватки места ощущается в хрущевках, которые строились как временное жилье, поэтому о комфортном проживании в этих зданиях никто не задумывался. В таких домах квартиры «славятся» малым метражом и крайне неудобной планировкой, поэтому хозяева вынуждены прикладывать максимум усилий, чтобы превратить неуютные «хрущобы» в место, подходящее для жизни. Наличие трех комнат в них тоже не означает большой жилплощади. Нередко она ограничивается 50-55 м2. Однако спасение есть: это перепланировка 3-х комнатной хрущевки, задача трудная, но посильная. Правильная реорганизация пространства позволит преобразить жилье, сделать его максимально комфортным, стильным, современным и функциональным.
Особенности квартир в хрущевках

Такие типовые дома начали возводить в конце 60-х годов. Строительство шло ударными темпами, потому что главной задачей было обеспечение временным жильем всех нуждающихся. Она была решена, а хрущевки из временного неудобного жилья вдруг превратились в постоянные «пристанища». Обидное прозвище «хрущоба» такие здания заслужили, потому что квартиры в них обладают незавидными характеристиками. Они не могут гордиться:
- маленькой площадью, которая чаще не превышает 60 м2;
- невысокими или очень низкими потолками (до 2,5 мм);
- узкими и тесными коридорами, проходными комнатами;
- крошечными кухнями и такими же совмещенными санузлами;
- довольно плохой звуко-, теплоизоляцией.
В некоторых хрущевских «апартаментах» есть балконы, кладовки и встроенные антресоли. Главное отличие их от других жилых зданий — отсутствие внутренних несущих перегородок. Эта особенность — несомненное достоинство, она позволяет преобразить пространство, улучшив вид и функционал квартир, но не затратить много сил на узаконивание такой операции.
Способ реорганизации жилья зависит лишь от первоначального расположения всех «хрущобных» помещений. Есть несколько типов таких квартир, поэтому перепланировка 3-х комнатной хрущевки в каждом конкретном случае будет своя. Типичные варианты жилья:

- две крошечные комнатки и одна просторная;
- пара больших смежных комнат и одна отдельная, но маленькая;
- жилые комнаты, расположенные по обе стороны коридора;
- почти идеал — все комнаты прилегают к коридору, поэтому имеют отдельные входы.
В последнем случае серьезной перестройки не требуется. Нередко в одной из комнат прячется небольшая кладовка. В этом помещении имеет смысл устроить спальню, а кладовку превратить в гардеробную. Одна из комнат становится гостиной. Если в семье есть ребенок, то третью, маленькую, отдают в его распоряжение. Когда у супругов несколько детей, они, наоборот, получают большое помещение.

Перепланировка трехкомнатной квартиры с длинным коридором. Стиль для узкого коридора
Обладатели небольших помещений живут в нужное время. Были года, когда мода требовала захламлять обилием деталей и элементов даже сравнительно небольшие помещения. Хорошо, что это уже в прошлом. Современные технологии ремонта вместе с лаконичной модой способны слепить из узкого коридора совершенное пространство, ничем не уступающее широкой комнате по функционалу.
 Дизайн коридора в трехкомнатной квартире
Дизайн коридора в трехкомнатной квартире
Первым этапом оформления коридора станет выбор его стиля. Существуют такие варианты:
- Минимализм. Самое простое решение для небольшого пространства. Предпочтительно использование светлых тонов и освещения, максимально приближенного к естественному. Характерно установка одного единственного акцента.
- Классика. Благодаря классическому стилю оформления, достигается эффект аристократичности, дороговизны. В интерьере используются натуральные материалы: светлое дерево, мрамор. Лаконичный декор только подчеркивает общую сдержанность.

- Прованс. Французский стиль отличается своей романтичностью и мягкими, пастельными тонами. Эффект достигается за счет цветочных мотивов, искусственного состаривания поверхностей, рюша и изящных форм.
- Кантри. Благодаря простым натуральным материалам, деревенскому декору и обилию теплых тонов создается максимально уютная атмосфера, располагающая к домашнему отдыху.
- Восточный стиль. Дорогой, но идеально подходящий для узкого коридора стиль. За счет фигурных ножек мебели создается эффект легкости и воздушности, чего так не хватает небольшому пространству.
