Стандартная площадь двухкомнатной хрущевки. Основные характеристики двухкомнатных квартир типа «хрущевки»
- Стандартная площадь двухкомнатной хрущевки. Основные характеристики двухкомнатных квартир типа «хрущевки»
- Планировка хрущевки 2 комнаты 44 м. Что такое планировка трамвай?
- Размеры хрущевки 2 комнаты. Для сталинки
- Общая площадь дома хрущевки. «Хрущевки» с их достоинствами и недостатками
- Площадь хрущевки 3 комнаты. Типовые серии хрущевок. Фото планировок
- Планировка хрущевки 5 этажей. Планировка «хрущевка»: история «хрущевской» планировки квартир
- Хрущевка планировка 2-х комнатная угловая. Отличительные черты планировки хрущевок в кирпичных домах
- Размеры хрущевки 1 комната. Хрущевки. Типовые планировки
Стандартная площадь двухкомнатной хрущевки. Основные характеристики двухкомнатных квартир типа «хрущевки»
Первое применение таких планировок в 4-х или 5-ти этажных домах не отличалось большой квадратурой комнат. Постройки были из кирпича или панельного типа.
Основные параметры:
- Высота потолков достигала отметки 2,5 метра.
- Слабые звукоизоляционные свойства.
- Железобетонные перекрытия.
- Вид крыши – плоский.
- На одном этаже располагалось около 3-4 квартир.
- Некоторые помещения были оборудованы газовыми колонками.
- Первые этажи без балконов и лоджий.
- Основная площадь жилплощади – 30-46 кв.м.
- Спальная комната в среднем площади – от 8.5кв.м.
- Гостиная – от 14кв.м.
- Кухни – от 5 кв.м.
Многие российские семьи в то время впервые обзавелись собственным жильем.
В настоящее время дома такого типа находятся в аварийном состоянии и подлежат сносу, так как их эксплуатация не была рассчитана на длительный срок. Но позже при их строительстве применялись технологии, увеличивающие надежность и долговечность всей конструкции, а также срок их использования до 100-150 лет с учетом проведения планового капитального ремонта, который должен был проводиться через каждые 50 лет.
Некоторые постройки должны были прослужить не больше 30-50 лет и имели статус временного жилья.
Во времена, когда срочно требовалось жилье для большого количества семей, такой вид постройки домов считался самым оптимальным вариантом. Большое число малогабаритных квартир в доме могло вместить много нуждающихся в жилье людей. Архитектурные особенности таких домов не отличались изысканным фасадом, применялась простота и минимализм. Лифт и мусоропровод в пятиэтажных домах того времени не предусматривались.
Панельные и кирпичные многоэтажки возводились в считанные месяцы.
В настоящее время хрущевки требуют переоборудование электропроводок, потому что они не поддерживают современное количество электротехники. Необходимо автоматизирование таких ресурсов, как обогревательное и водно-распределительное оборудование. Теплоизоляция – слабая, что требует дополнительного монтажа внешних панелей для улучшения этих свойств.
Стандартная площадь двухкомнатной хрущевки – около 43-44 кв метров.
Планировка хрущевки 2 комнаты 44 м. Что такое планировка трамвай?
Еще один распространенный вариант планировки жилья в многоквартирных домах – «вагончик» или «трамвай». Главный признак – продольное положение совмещенных комнат, с окнами, выходящими в противоположные стороны, как в двух сцепленных один за другим вагонах. Общая площадь бывает довольно большой, приближенно к 48–50 квадратным метрам. Но основное неудобство заключается в наличии проходного помещения.
В девятиэтажных домах квартиры в 50-е годы отличались тем, что проходные комнаты в них отсутствовали.»Мини-улучшенки» в пятиэтажках имеют схожую планировку, с маленьким отличием – узкий коридор, играющий роль прихожей, из которого двери ведут в большое и малое помещения. С третьей стороны, параллельно гостиной расположены в ряд кладовая и санузел, ванная и кухня. Но размеры жилого пространства невелики, и кухня довольно скромная. Но эти недостатки перевешиваются наличием кладовки.
Еще один довольно интересный вариант хрущевки – «бабочка» или, как ее многие называют в народе, «распашонка». Планировка напоминает распахнутые крылья бабочки двумя одинаковыми комнатами, вытянутыми продольно по обе стороны от нежилой части, включающей в себя прихожую, узкий коридор мимо санузла с ванной и кухню. Балкон выходит обычно на сторону кухни.
Такой тип планировки довольно редок и встречается в подъездах с тремя квартирами на площадке, преимущественно в средней. Он открывает интересные возможности внесения изменений в проект путем создания дополнительных проемов и перегородок.
Где и как производится согласование перепланировки квартиры?
Документы для получения разрешения на перепланировку
Разрешение на перепланировку квартиры обычно выдается компетентными органами местного самоуправления административного района, в котором расположено жилье. Чтобы выяснить конкретное расположение и название этой организации, степень ее полномочий, можно обратиться в управляющую компанию, которая обслуживает конкретный дом.
Размеры хрущевки 2 комнаты. Для сталинки
В большинстве случаев первоначальная стандартная планировка сталинки устраивает всех жильцов. Но находятся и те, которые хотят что-то изменить на свой лад, сделать своё жильё уникальным и особенным.
Один из видов перепланировки в сталинке является изменение формы или размеров коридора. Да, такие квартиры оснащены слишком длинным коридором, пространство которого можно было бы применить с пользой, по мнению жильцов. А сэкономленные метры можно добавить к жилой комнате, кухне или санузлу.

Перепланировка в сталинке
В принципе, размеры комнат сталинок и так довольно большие, но лишние квадраты никогда не помешают. При перепланировке коридора не должно возникать проблем или трудностей. Но предварительно посоветоваться со специалистами всё-таки нужно для проведения точных расчётов и подтверждения безопасности сноса деревянных перегородок без ущерба конструкции здания.
Некоторые креативные жильцы, которые нуждаются в увеличении пространства даже в сталинке, подходят к решению этого вопроса с нестандартной стороны. Они не разделяют пространство на несколько комнат или не объединяет его, а пользуются высотой потолков.
На заметкуКак это происходит? Высота потолков от 3 метров позволяет создавать дополнительные этажи в некоторых комнатах при помощи бруса или досок. Плюс такой конструкции в том, что для неё не нужно получать разрешение на строительство, так как не происходит изменений в несущей конструкции.
Новоиспечённая двухэтажная комната обычно имеет высоту нижней части приблизительно 2 м, а верхней – 1 м. Да, полноценным этажом это назвать невозможно. Но зато можно оборудовать полноценное спальное место наверху даже для двоих человек, а под ним удачно разместить, к примеру, кабинет.
Общая площадь дома хрущевки. «Хрущевки» с их достоинствами и недостатками
В свое время строительство новых панельных домов считалось прорывом, так как смогло обеспечить жильем множество семей, расселить коммунальные квартиры и бараки. Несмотря на то, что эти дома не любят за серость и некрасивость, они спровоцировали скачок в развитии промышленности. Строились заводы и комбинаты по производству панелей и перекрытий. Микрорайоны росли, как грибы после дождя, благодаря технологии постройки. Конструкции везли прямо с завода, на стройплощадке монтировали и отделывали. Дома собирались подобно этажерке, бригады работали в три смены, производительность труда повышалась. Типовая пятиэтажка монтировалась за 12 дней, отделка занимала 30 дней Строительство дома длилось ни много ни мало около 50 дней.

«Культурная столица» всегда старалась идти своим путём, и уже через несколько месяцев, в мае 1955 года, в Невском районе Ленинграда, на улице Полярников, № 10 появляется свой бескаркасный 30-квартирный панельный дом (авторы проекта — архитектор Александр Васильев и инженер Зиновий Каплунов). Сборка здания заняла 79 дней, с учётом отделочных работ — 102 дня. Планировки квартир этого дома не похожи на всем известные «хрущевки» — они скорее напоминают «сталинские» дома. Большинство просторных комнат изолировано; огромные окна — по два в каждой, очень высокие потолки (3,5 м), большая даже по сегодняшним меркам кухня (12–14 кв.м), туалет и ванная разделены, и даже входные двери в каждую квартиру сделаны из дуба. Технология была отработана и готова к массовому строительству, но Хрущёв посчитал проект слишком дорогим. Ленинградское же начальство в своё время сочло эксперимент удачным, и в Невском районе уже полным ходом шло возведение первых в СССР крупнопанельных кварталов типовой застройки.
Площадь хрущевки 3 комнаты. Типовые серии хрущевок. Фото планировок
С 1957 года, после принятия закона, который предусматривал устранение излишеств в проектировании домов, в СССР стали возводиться здания нового типа. В народе такие дома получили название «хрущевки» (производное от фамилии генерального секретаря ЦК КПСС Н.С. Хрущева). Такие дома получили второе название – хрущебы, в основном, из-за неудобной и непропорциональной планировки комнат, узких коридоров и пролетов площадок, тонких стен и как результат – ужасной шумоизоляции. В этой статье мы расскажем о том, что такое типовые серии хрущевок, постараемся выделить основные плюсы и минусы этих зданий. Особенности планировки предоставим в виде описаний и фото.
Типовые серии хрущевок: основные плюсы и минусы домов
Давайте рассмотрим основные характеристики квартир и определим особенности каждой серии хрущевок, которые возводились на протяжении 27 лет. Стоит заметить, что изначально хрущевки предполагалось использовать, как временное жилье и эксплуатационный срок здания составлял от 25 до 50 лет. Но, как известно, в таких домах проживают люди и в наше время. К минусам хрущевок можно отнести плохую шумоизоляцию и теплоизоляцию (зимой прохладно, а летом слишком жарко в квартире), не всегда удачную планировку квартиры и подъезда: узкие коридоры, маленькую кухню, отсутствие мусоропровода и очень часто лифта. К основным плюсам таких домов можно отнести невысокую стоимость.
К основным плюсам таких домов можно отнести невысокую стоимость жилья и развитую инфраструктуру вокруг здания. Как правило, недалеко от хрущевок есть садики, школы, магазины и отличная транспортная развязка. Если денежных средств на покупку квартиры мало, то– не самый плохой вариант. Тем более, такие здания в Москве и других городах России, подлежат сносу, в этом случае владельцы получают новенькое жилье, или реконструкции и перепланировке.

Серия 1-464 (1960 – 1967 гг.)
Общий чертеж:

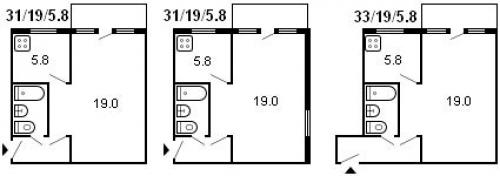
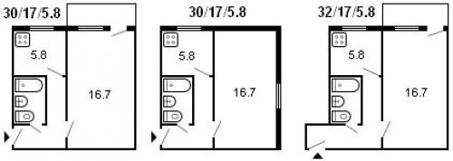
Одной из самых популярных в СССР серий хрущевок стала 1-464 (1960 – 1967 гг.). Это панельный дом с 5 этажами, редко можно встретить 3 и 4 этажные здания. Во всех квартирах есть балконы (также дополнительные кладовки), а вот лифты не предусмотрены и жителям здания приходиться подниматься и спускаться по ступенькам, что достаточно тяжело пожилым людям, семьям с маленькими детьми. Санузлы в квартирах совмещенные, в подъезде нет общего мусоропровода, а количество квартир на площадке составляет 4. Высота потолков в квартирах – 2,5 м2, кухни менее 6 м2, если быть точнее – 5,8 м2. Квартиры 1, 2 и 3-х комнатные.
Картинка – чертеж:
1 комнатная:

2 комнатная:



3 комнатная:

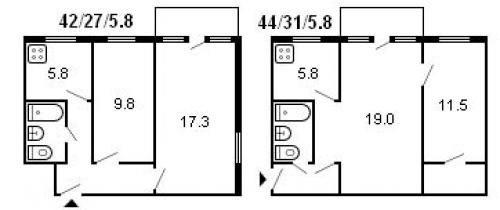
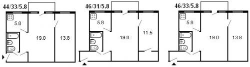
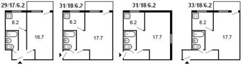
Серия 1-335 (1963 – 1967 гг.)
С 1963 по 1967 гг. территория застраивалась домами серии 1-335. Это тоже панельные здания, с высотой потолков 2,54 м., балконами в каждой квартире, совмещенными санузлами, отсутствием лифта и мусоропровода. Площадь кухни немного больше, чем в предыдущей серии – 6,2 м2, площадь потолков – 2,5 м. На площадке располагается четыре квартиры – от 1 до 3-х комнатной. Помимо балконов в квартирах есть дополнительные кладовки и встроенные шкафы.
1 комнатная:

2 комнатная:

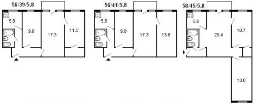
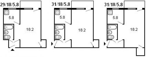
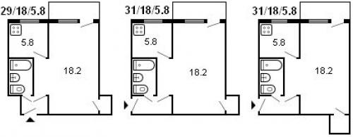
Серия 1-434 (1958 – 1964 гг.)
Эта серия строилась с 1958 года по 1964 год, в различные года застройки немного видоизменялись планировки квартир. Так, например, в зданиях 1958 года в однокомнатных квартирах площадь жилой комнаты составляла 18,6 м2, а в 1959 году она уменьшилась до 18,2 м2, в 1969 г. – площадь комнаты составляла 17,7 м2. И так во всех типах квартир площадь жилых помещений варьировалась в сторону уменьшения и увеличения. А вот площадь кухни осталась неизменной – 5,8 м2, как и высота потолков – 2,5 м. Дома – кирпичные, совмещенные санузлы, а в каждой квартире есть балкон, кладовая и встроенные шкафы.





Планировка хрущевки 5 этажей. Планировка «хрущевка»: история «хрущевской» планировки квартир
Крупнопанельная планировка Хрущевки серии 1-335 самая распространенная планировка домов на территории России. Самое большое их количество было построено в Санкт-Петербурге, теперь же по количеству эксплуатируемых домов этой планировки лидирует Омск.
Данная планировка домов предусматривает также утепленные минватой дома, которые внешне отличаются отделкой фасада мелкой керамической плиткой и имеют сине-голубой цвет. Данное отличие делает их немного более привлекательнее внешне, но внутри они обычные «хрущевки».
Планировка дома «хрущевки» серии 1-335 имеет внешнее сходство с серией домов 1- 507, которые имеют народное наименование «брежневки», с более удачной планировкой квартир и кухней, площадью около 7 кв. метров.
Что примечательно, начавшееся в 1959 году строительство «хрущевок», которые были предназначены для Москвы и Питера, в 1966 году было приостановлено, в виду несоответствия климатическим условиям. Но как ни странно, это не помешало модернизировать эти серии домов (1-335АК и 1-335Д, 1-335К, 1-335А) и возводить их по всей стране, независимо от климатических условий вплоть до окончания 1980-ых годов.
В настоящее время в той же Москве, по мнениям некоторых экспертов снос домов «хрущевок» будет завершен примерно в 2015 или в 2017 гг. В соседнем Санкт-Петербурге производят капитальные ремонты домов этой серии, некоторые тоже отправляют под снос.
Что касается Хабаровска, то скорее всего планировка квартир данного типа останется актуальной еще достаточное количество времени, ведь сносить их дело невыгодное…
Расположение домов в Хабаровске с планировкой «хрущевка»
В планировке квартир «хрущевка» тоже присутствует и самая, пожалуй плотная застройка на территории 1-го Микрорайона. Имеются также на ДОСах, в районе Хабаровск-2, районе 38 и 51 школы, в Южном микрорайоне и других.
Хрущевка планировка 2-х комнатная угловая. Отличительные черты планировки хрущевок в кирпичных домах
При рационализации строительства панельных домов было принято решение заменить железобетонные панели, которые в то время использовались для строительства на силикатный кирпич. Его было удобно перевозить на место стройки. Был заново разработан новый проект, который немного отличался от разработанного до этого для панельных зданий.

Если в двухкомнатной хрущевке проживает пара или семья с ребенком, квартира нуждается в переделке.
Было разработано новое архитектурное новшество, которое подразумевало переделку комнат с использованием продольного расположения. Это уменьшало количество однокомнатных квартир в жилом доме. Изменились также габариты кухни – они стали меньше, но увеличилась площадь, которую занимают кладовки и добавились лоджии.

Если снести все стены (за исключением несущих), получится квартира со свободной планировкой.
Угловая 2 комнатная хрущевка отличается измененной планировкой, которая выводит окна на две стороны, и существует возможность обзора улицы с разных ракурсов. На этом плюсы этой жилплощади заканчиваются. При возведении панельных домов стены делались тонкими, что уменьшало их теплоизоляционные свойства.

Эти квартиры были холоднее по сравнению с другими, которые находились, например, внутри здания.
В кирпичных домах, где стены достаточно толстые (полметра и больше), такая проблема с промерзанием угловых стен не бывает такой актуальной. В таких помещениях намного теплее и комфортнее.
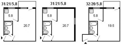
Размеры хрущевки 1 комната. Хрущевки. Типовые планировки
Массовое строительство хрущевок началось в 1958 году и длилось до 1985. В то время тысячи семей получили собственное жилье в 4-5-ти этажных панельных и кирпичных домах. Комнаты были очень маленькими и в большинстве случаев проходными, коридоры были узкими и темными, а санузлы сразу были совместными. Высота потолков составляла 2.48 м, в редких случаях – 2.7 м. Площадь однокомнатных квартир не превышала 29-33 кв.м. из которых 5.8-6.2 метра отводились под кухню, от 15.9 до 20.7 метров – под гостиную. Остальную площадь занимал коридор и ванная комната. Размеры помещений зависели от года постройки и серии и имели следующие типовые планировки:

Примечательно, что практически все однушки имели балкон и почти одинаковое расположение комнат. Прежде чем приступить к каким-то радикальным мерам , необходимо четко знать:
- Точное количество проживающих. Ведь одно дело проводить работы по организации комфортного проживания для одного человека, и совсем другое – для молодой семьи с ребенком. Требования будут кардинально отличаться, разделение площади будет совсем иным;
- Без каких функциональных зон вы точно не сможете прожить. Речь идет о таких «помещениях», как рабочий кабинет или полноценная изолированная спальня. Ведь некоторые люди запросто используют диван в гостиной для ежедневного сна и чувствуют себя при этом абсолютно нормально, а на других такая открытость действует угнетающе;

От двух вышеперечисленных факторов будет зависеть объем работ, которые нам предстоит распланировать, необходимость сноса межкомнатных перегородок или, наоборот, возведения дополнительных. Не удивляйтесь. Но действительно не все дизайнеры рекомендуют делать из однушки квартиру-студию . Для того, чтобы жилье отвечало всем требованиям хозяев, иногда устанавливаются полноценные глухие перестенки из легких материалов – гипсокартона или газобетона. Поэтому, предварительно рекомендуют составить список из обязательных пунктов, которые вы хотите иметь. Это может быть что угодно – раковина напротив окна в кухне, стеллаж под личную библиотеку, бытовая техника, от которой вы не в силах отказаться и т.д. На основании этого списка нужно планировать дизайн интерьера и перераспределять пространство между зонами.
