Как спроектировать идеальную планировку для двухкомнатной хрущевки
- Как спроектировать идеальную планировку для двухкомнатной хрущевки
- Связанные вопросы и ответы
- Какие типичные особенности двухкомнатных квартир в хрущевках
- Как можно оптимизировать пространство в небольшой двухкомнатной квартире
- Какие есть способы модернизации планировки без проведения крупных ремонтных работ
- Стоит ли объединять гостиную и кухню, и как это сделать
- Как выбрать мебель для небольших комнат
- Какие самые распространенные ошибки при планировке хрущевки
- Можно ли переносить стены, и какие могут быть последствия
Как спроектировать идеальную планировку для двухкомнатной хрущевки
Встречаются разные варианты планировок:
«Книжки». Квартиры этой планировки имеют площадь в 42–43 м2. Их главная особенность – кухня, спальня и гостиная идут друг за другом. Проходная комната должна выполнять роль столовой. Если семья больше двух человек, придется в ней же спать, что очень неудобно. Жирный минус такой планировки – проходная комната останется проходной, как бы и что вы ни запланировали. Самый распространенный вариант изменения в такой комнате – снос перегородок между кухней и столовой (комната превращается в уверенную студию).

«Трамваи» (они же «Павровозики») – квартиры с метражом в 47 метров. В такой планировке две спальные комнаты располагаются смежно. При этом одна из них угловая, а вторая – проходная. Чаще всего при такой планировке «отрезается» часть проходной комнаты, достраивается стена и создается своеобразный коридор (в котором дополнительно размещают системы хранения вещей).

«Бабочки» (они же «Распашонки») – квартиры с метражом в 46 м2. Сразу за прихожей размещается кухня и санузел, комнаты располагаются по бокам. Достаточно удобный вариант, главный минус – санузел находится практически на кухне.

Неважно, какая именно планировка у вашей квартиры – с помощью продуманного ремонта ее можно превратить в дом вашей мечты.
Комплексный ремонт квартир под ключ
Всё включено
В стоимость ремонта входит всё: работы, материалы, документы.
Без вашего участия
После согласования проекта мы беспокоим хозяев только при сдаче ремонта.
Цена известна заранее
Стоимость ремонта фиксируется в договоре.
Фиксированный срок ремонта
Ремонт квартиры под ключ за 3,5 месяца. Срок закреплен в договоре.
Связанные вопросы и ответы:
Вопрос 1: Что такое хрущевка и как она отличается от других типов квартир
Хрущевка — это тип панельной квартиры, которая массово строилась в СССР в 1950-х — 1970-х годах. Основное отличие хрущевки от других типов квартир заключается в её компактных размерах и стандартной планировке. Эти квартиры были разработаны для решения жилищного кризиса и обеспечения максимального количества семей. В отличие от современных квартир, хрущевки имеют меньшие площади, но при этом они обладают определённым шармом и часто сохраняют историческую ценность. Кроме того, хрущевки обычно имеют thinner стены и более простую инфраструктуру, что может быть как недостатком, так и особенностью, которую можно преобразовать при ремонте.
Вопрос 2: Какие типичные планировки встречаются в двухкомнатных хрущевках
В двухкомнатных хрущевках можно встретить несколько типичных планировок. Одна из самых распространённых — это квартира с раздельным санузлом, где ванная и туалет находятся отдельно. Также часто встречается вариант с совмещённым санузлом, что немного увеличивает полезную площадь. В некоторых хрущевках вторая комната может быть проходной, что обеспечивает дополнительное освещение, но ограничивает возможность использования пространства. Ещё один вариант — это квартира с лоджией или балконом, что позволяет немного расширить жилую зону. Иногда можно встретить планировки с изолированными комнатами, что обеспечивает большую степень приватности.
Вопрос 3: Какие недостатки планировки двухкомнатных хрущевок
Одним из главных недостатков планировки двухкомнатных хрущевок является их небольшая площадь, что может создавать ощущение тесноты. Кроме того, комнаты часто имеют неудобную форму, например, вытянутую или узкую, что затрудняет размещение мебели. Ещё один недостаток — это отсутствие изоляции между комнатами, что может быть проблемой для семей, где нужно обеспечить тишину. Также в хрущевках часто отсутствует отдельная кладовая или место для хранения, что требует дополнительного решения. Наконец, планировка может быть не самая современная, что требует перепланировки для соответствия современным стандартам комфорта.
Вопрос 4: Можно ли улучшить планировку двухкомнатной хрущевки
Да, планировку двухкомнатной хрущевки можно улучшить. Один из способов — это перепланировка с объединением комнат или переносом стен. Например, можно объединить кухню и гостиную, чтобы получить больше пространства. Также можно добавить дополнительные разделители или шкафы-купе, чтобы зонировать пространство. Ещё один вариант — это использование световых конструкций, таких как арки или стеклянные перегородки, чтобы визуально увеличить площадь. Кроме того, можно заменить старые двери и окна на современные, что улучшит звукоизоляцию и энергоэффективность. Важно помнить, что любые изменения должны быть согласованы с управляющей компанией или местными властями.
Вопрос 5: Какие современные дизайнерские решения можно применить в двухкомнатной хрущевке
В двухкомнатной хрущевке можно применить множество современных дизайнерских решений, чтобы сделать её более комфортной и стильной. Например, можно использовать минималистский стиль с светлыми стенами и современной мебелью, что визуально увеличит пространство. Также можно добавить акцентные стены с яркими цветами или текстурами, чтобы создать уютную атмосферу. Ещё один вариант — это использование многофункциональной мебели, такой как диваны с хранением или столы-трансформеры, чтобы сэкономить место. Кроме того, можно добавить современные осветительные приборы, такие как светодиодные ленты или подвесные лампы, чтобы создать необходимое освещение. Наконец, можно использовать вертикальное озеленение или живые растения, чтобы добавить зелени и свежести в интерьер.
Вопрос 6: Как увеличить полезную площадь в двухкомнатной хрущевке
Для увеличения полезной площади в двухкомнатной хрущевке можно применить несколько эффективных решений. Во-первых, можно объединить кухню и гостиную, что позволит получить больше пространства для отдыха и приготовления пищи. Во-вторых, можно использовать встроенные шкафы и полки, чтобы максимально использовать вертикальное пространство. Также можно установить раздвижные двери или перегородки, чтобы разделить пространство без потери полезной площади. Ещё один способ — это использование зеркал и глянцевых поверхностей, которые визуально увеличивают пространство. Наконец, можно провести перепланировку с переносом стен или дверей, чтобы оптимизировать использование каждого уголка квартиры.
Вопрос 7: Какие особенности ремонта в хрущевках, которые стоит учитывать
При ремонте в хрущевках есть несколько особенностей, которые стоит учитывать. Во-первых, необходимо учитывать, что стены и потолки могут быть thinner и менее прочными, что требует осторожности при установке тяжёлой мебели или конструкций. Во-вторых, важно проверить состояние коммуникаций, таких как трубы и электрические сети, которые могут быть устаревшими и требовать замены. Также стоит учитывать, что в хрущевках часто отсутствует центральное отопление, что может потребовать установки дополнительных обогревательных приборов. Ещё один момент — это необходимость согласования перепланировки с управляющей компанией или местными властями, чтобы избежать юридических проблем. Наконец, важно выбирать материалы и техники, которые подходят для старых домов и обеспечивают долговечность ремонта.
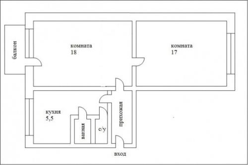
Какие типичные особенности двухкомнатных квартир в хрущевках
Нельзя начать ремонт двухкомнатной квартиры хрущевки без понимания ее особенностей.
Кухня с небольшим метражом (5–6 метров).
Низкие потолки.
Одна из комнат – проходная.
Санузел и ванна совмещенные, при этом у комнаты небольшой метраж, который не позволяет смонтировать стандартную ванную.
Если отдельная кладовка.
Если квартира расположена не на первом этаже – есть балкон или лоджия.
Еще две грустные особенности «хрущевок» – очень малый метраж прихожей и плохая шумоизоляция. Впрочем, практически все недостатки квартиры можно нивелировать современным ремонтом.

Скажем еще пару слов об особенностях планировок в домах разных серий, а потом дадим рекомендации по улучшению ситуации.
Метражи и особенности планировки двухкомнатных хрущевок
Встречаются разные варианты планировок:
«Книжки». Квартиры этой планировки имеют площадь в 42–43 м2. Их главная особенность – кухня, спальня и гостиная идут друг за другом. Проходная комната должна выполнять роль столовой. Если семья больше двух человек, придется в ней же спать, что очень неудобно. Жирный минус такой планировки – проходная комната останется проходной, как бы и что вы ни запланировали. Самый распространенный вариант изменения в такой комнате – снос перегородок между кухней и столовой (комната превращается в уверенную студию).

«Трамваи» (они же «Павровозики») – квартиры с метражом в 47 метров. В такой планировке две спальные комнаты располагаются смежно. При этом одна из них угловая, а вторая – проходная. Чаще всего при такой планировке «отрезается» часть проходной комнаты, достраивается стена и создается своеобразный коридор (в котором дополнительно размещают системы хранения вещей).

«Бабочки» (они же «Распашонки») – квартиры с метражом в 46 м2. Сразу за прихожей размещается кухня и санузел, комнаты располагаются по бокам. Достаточно удобный вариант, главный минус – санузел находится практически на кухне.

Неважно, какая именно планировка у вашей квартиры – с помощью продуманного ремонта ее можно превратить в дом вашей мечты.
Комплексный ремонт квартир под ключ
Всё включено
В стоимость ремонта входит всё: работы, материалы, документы.
Без вашего участия
После согласования проекта мы беспокоим хозяев только при сдаче ремонта.
Цена известна заранее
Стоимость ремонта фиксируется в договоре.
Фиксированный срок ремонта
Ремонт квартиры под ключ за 3,5 месяца. Срок закреплен в договоре.
Как можно оптимизировать пространство в небольшой двухкомнатной квартире
Чтобы расширить производство или повысить эффективность деятельности, предприятию необходимо произвести модернизацию производства. Модернизация современного производства может осуществляться экстенсивным и интенсивным путем .
К экстенсивным методам модернизации относят увеличение количества цехов, работников и станков в цехе. При этом сохраняется прежняя технология производства продукции и не вносятся инновации в процесс. К интенсивным путям модернизации относят улучшение технологического процесса за счет внедрения новых технологий и методов работы, изменения структуры предприятия.
Модернизацию производства с помощью экстенсивных и интенсивных способов осуществляют по следующим направлениям.
- Совершенствование технологии производства, выпуск более качественной и востребованной на рынке продукции. К совершенствованию технологии на предприятии можно также отнести улучшение технологической дисциплины производства, отслеживание расхода режущих инструментов, списание сырья и материалов по утвержденным нормам расхода.
2. Автоматизация производства . После внедрения автоматизации предприятие начинает работать более эффективно, повышается производительность, высвобождается часть работающих.
3. Механизация оборудования . В этом случае улучшается ресурс работы оборудования и сокращается время его простоев, снижаются расходы на ремонт. Такой результат достигается через покупку и внедрение более производительных и качественных станков.
Для сокращения простоев оборудования по механической части вводят ряд организационных мероприятий:
- оптимизация штатного расписания ремонтной службы;
- оптимизация и отслеживание ремонта оборудования;
- повышение квалификации работников, которые ремонтируют и обслуживают оборудование.
Модернизация на производстве может осуществляться и по энергетической части . Здесь сокращаются затраты на электроэнергию, устанавливается более энергосберегающее оборудование, подбираются оптимальные по мощности двигатели, чтобы исключить перерасход электроэнергии.
Какие есть способы модернизации планировки без проведения крупных ремонтных работ
Вечная проблема - как на ограниченных квадратных метрах разместить всю необходимую мебель с учетом функционала, эстетичности и практичности. При этом желательно оставить свободное место, чтобы по комнате можно было еще и перемещаться.
Многие ли городские жители могут похвастаться шикарными апартаментами? Увы, нет. Жителям перенаселённых мегаполисов часто приходится ютиться в очень ограниченном пространстве. Но мириться с неудобствами не хочется. Как подружить тесноту с комфортом? Рассказываем о способах решения этой проблемы.
Основной принцип расстановки мебели в маленькой комнате: компромисс во всем
Если в комнате не нужно спальное место, то вполне можно отказаться от дивана, даже самого компактного. Редко, когда на диване все члены семьи или гости, садятся вплотную друг другу. Это не просто неудобно, но еще и дискомфортно. Так почему бы не заменить обычный диван на кресла мешки или мягкие стулья-кресла небольших размеров.
Такой подход обеспечит:
- визуальное расширение пространства, за счет отдельно стоящих предметов мебели и пространства между ними;
- интересный интерьер, где прослеживается нетривиальный подход к планировке комнаты;
- удобное размещение всех членов семьи и гостей, без необходимости нарушать личное пространство каждого из сидящих.
Если маленькая комната несет в себе функционал спальни, то без дивана не обойтись. Именно диван, а не кровать, потому что у него есть возможность раскладываться. В небольших помещениях такая способность на вес золота.
К выбору дивана в таком случае необходимо подходить с особой ответственностью.
Чтобы, нужно учесть следующие факторы:
- Простота и удобство механизма трансформации, так как складывать и раскладывать его придется на ежедневной основе, этот ритуал должен проходить предельно быстро и удобно;
- Отсутствие интерьерных подушек, боковых валиков, такие элементы загромождают пространство, а на практике редко используются в повседневной жизни;
- По способу установки лучше выбирать прямой, потому что угловые обычно имеют большие размеры и могут возникнуть проблемы с организацией пространства относительно расположения угла дивана;
- Закругленные углы, угловатый, квадратный диван визуально воспринимается больше, поэтому чтобы создать иллюзию обмана, выбирайте мебель с округлыми, плавными формами;
- Крупный узор, если обивка дивана с принтом, следует отдавать предпочтение более габаритным рисункам, так как маленький узор визуально делает мебель больше;
- Аккуратные, не выпирающие ножки придают мебели элегантный вид. Диван словно парит в воздухе, что позволяет зрительно увеличить пространство. Выпирающие ножки — это неудобно, и они отнимают заветные сантиметры;
- Цвет дивана должен быть максимально приближен к пастельным тонам. Чем светлее, тем больше кажется помещение. Исключение может составить только интерьерный акцент, когда все предметы мебели и оформление стен, потолка и пола, выполнены в светлых тонах, темный диван не испортит впечатления, а напротив, станет отвлекающим элементов от скромных габаритов помещения.
Сегодня найти диван, который соответствует перечисленным выше параметрам, проблем не составит. Производители мебели делают акцент на малогабаритных элементах, так как спрос на них гораздо выше, чем на остальные модели.


Стоит ли объединять гостиную и кухню, и как это сделать
Дома, возведенные во времена СССР, предназначались для временного проживания. Такие квартиры имеют невысокую стоимость из-за не полного соответствия современным требованиям к качеству проживания в них людей. Для того, чтобы преобразить подобное жильё, придав ему современные качества и дизайн, требуется вложение немалых финансовых средств.

Наиболее часто владельцы хрущевок допускают досадные ошибки при ремонте своих квартир, ведущие к переделке работы. Вот самые распространенные из них.
Ошибка № 1
Отсутствие плана работ приведет к нарушению последовательности работ, не позволит определить точные сроки их выполнения и рассчитать итоговую смету ремонта. Ремонт следует начинать с удаления старой отделки потолка, стен и пола. Затем производят демонтаж сантехники, радиаторов отопления и коммуникационных сетей. Ремонт производят в обратной последовательности – сначала монтируют трубопроводы и систему отопления, затем прокладывают коммуникации, осуществляют черновую отделку потолка, стен и устанавливают сантехнику. На последнем этапе делают финишную отделку квартиры в той же последовательности.

Ошибка № 2
Газовые трубы и канализационные стояки в хрущевках проведены поверх стен. Самовольный перенос таких коммуникаций строго запрещен. Поэтому нельзя замуровывать газовую трубу в поверхность стены, даже если она имеет неэстетичный внешний вид. Лучше сделать для нее съемный декоративный короб. В противном случае, газовая служба заставит владельца сломать всю отделку.

Ошибка № 3
Не стоит оставлять к квартире старые чугунные и металлические трубопроводы. Их следует заменить пластиковыми трубами. Особенно это касается канализационного стояка, заменить который можно по согласованию, совместно с соседями.

Ошибка № 4
При попытке установить на кухне вытяжку над плитой, многие владельцы квартир обнаруживают, что вентиляционная шахта полностью забита и очистить ее, не представляется возможным. В таких случаях прокладывают собственную вентиляцию. Проведение работ без участия специалиста, приведет к возникновению неприятностей со стороны соседей и обслуживающей организации. Ведь при монтаже собственной вентиляции, можно повредить общие коммуникационные сети и центральную вентиляционную шахту.

Ошибка № 5
Если вентиляционная шахта в рабочем состоянии, то многие монтируют в нее трубу кухонной вытяжки, полностью перекрывая решетку в комнату. Делать этого категорически нельзя, так как нарушается вентиляция квартиры. Воздух в ней становится влажным, появляется сырость и плесень, становится душно. Чтобы не допустить этого, следует расширить вход в вентиляционную шахту, установив трубу рядом с вытяжной решеткой в кухню.

Как выбрать мебель для небольших комнат
Все зависит от зависит от того, несущие стены в квартире или нет.
Ненесущие перегородки можно передвигать, делать новые или сносить. Например, при объединении электрифицированной кухни с комнатой ее можно убрать целиком. Или снести стену между туалетом и ванной – в большинстве случаев их разделяет перегородка, которая спокойно разбирается.
Несущие стены нельзя демонтировать ни частично, ни, тем более, полностью. Единственный разрешенный вариант – это создание нового проема. Но даже в этом случае бывают исключения.
Например, в 3-комнатной квартире серии II-18 несущая стена между комнатами является диафрагмой жесткости, которая влияет на распределение нагрузки на перекрытия. Ее никак нельзя затрагивать – не допускается даже новый проем.
Вот, что можно делать в квартире при перепланировке стен:
- объединять ванную и санузел или, наоборот, разделять их;
- размещать гардеробные в комнатах и прихожей;
- переносить проемы;
- менять границы помещений – делать комнаты больше или меньше, передвигая ненесущие перегородки;
- преобразовывать из одной комнаты две или из двух – одну;
- объединять комнату с прихожей для гостиной-холла;
- объединять кухню и комнату в столовую.
Если вы планируете какую-то из этих перепланировок, пришлите нам серию дома, прикрепите план БТИ и получите бесплатную консультацию. Мы расскажем, можно ли реализовать идею в вашей квартире:
Здравствуйте! Вы можете задать мне любой интересующий вопрос в WhatsApp.
Получите консультацию специалиста или отправьте нам на предварительную оценку необходимые документы.
Какие самые распространенные ошибки при планировке хрущевки
Днем рождения хрущевок принято считать 31 июля 1957 года, день принятия постановления «О развитии жилищного строительства в СССР», положившего начало массовой застройке российских городов. Жильем должны были в кратчайшие сроки обеспечить много людей, так что строили быстро. Основным материалом для постройки стали панельные блоки, квартиры были в основном одно- и двухкомнатными.
В 1960-х годах ставка делалась именно на скорость возведения и метраж жилых помещений. Кухни, санузлы и коридоры планировались по остаточному принципу, и это сказывается на планировках, отличительная особенность хрущевок — маленькие кухни, коридоры и санузлы. Отсутствие лифтов и технических этажей наверху для жильцов верхних этажей тоже можно считать недостатком первых домов периода массовой застройки, хотя в свое время на это не обращали внимание — куда важнее было решить квартирный вопрос в масштабах страны.
Ранние хрущевки отличались сидячей ванной (около 1,2 кв. м). По мере изменения начали появляться полноценные ванные (1,5 кв. м) и кухни по 6 кв. м, дополняет Евгений Коблов.
При всей тесноте хрущевок, архитектура домов продумывалась очень тщательно. Взять хотя бы «лестничные марши» хрущевок — они были сконструированы так, что по ним можно было занести на верхний этаж и неразбирающийся диван, и вынести гроб, говорит Евгений Гриневич. Да и пять этажей в доме — это не просто так. До пятого этажа без особого труда можно дойти пешком, ведь лифт — это дополнительный расход при строительстве, а средства нужно было экономить, добавляет эксперт.
Плюсы хрущевок:
- невысокая стоимость строительства;
- низкие цены на коммунальные услуги. Благодаря небольшому метражу и невысоким потолкам коммунальные счета в хрущевках существенно ниже по сравнению с брежневками и современными новостройками;
- развитая инфраструктура. Вместе с домами строились поликлиники, магазины, детские сады и школы.
Минусы хрущевок:
- маленькая площадь квартир. Метраж даже трехкомнатных квартир довольно скромный, комнаты и кухни маленькие, санузлы совмещенные;
- высокий процент износа. Плановый срок эксплуатации хрущевки — 25 лет;
- ограничения в перепланировке. В блочных и панельных домах нельзя сносить стены.
Можно ли переносить стены, и какие могут быть последствия
Рассмотрим способы, позволяющие обустроить в таком пространстве главные функциональные зоны.
Совмещение кухни с гостиной
Подобный прием особенно хорош в том случае, когда размеры комнат не совпадают и меньшая из них примыкает к кухне. Демонтаж перегородки между помещением для готовки и смежным пространством позволит обрести значительно большую свободу действий. Однако обозначить зоны кухни и гостиной все-таки придется. Для этого можно:
- Разделить функциональные части помещения предметом в виде барной стойки, высокой спинки дивана или легкой раздвижной перегородки.
- Подобрать для каждой зоны свое напольное покрытие. Кухню, например, хорошо оформить крупной плиткой, а гостиную – ламинатом.
- Отделать стены отличными друг от друга способами. Здесь неплохо поэкспериментировать с цветами и фактурами.

Разделение кухни и гостиной.

Грамотное применение напольного покрытия.

Акцентная стена в гостиной зоне.
В оставшейся части квартиры можно обустроить спальню-детскую.
Муж и жена, а рядышком дитя
Речь идет о спальне, в которой будут комфортно чувствовать себя все члены семьи. Вернее, о спальне-детской, ведь помимо размещения кроватей в этой же комнате можно попытаться обустроить для сына или дочери собственный уголок.
Если ребенок совсем кроха, удобно просто поставить его кроватку рядом с ложем родителей. Малыш всегда будет под боком, и успокоить его ночью не составит труда.

Спальня для родителей и малыша.
В дальнейшем, когда ребенок подрастет, лучше разграничить пространство, используя ширму, штору, широкий стеллаж или вертикальные жалюзи, и здесь находящие свое применение.

Сложенная штора между взрослой и детской зоной.
Вторая комната квартиры может стать гостиной, как отдельной, так и совмещенной с кухней или кабинетом.

Гостиная-кабинет.
Рациональная идея – спальня-гостиная
Можно вполне понять родителей, желающих отдать любимому чаду целую комнату. Это решение является еще больше оправданным, если муж и жена планируют в будущем иметь больше детей. Итак, когда нет сомнений в назначении одной из комнат, остается подумать о том, как наиболее выгодно использовать квадратные метры второго помещения. Неплохим решением является организация в нем спальни-гостиной.
Идею обустройства такой комнаты можно реализовать по-разному. Один из вариантов предполагает наполнение интерьера многофункциональными предметами. Здесь, например, неплохо поставить раскладные кресла или удобный диван, оснащенный откидной спинкой. С такой меблировкой одно и то же помещение днем будет выступать в роли просторного зала, а ночью – превращаться в уютную спальню.

Многофункциональная мебель в спальне-гостиной.
Можно обойтись и без предметов, способных трансформироваться. Тогда снова стоит прибегнуть к зонированию. Одно из удачных решений – отделение спального места от остального пространства с помощью балдахина.

Обособление спального места с помощью балдахина.
Сквозная перегородка, пропускающая свет, тоже неплохой вариант.

Сквозная перегородка в комнате.
Две комнаты: спальня и детская
При такой организации пространства основные помещения станут полноценными комнатами. Одна из них, являясь спальней, будет всецело принадлежать взрослым, другая станет уютным гнездышком для ребенка.

Приятно находиться в этой светлой бежевой спальне.

Отдельная детская комната.
Но куда в таком случае привести гостей? – Прямо на кухню. Конечно, при условии, что площадь этого помещения позволит разместить в нем хотя бы скромный диван.

Диван отлично вписался в кухню.