Варианты перепланировки двухкомнатной хрущевки. Три варианта перепланировки двухкомнатной хрущевки
- Варианты перепланировки двухкомнатной хрущевки. Три варианта перепланировки двухкомнатной хрущевки
 - Перепланировка двухкомнатной хрущевки с проходными комнатами. Обустройство квартиры без перепланировки
 - Перепланировка двухкомнатной хрущевки в трехкомнатную. Нарезка комнат по-новому
 - Перепланировка хрущевки распашонки. Перепланировка трехкомнатной квартиры в хрущевке-фото лучших вариантов
 
Варианты перепланировки двухкомнатной хрущевки. Три варианта перепланировки двухкомнатной хрущевки
Стандартная двухкомнатная квартира в хрущевке имеет два смежных жилых пространства, кладовку, мини-кухню, прихожую и ванную. Проживание в таких апартаментах не приносит особого комфорта, поэтому следует подумать о возможных вариантах перепланировки. Итак, если изначально ваша квартира была такой как на представленном фото, то можно выбрать три варианта ее трансформации. 

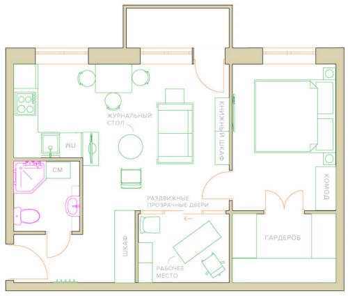
Квартира-офис для одного или двух жильцов
Здесь была объединена гостиная с кухней и прихожей, чтобы создать комфортную зону для встречи гостей. Спальня также была расширена на пятнадцать сантиметрам благодаря смещению перегородки. В результате этого в комнате сна получилось создать гардеробную. 

Особенностью данной планировки стал мини-кабинет, который отделили от гостиной стеклянной перегородкой с раздвижными дверями. Ванная стала более функциональной, так как чашу для купания заменили душевой кабиной, стиральной машиной, а также столешницей с ящиками для хранения предметов. 
Совет! Для оформления небольшой квартиры лучше выбрать цветовой контраст. Темное с сочетании со светлым делает пространство визуально более вместительным.

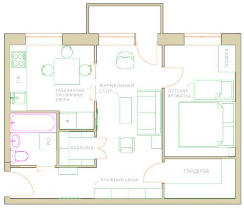
Двухкомнатная квартира для семьи из трех человек
Гостиная соединилась с коридором и автоматически увеличилась. Спальня стала больше благодаря смещению перегородки на пятнадцать сантиметров, чтобы поставить кровать для ребенка. Гардеробная остается на том же месте, как и в первом примере. Кладовая появилась в коридоре. Санузел имеет ванну, умывальник, стиральную машину и унитаз, то есть все необходимое для семьи с ребенком. 

Кухня увеличена и отделена от гостиной раздвижными дверями из стекла, чтобы в случае необходимости можно было объединить эти комнаты в одну. На уровне дверей будет отлично смотреться широкий шкаф в нише. 
Совет! Стены узкой спальни следует окрасить в белый цвет, чтобы расширить комнату. Не думайте, что такое помещение будет подобно больничной палате, так как его можно декорировать настенными наклейки ярких расцветок. Шкаф-купе с зеркальными дверцами наиболее уместен в небольшом помещении.

Хрущевка для большой семьи
Трансформировать хрущевку можно до неузнаваемости. В третьем варианте перепланировки хрущевка из двух стандартных жилых комнат превратилась в благоустроенную квартиру с полноценным коридором с дверями во все помещения. В квартире две жилых комнаты: первая — это спальня с гардеробной для родителей, вторая — детская для двух ребятишек. Квартира без гостиной. Есть отдельная функциональная кухня и ванная комната. 

Совет! Мини-гардеробная никогда не будет лишней. Сделать ее более современной позволят стеклянные дверцы, наполняя комнату дополнительным светом.

Перепланировка двухкомнатной хрущевки с проходными комнатами. Обустройство квартиры без перепланировки
В случае когда перепланировка двухкомнатной хрущевки невозможна, можно выбирать из множества элегантных решений. Одной из основных задач является зрительное расширение комнат. Существует несколько путей решения такой задачи:
- Дополнительная площадь может быть получена при сооружении декоративных элементов квартиры из гипсокартона. За основу выбираются ниши, стеллажи и полки.
 - Если увеличить проемы дверей или окон, или сделать их арочными, комнаты визуально увеличатся практически на 25%.
 - Для проходных комнат двухкомнатной квартиры можно соорудить раздвижные двери. Такое решение сэкономит пространство и поможет создать оригинальный дизайн.
 - Сделать интерьер разных комнат более привлекательным, а помещение – объемным, позволит зеркальная отделка различных поверхностей квартиры.
 
Создание оригинального дизайна комнат для двухкомнатной хрущевки без перепланировки является очень востребованной задачей. Если радикальные методы неприемлемы, придется обходиться стандартными средствами. Иногда достаточно хорошего ремонта квартиры. Перепланировку при этом проводить не придется. Важно учитывать несколько основных моментов:
- Цвет мебели и стен квартиры. Если использовать светлые тона, пространство будет визуально увеличиваться. Это объясняется тем, что свет отражается от таких поверхностей. Однако светлые зоны квартиры придется чаще очищать, что является неоспоримым недостатком такого решения. Однако популярность метода с использованием светлых оттенков достаточно высока. Оригинальный дизайн квартиры с использованием разных цветов можно видеть на фото.
 - Генеральная уборка комнат. Лучше убрать из виду те предметы, которые не используются чаще, чем раз в неделю. Их можно выбросить или положить в складскую ячейку. При таком решении шкафы в квартире будут использоваться более рационально.
 - Во время ремонта следует ближе познакомиться с проектами европейских и азиатских дизайнеров для квартир площадью от 15 до 20 кв. м.
 
Лучше, если квартира будет перепланирована в соответствии с ее размерами, однако такого редко удается добиться. Однако полезных идей при просмотре фото готовых проектов квартир можно почерпнуть немало.
Перепланировка двухкомнатной хрущевки в трехкомнатную. Нарезка комнат по-новому
Такую перепланировку требуется заверить в соответствующих инстанциях, так как по документам увеличится жилая площадь квартиры и изменится количество комнат. В противном случае придётся оплачивать штраф за незаконную перепланировку. Сумма его очень внушительная.
Есть несколько способов, чтобы сделать перепланировку двухкомнатной квартиры в трёхкомнатную.
Перед началом работ необходимо определить количество несущих стен в квартире. Если такие стены находятся только по «краям» жилища, то можно будет осуществлять совершенно новую планировку трёхкомнатной квартиры. С несущими конструкциями нельзя ничего делать.
Далее необходимо сосчитать количество окон и утвердить нужное количество комнат.
Варианты перепланировки квартиры с нарезкой комнат по-новому
Такой выбор разграничения пространства, как правило, встречается в квартирах со свободной планировкой. В них имеется 3-4 окна. Кухонная зона совмещена с гостиной. Для того чтобы в такой квартире сделать три комнаты, нужно таким образом распределить пространство, чтобы в каждой комнате было хотя бы одно окно.
Можно будет увеличить пространство за счёт балкона или лоджии. Для этого необходимо утеплить дополнительные помещения и снести разделительную стену между балконом или лоджией. В результате комната может увеличиться на несколько квадратов.
После того, как вы чётко определились, где именно должна находиться та или иная комната, можно смело переходить к планированию ее площади.
Совет. Как правило, удобной и очень уютной считается комната, которая имеет площадь от 10-15 квадратов. Если нужно сделать детскую, то её площадь должна быть не менее 12 квадратов.
В маленьком возрасте ребенок может жить и на меньшей площади, только со временем придётся заново пересмотреть планировку — ребенок растёт и ему может понадобиться большая комната.
Можно будет перенести гостиную в кухонную зону и сделать её немного меньше. За счёт этого увеличится используемая для перепланировки площадь. Такие действия также необходимо согласовать с соответствующими инстанциями, так как кухня считается опасной зоной для жизни человека.
Планировка и перенос гостиной в кухонную зону
После утверждения плана перепланировки нужно определиться с выбором строительного материала для перегородок. Если планируется делать основательную перепланировку, которая в ближайшее время не будет подвержена изменениям, то стоит остановить свой выбор на кирпиче. Если же со временем будет желание снова изменить количество комнат, то будет рационально использовать гипсокартон.
Такой строительный материал на сегодняшний день пользуется большой популярностью из-за своей универсальности. С его помощью можно сделать не только многоуровневые потолочные конструкции и выравнивание поверхностей, но и изготовить разделительные стенки. Крепится он на предварительно сооруженный металлический каркас из специальных профилей. Они монтируются в стену и потолок для придания большей прочности всей конструкции.
На металлический каркас гипсокартон крепится с двух сторон. Затем его штукатурят, шпаклюют. Только после этого осуществляют чистовые отделочные работы по оклеиванию или окрашиванию поверхности.
Источник: https://otoplen-dom.ru/novosti/planirovka-2-dvuhkomnatnoy-kvartiry-hrushchevki-varianty-planirovki
Перепланировка хрущевки распашонки. Перепланировка трехкомнатной квартиры в хрущевке-фото лучших вариантов
Дизайн трехкомнатной квартиры типа «Хрущевка» не может похвастаться удобной планировкой. Часто она не способствует даже удобному проживанию, так как очень тесная, не вместительная, несмотря на нормальную площадь.

Любой может самостоятельно разработать перепланировку квартиры в хрущевке по собственным планам.

Виды планировки
Есть несколько основных видов типичной панельной трехкомнатной квартиры:
- Распашонка. Состоит из одной большой комнаты и 2 поменьше. Самая неудачная планировка трехкомнатной квартиры. Изменениям практически не поддается.
 - Книга. 2 большие комнаты и 1 маленькая. Подходит для создания индивидуального плана, но требует затрат квадратных метров.
 - Трамвай. Дизайн 3 комнатной квартиры похож на трамвайный проход. Часто все 3 комнаты расположены одна за другой. При изменении плана нужно ставить специальные перегородки.
 - Дизайн трехкомнатной квартиры 60 кв м. Все комнаты находятся в изоляции друг от друга, не соединены друг с другом. Вариант наиболее удобный, так как могут не потребоваться генеральные меры.
 

Варианты перепланировки
Перепланировка 3 х комнатной хрущевки – процесс многоступенчатый и может происходить в разных комнатах. Превратить 3 отдельных помещения в 1 не получится, но соединить близлежащие можно, что поможет увеличить пространство и квартиру пригодной для жилья.

Объединяем кухню и гостиную
Самая распространенная модификация, так как гостиная и кухня часто расположены рядом.

Это решает сразу несколько проблем:
- Увеличивает пространство. Во многих хрущевках обе эти комнаты имеют скромную площадь. Соединив их, можно уравновесить размер и уместить больше мебели, техники и аксессуаров.
 - Простота демонтажа перегородки. Между гостиной и кухней часто расположена тонкая стенка, не имеющая несущей способности. Строится из кирпича или газобетона, поэтому снести ее можно буквально двумя ударами кувалды.
 

В общей сложности существует несколько видов изменения кухни в хрущевке.

Классика
Снос перегородки – это наиболее простой способ одновременного расширения маленькой кухни в хрущевке и повышения просторности зала.
Стенка не выполняет несущей функции и распространяется на всю длину столовой, как на фото.

Студия имеет следующие преимущества:
- Два окна значительно повышают количество естественного освещения. Этот подход позволит поставить в комнате солнцелюбивые растения, даже если дом на северной стороне.
 - Помогают добавить новые предметы. Например, на месте прежней перегородки устанавливается поперечная барная стойка, поставить вешалки для бокалов.
 - Открывают дорогу для большинства дизайна. Лофт, сканди, кантри, классицизм – все эти стили требуют простоты и эта конфигурация – лучший способ.
 
Частичное соединение
В этом случае часть стены, либо оставляют, либо достраивают. Перепланировка квартиры этого толка подразумевает декоративный подход и стена может выполнять художественные или прикладные функции.

Декоративное направление:
- Оставшаяся перегородка может быть оформлена с помощью рамок с фотографиями, постерами к фильмам, другими аксессуарами.
 - Неровное оформление кирпича – частый прием в лофте. Сколы могут создаваться искусственно или оставаться после демонтажа.
 

Прикладное направление:
- Частая проблема после сноса стены – нет места для телевизора. Так как удобнее его вешать на перегородку, а ее отсутствие не даст правильно разместить диван, можно установить панель на остаточной стене.
 - Здесь возможно установить полочки или сделать стеллаж, что позволит значительно повысить мобильность и комфорт помещения.
 

Расширяем ванную
Квартиры в хрущевке часто оборудованы малым санитарным узлом. В нем банально некомфортно принимать душ и заниматься утренним приготовлением перед работой. Более того, иногда в них даже невозможно уместить длинную ванну.

Выход – расширение санузла или повышение компактности, что позволит значительно улучшить качество комнаты.
