Планировка двухкомнатных квартир хрущевок. Идеи оформления интерьера
- Планировка двухкомнатных квартир хрущевок. Идеи оформления интерьера
- Хрущевка 43 кв м планировка. Учитываем особенности планировки
- Хрущевка планировка 2-х комнатная угловая. Отличительные черты планировки хрущевок в кирпичных домах
- Планировка двухкомнатной хрущевки со смежными комнатами. Типы исходной планировки с вариантами улучшений
- Планировка хрущевки 2 комнаты 44 м с размерами. Преимущества перепланировки
Планировка двухкомнатных квартир хрущевок. Идеи оформления интерьера
Для оформления комнат в «хрущёвке» выбирайте светлые оттенки. Если спальня или зал расположились на южной стороне, стены можно выкрасить в холодные оттенки – серый, голубой или белый. Чтобы визуально приподнять низкий потолок, спроецируйте стены на него: положите потолочный плинтус в цвет стен на потолок.


Белый цвет в интерьере «хрущёвской» квартиры особенно кстати – он объединяет пространство и зрительно увеличивает его площадь. Совсем скромную по площади «хрущёвку» можно превратить в студию, и получить свободное от бесполезных стен пространство.


Интересный проект для реальных людей создал один из российских дизайнеров. Он сместил одну из стен в «хрущёвке», превратив комнату в просторную гостиную с акцентной стеной и яркими деталями. Пространство стало не только стильным, но и функциональным: в одном из его углов поместился шкаф-купе до потолка, в центре разместился просторный диван, напротив него – телевизор с узкой стойкой для хранения мелочей.

Интересен интерьер в кофейной гамме: стены, текстиль, мебель – всё в бежево-коричневых оттенках. Дизайнер использовал грамотное решение – он не стал красить все 4 стены в один тон: одна из стен стала белоснежной. И на её фоне разместился основной акцент – бирюзовая столовая мебель. Этот интерьер хорошо смотрится на картинке и прекрасно подойдет для реального воплощения.
Преимущество «хрущёвской» квартиры в том, что её легко перепланировать – тонкие стены позволяют сделать это без риска для здания. Однако большой минус перепланировки в том, что новые тонкие стены могут плохо изолировать шум, как и прежние. Отличный выход при капитальном ремонте – утеплять стены и устанавливать шумоизоляционные панели.


О том, как сделать перепланировку двухкомнатной «хрущевки», смотрите ниже.
Хрущевка 43 кв м планировка. Учитываем особенности планировки
Типовая хрущевка имеет очень маленькую кухню – 5-6 квадратов. Ещё одна особенность – невысокие потолки до 2,7 метров. Двушки без перепланировки зачастую бывают неудобны, особенно, если вторая комната проходная.
Стандартная площадь двухкомнатной хрущевки – около 43-44 кв метров. Дома пятиэтажные. В большинстве своем комнаты смежные, окна выходят на одну сторону (за исключением угловой квартиры с двумя окнами). В качестве достоинств хрущевки можно выделить наличие кладовки и балкона.
Рассмотрим самые распространенные типы планировок подробней.
Книжка
Такая планировка считается самой неудачной: проходная комната с широким дверным проемом играет роль столовой, а в семье с детьми – ещё и спальни. Уединенности в таком пространстве добиться трудно. Чтобы разделить помещения, придется пожертвовать частью комнаты. Без перегородок, на снос которых необходимо получить разрешение, хрущевку можно превратить в просторную студию.



На фото маленькая угловая кухня со встроенным холодильником и столом, вписанным в подоконник.
Трамвайчик
Такое народное название (также употребляется слово "паровозик") планировка получила за расположенные друг за другом комнаты, напоминающие вагоны. Гостиная с балконом является проходной, но переделка решает эту проблему: если отсечь часть комнаты и превратить ее в коридор с двумя входами, в получившейся нише можно организовать систему хранения.



На фото комната в кремовых тонах с акцентной стеной в телевизионной зоне.
На фото проект двухкомнатной хрущевки 44 кв. м.
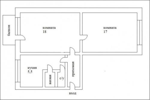
Распашонка
Вполне удобная планировка, при которой комнаты разделены кухней и прихожей, но такой тип хрущевки встречается нечасто. Также ее называют "бабочкой" благодаря схожести комнат с симметричными крыльями.



На фото крошечная кухня , где глянцевые белые шкафчики-нивидимки занимают всё межпотолочное пространство.
Хрущевка планировка 2-х комнатная угловая. Отличительные черты планировки хрущевок в кирпичных домах
При рационализации строительства панельных домов было принято решение заменить железобетонные панели, которые в то время использовались для строительства на силикатный кирпич. Его было удобно перевозить на место стройки. Был заново разработан новый проект, который немного отличался от разработанного до этого для панельных зданий.

Если в двухкомнатной хрущевке проживает пара или семья с ребенком, квартира нуждается в переделке.
Было разработано новое архитектурное новшество, которое подразумевало переделку комнат с использованием продольного расположения. Это уменьшало количество однокомнатных квартир в жилом доме. Изменились также габариты кухни – они стали меньше, но увеличилась площадь, которую занимают кладовки и добавились лоджии.

Если снести все стены (за исключением несущих), получится квартира со свободной планировкой.
Угловая 2 комнатная хрущевка отличается измененной планировкой, которая выводит окна на две стороны, и существует возможность обзора улицы с разных ракурсов. На этом плюсы этой жилплощади заканчиваются. При возведении панельных домов стены делались тонкими, что уменьшало их теплоизоляционные свойства.

Эти квартиры были холоднее по сравнению с другими, которые находились, например, внутри здания.
В кирпичных домах, где стены достаточно толстые (полметра и больше), такая проблема с промерзанием угловых стен не бывает такой актуальной. В таких помещениях намного теплее и комфортнее.
Планировка двухкомнатной хрущевки со смежными комнатами. Типы исходной планировки с вариантами улучшений
Базовая планировка 2-комнатной хрущевки определяется не только размером свободной площади, но еще и характером расположения жилых комнат. В этом плане есть несколько вариантов, и мы пробежимся по самым популярным из них — со вполне конкретным предложением по кардинальным преобразованиям к каждому.
«Распашонка»
Примерно одинаковые по площади жилые комнаты (16-17 кв.метров) расположены по левую и правую стороны от прихожей и изолированы друг от друга. Между ними располагается санузел и небольшая кухня примерно на 5 кв. метров.

Что можно сделать:
Самое слабое звено в этой схеме — скромная кухня, и ее можно увеличить за счет одной из комнат.

Планировка распашонкой для 2-комнатной хрущевки смотрится одним из самых удачных решений, так как позволяет обойтись минимумом потраченных усилий для придания квартирному пространству более современного вида.

«Книжка»
Две жилые комнаты является смежными — их разделяет одна длинная стена. Кухня на 4-5 кв.метра и санузел располагаются по левую-правую сторону от коридора.


Что можно сделать:
- увеличить кухню за счет объединения с прилегающей к ней комнатой;
- продлить коридор и сделать пространство при входе более свободным.



Мини-улучшенка
2 жилые комнаты изолированы друг от друга. Вход в каждую оформлен через прихожую. Выделяется гостиная с прилегающим балконом — примерно на 20 кв. метров. Вторая комната поменьше, на 10-11 квадратов: за ней расположена очень маленькая кухня. Такая планировка 2-комнатной хрущевки занимает в общей сложности 45 кв. метров и признается одной из лучших среди квартир советского типа.
Что можно сделать:
- сделать более просторной кухню за счет объединения с малой комнатой или прихожей;
- убрать перегородку между гостиной и балконом;
- объединить туалет и ванную комнату.

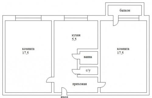
Трамвай
Прихожую в хрущевках такого типа венчает вход в большую гостиную, к которой примыкает вторая аналогичная по размеру смежная комната. Справа от прихожей располагается раздельный на туалет и ванную санузел.


Это очень выгодная планировка, так как кухня при такой схеме имеет вполне комфортные размеры.
Планировка хрущевки 2 комнаты 44 м с размерами. Преимущества перепланировки

Планировка хрущевок, состоящих из 2 комнат, бывает 4 видов:
Трамвай | около 47 кв. м | Две комнаты в такой квартире имеют одну, смежную стену. Гостиная обычно угловая. |
Бабочка | 46 кв. м | Кухня располагается между двумя комнатами. |

“Книжка” достаточно неудобная, как в первоначальном виде, так и в измененном. Так как комнаты следуют друг за другом, сделать радикальное перепроектирование помещения невозможно.

Объединение комнат
При входе в дом первое, что бросается в глаза — прихожая. В хрущёвке она маленькая, узкая и темная. Если увеличить дверной проем в комнате, коридор станет светлее и визуально больше. С этого обычно и начинается составление плана ремонта 2-комнатной квартиры. Что касается радикального сноса стен, чаще всего объединяют:
- Кухню и зал. На месте убранной стены устанавливается барная стойка или стол с мягким диваном.
- Зал и спальню. Подходит для семьи без детей. При наличии ребенка детская в хрущевке оформляется путем зонирования помещения.
- Зал и кабинет. Для создания рабочего пространства подойдет стеллаж или мобильные ширмы. Иногда дизайнеры используют невысокий подиум.
- Спальню и кабинет. Комната разделяется на 2 функциональные зоны, стол для работы ставится около окна.

Зонирование
Перестройка малогабаритной квартиры 40 кв. м или другой площади не обходится без зонирования. Каждому члену семьи необходима личная зона в квартире. При этом нельзя уменьшать и без того маленький размер кухни. Рабочее место должно быть вместительным. Для разделения разных участков используются:
- гипсокартонные фальшстены;
- передвижные перегородки;
- занавески, шторы;
- диваны, шкафы, другие предметы мебели;
- разноуровневые потолок и пол.

Раздвижные двери — лучшая альтернатива распашным. Они удобны в обращении и стильно смотрятся.
