Типовые планировки 3 комнатных квартир: всё, что нужно знать о расположении комнат
- Типовые планировки 3 комнатных квартир: всё, что нужно знать о расположении комнат
- Связанные вопросы и ответы
- Что такое типовая планировка квартиры
- Какие факторы влияют на выбор типовой планировки 3-комнатной квартиры
- Какие типы планировок 3-комнатных квартир существуют
- Какая планировка 3-комнатной квартиры является наиболее популярной
- Какие преимущества и недостатки имеют разные типы планировок 3-комнатных квартир
- Как выбрать оптимальную планировку для 3-комнатной квартиры
- Как распределить пространство в 3-комнатной квартире с учетом типовой планировки
Типовые планировки 3 комнатных квартир: всё, что нужно знать о расположении комнат
Имеет несколько вариантов размещения жилых помещений типичная 3-комнатная квартира. Планировка здесь может быть удобной или доставлять определенный дискомфорт своим жильцам. Так, например, две комнаты маленькие, а одна большая. В некоторых жилищах наблюдаются два смежных помещения и одно изолированное, но маленьких размеров. Иногда комнаты располагаются по обеим сторонам здания. Такая схема расположения называется «самолетом» и часто встречается в московских домах. Лучшими считают 3-комнатные квартиры (серии планировки характеризуют положение комнат, высотность здания, размеры помещений и многое другое), в которых все помещения изолированные.
Обычно в стандартной трехкомнатной квартире имеется хотя бы одна кладовка. Большинство дизайнеров рекомендуют и из неё сделать гардеробную. В небольших помещениях за счет кладовки можно решить проблему недостающего пространства.
Обычно в квартире из трех комнат одну определяют для гостиной, вторую - для спальни, а третью отводят под детскую, если в семье есть дети.
Почти все «трешки» имеют раздельный санузел, а многие из них - угловое расположение. Находятся на максимальном удалении от лестницы и лифта. Стандартные размеры такой квартиры колеблются от 56 до 80 кв. м. Самая большая комната - от 15 кв. м, обычно это зал или гостиная; спальня - от 12 кв. м, а на детскую комнату приходится от 10 кв. м. Размеры кухни - около 7-9 кв. м.
Трехкомнатная квартира дает определенную свободу в использовании жилого пространства. Места здесь хватит всем - и взрослым, и детям.
Связанные вопросы и ответы:
Вопрос 1: Что такое типичные планировки 3 комнатных квартир
Ответ: Типичные планировки 3 комнатных квартир - это общие схемы расположения комнат, коридоров и других помещений в квартирах, которые обычно состоят из трех отдельных комнат. Эти схемы могут варьироваться в зависимости от размера и формы квартиры, но обычно они включают в себя спальню, гостиную и кухню, а также некоторые дополнительные помещения, такие как ванная комната и холл.
Вопрос 2: Какие общие принципы применяются при проектировании типичных планировок 3 комнатных квартир
Ответ: При проектировании типичных планировок 3 комнатных квартир применяются несколько общих принципов. Первый из них - эффективное использование пространства, чтобы обеспечить максимальную функциональность и комфорт для жильцов. Второй принцип - обеспечение естественного освещения и вентиляции в каждом помещении. Третий принцип - создание удобных и функциональных связей между комнатами и коридорами.
Вопрос 3: Какие типы планировок 3 комнатных квартир наиболее популярны
Ответ: Самые популярные типы планировок 3 комнатных квартир - это односторонние и двусторонние. Односторонные планировки характеризуются тем, что все комнаты расположены вдоль одной стены квартиры, а коридоры и другие помещения - вдоль противоположной стены. Двусторонние планировки, напротив, имеют более сложную структуру, с комнатами, расположенными по обе стороны коридора.
Вопрос 4: Как влияет форма квартиры на ее планировку
Ответ: Форма квартиры может оказывать существенное влияние на ее планировку. Например, квартира с прямоугольной формой будет иметь более простую планировку, чем квартира с неправильными формами. Квартиры с большими окнами и высокими потолками также могут требовать более сложной планировки, чтобы обеспечить оптимальное использование пространства и естественного освещения.
Вопрос 5: Как выбрать наиболее подходящую планировку 3 комнатной квартиры
Ответ: Выбор наиболее подходящей планировки 3 комнатной квартиры зависит от множества факторов, таких как размер квартиры, количество жильцов, их возраст и предпочтения, а также бюджет на ремонт. Важно также учесть индивидуальные потребности и предпочтения жильцов, такие как необходимость в большой кухне или отдельной рабочей зоне.
Вопрос 6: Как обеспечить оптимальное использование пространства в 3 комнатной квартире
Ответ: Оптимальное использование пространства в 3 комнатной квартире может быть достигнуто с помощью нескольких стратегий. Первая из них - эффективное распределение мебели и оборудования, чтобы создать максимальное пространство для передвижения. Вторая стратегия - использование многофункциональных мебельных решений, таких как кровати-диваны или столы-полочки, которые могут быть использованы для разных целей. Третья стратегия - использование оптимального освещения и вентиляции, чтобы создать светлое и прохладное пространство.
Вопрос 7: Как обеспечить комфорт и уют в 3 комнатной квартире
Ответ: Комфорт и уют в 3 комнатной квартире могут быть достигнуты с помощью нескольких мер. Первая из них - использование уютных и комфортных мебельных решений, таких как мягкие диваны и кресла, а также теплые ковры и одеяла. Вторая мера - создание уютных и интимных пространств, таких как спальни с занавесками или отдельные рабочие зоны. Третья мера - использование цветов и текстур, которые создают ощущение тепла и уюта.
Вопрос 8: Какие современные тенденции можно наблюдать в планировке 3 комнатных квартир
Ответ: В современных планировках 3 комнатных квартир можно наблюдать несколько тенденций. Первая из них - использование открытых пространств, которые объединяют гостиную, кухню и другие помещения в одно большое пространство. Вторая тенденция - использование многофункциональных помещений, таких как гостиная-кухня или спальня-офис. Третья тенденция - использование экологически чистых и энергосберегающих решений, таких как солнечные батареи и энергосберегающие осветительные приборы.
Что такое типовая планировка квартиры
Типовыми планировками квартир считаются планировки, которые характерны для серии домов. Когда говорят о серии, то имеют ввиду группы жилых зданий, полностью похожих по своему оформлению, планировке и типу материала, используемого при строительстве. О некоторых видах планировки слышали все — «сталинки», «хрущевки», «брежневки». Что же они собой представляют?
«Сталинки»
По народному названию такой планировки можно догадаться о временном периоде, когда они возводились – с начала 1950 х годов. Особенности этой типовой планировки:
- очень высокие потолки;
- массивные стены, выложенные из кирпича;
- удобная планировка.
«Сталинки» — квартиры просторные, на три или четыре комнаты, двухкомнатные варианты встречаются значительно реже, как и квартиры с пятью и более комнатами. Совсем мало однокомнатных «сталинок». Планировка «сталинок» — это две разновидности жилья: номенклатурные дома и рядовые.
Первые возводились специально для элиты, для высших слоев общества. Они отличаются хорошей планировкой, просторными холлами, наличием отдельного рабочего кабинета и детской комнаты, возможны отдельные комнаты для библиотеки и прислуги. Кухня в таких квартирах просторная, а санузел – раздельный. На одном этаже обычно размещается две — четыре таких больших квартиры. Рядовые дома намного скромнее. И, прежде всего, это проявляется в небольшой площади квартир.
«Хрущевки»
Эти квартиры строились в 1957-1962 гг. За ними сразу закрепилось название «хрущевки», или «хрущобы» (по аналогии с трущобами). Народное название объясняется тем, что все дома этой серии возводились с очень тонкими стеновыми панелями, низкими потолками и крайне неудачной планировкой. Обычно это одно-либо двухкомнатные квартиры. Одна из особенностью таких квартир — высота потолков на 20 см ниже (кроме первого этажа). Тонкие стены не обеспечивают нормальную звукоизоляцию. Санузел совместный, обустроить который всегда непросто.
«Брежневки»
Это жилье отличалось от «хрущевок» немного большей площадью и количеством этажей. В самых первых «брежневках» нередко использовался «хрущевский холодильник» — шкаф-чулан, который располагался под окном на кухне. Санузел уже был раздельный. В дальнейшем планировка подвергалась изменениям, которые применяемют и по сей день.
Особенности планировки «брежневок»:
- Официальное название: дома улучшенной планировки (по сравнению с «Хрущевками» — бесспорно). Но до «сталинок » им далеко.
- «Брежневки» отличались невысокими потолками.
- Имели относительно маленькие кухни ( 7 — 9 кв. м).
- Количество комнат — от одной до пяти.
- В качестве разновидности такой планировки остались квартиры гостиничного типа – крохотные, с общей площадью 12 — 18 кв. м.
Теоретически они предназначались для временного проживания, но фактически за многими закреплялись на постоянной основе.
Какие факторы влияют на выбор типовой планировки 3-комнатной квартиры
пришли на смену сталинкам, их строили с конца 1950-х годов по 1980-е года. В течение этого периода архитекторы модифицировали и улучшали дома.
В самых первых сериях жилье было неудобным: с маленькими помещениями, длинными коридорами и низкими потолками. Комнаты были смежными и проходными, а самая большая из них располагалась рядом с кладовкой. Планировки 3-х комнатных квартир в домах этого типа отличаются плохой звуко- и теплоизоляцией стен. Многие хрущевки этого времени отличаются крошечными, поэтому при ремонте владельцы жилья стараются присоединить их к гостиной хотя бы визуально — с помощью прозрачных перегородок. Также еще одна проблема в домах этого типа — темные и маленькие прихожие.
В 1960-1975 годах трешки имели общую площадь 44 кв. м, из которых 32 квадратов составляла жилая. Размер кухонь — до 6 кв. м. В конце 1970-х появились новые девятиэтажные дома, площадь квартир с тремя комнатами в них была увеличена до 60 кв. м.
Пример
Впланировка напоминает 3х-комнатную «распашонку», за исключением того, что это жилье угловое. В остальном для него характерны все типичные черты: проходная гостиная с балконом и окна на разных сторонах.
Заказчица получила трешку в наследство и обустраивала ее для себя. Поскольку квартира предназначена для одного человека, оптимизировать пространство не требовалось. Вход на кухню и в спальню находятся на одной линии, поэтому получилась анфилада, которая устраивала хозяйку. Дальнее помещение, к нему ведет маленький коридор. Ванная и туалет изначально были раздельными, объединять их не стали.
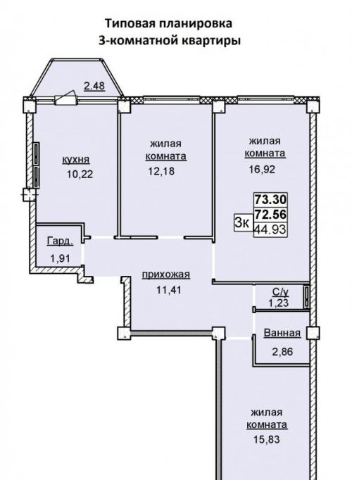
Какие типы планировок 3-комнатных квартир существуют
Трехкомнатная квартира — это отдельная полноценная квартира различных типов планировки, которая состоит из трех жилых комнат, прихожей, коридора, санузла ( чаще туалет и ванная отдельные) и кухни. К тому же, в трехкомнатных квартирах должен быть хотя бы один балкон, или даже балкон и лоджия.
В зависимости от периода постройки дома, расположенные в нем трехкомнатные квартиры можно разделить на следующие типы:
- «Сталинки» — трехкомнатные квартиры общей площадью 57-85 кв метров, просторные и комфортные, с высокими потолками и удобным расположением изолированных комнат. Площадь кухни может достигать 15 кв метров. Нетрудно догадаться, что они были построены во времена И.В. Сталина ( в 30-х — 50-х гг. XX века).
- «Хрущевки» — трехкомнатные квартиры общей площадью 48-56 кв метров. Квартиры данной планировки весьма небольшие, с проходными или смежными комнатами и низкими потолками. К тому же, площадь кухни очень маленькая — всего 6 кв метров. Дома с подобной планировкой квартир начали строить еще во времена генсека Н.С. Хрущева (с 1956 года ) и их строительство продолжалось вплоть до 1985 года. При этом характер архитектуры зданий менялся незначительно.
- «Брежневки» — это квартиры нескольких типов, чаще в высотных домах, построенных в период пребывания на посту генерального секретаря СССР Л.И. Брежнева. Общая площадь трехкомнатной квартиры этого типа составляет 48-56 квадратных метров, но при этом были реализованы варианты улучшенной планировки. К тому же, важным достоинством этого типа квартир являются изолированные друг от друга комнаты. Иногда же планировка такова, что комнаты очень легко сделать изолированными.
- «Чешки» — в квартирах чешской планировки общая площадь составляет 68-75 кв метров. Комнаты изолированы друг от друга, санузел раздельный, а площадь кухни составляет 8-12 кв метров. В подобной квартире, как правило, есть балкон и лоджия.
Какая планировка 3-комнатной квартиры является наиболее популярной
Трёхкомнатные квартиры являются одними из наиболее распространённых на территории России и других стран СНГ. От части так произошло потому, что планировка 3-х комнатной квартиры является наиболее оптимальной для комфортной жизни полноценной семьи.

В такой ситуации вы без проблем можете иметь свою спальню, детскую и гостиную, чем не могут похвастаться двухкомнатные квартиры.

Планировка таких квартир обычно является довольно простой и универсальной, но есть некоторые важные моменты, которые вы можете упустить.
Сегодня мы поговорим о наилучших решениях при планировке 3-комнатной квартиры.
- Размеры квартиры
- Снос стен
- Лоджия и балкон
- Фото планировки 3 комнатной квартиры
Размеры квартиры
Количество комнат ничего еще не говорит об их размерах. Если посмотреть на фото планировки 3-х комнатной квартиры, то можно заметить, что в некоторых случаях гостиная оказывается или маленькой по размеру или просто проходной.
Все это влияет на то, как мы ее будем обустраивать, какие дизайнерские решения применять.

Для старых квартир еще характерны довольно низкие потолки, но этот недостаток был исправлен в большинстве современных новостроек.
Однако есть некоторые факторы, которые можно отнести к плюсам старых домов – возможность перепланировки. Многие дома, которые строились еще в советские времена, внутри квартир могут практически не иметь несущих стен.
Самым ярким примером являются хрущевки, в которых большая часть стен между комнатами не несущие. В этом плане у вас появляется возможность сделать слияние двух помещений для визуального расширения пространства.
Снос стен
Если говорить о трехкомнатной квартире, то в них не очень часть практикуется снос стен. Если такое и происходит, то обычно в двух случаях – слияние гостиной и кухни или объединение санузла.

Первый вариант находит свое применение при сильно неудачной планировке, когда кухня оказывается очень маленькой, а гостиная при этом довольно большая.

Планировка 3-х комнатной квартиры с такими размерами проводилась из предположений, что большинству людей больше нужна просторная гостиная, чем кухня.
При этом вам далеко не обязательно сносить всю стену, ведь можно удалить только часть из нее, сделав при этом один большой или несколько проходов поменьше.

К такому варианту часто добавляют занавески или раздвижные двери, причем во втором случае из практических соображений – чтоб запахи и угар при готовке не пропитывали мебель гостиной.

Да, вы можете вспомнить о вентиляции, но даже если она будет хорошей, что-то все равно просочиться.

Вторым сценарием для сноса стен является объединенный санузел. В советские времена по возможности архитекторы пытались избегать такое, но сейчас многим людям очень нравиться идея с общей комнатой для ванны и туалета.
От части потому, что так помещение становится значительно больше, а просторные комнаты в данный момент в тренде.

Лоджия и балкон
Практически всегда трехкомнатная квартира московской или другой планировки предусматривает наличие лоджии и балкона, ну или хотя бы чего-то одного.

Люди часто относятся к ним, как к техническим помещениям, которые в итоге оказываются кладовкой или складом. Однако у них может быть и другое применение, более интересное и практичное.

Мы сейчас будем рассматривать новые идеи планировки трехкомнатной квартиры, которые всегда предусматривают использование лоджий и балконов в роли жилых помещений.
В этом случае у вас есть 2 пути – просто остеклить и утеплить их, чтоб зимой там было не холодно, или же сделать там полноценные комнаты, причем с возможностью присоединения.

Для этого практически всегда надо сделать или заменить существующее утепление. Многие люди, если мы говорим о лоджии, меняют и внешнюю стенку, которая обычно и так очень тонкая.

Какие преимущества и недостатки имеют разные типы планировок 3-комнатных квартир
Трехкомнатная квартира – это оптимальный вариант для семьи из 4-6 человек. Для семейной пары с одним ребенком или без, одинокого человека, такая площадь дает массу дополнительных возможностей, включая оборудование мастерской или студии на дому, обустройства полноценной гостиной-столовой. Или воплощения иных интересных решений, соответствующих интересам жильцов.
А для большего количества человек «трешка» будет уже тесноватой. Придется придумывать, как в небольших комнатах выделить функциональные зоны, обеспечивающие полноценное и комфортное проживание для всех домочадцев.
Как стать дизайнером собственной квартиры-«трешки», обустроив ее по своему вкусу, мы расскажем в этой статье. Подскажем потрясающие идеи и пути решения возникших проблем, поделимся рекомендациями специалистов.
Проект 3-комнатной квартиры
Разработка интерьерного дизайна трехкомнатной квартиры – это достаточно сложная творческая задача. Вместе с тем, процесс обустройства собственного жилья доставляет огромное количество положительных эмоций. Он позволяет проявить смекалку и фантазию, подключить рациональное мышление и логику, ощутить прилив вдохновения и вложить душу в созданный шедевр.
- Если нет уверенности в своих силах , стоит воспользоваться помощью специалиста-дизайнера, хотя бы на первоначальном этапе. Он поможет создать идеальный дизайн-проект квартиры. Учтет все пожелания и вкусовые предпочтения владельцев.
Так как работа осуществляется в тесном контакте с заказчиком, в процессе активно вносятся изменения. Зачастую, конечный план кардинально отличается от первоначального замысла. Причем владельцы жилья четко понимают: получилось действительно гениально, комфортно и в полном соответствии с внутренним мироощущением.
- Точно так же идет и самостоятельная работа над проектом. Сначала набрасывается черновой план, с пожеланиями, набросками идей. После чего проект подвергается тщательному и всестороннему рассмотрению всеми членами семьи, понимающими в ремонтных работах друзьями. Что-то отбрасывается, что-то добавляется.
Желательно при этом ознакомиться с реальными примерами, посмотреть фото. Возможно, самая лучшая идея вспыхнет озарением в процессе ознакомления с популярными и индивидуальными дизайнами.
Только после составления четкого, понятного плана на бумаге или в одной из доступных программ, составления сметы, можно приступать к его реализации. Закупать строительные и отделочные материалы, подавать заявление на перепланировку и осуществлять собственно ремонтные работы. В противном случае велик риск ошибок и финансовых потерь.




Как выбрать оптимальную планировку для 3-комнатной квартиры

Перепланировка 3-х комнатной квартиры- разрешение на ремонт.
Мы уже затрагивали эту тему и подробно описывали все нюансы присоединения балкона или лоджии к внутренним помещениям. Для балконов об этом можно прочесть здесь , а для лоджий- тут . Кратко приведём здесь основные тезисы.
Во-первых, запрещено присоединять балконы или лоджии к внутренним помещениям без установки французских окон согласно пункту 9.18 Приложения 1 к Постановлению Правительства Москвы № 508. Даже если очень капитально утеплить балкон и лоджию, пройти согласование не удастся. Во-вторых, увеличивать проём при выходе на балкон в стороны можно только в монолитных домах, где наружные трехслойные стены являются не несущими. В-третьих, ликвидировать порожек при выходе на балконов в панельных зданиях нельзя. Это ведет к образованию мостиков холода и возникновению у соседей снизу плесени или грибков. Поэтому автор проекта дома не даёт своё согласие на такие мероприятия, а без него согласование в данном случае невозможно. В кирпичных домах убрать порожек можно только в том случае, если балконная плита держится за счет опоры на внешние подпорные стенки, а не за счет защемления в ограждающей стене. В монолитных домах возможно убрать порожек. В-четвертых, ликвидировать подоконный участок наружной стены можно в домах из монолитного железобетона; кирпичных, опять же, в зависимости от вида опирания балконной плиты; во всех панельных домах до 2007-ого года возведения, а также в панельных домах, возведенных после 2007-ого года, автором которых не является проектный институт МНИИТЭП . Если автором дома является МНИИТЭП и панельный дом построили после 2007 года, то они не дают убирать подоконные участки наружной стены, мотивируя это тем, что нарушается защита здания от прогрессирующего разрушения.
Как распределить пространство в 3-комнатной квартире с учетом типовой планировки
Устроить аналог футбольного поля, соединив три комнаты с кухней в огромную гостиную, без оглядки не следует. Дело в том, что перегородки, не являющиеся несущими стенами, но расположенные штатно (на всех этажах друг над другом), весомую часть нагрузки от межэтажных перекрытий берут на себя. Непродуманный снос перегородок в квартирах – особенно на нижних этажах – может существенно изменить устойчивость потолков (полов) между этажами – те прогнутся под нагрузкой от людей, мебели и техники во всём здании. Если межкомнатная перегородка соседа сверху проходит в середине самой большой из комнат вашей квартиры – это уже нарушение всей конструкции.
Исключением не является и последний жилой этаж – часто, особенно в «брежневке», над ним располагается техэтаж – аналог чердака в частном доме. Эти два перекрытия (потолочное и крышное), разнесённые по высоте на пару метров, также являются ощутимой нагрузкой на последний жилой этаж. На этот раз прогнуться может уже сама крыша «высотки».
Ни в коем случае нельзя затрагивать планировку санузла. Дело в том, что даже малоэтажные дома (2-4 этажей), построенные во времена Ленина и Сталина, имеют общую для всех черту – надёжную гидроизоляцию санузловых помещений. Для ванных и туалетов строители применяют специальные инженерные изыскания, направленные на недопущение затопления выше живущими людьми своих соседей снизу. Перекрытия и стены в этих местах усиленно гидроизолируются. Когда у соседей наверху прорвало водопровод, горячую воду, прохудилась или засорилась канализация, вытекла вода из стиральной машины и т. д. – гидроизоляция бетонных плит и кафельная облицовка, являющиеся обязательной мерой, не допустят затопления.
Даже если воды налилось столько, что её уровень стоит буквально под дверью, ещё немного – и потечёт в прихожую. В случае даже полного затопления пола в ванной имеется достаточно времени, чтобы слить всю эту воду в канализацию. Если перегородки санузла передвинуть (расширить ванную и туалет) – помещения выйдут за пределы гидроизолированных участков перекрытий. При сантехнической аварии вылившаяся на пол вода частично просочится к соседям внизу. Это повлечёт оплату их ремонта, нередко достигающую ста и более тысяч рублей.