Переоборудование хрущевки в 3-комнатную квартиру: история успеха
- Переоборудование хрущевки в 3-комнатную квартиру: история успеха
- Связанные вопросы и ответы
- Что такое хрущевка и почему ее переоборудование в 3-комнатную квартиру является сложным заданием
- Какие факторы необходимо учитывать при планировании переоборудования хрущевки в 3-комнатную квартиру
- Какие архитектурные и конструктивные решения могут быть использованы для увеличения площади квартиры
- Какие материалы и технологии могут быть использованы для переоборудования хрущевки в 3-комнатную квартиру
- Какие проблемы могут возникнуть при переоборудовании хрущевки в 3-комнатную квартиру и как их можно решить
Переоборудование хрущевки в 3-комнатную квартиру: история успеха
Хрущевка - это тип жилого дома, который был построен в СССР в 1950-х годах. Они были спроектированы для решения жилищного кризиса, и были построены очень быстро и недорого. Однако, с годами, хрущевки стали устаревать, и многие из них нуждались в реконструкции.
История успеха
В этой статье мы расскажем историю успеха одной семьи, которая решила переоборудовать свою хрущевку в 3-комнатную квартиру.
Первый этап: планирование
Первым этапом было составление плана переоборудования. Семья решила, что они хотят сохранить общую структуру дома, но добавить третью комнату. Они также хотели, чтобы квартира была светлой и просторной.
Второй этап: ремонт
Второй этап был ремонт. Семья наняла профессиональных строителей, которые начали работу с демонтажа старой стены и установки новой. Они также заменили все трубы и электрику, чтобы квартира была безопасной и функциональной.
Третий этап: отделка
Третий этап был отделка. Семья выбрала светлые цвета для стен и потолка, чтобы создать ощущение пространства. Они также добавили новые окна, чтобы квартира была светлой и просторной.
Результат
В итоге, семья получила красивую и функциональную 3-комнатную квартиру. Они были очень довольны результатом и рекомендуют переоборудование хрущевки другим семьям, которые хотят получить больше пространства и комфорта.
Таблица: перечень работ
| Работа | Стоимость |
| демонтаж старой стены | 5000 рублей |
| установка новой стены | 10000 рублей |
| замена труб | 15000 рублей |
| замена электрики | 20000 рублей |
| отделка | 30000 рублей |
Список: плюсы переоборудования хрущевки
- больше пространства
- больше комфорта
- увеличение стоимости недвижимости
- возможность изменить дизайн и отделку
- экономия на аренде или покупке новой квартиры
Список: минусы переоборудования хрущевки
- высокая стоимость
- необходимость нанять профессиональных строителей
- время, необходимое для ремонта
- возможные проблемы с документами и разрешениями на ремонт
Связанные вопросы и ответы:
Вопрос 1: Что такое хрущевка
Ответ: Хрущевка - это тип жилья, который был распространен в Советском Союзе. Он был назван в честь Никиты Хрущева, который был Генеральным секретарем ЦК КПСС с 1953 по 1964 год. Хрущевки были построены в больших количествах для решения жилищного кризиса, который возник после Второй мировой войны. Они были маленькими и имели ограниченные размеры, но были недорогими и доступными для большинства людей.
Вопрос 2: Какие проблемы могут возникнуть при переоборудовании хрущевки в 3-х комнатную квартиру
Ответ: При переоборудовании хрущевки в 3-х комнатную квартиру могут возникнуть следующие проблемы:
1. Недостаточная площадь. Хрущевки имеют ограниченные размеры, и поэтому может быть сложно создать три отдельные комнаты.
2. Плохая изоляция. Хрущевки были построены быстро и недорого, и поэтому изоляция была не всегда хорошей. Это может привести к высоким затратам на отопление и кондиционирование воздуха.
3. Недостаточное количество удобств. Хрущевки имеют ограниченное количество удобств, таких как ванные комнаты и кухни. Это может быть проблемой при переоборудовании в 3-х комнатную квартиру.
Вопрос 3: Как можно решить проблему недостаточной площади при переоборудовании хрущевки в 3-х комнатную квартиру
Ответ: Чтобы решить проблему недостаточной площади при переоборудовании хрущевки в 3-х комнатную квартиру, можно использовать следующие методы:
1. Удаление несущих стен. Удаление несущих стен может увеличить площадь комнаты и создать больше пространства для жизни.
2. Использование мебели-стеллажей. Мебель-стеллажи могут быть использованы для создания дополнительного пространства для хранения вещей, что позволит освободить пространство в комнате.
3. Использование световых цветов. Использование световых цветов на стенах и потолках может создать иллюзию большего пространства.
Вопрос 4: Как можно решить проблему плохой изоляции при переоборудовании хрущевки в 3-х комнатную квартиру
Ответ: Чтобы решить проблему плохой изоляции при переоборудовании хрущевки в 3-х комнатную квартиру, можно использовать следующие методы:
Что такое хрущевка и почему ее переоборудование в 3-комнатную квартиру является сложным заданием
Молодые семьи, как правило, покупают однокомнатные квартиры. Однокомнатную хрущевку легко переделать в квартиру студию, что является для молодых людей отличным вариантом. В таком случае, избавляются от перегородок, отделяющую комнату и кухню, а также прихожую.

В том и другом случае, такое помещение, как санузел, остается не тронутым, поскольку его перемещать нельзя, если это не первый этаж.
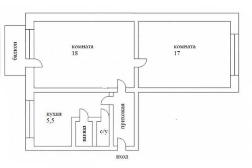
На фото выше видно, что перепланировка частично коснулась и санузла, за счет перемещения двух стен на значительное расстояние. Это стена, обращенная в зал, и стена, отделяющая прихожую. За счет незначительного увеличения площади удалось поместить стиральную машинку. В малогабаритных комнатах всегда ощущается недостаток места, когда требуется установить современную бытовую технику. Хотя прихожая и получается не большая, зато в комнате достаточно места и можно установить гардеробную.
На другом фото представлен еще один вариант перепланировки 1 комнатной хрущевки. Этот вариант отличается тем, что объединили кухню и коридор. Двери в комнату смещены дальше от входа, что дало возможность, более оптимально использовать жилое пространство. В результате такого дизайна появилось место в коридоре под шикарный встроенный шкаф. Это не повлияло на функциональность кухни, а ее площадь увеличилась на 0,2 метра квадратных.

В последнее время многие жильцы практикуют еще один способ увеличения жилой площади – это совмещение лоджий и балконов. Но для этого нужно тщательно произвести утепление стен балконов и лоджий, а также, провести туда отопление. В результате можно получить еще одну комнату с оптимальной температурой, где можно разместить, например, рабочий кабинет.

Существует еще один вариант перепланировки однокомнатной хрущевки, расположенной в кирпичном доме. Здесь очень маленькие площади санузла и кухни, но перегородки размещены стандартно.
В данном случае, желательно отказаться от ванны в пользу душевой кабинки. Это позволит оптимизировать полезное пространство в санузле, расположив правильно сантехнику и поместив туда стиральную машину. При этом, одна из стенок получается скошенной, а площадь кухни не значительно, но увеличивается, хотя площадь прихожей несколько уменьшается.
Жилую площадь можно увеличить за счет расширения на балкон, утеплив его соответствующим образом. На балконе можно установить шкаф и рабочий стол. Подобная перепланировка довольно актуальна, если семья состоит из пяти человек: 3-х детей и 2-х взрослых. При этом, желательно установить одну двухэтажную кровать для детей. На очередном фото можно увидеть подобный вариант переделки жилой квартиры.

К сожалению, не всем по душе иметь квартиру-студию, как не все воспринимают санузел, где совмещены ванна и туалет. Многим не нравится отсутствие стен, когда нельзя посидеть на кухне незамеченным для окружающих, тем более, что это актуально при наличии детей, да еще в однокомнатной квартире.
В таком случае, перепланировка осуществляется за счет переноса перегородок, в зависимости от приоритетов. Боковую стенку прихожей нужно сдвинуть в сторону комнаты, а лицевая стенка подвинута, почти вплотную к двери в санузел. После подобных действий увеличивается площадь прихожей и теперь появляется возможность установки в прихожей встроенного шкафа и гардеробной.
Естественно, что площадь комнаты уменьшается, поэтому придется компенсировать недостаток площади за счет кухни. Несмотря на это, после переноса стены ближе к двери ванной, образовалось место для холодильника. В результате подобной перепланировки столовая часть кухни сдвинулась в комнату. Чтобы оптимизировать пространство, следует установить двери раздвижные или двери-гармошку.

При этом, комната получила Г-образную форму, где можно установить перегородку, чтобы разделить комнату на взрослую и детскую зону. По такому же принципу, можно из однокомнатной квартиры сделать двухкомнатную. Это имеет серьезное значение при наличии детей.

Существует еще один вариант перепланировки 1 комнатной квартиры, но только с другой изначальной планировкой. В данном случае переделка минимальная и сводится к обустройству перегородки из гипсокартона. Ее устанавливают так, чтобы она занимала не больше половины промежутка, чтобы во второй части было доступно освещение.
Как вариант, предлагается перепланировка угловой однокомнатной хрущевки, в квартиру студию с выделением спального места. В этой части квартиры может поместиться лишь кровать и шифоньер, но имеется один существенный плюс: спальня получается изолированной.
Какие факторы необходимо учитывать при планировании переоборудования хрущевки в 3-комнатную квартиру
Перепланировка квартиры в хрущевке часто предполагает изменения и в санузле. Однако, затрагивание санузла в хрущевке может быть сложной процедурой в связи с ограниченными коммуникациями и неудобствами, связанными с квадратным метражом.
При перепланировке санузла в хрущевке необходимо учитывать следующие особенности:
Размеры санузла: обычно санузлы в хрущевках имеют небольшие размеры, поэтому при перепланировке необходимо продумать каждый сантехнический элемент и использование пространства максимально эффективно.
Установка смежных помещений: затрагивание стен в санузле может быть связано с установкой смежных помещений, таких как душевые кабины или прачечные. Такая перепланировка требует комплексного подхода и профессионального согласования.
Перенос трубопроводов: перепланировка санузла в хрущевке может потребовать переноса трубопроводов. В связи с ограниченным доступом в хрущевке, этот процесс может быть затруднен и требовать дополнительных расходов.
Вентиляция и проветривание: при перепланировке санузла необходимо учитывать вопросы вентиляции и проветривания, так как недостаточная циркуляция воздуха может привести к появлению плесени и риску для здоровья.
Особенности: важно учитывать, что туалет, ванную можно расширить (п. 7.20 СП 54.13330.2022) только за счет нежилых помещений квартиры, таких как коридоры, встроенные шкафы, кладовые и т. д. Из-за этих ограничений при перепланировке квартир в хрущевках часто возникают трудности. В данном случае у владельцев квартир на 1-ых этажах есть преимущество: они могут расширить мокрые зоны на жилые помещения и кухню, так как под их квартирой не проживают другие люди.
Перепланировка санузла в хрущевке требует серьезного проектирования и особого подхода, чтобы учесть все нюансы и обеспечить комфортное использование пространства.
Какие архитектурные и конструктивные решения могут быть использованы для увеличения площади квартиры
Одноуровневые коттеджи обладают несколькими особенностями, повлиявшими на их популярность среди заказчиков: легкое использование любого помещения без необходимости использования лестниц, а также возможность полностью изолировать здание от любопытного взора с помощью зеленых насаждений. Одноэтажные коттеджи обеспечивают больше уединения и высокий уровень комфорта для членов семьи разного возраста – детей и людей преклонного возраста.
Увеличение жилой площади позволяет создавать одноэтажные объекты практически на любых участках – с разным рельефом и габаритами. Наиболее распространенными способами расширения пространства, являются:
- Использование подземной части здания и устройство цокольного этажа, или же обустроенного подвала;
- Привлечение подкровельных объемов или изменение геометрии крыши, чтобы создать несколько дополнительных комнат;
- Предпочтительное использование домов, которые в плане приближены к квадрату или прямоугольнику – это позволяет избежать появления «глухих зон» или конструкций, занимающих полезную площадь;
- Обустройство террас и веранд для выноса некоторых функциональных зон за пределы коттеджа.
Описанные методы имеют свои положительные и отрицательные стороны, которые нужно обязательно учитывать при создании проектной документации. Наилучшим решением будет консультация с нашим специалистом, способным предоставить несколько вариантов увеличения жилой площади, основываясь на практических соображениях, а не на популярных советах из глянцевых журналов.
Одно из преимуществ каждого из описываемых методов в том, что они не нарушают российских правил по строительству загородных домов. Ведь, ни мансарда, ни цокольный уровень не считаются полноценными этажами, и потому на них не распространяется налогообложение или особые требования по сооружению. Чем не повод получить еще больше плюсов от обоснованного и оптимизированного увеличения жилого пространства.
Какие материалы и технологии могут быть использованы для переоборудования хрущевки в 3-комнатную квартиру
Можно разделить смежные помещения определенными декораторскими решениями: 1. Если помещения расположены по типу «распашонка». Можно убрать кладовку и на ее месте сделать часть коридора с дверью в маленькую спальню. Придется продлять существующий коридор дополнительной стенкой, в которой сделать еще один вход в зал. Тогда оба помещения будут раздельные, но большее потеряет пару квадратных метров площади. Можно убрать кладовку и сделать боковой вход без сооружения дополнительного коридора. Тогда появятся условно раздельные комнаты.


2. Если помещения расположены по типу вагончика. Это трудный способ перепланировки хрущевки. Можно просто убрать стенку между помещениями или сделать ее сборно-разборной. Для семьи с детьми создание большого открытого пространства не подойдет. Такой вариант приемлем для молодой семьи или семьи без детей. В любом случае длинное открытое пространство будет смотреться некрасиво. В такой квартире можно встроить дополнительную зону гардероба посередине или сделать две отдельные комнаты, продлив коридор. При этом одно из помещений станет меньше по площади.
Обычно такие двущки-хрущевки имеют в дальней комнате встроенные шкафы, их можно убрать и соорудить большой гардероб между помещениями с входом из небольшого коридорчика. При этом они станут условно раздельными и будет где хранить вещи.
Сделать изолированные помещения можно путем сноса двери в большую комнату и продления коридора так, чтобы можно было сделать две двери друг против друга. Останется место для небольшой кладовки. Большее помещение в площади потеряет, а второе останется без изменений.


Можно дополнить преобразования сносом стенки между комнатой и кухней, тогда пространство превратится в гостиную-кухню с двумя окнами. Коридор, который вел к кухне, можно объединить с санузлом, тогда он увеличится примерно на 1,5 кв. метра. Единственным неудобством в такой квартире останется маленький узкий коридорчик, из которого будут выходить целых четыре двери (в санузел, две комнаты и кладовку).
Есть полезный и эффективный вид перепланировки хрущевки с помощью зонирования шкафами-купе или просто зонами хранения. Например, шкаф-купе двусторонний разделяет зал и спальню. Одна открывающая часть выходит в зал, другая – в спальню. Одновременно происходит и разделение пространства, и добавление места для хранения. Можно сделать место для хранения в виде узкого шкафа вместо перегородки между кухней и большой комнатой. Будет оригинально и полезно.
Какие проблемы могут возникнуть при переоборудовании хрущевки в 3-комнатную квартиру и как их можно решить
В Санкт-Петербурге насчитывается более 5200 домов, которые называются «хрущёвками». Это первые дома советской постройки, которые начали возводить по типовым проектам.
Хрущёвки пользуются стабильной популярностью, особенно среди рациональных и прагматичных людей, которые не гонятся за внешним лоском новостроек. Для них большее значение имеет минимальная стоимость квадратного метра, а также наличие развитой инфраструктуры, включающей в себя детские сады и школы, парковые зоны, развитую сеть общественного транспорта и близость к станциям метрополитена.
Помимо этого, в хрущёвках нет огромного количества соседей, ведь на лестничной клетке располагается всего 4 квартиры, а этажность зданий – до 5 этажей. Это разительно отличает хрущёвки от современных 25-этажных «человейников». В то же время, владельцам хрущёвок приходится мириться с небольшими по площади кухнями, микроскопическими санузлами и низкими потолками. Подавляющее большинство собственников осуществляет перепланировки, чтобы максимально расширить помещения в своей квартире.
Наиболее популярными перепланировками в хрущёвках являются: объединение кухни и комнаты, расширение санузла за счёт площади коридора, объединение комнаты с прихожей. К сожалению, не все понимают, что является перепланировкой и насколько ответственно к этому надо подходить.
Надо помнить! Самовольная перепланировка - нарушение закона!
Итак, перепланировка – это комплекс мероприятий по проведению ремонтно-строительных работ в результате которых меняется исходная планировка квартиры, отражённая в сведениях Единого государственного реестра недвижимости или выписке ЕГРН. А в случае, если планировка квартиры не совпадает с планом квартиры в выписке ЕГРН, то такая планировка нарушает законодательство РФ и называется самовольной.