Создание уютной и функциональной хрущевки 2 комнаты 43-44 кв.м
- Создание уютной и функциональной хрущевки 2 комнаты 43-44 кв.м
- Связанные вопросы и ответы
- Какие современные решения можно использовать для дизайна хрущевки 2 комнаты 43-44 кв.м
- Какие факторы необходимо учитывать при создании дизайна хрущевки 2 комнаты 43-44 кв.м
- Как можно увеличить пространство в хрущевке 2 комнаты 43-44 кв.м
- Какие цвета и материалы наиболее подходящие для дизайна хрущевки 2 комнаты 43-44 кв.м
- Как можно оптимизировать пространство в хрущевке 2 комнаты 43-44 кв.м
Создание уютной и функциональной хрущевки 2 комнаты 43-44 кв.м
«Хрущёвку» легко узнать среди остальных квартир по характерным для неё особенностям, например, широким двухстворчатым окнам в форме квадрата. Или по маленьким окошкам на краю торцевой панели в кухне.
Что ещё отличает этот тип квартир от тех же «сталинок» и остальных вариантов:
- Наличие проходной комнаты.
- Маленькая кухня – от 4-5 до 6 кв. м.
- Совмещенный санузел: туалет и ванная находятся в одном помещении. Санузел «хрущёвки» обычно настолько маленький, что не вмещает в себя стандартную ванную длиной 150-180 см.
- На «хрущёвских» кухнях хозяйки готовят на газовых плитах.
- Многие квартиры имеет балкон и кладовку, последняя по размеру не отличается от обычной комнаты в домах этого типа. Балкона нет только в квартирах, которые находятся на первом этаже постройки.
Если говорить о доме в общих чертах, то в нём централизованное отопление, отсутствуют мусоропровод и лифт. Такие постройки обычно имеют 5 или 7 этажей, реже – 9 или 3-4. По планировке все квартиры в «хрущёвке» выходят на одну сторону, кроме угловых – их окна обращены в обратную сторону с видом во двор.
«Хрущёвка», с точки зрения планировки, имеет преимущества и недостатки, однако судить о них объективно невозможно.
Среди достоинств таких квартир отмечают:
- Наличие балкона и кладовки.
- Типовую планировку: маленькие коридор и кухню, две примерно одинаковые комнаты.
- Проходную комнату, которая часто граничит с кухней и ведет во вторую комнату.
- Совмещенный санузел – ещё один плюс. Он экономит место в квартире.
К недостаткам «хрущёвской» квартиры можно отнести:
- низкую шумоизоляцию или слишком тонкие стенки;
- невысокие потолки – всего 2.55 метра (некоторые постройки имеют потолки 2.70 метра);
- тесную прихожую или её буквальное отсутствие;
- маленькую площадь квартиры в целом: стандартная двушка в «хрущёвке» имеет площадь не больше 43, 44, 46 квадратных метров;
- небольшую площадь комнаты – спальни или детской;
- отсутствие балкона на первом этаже – практически не встречаются «хрущевки» с лоджией на первом этаже;
- проходную кухню, которая сочетается с гостиной и настолько маленькая, что из оборудования на неё помещается газовая плита и недлинная столешница.
«Хрущёвка» может располагаться в кирпичном или крупнопанельном доме.
«Двушки» могут несущественно отличаться по площади и планировке:
- «Книжкой» называют хрущевку с последовательно идущими друг за другом комнатами – кухней, гостиной, спальней и общей площадью 42-43 кв. м.
- «Трамваем» – двухкомнатную квартиру с площадью почти 47 кв. м и смежными комнатами, одна из которых – угловая.
- «Улучшенной» – планировку без проходной комнаты, раздельным санузлом и крошечной кухней. Общая площадь такой квартиры обычно 43-45 кв. метров.
- «Бабочка» – квартира с кухней посередине и двумя комнатами по её краям. Площадь такой «хрущёвки» обычно 46 кв. метров. Она имеет раздельный санузел практически на кухне.
Планировка «книжка» хороша тем, что имеет смежные комнаты, которые легко объединить в одну или всю квартиру – в полноценную студию. Однако минус этой планировки в том, что какой бы ни была перепланировка, одна из комнат так и останется проходной. Только если не поставить перегородку и не создать ведущий в соседнюю комнату коридор.
Вне зависимости от «родной» планировки, «хрущёвку» можно изменить и сделать функциональной – объединить комнаты или увеличить пространство одной из них.
Связанные вопросы и ответы:
Вопрос 1: Какие факторы следует учитывать при проектировании дизайна хрущевки 2 комнаты 43-44 кв.м
Ответ: При проектировании дизайна хрущевки 2 комнаты 43-44 кв.м следует учитывать несколько ключевых факторов. Во-первых, важно учитывать размеры комнаты и планировку, чтобы создать оптимальное использование пространства. Во-вторых, необходимо выбрать стиль и цветовую палитру, которые соответствуют вкусам и предпочтениям владельца. В-третьих, важно учитывать функциональность и удобство интерьера, чтобы создать комфортное и практичное пространство для жизни. В-четвертых, следует учитывать бюджет и возможность покупки мебели и декоративных элементов. В-пятых, необходимо учитывать современные тренды и технологии, чтобы создать стильный и современный интерьер.
Вопрос 2: Как выбрать цветовую палитру для дизайна хрущевки 2 комнаты 43-44 кв.м
Ответ: Выбор цветовой палитры для дизайна хрущевки 2 комнаты 43-44 кв.м зависит от вкусов и предпочтений владельца. Однако можно сделать несколько общих рекомендаций. Во-первых, следует выбирать светлые и светлые оттенки, чтобы создать ощущение просторности и света. Во-вторых, можно использовать контрастные цвета для создания эффекта и выделения отдельных элементов интерьера. В-третьих, можно использовать цвета, которые соответствуют стилю и атмосфере комнаты. Например, для создания уютной и теплой атмосферы можно использовать оттенки коричневого и бежевого цветов.
Вопрос 3: Как создать оптимальное использование пространства в хрущевке 2 комнаты 43-44 кв.м
Ответ: Создать оптимальное использование пространства в хрущевке 2 комнаты 43-44 кв.м можно с помощью нескольких рекомендаций. Во-первых, следует использовать мебель, которая не занимает много места, такую как складывающаяся или трансформируемая мебель. Во-вторых, можно использовать многоярусные шкафы и полки для хранения вещей и предметов. В-третьих, можно использовать зеркальные панели и светлые цвета для создания ощущения большего пространства. В-четвертых, можно использовать функциональные элементы, такие как подставки для телевизоров и кофе-столов, чтобы создать дополнительное пространство для хранения вещей.
Вопрос 4: Как создать функциональный и удобный интерьер в хрущевке 2 комнаты 43-44 кв.м
Ответ: Создать функциональный и удобный интерьер в хрущевке 2 комнаты 43-44 кв.м можно с помощью нескольких рекомендаций. Во-первых, следует выбирать мебель, которая не занимает много места, но при этом обеспечивает максимальную функциональность. Например, можно использовать трансформируемые диваны, которые можно превратить в кровать, или столы-расширители, которые можно расширить для приёма гостей. Во-вторых, можно использовать многоярусные шкафы и полки для хранения вещей и предметов. В-третьих, можно использовать функциональные элементы, такие как подставки для телевизоров и кофе-столов, чтобы создать дополнительное пространство для хранения вещей.
Вопрос 5: Как выбрать стиль для дизайна хрущевки 2 комнаты 43-44 кв.м
Ответ: Выбор стиля для дизайна хрущевки 2 комнаты 43-44 кв.м зависит от вкусов и предпочтений владельца. Однако можно сделать несколько общих рекомендаций. Во-первых, можно выбирать современный стиль, который сочетает в себе функциональность и эстетику. В-вторых, можно выбирать классический стиль, который сочетает в себе утончённость и элегантность. В-третьих, можно выбирать этнический стиль, который сочетает в себе национальные мотивы и элементы. В-четвертых, можно выбирать стиль, который сочетает в себе элементы разных стилей, чтобы создать уникальный и неповторимый интерьер.
Вопрос 6: Как создать современный и стильный интерьер в хрущевке 2 комнаты 43-44 кв.м
Ответ: Создать современный и стильный интерьер в хрущевке 2 комнаты 43-44 кв.м можно с помощью нескольких рекомендаций. Во-первых, следует использовать современные материалы и технологии, такие как стекло, металл, пластик и ламинированная фанера. В-вторых, можно использовать современные элементы, такие как лампы, светильники и светильники, чтобы создать атмосферу и настроение. В-третьих, можно использовать современные цвета и палитры, такие как белый, черный, серебристый и серый, чтобы создать эффект чистоты и света. В-четвертых, можно использовать современные узоры и принты, такие как геометрические узоры и принты, чтобы создать эффект современности и эстетики.
Какие современные решения можно использовать для дизайна хрущевки 2 комнаты 43-44 кв.м
Ремонт «хрущевки» – настоящее испытание, особенно если из старой квартиры неудачной планировки хочется сделать современную и удобную. Главный враг старых квартир – узкий коридор, маленькая кухня, неудачное расположение дверей, проходные комнаты и, конечно, небольшая квадратура. Но на сегодняшний день можно реализовать даже самый смелый и необычный проект, и для этого совсем не обязательно быть профессиональным дизайнером. Достаточно проанализировать особенности квартиры, изучить ранее реализованные проекты и составить дизайн-проект.
Особенности
Построенные в середине прошлого столетия дома до сих пор остаются единственным жильем для миллионов семей. И на сегодняшний день кирпичные и крупнопанельные дома до пяти этажей считаются наихудшим архитектурным решением. Зачастую самым простым способом усовершенствовать удручающую планировку квартиры является снос межкомнатных перегородок. При некоторых планировках возможно объединить кухню и комнаты, прихожую и комнату, ванну и туалет. Это позволит расширить площадь квартиры, добавить несколько необходимых метров. Также в некоторых квартирах есть кладовая, которую можно объединить с жилой комнатой.
Размеры коридора обычно наводят тоску. Узкая и темная прихожая в редких случаях может вместить шкаф-купе, поэтому необходимо делать акцент на функциональности, по возможности избавиться от не несущих стен. Если санузел изначально раздельный, его стоит объединить. Тогда можно будет выделить место для стиральной машины и большой угловой ванны. Чтобы сэкономить пространство, можно отказаться от раковины или от ванны в пользу душевой кабины. Любая перестройка стен должна быть согласована со специалистом, независимо от того, в каком доме она проводится: крупнопанельном или кирпичном.
Особенности квартиры не дают возможности перенести кухню в другое место, но зато можно вынести обеденную зону в гостиную. Для этого можно снести перегородку между кухней и комнатой или сделать арочный проем. Такой широкий проход визуально разделит пространство и создаст эффект увеличения площади. Вместо большого вместительного стола можно оставить место на кухне для барной стойки, за которой могут комфортно разместиться до 4 человек.
Какие факторы необходимо учитывать при создании дизайна хрущевки 2 комнаты 43-44 кв.м
Из-за не слишком удобных для жизни исходных данных чаще всего без перепланировки, хотя бы минимальной, не обойтись. Рассмотрим самые популярные схемы двухкомнатных хрущевок до и после ремонта.
Пример №1
Этот проект двухкомнатной хрущевки — пример улучшенной «книжки», еще ее называют «распашонка». При таком планировочном решении кухня и жилые комнаты расположены друг за другом. При этом в одних сериях гостиная является проходной, в других, как здесь, — нет.
В данном случае стояла задача организовать удобное пространство для молодой пары с учетом пополнения в будущем. Исходные данные: два жилых помещения площадью 14 и 18 кв. м, а также нетипичная для хрущевок достаточно большая кухня — целых 12 квадратов. Благодаря этому внесли минимум изменений: только выделили в спальне зону под гардеробную, а в коридоре — место под.
Пример №2
А это уже совсем другой тип планировки:(одно обязательно проходное) и идут друг за другом наподобие вагонов. Именно поэтому такие двушки называют «трамваем». Эта квартира предназначена для семьи с двумя детьми, поэтому четырнадцатиметровую комнату отвели под детскую. Другую, побольше, объединили с кухней (прим. ред.: такая перепланировка законна только для квартиры без газа) , выделив в центре несколько квадратных метров под гардеробную. Санузел изначально был совмещенным, его и прихожую не трогали. За счет присоединения гостиной к кухне, которая изначально была площадью 5,9 кв. м, там удалось разместить и полноценный гарнитур с холодильником, и.
Пример №3
Эта двушка — тот самый пример «книжки» с проходным помещением. Самым оптимальным в данном случае является объединение кухни и гостиной, но в старом фонде это всегда сопряжено со сложностями. Прежде всего, потому что обычно дом газифицирован и делать открытую зону готовки нельзя по правилам безопасности.
- (в том числе прозрачные стеклянные), чтобы при необходимости обеспечить изоляцию кухни, но при этом визуально пространство выглядело открытым и просторным. Этот вариант представлен на втором фото в галерее.
- Отказаться от газа в квартире и заменить плиту на электрическую. Это возможно, но процесс достаточно трудоемкий, он требует вызова специалистов и согласования. Если же вам удастся провести процедуру, то можно смело делать дизайн-проект двухкомнатной хрущевки в стиле. Такой вариант — на последнем фото.
В этом проекте жилье оформлялась для семьи с ребенком, поэтому одну комнату традиционно отвели под детскую, ав просторной гостиной.
Как можно увеличить пространство в хрущевке 2 комнаты 43-44 кв.м
Понятие «хрущевка» давно вошло в обиход россиян. В былые времена такие стандартные дома совершили настоящую жилищную революцию, вырвав миллионы людей из общежитий и коммунальных квартир. Если в те далекие годы получение такой квартиры было мечтой, то в наше время, с учетом улучшения качества жизни, с таким жильем возникает масса проблем.

Современный интерьер старой хрущевки
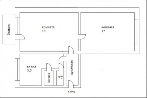
Чем характеризуются такие однотипные квартиры? Один из самых распространенных вариантов: двухкомнатная квартира. Её особенности: две смежные жилые комнаты, небольшая кухня площадью примерно 6 кв. м, маленькая прихожая и ванная, совмещенная с туалетом. Общая площадь составляет 40-46 кв. м при жилой площади 26-31 кв. м. Потолок очень низкий: 250-260 см. Следует отметить, что большая часть таких квартир имеет маленький балкон. Толщина внутренних капитальных стен составляет 22-32 см, а перегородок — 7-9 см.

Маленькая кухня в планировке хрущевки

Совмещенная ванна с туалетом

Маленький балкон в хрущевке
В современных условиях хозяева таких квартир имеют естественное желание повысить комфортабельность проживания. Дизайн-проекты двухкомнатных квартир (хрущевка), в принципе, возможны в нескольких вариантах изменения вида жилплощади с целью расширения жизненного пространства и его благоустройства. Первый вариант — радикальная перестройка всей внутренней компоновки, т. е. снос всех межкомнатных стен с созданием единого пространства. Такой путь осложняется необходимостью согласования плана в соответствующих органах, что сделать достаточно сложно.

Перепланировка хрущёвки
Второй вариант — частичная перестройка с устранением только перегородок. Такой способ позволяет совместить некоторые помещения, например, кухню-комнату, прихожую-комнату. Наконец, дизайн двухкомнатной квартиры в хрущевке можно осуществить без перестройки, но с использованием современных направлений и стилей.

Какие цвета и материалы наиболее подходящие для дизайна хрущевки 2 комнаты 43-44 кв.м
Узнать «хрущевку» можно по широким квадратным окнам, проходным комнатам, маленьким кухонькам. Совмещенный санузел – еще одна типовая деталь в плане-проекте таких квартир. Стандартная ванна в таком маленьком санузле даже поместиться не могла. Многие квартиры обустроены балконом и кладовкой.
Двухкомнатная «хрущевка» – очень компактная квартира. В новостройках даже «однушки» современной планировки располагают схожей площадью (40-45 кв. м) и даже больше. «Хрущевка» максимально имеет метраж в 46 квадратов, если это «двушка», но благодаря компактности зон тем не менее на них можно удобно разместить все. Просто от стандартных схем порой выгоднее отклониться, поискав новые решения.
Иногда это глобальная перепланировка, которая предполагает изменение геометрии квартиры. Естественно, чтобы не пострадали несущие стены, перепланировку требуется узаконить в соответствующих инстанциях.
Существует несколько вариантов стандартной планировки.
- «Книжка». Так принято называть квартиру, в которой комнаты идут друг за другом последовательно. Общий метраж такого жилища 42-43 квадрата.
- «Трамвай». А это «двушка», площадь которой 47 квадратов, комнаты в ней смежные, одна из них угловая.
- Улучшенная. Данная планировка не предполагает проходной комнаты, более того, в ней даже есть нетипичный для «хрущевки» раздельный санузел. Правда, кухня в таком жилище крошечная.
- «Бабочка» . В такой квартире кухня находится посередине, а по краям – жилые комнаты. Раздельный санузел тоже является выгодной стороной данной планировки.
Сказать, какая из этих планировок удобнее для перестройки, точно нельзя. Например, в «книжке» смежные комнаты легко объединить в одну (если это задумано), и тогда жилище превратится в полноправную студию. В любом случае подумать есть над чем.
Дизайн двухкомнатной хрущевки: цвета и материалы
Для дизайна двухкомнатной хрущевки, площадью 43-44 кв.м, рекомендуется использовать цвета, которые создают ощущение простора и светлости. Классические варианты:
- Белый и кремовый: эти цвета будут создавать ощущение простора и светлости, а также будут гармонировать с широкими квадратными окнами.
- Светло-коричневый и серый: эти цвета будут создавать уютный и теплый atmosphere, а также будут скрыть некоторые недостатки дизайна.
- Зеленый и коричневый: эти цвета будут создавать естественный и уютный atmosphere, а также будут гармонировать с природой.
Материалы:
- Деревянные панели: идеально для создания уютной и теплой атмосферы.
- Мрамор: создаст ощущение роскоши и элегантности.
- Керамическая плитка: идеально для создания светлого и чистого интерьера.
Важно помнить, что дизайн хрущевки - это возможность создать что-то уникальное и индивидуальное. Не бойтесь экспериментировать и отклоняться от стандартных схем!
Вот несколько примеров дизайна хрущевки:

Как можно оптимизировать пространство в хрущевке 2 комнаты 43-44 кв.м
Нельзя начать ремонт двухкомнатной квартиры хрущевки без понимания ее особенностей.
Кухня с небольшим метражом (5–6 метров).
Низкие потолки.
Одна из комнат – проходная.
Санузел и ванна совмещенные, при этом у комнаты небольшой метраж, который не позволяет смонтировать стандартную ванную.
Если отдельная кладовка.
Если квартира расположена не на первом этаже – есть балкон или лоджия.
Еще две грустные особенности «хрущевок» – очень малый метраж прихожей и плохая шумоизоляция. Впрочем, практически все недостатки квартиры можно нивелировать современным ремонтом.

Скажем еще пару слов об особенностях планировок в домах разных серий, а потом дадим рекомендации по улучшению ситуации.
Метражи и особенности планировки двухкомнатных хрущевок
Встречаются разные варианты планировок:
«Книжки». Квартиры этой планировки имеют площадь в 42–43 м2. Их главная особенность – кухня, спальня и гостиная идут друг за другом. Проходная комната должна выполнять роль столовой. Если семья больше двух человек, придется в ней же спать, что очень неудобно. Жирный минус такой планировки – проходная комната останется проходной, как бы и что вы ни запланировали. Самый распространенный вариант изменения в такой комнате – снос перегородок между кухней и столовой (комната превращается в уверенную студию).

«Трамваи» (они же «Павровозики») – квартиры с метражом в 47 метров. В такой планировке две спальные комнаты располагаются смежно. При этом одна из них угловая, а вторая – проходная. Чаще всего при такой планировке «отрезается» часть проходной комнаты, достраивается стена и создается своеобразный коридор (в котором дополнительно размещают системы хранения вещей).

«Бабочки» (они же «Распашонки») – квартиры с метражом в 46 м2. Сразу за прихожей размещается кухня и санузел, комнаты располагаются по бокам. Достаточно удобный вариант, главный минус – санузел находится практически на кухне.

Неважно, какая именно планировка у вашей квартиры – с помощью продуманного ремонта ее можно превратить в дом вашей мечты.
Комплексный ремонт квартир под ключ
Всё включено
В стоимость ремонта входит всё: работы, материалы, документы.
Без вашего участия
После согласования проекта мы беспокоим хозяев только при сдаче ремонта.
Цена известна заранее
Стоимость ремонта фиксируется в договоре.
Фиксированный срок ремонта
Ремонт квартиры под ключ за 3,5 месяца. Срок закреплен в договоре.