Ответы на вопросы о несущих стенах в хрущевках
- Ответы на вопросы о несущих стенах в хрущевках
- Связанные вопросы и ответы
- Что такое несущая стена
- Как определить, является ли стена несущей в хрущевке
- Какие признаки указывают на то, что стена является несущей
- Как отличить несущую стену от несущей
- Можно ли переделать несущую стену в несущую
- Как изменить несущую стену без риска для здания
- Какие факторы могут повлиять на то, является ли стена несущей
Ответы на вопросы о несущих стенах в хрущевках
Несущие стены в хрущевках являются важным элементом конструкции здания, обеспечивающим его прочность и устойчивость. В этой статье мы рассмотрим некоторые вопросы, которые часто возникают у жителей хрущевок по этому поводу.
Что такое несущая стена?
Несущая стена – это стена, которая несёт на себя нагрузку от потолка и перекрытий здания. Она является важным элементом конструкции здания, обеспечивающим его прочность и устойчивость.
Почему несущие стены важны?
Несущие стены являются важным элементом конструкции здания, обеспечивающим его прочность и устойчивость. Они несут на себя нагрузку от потолка и перекрытий здания, а также препятствуют его деформации и оседанию.
Какие материалы используются для строительства несущих стен?
В хрущевках несущие стены обычно строятся из бетона или железобетона. Эти материалы обладают высокой прочностью и способны выдерживать большие нагрузки.
Можно ли изменять несущие стены в хрущевках?
Изменение несущих стен в хрущевках может привести к серьезным последствиям для конструкции здания. Поэтому любое изменение несущих стен должно быть предметом тщательного рассмотрения и должно проводиться только после согласования с архитектором и инженером-строителем.
Что делать, если несущая стена повреждена?
Если несущая стена повреждена, необходимо незамедлительно обратиться к специалисту для оценки ущерба и определения мер по его устранению. Не рекомендуется пытаться самостоятельно ремонтировать несущие стены, так как это может привести к дальнейшему повреждению конструкции здания.
Вывод
Несущие стены являются важным элементом конструкции здания, обеспечивающим его прочность и устойчивость. Вы должны обращать внимание на состояние несущих стен в своём доме и немедленно обращаться к специалисту в случае обнаружения повреждений.
Связанные вопросы и ответы:
Вопрос 1: Что такое несущая стена в хрущевке
Ответ: Несущая стена в хрущевке - это стена, которая несёт на себе вес всей конструкции здания и передаёт его на фундамент. Она является жизненно важной частью здания, так как без неё здание было бы нестабильным и могло бы обрушиться.
Вопрос 2: Как определить, какая стена является несущей в хрущевке
Ответ: Несущие стены обычно имеют большую толщину и расположены под углом к потолку. Они также могут быть обозначены специальными метками или маркировками на стенах. Кроме того, несущие стены часто соединяются с другими несущими конструкциями, такими как колонны или фермы.
Вопрос 3: Можно ли изменить расположение несущих стен в хрущевке
Ответ: Изменение расположения несущих стен в хрущевке может быть опасным и может привести к разрушению здания. Поэтому перед любыми изменениями в конструкции здания необходимо проконсультироваться с профессиональным инженером или архитектором.
Вопрос 4: Как определить, что стена в хрущевке не является несущей
Ответ: Если стена не имеет большой толщины и не расположена под углом к потолку, она, вероятно, не является несущей. Кроме того, если стена не соединяется с другими несущими конструкциями, такими как колонны или фермы, она также не является несущей.
Вопрос 5: Можно ли убрать несущую стену в хрущевке
Ответ: Убрать несущую стену в хрущевке может быть опасным и может привести к разрушению здания. Поэтому перед любыми изменениями в конструкции здания необходимо проконсультироваться с профессиональным инженером или архитектором.
Вопрос 6: Как определить, что стена в хрущевке является несущей
Ответ: Если стена имеет большую толщину и расположена под углом к потолку, она, вероятно, является несущей. Кроме того, если стена соединяется с другими несущими конструкциями, такими как колонны или фермы, она также является несущей.
Вопрос 7: Как избежать проблем с несущими стенами в хрущевке
Ответ: Чтобы избежать проблем с несущими стенами в хрущевке, необходимо следить за состоянием конструкции здания и проводить регулярные ремонтные работы. Кроме того, перед любыми изменениями в конструкции здания необходимо проконсультироваться с профессиональным инженером или архитектором.
Что такое несущая стена
Несущая стена удерживает на себе межэтажные перекрытия, балки, колонны. Нарушение её целостности способно привести к трещинам в стенах, обрушению перегородок и всей постройки.
Последнее слово в решении как-либо изменить несущую стену остаётся за инженерами жилищных инспекций. До обращения к ним можно вычислить её местонахождение по следующим признакам:
- Расположение по контуру здания — внешние стены в большинстве случаев являются несущими.
- Соседство с лестничной клеткой или квартирой соседей.
- Обозначение на плане техпаспорта жирной линией — заказать и посмотреть его можно в БТИ.
Ещё один способ — измерить толщину. Но единого стандарта не существует: в кирпичных, блочных, панельных и монолитных домах значения будут разными. Поэтому при сопоставлении полученного результата и стандарта нужно ориентироваться на тип постройки.
Как определить несущую стену в доме кирпичного типа
В жилых зданиях из кирпича совершенно точно несущими выступают все внешние стены.
Внутри дома их определяют по толщине или количеству кирпичей: 360 мм или три кирпича — достаточное значение для большой нагрузки. Соответственно, всё, что толще, сносить нельзя.
Межкомнатные перегородки в таких постройках выполняют в один кирпич или же используют гипсобетонные блоки. Поэтому их толщина варьируется от 80 до 160 мм.
Важно! Учитывать следует только толщину основного материала. В данном случае — кирпичной кладки со слоями раствора. Штукатурку, шпаклёвку, обои, краску, пластиковые панели в расчёт не берут.
Как определить несущую стену в доме панельного типа
В панельных постройках несущих стен больше всего. Как правило, к ним относятся все, что выходят на улицу. А также соприкасающиеся с контуром здания и стоящие перпендикулярно его сторонам.
Ещё можно ориентироваться на толщину. Если она достигает 12–14 см, нарушать её целостность нельзя. Либо надо укреплять проделанный в ней проход арматурой или металлической конструкцией. Если же её толщина 8 см и менее — можно снести.
На заметку. Панельные дома строятся и возводились ранее по типовым проектам. Каждый проект имеет идентификатор. Например: 504Д, 111-97. Забив в любом поисковике идентификатор проекта, легко найти нужные планы, характеристики и значения.
Как определить несущую стену в доме монолитного типа
Здесь всё сложнее — у каждой постройки свои особенности. Единственное, что объединяет все проекты, — монолитный железобетон по контуру. Внутри любая из перегородок может оказаться несущей.
Источники информации:
- Компания-проектировщик — организация, которая занималась созданием и согласованием проекта.
- Управляющая компания. В её архивах должна храниться вся проектная документация.
В новостройках, сдаваемых с черновой отделкой, типы перегородок можно определить зрительно. Если видны границы пеноблоков, то это не несущая конструкция. Если перегородка монолитная и видны следы от опалубки, то она несущая.
Несущие стены в доме блочного типа
Здесь всё просто. Стена толще 30 см — всегда несущая.
Межквартирные и внутриквартирные перегородки, от которых прочность всей конструкции не зависит, имеют толщину 8–10 см.
На заметку. Толщина несущих стен в блочных зданиях — 30–61 см. В самых объёмных проложены вентиляционные пути. Если их нарушить, проблемы с обновлением воздуха будут не только у вас, но и у ваших соседей.
Несущие стены в хрущёвке и сталинке
Хрущёвками называют пятиэтажные жилые постройки из кирпича, блоков и панелей с компактными квартирами. Их массовое возведение пришлось на время правления Никиты Сергеевича Хрущёва — отсюда такое название.
Сталинка — это многоквартирный дом, архитектура которого выдержана в духе неоклассицизма или сталинского ампира. Строили такие дома с 1933 по 1962 годы. Их основной материал — белый силикатный и красный керамический кирпич. Различают номенклатурные, директорские и рядовые проекты.
Как видно из описания, такие здания сильно различаются. Кроме того, в них могут встречаться неожиданные элементы, например несущие перегородки из древесины внутри квартир.
Поэтому определить состав и качество стены на глаз не всегда возможно. Да и специалисты крайне осторожно работают со старым фондом.
Если вы запланировали перепланировку в хрущёвке или сталинке, приготовьтесь к частичному вскрытию отделки даже на тех стенах, которые не собирались трогать. Чтобы уточнить особенности проекта, вызванные инженеры должны будут это сделать.
Как определить, является ли стена несущей в хрущевке
Как и на чертежах, капитальные стены в зданиях всегда толще перегородок, которые допускается демонтировать и выполнять с ними любые другие манипуляции. Но какой именно должна быть их толщина, зависит от материала стен. Она разная для кирпича, блоков, панелей, дерева. И для каждого материала существуют свои стандартны, которые определяются их несущей способностью и нагрузкой. Так, несущие стены на первом этаже могут быть толще, чем на втором, потому что они принимают на себя больший вес.
- Чтобы понять, несущая стена или нет в кирпичном доме, нужно знать, что её толщина (для внутренних стен) должна быть не менее 380 мм или 1,5 кирпича.
- В домах из керамзитобетонных блоков и железобетонных панелей толщина капитальных стен не может быть меньше 140 мм, а в многоэтажках – 200 мм.
- Минимальная толщина блоков из ячеистого бетона для внутренних несущих стен – 300 мм.
- В монолитных домах она варьируется от 200 до 370 мм в зависимости от этажности и нагрузок.
Сложнее всего определить несущую стену в монолитном доме, где толщина в 200-250 мм совсем не говорит о её назначении. Но такие дома обычно сравнительно новые, возводятся они по проекту с обязательным расчетом нагрузок, поэтому на них должна быть соответствующая документация.
Обратите внимание! Толщину стен измеряют в «чистом» виде, то есть, за вычетом толщины звукоизоляции, штукатурки, выравнивающих панелей и прочей отделки, которая может дать критическую погрешность.
Звукоизоляция в кирпичном доме: типы и эффективность
Если толщину невозможно измерить обычным способом, можно прибегнуть к таким способам, как сверление сквозного отверстия буром 10-16 мм или применение ультразвукового сканера.
Однако стоит понимать, что определять, несущая стена или нет в кирпичном доме или любом другом, по её толщине – не самый правильный способ. Потому что этот параметр напрямую зависит от вида и величины нагрузок. Например, от прочности материала, высоты стены, вида и веса перекрытий и кровли, расстояния до соседней несущей стены и т.д. И он вполне может оказаться как меньше, так и больше принятых значений.
По расположению
Одно из основных назначений несущих стен – поддержка межэтажных и чердачных перекрытий. Плиты или балки опираются на них своими короткими концами, поэтому их расположение и места стыков дают понять, что стена несущая. На ненесущие перегородки перекрытия опираться не могут.
Если внутренняя отделка потолков не позволяет понять, как лежат перекрытия, можно залезть на чердак. Или, если полы деревянные, посмотреть, как лежат доски пола на втором этаже – они укладываются поперек балок перекрытия.
При недоступности любого из этих способов нужно узнать, из чего сделаны перекрытия и определить их возможное расположение. Если это железобетонные плиты, их стандартная длина равна 6 метрам. При параметрах коробки дома больше этого значения стык плит приходится на внутреннюю несущую стену, отстоящую от наружной на этом расстоянии.
Определить несущие и ненесущие стены в домах с перекрытиями на деревянных или стальных балках сложнее, так как их длина может быть любой. В этом случае оценивают форму и планировку строения. Например, если в доме вытянутой прямоугольной формы имеется внутренняя стена, параллельная длинной стороне постройки – она и является несущей, если остальные стены, разделяющие помещения, расположены не на одной прямой;
Отсутствие сплошной продольной стены на достаточном расстоянии от внешнего контура говорит о том, что несущий остов выполнен в поперечном направлении.
Какие признаки указывают на то, что стена является несущей
Перепланировка квартиры — дело непростое , особенно если речь идет о несущих стенах. Многие мечтают о просторной кухне-гостиной , объединенной с балконом , или о ванной комнате с сауной. Но стоит ли рисковать прочностью дома ради этих желаний ?
Несущая стена — основа дома :
Несущие стены — это костяк всего здания , они воспринимают на себя вес всех этажей и крыши. Их демонтаж или повреждение может привести к обрушению дома , к серьезным последствиям для жизни и здоровья людей.
Разбираемся в тонкостях :
Важно понимать , что несущие стены нельзя сносить ни частично , ни полностью. Это правило распространяется на все типы домов — кирпичные , панельные , монолитные.
Единственный допустимый вариант :
Если вы хотите создать проем в несущей стене , то нужно обратиться к специалистам , чтобы получить разрешение на проведение работ. Проем можно сделать только с помощью безударной технологии алмазной резки стен. Ширина и местоположение проема должны быть согласованы с проектом дома и с Мосжилинспекцией.
Незаконная перепланировка :
Если вы обнаружили , что соседи снесли несущую стену без разрешения , то необходимо обратиться в жилищные органы или надзорные инстанции. Это может быть Жилищная инспекция ( ЖИ ), управляющая компания или прокуратура.
Выберите подходящий раздел посредством нижеследующей ссылки:
️ Перепланировка квартиры – это заманчивая перспектива, позволяющая создать пространство мечты, но она требует серьезного подхода и четкого понимания ограничений. Один из самых частых вопросов: можно ли сносить часть несущей стены?
⛔️ К сожалению, несущие стены – это основа здания, и их демонтаж, даже частичный, категорически запрещен. Они обеспечивают устойчивость конструкции, и любые изменения в них могут привести к необратимым последствиям, вплоть до обрушения.
♂️ Единственный разрешенный вариант – это создание нового проема в несущей стене. Но и этот процесс требует разрешения и контроля со стороны специалистов.
 Что касается стен между туалетом и ванной, то в большинстве случаев их разделяет перегородка, которая не является несущей. Такую перегородку можно свободно демонтировать, создавая совмещенный санузел.
 Однако перед любой перепланировкой необходимо провести согласование с проектной организацией и получить разрешение на перепланировку в ЖКХ. Это гарантирует безопасность и соответствие строительным нормам.
 Помните, что неправильная перепланировка может привести к серьезным последствиям, включая штрафы и обязательства по восстановлению первоначального состояния квартиры. Поэтому обращайтесь к профессионалам и не рискуйте безопасностью своего жилья. 
Как отличить несущую стену от несущей
Общими словами, конструктивные элементы здания подлежат замене, если они полностью или в большей степени утратили несущую способность, влияют на устойчивость и надежность здания. Для разных видов конструкций такой вывод можно сделать только на основании экспертного обследования, визуального осмотра, полного или частичного вскрытия стен или перекрытий, проведения расчетов и измерений.
Замена несущих конструкций может потребоваться:
- при истечении нормативных сроков эксплуатации объекта или его отдельных элементов (точное решение может приниматься по результатам обследований и расчетов, так как возможен вариант с усилением несущей способности);
- при выявлении повреждений и дефектов, влияющих на прочность конструкций и устойчивость объекта;
- при устранении последствий аварийных или чрезвычайных ситуаций, природных катаклизмов;
- при изменении целевого или технологического назначения здания, что требуется монтаж более надежных и устойчивых конструкций;
- при изменении параметров объекта (например, при наращивании высоты и этажности объекта может оказаться недостаточно запаса прочности несущих стен и перекрытий на нижних этажах);
- в иных случаях, если такое решение собственник принимает самостоятельно или по предписанию органов стройнадзора.
В законодательстве есть три важных определения состояния объекта, при которых также может потребоваться замена несущих конструктивных элементов – ветхость, аварийность, угроза обрушения. Особенно эти понятия важны для оценки состояния жилфонда, когда речь идет о безопасности людей. Например, путем замены несущих конструкций можно устранить аварийность здания, либо снизить показатели износа для ветхого жилья. Окончательное решение о необходимости замены конструкций принимает собственник на основании экспертных заключений, предписаний уполномоченных органов, решения суда.

Вариант создания проема в несущей стене зависит от характера предстоящих работ.
Можно ли переделать несущую стену в несущую
К несущим стенам относятся те поверхности, на которые переходит вес вышестоящей части конструкции, к ним можно отнести плиты перекрытия, другие стены, балки. В некоторых зданиях несущими являются не стены, а колонны и балки.
Поэтому, если было решено сделать перепланировку здания так важно точно определить место нахождения несущей поверхности. Ведь безопасность жильцов квартиры, а также всех жильцов данного дома будет находиться под большим вопросом. Так внесение изменений без согласования с органами чревато серьезными последствиями. Кроме долгой беготни по узакониванию готовой перепланировки, так не следует забывать о возможности внесения изменений, которые могут привести к разрушительным действиям по отношению к зданию.
Владелец квартиры не может знать, какие изменения были внесены владельцами других квартир, это знают лишь органы БТИ, где указаны все изменения, и они могут точно сказать, возможно ли внесение на каждую конкретную несущую стену еще каких-либо изменений или нет.

К несущим стенам относятся те поверхности, на которые переходит вес вышестоящей части конструкции.
По этой причине любое перепланирование начинают со следующих шагов:
- приглашение работников БТИ в квартиру, чтобы они указали конструкцию каких стен можно менять;
- узаконить изменения планировки помещения лучше заранее, тогда это потребует меньше времени и сил;
- также, чтобы было легче самому спланировать проведение ремонта, можно самостоятельно провести определение места нахождения несущих поверхностей. Соответственно проект может быть готов заранее, а официальные представители лишь задокументируют и подтвердят возможность проведение работ.

Узаконить изменения планировки помещения лучше заранее, тогда это потребует меньше времени и сил.
Требования к несущим сооружениям:
- они обязательно отличаются прочностью и надежностью, ведь они отвечают за стойкость большого числа элементов здания;
- пожаробезопасность относится к их свойствам;
- отвечают и иным требованиям безопасности;
- кроме давления сверху происходит давление на них и по бокам, все это факторы учитываются при перестройке поверхности в жилом помещении.
Несущие стены это элементы здания, на которые оказывается сильное давление, поэтому толщина их больше, чем у другого вида стен, отвечающих, лишь за свой вес. Этот показатель отличается от типа дома, материалов применённых при строительных работах, она определяется нормативами, поэтому данный фактор позволяет легче определиться с тем, какая стена является несущей.
Нормативы, в том числе прописываются в СНИП. И именно по ним ориентируются организации осуществляющие строительство, при их несоблюдении здание не будет допущено к сдаче, и не будут оформлены соответствующие документы.
Во многих случаях лучше обойтись без затрагивания данной поверхности, и создать проект, согласно которому изменения будут делаться на ненесущих стенах.
Но каждый вид дома имеет свои особенности.

Несущие стены это элементы здания, на которые оказывается сильное давление, поэтому толщина их больше, чем у другого вида стен.
Как изменить несущую стену без риска для здания
 Дефекты и повреждения зданий могут возникнуть из-за различных факторов, включая естественные процессы старения, эксплуатационные условия, аномалии в строительном процессе или воздействие внешних агентов. Понимание и своевременное устранение этих проблем являются важными аспектами обеспечения долговечности и безопасности зданий.
Дефекты и повреждения зданий могут возникнуть из-за различных факторов, включая естественные процессы старения, эксплуатационные условия, аномалии в строительном процессе или воздействие внешних агентов. Понимание и своевременное устранение этих проблем являются важными аспектами обеспечения долговечности и безопасности зданий.
Что такое дефекты зданий?
Дефекты зданий представляют собой неисправности, недостатки или повреждения, которые возникают в строительных конструкциях здания и могут влиять на его надежность, функциональность и внешний вид. Эти дефекты могут возникнуть по различным причинам, включая ошибки в процессе строительства, естественные процессы старения, воздействие окружающей среды или неправильное использование и уход.
Дефекты зданий могут быть разнообразными и включать следующие типы проблем:
- Трещины: Это линейные разрывы или швы в строительных материалах, таких как стенах, потолках или фундаменте. Трещины могут быть вызваны усадкой грунта, температурными колебаниями, напряжениями или дефектами в конструкции.
- Оседание фундамента: Неравномерное оседание фундамента может привести к наклону или деформации здания.
- Протечки воды: Проникновение воды из-за неисправных кровель, дефектов водосточных систем или повреждений водозащитных слоев.
- Износ материалов: Потеря прочности и структурной целостности строительных материалов из-за естественного старения, воздействия погодных условий или агрессивных сред.
- Нарушение теплоизоляции: Дефекты в теплоизоляционных слоях, которые могут привести к потере эффективности теплоизоляции здания.
- Коррозия и ржавчина: Развитие коррозии металлических элементов конструкции, таких как арматура, что может привести к потере прочности.
- Деформации конструкций: Повреждения, связанные с деформациями или изгибами структурных элементов.
Регулярное обследование и своевременное устранение дефектов являются важными мерами для поддержания долговечности и безопасности зданий.
Дефектов блочных зданий
Дефекты в блочных зданиях могут варьироваться в зависимости от типа блоков, качества строительства и воздействия различных факторов. Вот некоторые типичные дефекты, которые могут возникнуть в блочных зданиях:
- Трещины в блоках: Появление трещин может быть вызвано неравномерным оседанием грунта, перепадами температур, ошибками в строительном процессе или деформацией блоков.
- Сползание блоков: Недостаточное крепление блоков между собой может привести к их смещению, особенно под воздействием внешних нагрузок или вибрации.
- Протечки воды: Повреждения герметичности блоков или недостаточная гидроизоляция может вызвать проникновение воды и образование пятен внутри помещения.
- Коррозия арматуры: В случае использования армированных блоков, коррозия арматуры из-за влажности или агрессивных химических воздействий может привести к потере прочности.
- Износ поверхностного слоя блоков: Механические воздействия или воздействие погодных условий могут вызвать износ поверхностного слоя блоков, особенно если они не имеют достаточной прочности.
- Образование плесени и грибка: Недостаточная вентиляция и влажные условия могут способствовать развитию плесени и грибка, особенно в блоках с недостаточной герметичностью.
- Неравномерное оседание: Если блоки не установлены на ровном и прочном фундаменте, это может привести к неравномерному оседанию и, как следствие, к деформации здания.
Какие факторы могут повлиять на то, является ли стена несущей
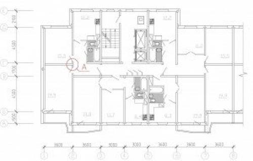
В большинстве случаев панельные и блочные дома имеют типовую серию, то есть шифр проекта, по которому они возводились. Для начала определите с помощью этой статьи серию Вашего дома по адресу. Затем найдите описание вашей типовой серии в интернете, у нас на сайте, на сайте застройщика и т.д. В описаниях обычно приведена толщина несущих стен в панельном доме данной серии.
Итак, как определить несущую стену в панельном доме? Для начала Вы можете воспользоваться нашей базой несущих стен типовых серий домов . Там приведены планировки квартир каждой серии с выделением цветом несущих стен.
Второй способ узнать какие стены несущие в панельном доме- это померить их толщину. В общем случае в панельных зданиях толщина перегородок варьируется от 80 до 100 мм., толщина несущих стен- от 140 до 200 мм. В 90% панельных домов внутренние перегородки- это гипсобетонные панели толщиной 80 мм., внутренние стены- железобетонные несущие панели толщиной 140,180 или 200 мм. В некоторых старых сериях панельных домов встречаются несущие панели толщиной 120 мм.
Таким образом, если толщина померенной стены без отделочных слоев окажется меньше 120 мм., то это значит, что она является перегородкой, а если больше- то несущей.
Следует отметить, что отделочные слои стен (штукатурка, обои) могут вносить корректировки в её толщину, однако в панельных домах обычно они не превышают 50 мм. и не оказывают существенного влияния. Правда, если есть возможность, для чистоты замеров штукатурный слой лучше удалить.
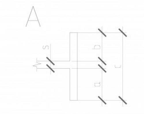
Если вы не можете померить толщину стены напрямую (допустим между комнатами), то можно её замерить через «третий размер»:


Толщина стены: s= c-a-b;
Следует отметить, что снос несущей стены в панельном доме недопустим. Это гарантированно приведёт к прогибу или обрушению перекрытия.