Как организовать пространство в 2-комнатной хрущевке для семьи с двумя детьми
- Как организовать пространство в 2-комнатной хрущевке для семьи с двумя детьми
- Варианты перепланировки
- Функциональная мебель
- Компактная мебель
- Зонирование с помощью штор
- Использование перегородок
- Полки и стеллажи
- Контейнеры и корзины
- Встроенные шкафы
- Игровая зона
- Рабочее место
- Хранение игрушек
- Общая зона для отдыха
- Обеденная зона
- Примеры вариантов хранения для детской комнаты
- Примеры игрушек и материалов для творчества
- Связанные вопросы и ответы
- Как разделить пространство в небольшой комнате для двух детей
- Как выбрать мебель для детской в 2-комнатной хрущевке
- Как организовать хранение вещей в маленькой квартире с двумя детьми
- Какие варианты разделения комнаты на зоны для детей и взрослых
- Можно ли использовать вертикальное пространство для хранения в детской
- Как обустроить общую зону для всей семьи в 2-комнатной квартире
Как организовать пространство в 2-комнатной хрущевке для семьи с двумя детьми
Жизнь в 2-комнатной хрущевке для семьи с двумя детьми может быть комфортной, если правильно организовать пространство. Основная задача — создать уютную и функциональную обстановку, где каждый член семьи сможет чувствовать себя свободно и комфортно. В этой статье мы рассмотрим основные аспекты организации пространства в такой квартире.
Планировка и перепланировка
Первым шагом в организации пространства является планировка. Важно учитывать, как будет распределено пространство между взрослыми и детьми, а также как будут расположены зоны для отдыха, работы и игр.
Варианты перепланировки
Если позволяет площадь, можно рассмотреть вариант перепланировки. Например, объединение кухни и гостиной, чтобы создать просторное общее пространство для всей семьи. Также можно рассмотреть возможность создания отдельной детской комнаты или разделения одной комнаты на две зоны — для сна и игр.
Выбор мебели
Мебель играет ключевую роль в организации пространства. Она должна быть функциональной, компактной и соответствовать стилю интерьера.
Функциональная мебель
Выбирайте мебель с встроенным хранением, например, кровати с ящиками для белья, столы с отсеками для канцелярских принадлежностей, шкафы-купе с полками и ящиками. Это поможет сохранить порядок и сэкономить пространство.
Компактная мебель
Для небольших комнат идеально подходят компактные варианты мебели, такие как складные столы, стулья и кресла. Также можно использовать-transformers, которые могут менять свое назначение в зависимости от потребностей.
Зонирование комнат
Зонирование помогает разделить пространство на функциональные зоны, что особенно важно в небольшой квартире.
Зонирование с помощью штор
Шторы из легких тьмы или ткани могут быть использованы для разделения комнаты на зоны. Например, можно разделить спальное место от рабочего угла или зоны для игр детей.
Использование перегородок
Перегородки из дерева, стекла или гипсокартона могут быть использованы для создания отдельных зон в комнате. Это позволяет сохранить свет и воздух, но при этом разделить пространство на функциональные участки.
Хранение вещей
Хранение вещей — важный аспект организации пространства. Важно использовать все возможные места для хранения, чтобы сохранить порядок и свободное пространство.
Полки и стеллажи
Полки и стеллажи — это отличный способ хранить книги, игрушки и другие вещи. Они могут быть установлены в углах, вдоль стен или даже на балконе.
Контейнеры и корзины
Контейнеры и корзины помогают хранить вещи в порядке и сделать интерьер более аккуратным. Их можно использовать для хранения игрушек, одежды и других мелочей.
Встроенные шкафы
Встроенные шкафы — это идеальный вариант для хранения одежды, обуви и других вещей. Они экономят пространство и делают интерьер более современным.
Учет интересов детей
При организации пространства важно учитывать интересы и потребности детей. Дети нуждаются в пространстве для игр, учебы и творчества.
Игровая зона
Оборудуйте для детей отдельную игровую зону с мягкими коврами, игрушками и строительными конструкторами. Это поможет сохранить порядок в остальных комнатах и создать уютную обстановку для детей.
Рабочее место
Оборудуйте для детей рабочее место для учебы и творчества. Стол, стул и хорошее освещение — это основные элементы, которые необходимы для эффективной работы.
Хранение игрушек
Для хранения игрушек можно использовать контейнеры, корзины или полки. Это поможет сохранить порядок и сделать интерьер более аккуратным.
Совместное использование пространства
В небольшой квартире важно использовать пространство с максимальной эффективностью. Совместное использование пространства помогает сохранить комфорт и порядок.
Общая зона для отдыха
Оборудуйте общую зону для отдыха, где вся семья сможет собраться вместе. Это может быть уголок с диваном, телевизором и кофейным столом.
Обеденная зона
Обеденная зона должна быть компактной, но удобной. Стол и стулья — это основные элементы, которые необходимы для приема пищи.
Практические советы
Вот некоторые практические советы, которые помогут вам организовать пространство в 2-комнатной хрущевке для семьи с двумя детьми:
- Используйте вертикальное пространство для хранения вещей.
- Выбирайте мебель с встроенным хранением.
- Зонирование комнат помогает разделить пространство на функциональные зоны.
- Регулярно проводите уборку и поддерживайте порядок.
- Учитывайте интересы и потребности всех членов семьи.
Примеры вариантов хранения для детской комнаты
| Вариант хранения | Описание |
|---|---|
| Полки | Открытые полки для книг, игрушек и других вещей. |
| Контейнеры | Контейнеры для хранения игрушек, одежды и других мелочей. |
| Встроенные шкафы | Шкафы с полками и ящиками для хранения одежды и обуви. |
Примеры игрушек и материалов для творчества
- Строительные конструкторы
- Куклы и аксессуары
- Художественные принадлежности
- Настольные игры
- Книги
Следуя этим советам и рекомендациям, вы сможете создать уютное и функциональное пространство для своей семьи с двумя детьми в 2-комнатной хрущевке.
Связанные вопросы и ответы:
Вопрос 1: Какие общие принципы планировки 2-комнатной хрущевки с двумя детьми помогут создать уютное и функциональное пространство
При планировке 2-комнатной хрущевки с двумя детьми важно учитывать несколько ключевых принципов. Во-первых, необходимо максимально эффективно использовать доступное пространство, избегая загромождения комнат. Во-вторых, стоит зонировать помещение так, чтобы каждая зона выполняла определённую функцию, например, спальная зона, рабочее место или игровая зона для детей. В-третьих, важно учитывать возраст и интересы детей, чтобы обустроить пространство в соответствии с их потребностями. Также стоит использовать многофункциональную мебель, такую как кровати с встроенными ящиками или столы с хранением, чтобы сэкономить место. Наконец, не забывайте про освещение – правильно расположенные светильники могут визуально увеличить пространство и создать комфортную атмосферу.
Вопрос 2: Как лучше разделить комнату на зоны, если в ней проживают два ребенка разного возраста
Разделение комнаты на зоны для двух детей разного возраста требует тщательного подхода. Можно использовать перегородки или шторы, чтобы разделить пространство на индивидуальные зоны для каждого ребёнка. Также важно учитывать, что зоны должны быть функциональными: например, одна зона может быть предназначена для сна, другая – для игр или. Если комната небольшая, можно использовать вертикальное пространство, например, поставить двухъярусную кровать, что освободит место для игровой зоны внизу. Кроме того, стоит предусмотреть место для хранения вещей каждого ребёнка, чтобы поддерживать порядок в комнате. Учтите также личные предпочтения детей при выборе цветовой гаммы и стиля обстановки.
Вопрос 3: Как организовать хранение вещей в небольшой квартире с двумя детьми
Организация хранения вещей в небольшой квартире с двумя детьми требует внимания к деталям. Во-первых, используйте все возможные места для хранения, такие как под кроватью, где можно разместить ящики или контейнеры. Во-вторых, выбирайте мебель с встроенным хранением, например, диваны или столы с ящиками. В-третьих, не забывайте про полки и крючки на стенах – они помогут разместить игрушки, книги и одежду. Также важно регулярно проводить сортировку вещей, чтобы избавляться от ненужных предметов. Наконец, учите детей самостоятельно поддерживать порядок, объясняя им, как правильно убирать и хранить свои вещи.
Вопрос 4: Как зонировать гостиную, если она одновременно служит спальней для родителей
Зонирование гостиной, которая одновременно служит спальней для родителей, требует тщательного подхода. Можно использовать перегородки или шторы, чтобы отделить спальную зону от остального пространства. Также важно выбрать удобную и компактную мебель, такую как раскладной диван, который днём служит местом для отдыха, а ночью превращается в кровать. Не забывайте про освещение – можно использовать напольные лампы или гирлянды, чтобы создать уютную атмосферу в спальной зоне. Кроме того, стоит предусмотреть место для хранения постельного белья и личных вещей, например, в встроенных ящиках или шкафах. Учтите также эстетическую составляющую, чтобы спальная зона выглядела отдельно от гостиной.
Вопрос 5: Как обустроить детскую комнату для двух детей разного возраста
Обустройство детской комнаты для двух детей разного возраста требует учета их индивидуальных потребностей. Во-первых, важно обеспечить каждому ребёнку личное пространство, например, разместив две отдельные кровати или используя двухъярусную кровать. Во-вторых, зонирование комнаты на спальную зону и игровую зону поможет создать комфортные условия для обоих детей. В-третьих, не забывайте про место для хранения игрушек и вещей – можно использовать полки, ящики или контейнеры. Также важно учитывать возраст детей при выборе мебели и декора, чтобы обстановка была безопасной и соответствовала их интересам. Наконец, привлекайте самих детей к процессу обустройства комнаты, чтобы они чувствовали себя комфортно и уверенно в своём пространстве.
Вопрос 6: Как использовать коридор в хрущевке с максимальной пользой
Коридор в хрущевке можно использовать с максимальной пользой, если правильно организовать пространство. Во-первых, можно установить встроенные шкафы или полки для хранения одежды, обуви и аксессуаров. Во-вторых, используйте крючки для вешалок, чтобы разместить куртки, пальто и сумки. В-третьих, можно разместить зеркало или небольшой столик для удобства. Также важно не загромождать коридор, чтобы он оставался проходимым и удобным для движения. Наконец, не забывайте про освещение – установите дополнительные светильники, чтобы коридор был хорошо освещён.
Вопрос 7: Как использовать вертикальное пространство в небольшой квартире
Использование вертикального пространства в небольшой квартире может значительно увеличить полезную площадь. Во-первых, можно установить высокие шкафы или полки, которые доходят до потолка, чтобы разместить редко используемые вещи. Во-вторых, используйте крючки или вешалки на стене для хранения одежды и аксессуаров. В-третьих, можно разместить стеллажи или этажерки для книг, игрушек или декоративных предметов. Также важно не перегружать стены, чтобы пространство не выглядело загромождённым. Наконец, используйте вертикальные растения или декор, чтобы добавить зелени и сделать интерьер более живым.
Как разделить пространство в небольшой комнате для двух детей
Планируя интерьер комнаты для двух детей, независимо от их возраста и пола, важно учитывать задачи, которые будет выполнять детская. Независимо от размеров комнаты необходимо выделить несколько зон:
- зону сна и отдыха;
- рабочую, то есть учебную зону;
- место для игр или занятий спортом;
- место для хранения вещей.
При этом следует предусмотреть место для свободного прохода, поскольку в детской от этого может напрямую зависеть безопасность.
Разделение пространства на зоны не только делает комнату более удобной, но и помогает детям постепенно учиться поддерживать порядок, создает мелкие ритуалы, помогающие сосредоточиться, настроиться на сон или работу, учит договариваться и уважать чужое пространство.
Как лучше разделить комнату для 2 детей, зависит в том числе и от их возраста.
Если разница в возрасте между детьми невелика, а размеры комнаты позволяют, можно использовать зеркальную планировку, выбрав два одинаковых набора мебели. Такой вариант подойдет как для однополых, так и разнополых детей. В этом случае подчеркнуть индивидуальность каждого можно с помощью цвета стен, различной отделки, а также выбрав покрывала, наволочки и коврики разных цветов, рисунков и стилей. На многочисленных фото комнаты для двоих детей можно видеть разные способы реализации такого решения, как для малышей, так и для подростков.
В небольших комнатах, которые невозможно разделить пополам, хотя бы условно, некоторые зоны могут быть общими, однако и в этом случае необходимо учитывать потребности и интересы каждого. Чем больше разница в возрасте между детьми, тем сильнее будут разграничены зоны, ведь подростку и дошколенку нужны совершенно разные вещи. Не стоит забывать и о том, что хотя многие зоны могут быть общими, каждому из детей обязательно нужно выделить и свое, личное пространство, особенно если речь идет о комнате для двух разнополых детей.
Зона сна
Каких бы размеров ни была детская, место для сна в ней присутствует обязательно. Эту зону необходимо продумать наиболее тщательно, ведь она должна быть максимально удобной и при этом функциональной. Излишне говорить, что каждый ребенок должен иметь свое собственное спальное место, однако организовать их можно по-разному.
Вариантов размещения кроватей множество и они напрямую зависят от размеров и планировки комнаты.
Отдельно стоящие кровати часто выбирают при разработке дизайна комнаты для двух разнополых детей или когда братья или сестры имеют большую разницу в возрасте. В этом случае кровати могут иметь разные размеры и располагаться вдоль стены одна за другой или параллельно друг другу. В этом случае для разделения часто используют другую мебель ― стеллаж, комод, шкаф или тумбочку.
Важно помнить, что для прохода между кроватями нужно выделить не меньше 60 см. В некоторых случаях кровати ставят перпендикулярно друг другу в одном из углов комнаты, высвобождая тем самым место для игр.
Двухъярусная кровать ― популярный вариант в детской с двумя детьми. Она позволяет сэкономить место для игр или занятий и при этом создать два уютных спальных уголка. Современные двухэтажные кровати часто дополняются полками и ящиками, занавесками или пологами, позволяющими отгородиться на время сна или игры, и могут иметь самый разный вид, от двухэтажного автобуса до пиратского корабля или средневекового замка.
Двухъярусная кровать для 2 детей в маленькой комнате ― самая распространенная, однако далеко не единственная возможность сэкономить место. Для той же цели используются кровати-чердаки или трансформеры, а также раскладные диваны и кресла. Хорошим решением может стать и кровать с выдвижным спальным местом.
Спальное место ― это личная зона ребенка, поэтому очень важно придать каждому месту индивидуальность.
Для зонирования комнаты 2 детей может служить отделка стен обоями разного цвета или даже стиля, разноцветные покрывала, декоративные подушки и коврики перед кроватью, картинки, фотографии или плакаты, выдержанные в разных цветовых гаммах, географические карты, декоративные буквы или наклейки, разный декор и т.д. Продумывая вид и размещение кроватей, не стоит забывать и об источниках света ― желательно предусмотреть индивидуальное освещение над каждой из кроватей, чтобы дети не мешали друг другу засыпать. Встроенная в набор мебели кровать для двоих детей в маленькой комнате, дополненная ящиками, полками и рабочим местом может стать основным предметом обстановки и основой всего интерьера.
Как выбрать мебель для детской в 2-комнатной хрущевке
Оптимальная расстановка мебели в детской помогает использовать вертикальное пространство максимально эффективно. Важно обеспечить комфорт и функциональность, а также учесть возраст и потребности ребенка.
При осуществлении оптимизации расстановки мебели в детской следует учитывать следующие факторы:
1. Разделяйте зоны: Разделите детскую на функциональные зоны, такие как игровая, обучающая и зона для сна. Это поможет устранить хаос и создать определенные рабочие пространства.
2. Используйте вертикальное пространство: Воспользуйтесь вертикальными поверхностями для хранения игрушек, книг и других предметов, чтобы освободить пространство на полу. Установите полки, встроенные шкафы или подвесные органайзеры для максимального использования вертикального пространства.
3. Многие в одном: Используйте мебель, которая выполняет несколько функций одновременно. Например, выберите кровать с встроенными ящиками для хранения или стол, который может служить и для игр, и для уроков.
4. Оптимизируйте место для игр: Расставьте игрушки таким образом, чтобы ребенку было легко найти их и убрать после игры. Используйте ящики или корзины для хранения игрушек, которые можно легко достать.
5. Учитывайте рост ребенка: Регулируемая мебель, такая как стол и стул, позволит настроить высоту и удобство использования в соответствии с ростом ребенка. Это особенно важно для столов, используемых при уроках или играх на компьютере.
Следуя этим рекомендациям, вы сможете максимально оптимизировать расстановку мебели в детской, создав комфортные и функциональные условия для ребенка.
Как организовать хранение вещей в маленькой квартире с двумя детьми
Рассмотрим способы, позволяющие обустроить в таком пространстве главные функциональные зоны.
Совмещение кухни с гостиной
Подобный прием особенно хорош в том случае, когда размеры комнат не совпадают и меньшая из них примыкает к кухне. Демонтаж перегородки между помещением для готовки и смежным пространством позволит обрести значительно большую свободу действий. Однако обозначить зоны кухни и гостиной все-таки придется. Для этого можно:
- Разделить функциональные части помещения предметом в виде барной стойки, высокой спинки дивана или легкой раздвижной перегородки.
- Подобрать для каждой зоны свое напольное покрытие. Кухню, например, хорошо оформить крупной плиткой, а гостиную – ламинатом.
- Отделать стены отличными друг от друга способами. Здесь неплохо поэкспериментировать с цветами и фактурами.

Разделение кухни и гостиной.

Грамотное применение напольного покрытия.

Акцентная стена в гостиной зоне.
В оставшейся части квартиры можно обустроить спальню-детскую.
Муж и жена, а рядышком дитя
Речь идет о спальне, в которой будут комфортно чувствовать себя все члены семьи. Вернее, о спальне-детской, ведь помимо размещения кроватей в этой же комнате можно попытаться обустроить для сына или дочери собственный уголок.
Если ребенок совсем кроха, удобно просто поставить его кроватку рядом с ложем родителей. Малыш всегда будет под боком, и успокоить его ночью не составит труда.

Спальня для родителей и малыша.
В дальнейшем, когда ребенок подрастет, лучше разграничить пространство, используя ширму, штору, широкий стеллаж или вертикальные жалюзи, и здесь находящие свое применение.

Сложенная штора между взрослой и детской зоной.
Вторая комната квартиры может стать гостиной, как отдельной, так и совмещенной с кухней или кабинетом.

Гостиная-кабинет.
Рациональная идея – спальня-гостиная
Можно вполне понять родителей, желающих отдать любимому чаду целую комнату. Это решение является еще больше оправданным, если муж и жена планируют в будущем иметь больше детей. Итак, когда нет сомнений в назначении одной из комнат, остается подумать о том, как наиболее выгодно использовать квадратные метры второго помещения. Неплохим решением является организация в нем спальни-гостиной.
Идею обустройства такой комнаты можно реализовать по-разному. Один из вариантов предполагает наполнение интерьера многофункциональными предметами. Здесь, например, неплохо поставить раскладные кресла или удобный диван, оснащенный откидной спинкой. С такой меблировкой одно и то же помещение днем будет выступать в роли просторного зала, а ночью – превращаться в уютную спальню.

Многофункциональная мебель в спальне-гостиной.
Можно обойтись и без предметов, способных трансформироваться. Тогда снова стоит прибегнуть к зонированию. Одно из удачных решений – отделение спального места от остального пространства с помощью балдахина.

Обособление спального места с помощью балдахина.
Сквозная перегородка, пропускающая свет, тоже неплохой вариант.

Сквозная перегородка в комнате.
Две комнаты: спальня и детская
При такой организации пространства основные помещения станут полноценными комнатами. Одна из них, являясь спальней, будет всецело принадлежать взрослым, другая станет уютным гнездышком для ребенка.

Приятно находиться в этой светлой бежевой спальне.

Отдельная детская комната.
Но куда в таком случае привести гостей? – Прямо на кухню. Конечно, при условии, что площадь этого помещения позволит разместить в нем хотя бы скромный диван.

Диван отлично вписался в кухню.
Какие варианты разделения комнаты на зоны для детей и взрослых
Своя комната — это личное пространство, где ребенок может принимать решения и быть хозяином своего «мира», у него развивается чувство ответственности за свои вещи, привычка к порядку и самоорганизации.
Личное пространство позволяет ребенку уединиться, когда он хочет побыть один, расслабиться, заняться любимым делом или просто отдохнуть от шума и суеты, что особенно важно в период полового созревания, когда дети становятся более чувствительными к вопросам конфиденциальности.
Более того, своя комната — это место, где ребенок может выразить свою индивидуальность, оформив пространство по своему вкусу, разместив свои любимые вещи, фотографии и рисунки. Оформление своей комнаты помогает ребенку лучше узнать себя, свои интересы и ценности.
В тихой и спокойной обстановке собственной комнаты дети легче сосредотачиваются на учебе, читают, делают уроки или занимаются творчеством. Здесь им проще укрыться от стрессовых факторов, таких как конфликты с родителями или братьями/сестрами.
Если вы предоставили ребенку отдельную комнату, то для начала дайте ему время привыкнуть к новой обстановке, обустройте пространство вместе, чтобы он мог максимально выразить свою индивидуальность. Создайте в комнате комфортную и уютную атмосферу, где ребенок будет чувствовать себя в безопасности, ощутит уважение и любовь родителей.
Важно! Не стоит насильно переселять ребенка в отдельную комнату, если он этого не хочет.
Можно ли использовать вертикальное пространство для хранения в детской
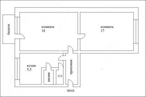
Нельзя начать ремонт двухкомнатной квартиры хрущевки без понимания ее особенностей.
Кухня с небольшим метражом (5–6 метров).
Низкие потолки.
Одна из комнат – проходная.
Санузел и ванна совмещенные, при этом у комнаты небольшой метраж, который не позволяет смонтировать стандартную ванную.
Если отдельная кладовка.
Если квартира расположена не на первом этаже – есть балкон или лоджия.
Еще две грустные особенности «хрущевок» – очень малый метраж прихожей и плохая шумоизоляция. Впрочем, практически все недостатки квартиры можно нивелировать современным ремонтом.

Скажем еще пару слов об особенностях планировок в домах разных серий, а потом дадим рекомендации по улучшению ситуации.
Метражи и особенности планировки двухкомнатных хрущевок
Встречаются разные варианты планировок:
«Книжки». Квартиры этой планировки имеют площадь в 42–43 м2. Их главная особенность – кухня, спальня и гостиная идут друг за другом. Проходная комната должна выполнять роль столовой. Если семья больше двух человек, придется в ней же спать, что очень неудобно. Жирный минус такой планировки – проходная комната останется проходной, как бы и что вы ни запланировали. Самый распространенный вариант изменения в такой комнате – снос перегородок между кухней и столовой (комната превращается в уверенную студию).

«Трамваи» (они же «Павровозики») – квартиры с метражом в 47 метров. В такой планировке две спальные комнаты располагаются смежно. При этом одна из них угловая, а вторая – проходная. Чаще всего при такой планировке «отрезается» часть проходной комнаты, достраивается стена и создается своеобразный коридор (в котором дополнительно размещают системы хранения вещей).

«Бабочки» (они же «Распашонки») – квартиры с метражом в 46 м2. Сразу за прихожей размещается кухня и санузел, комнаты располагаются по бокам. Достаточно удобный вариант, главный минус – санузел находится практически на кухне.

Неважно, какая именно планировка у вашей квартиры – с помощью продуманного ремонта ее можно превратить в дом вашей мечты.
Комплексный ремонт квартир под ключ
Всё включено
В стоимость ремонта входит всё: работы, материалы, документы.
Без вашего участия
После согласования проекта мы беспокоим хозяев только при сдаче ремонта.
Цена известна заранее
Стоимость ремонта фиксируется в договоре.
Фиксированный срок ремонта
Ремонт квартиры под ключ за 3,5 месяца. Срок закреплен в договоре.
Как обустроить общую зону для всей семьи в 2-комнатной квартире
Из-за не слишком удобных для жизни исходных данных чаще всего без перепланировки, хотя бы минимальной, не обойтись. Рассмотрим самые популярные схемы двухкомнатных хрущевок до и после ремонта.
Пример №1
Этот проект двухкомнатной хрущевки — пример улучшенной «книжки», еще ее называют «распашонка». При таком планировочном решении кухня и жилые комнаты расположены друг за другом. При этом в одних сериях гостиная является проходной, в других, как здесь, — нет.
В данном случае стояла задача организовать удобное пространство для молодой пары с учетом пополнения в будущем. Исходные данные: два жилых помещения площадью 14 и 18 кв. м, а также нетипичная для хрущевок достаточно большая кухня — целых 12 квадратов. Благодаря этому внесли минимум изменений: только выделили в спальне зону под гардеробную, а в коридоре — место под.
Пример №2
А это уже совсем другой тип планировки:(одно обязательно проходное) и идут друг за другом наподобие вагонов. Именно поэтому такие двушки называют «трамваем». Эта квартира предназначена для семьи с двумя детьми, поэтому четырнадцатиметровую комнату отвели под детскую. Другую, побольше, объединили с кухней (прим. ред.: такая перепланировка законна только для квартиры без газа) , выделив в центре несколько квадратных метров под гардеробную. Санузел изначально был совмещенным, его и прихожую не трогали. За счет присоединения гостиной к кухне, которая изначально была площадью 5,9 кв. м, там удалось разместить и полноценный гарнитур с холодильником, и.
Пример №3
Эта двушка — тот самый пример «книжки» с проходным помещением. Самым оптимальным в данном случае является объединение кухни и гостиной, но в старом фонде это всегда сопряжено со сложностями. Прежде всего, потому что обычно дом газифицирован и делать открытую зону готовки нельзя по правилам безопасности.
- (в том числе прозрачные стеклянные), чтобы при необходимости обеспечить изоляцию кухни, но при этом визуально пространство выглядело открытым и просторным. Этот вариант представлен на втором фото в галерее.
- Отказаться от газа в квартире и заменить плиту на электрическую. Это возможно, но процесс достаточно трудоемкий, он требует вызова специалистов и согласования. Если же вам удастся провести процедуру, то можно смело делать дизайн-проект двухкомнатной хрущевки в стиле. Такой вариант — на последнем фото.
В этом проекте жилье оформлялась для семьи с ребенком, поэтому одну комнату традиционно отвели под детскую, ав просторной гостиной.