10 популярных планировок брежневки и варианты улучшения. Типовая планировка квартир «Брежневки»
10 популярных планировок брежневки и варианты улучшения. Типовая планировка квартир «Брежневки»
Типовые дома «брежневки» строились во время Брежнева – с 1964 года по начало 80-ых годов.
В отличие от «хрущевок», такие дома имели большее количество этажей и увеличенную площадь квартир. В самых первых квартирах часто присутствовал «хрущевский холодильник», представлявший собой шкаф-чулан под кухонным окном. Такое решение было позаимствовано у «хрущевок». Санузел создавался раздельным. В дальнейшем планировка немного изменялась, некоторые из решений применяются и в наше время.
Для «брежневок» характерна улучшенная планировка. Но это верно лишь по отношению к «хрущевкам», что касается «сталинок», то они более комфортны для проживания. В домах-«брежневках» потолки не слишком высокие, кухни небольшие (около 7-9 м2). Количество комнат варьируется от 1 до 5.
Одной из разновидностей «брежневок» являются квартиры гостиничного типа. Они маленькие, их общая площадь составляет 12-18 квадратных метро. Предназначались такие квартиры для временного пребывания, но потом большинство из них было закреплено на постоянной основе.
В «брежневских» домах есть лифт, мусоропровод, а высота потолков составляет 2,65 метров.
В большинстве строений плохая теплоизоляция, поэтому в последнее время в них проводится капитальный ремонт с целью улучшения энергоэффективности.
Планировки квартир типовых серий — Брежневки:
Рис. 7 — Планировки однокомнатных квартир в Брежневке 
Рис. 8 — Планировки двухкомнатных квартир в Брежневке
Рис. 9 — Планировки трехкомнатных квартир в Брежневке
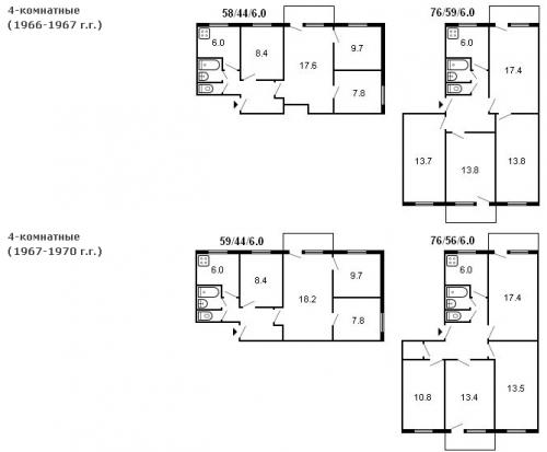
Рис. 10 — Планировки четырехкомнатных квартир в Брежневке
Как встать в очередь на жилье малоимущему и военнослужащему? Как доказать государству, что вы нуждаетесь в бесплатном жилье и какие документы нужно предоставить? Подробнее в статье.
Рефинансирование кредита — что это такое, как и где его получить? Читайте здесь .
Брежневка 9 этажей планировка. Планировка квартиры «брежневка»
Планировка брежневка — особенности «брежневской» планировки необходимо учитывать, если вы выбираете квартиру в таком доме.
В газетных объявлениях и на досках рекламных объявлений об аренде и продаже жилья можно встретить такую характеристику, как «брежневка». Так же это определение имеет краткое наименование «бр».
Высказать мнение
Юлия Крушинская
Здравствуйте, живем в 4-х комнатной брежневке(пан.) в Ивановской обл. уже почти как 34 года с самой постройки дома. -квартира очень нравится, уютная, просторная! У каждого своя комната!!! Зал — для общего просмотра тв, игр, общения, принятия гостей и праздников!!! А, если есть ещё и балкон, вообще супер!!! Из одной комнаты по возможности можно сделать столовую, та что ближе к кухне, тоже вариант комфорта и уюта.
Анна Гончарова
С удовольствием читаю про планировки, так как жила и в хрущевке, и в брежневке, на данный момент проживаю в сталинке. Я фанат старых построек, кто бы что про них не говорил))) Сейчас так же существуют новые дома экономкласса (а большинство только их и может себе позволить). Малогабаритные, с неудобной планировкой. Только вот хрущевки и брежневки простоят еще сто лет, а современные постройки — не факт.
Наталья Ковалёва
Такие квартиры самый оптимальный вариант при покупке по принципу-цена-качество…средне-статистический вариант для людей со средним достатком…надёжные квартиры…я б купила такую а ни хрущевку, и не сталинку если б деньги были!
Татьяна
Я живу в кирпичной брежневке улучшенной планировки. На самом деле довольна, особенно по сравнению с родней, у которых квартира в «панельке». Там действительно зимой прохладно, стыки протекали одно время.
Антон Величко
От соседей многое зависит, но как показывает практика даже дороговизна жилья не страхует от соседей, которые будут мусорить и здесь даже планировка дома не придает сил)
Андрей
Знакомые два года назад купили «брежневку», старенькую 12-метровку, но, правда, в хорошем районе Москвы — на ВДНХ. Отдали 6 миллионов рублей!!! Кухня там, кажется, всего 5,5 метров. Правда, стоит отметить хороший ремонт фасада здания и подъезда внутри. И живут в этом доме очень приличные люди. Ни мусора, ни посторонних запахов не замечал, когда бывал там.
Антон Величко
Вы правы, и наличие/отсутствие мусоропровода не решает, когда люди-свиньи. Скоро опубликую статью с описанием одного из домов такого толка.
Ольга Венедиктова
Ольга
Прочитала статью и вспомнила квартиру бывшей свекрови, она в такой жила.Тесно, подъезды грязные мусор нужно выносить на улицу, мусоропровод вообще отсутствует.. Но и там люди были счастливы! Всё зависит только от человека. А нагадить можно в любом доме, с любой планировкой!
Оксана Кузнецова
В нашей новосторойке ещё хлеще: мусоропровода просто нет! Я Тоже поначалу радовалась, что не будет такого: заваленные мусоропроводы, окурки и пожары, плюс этот грохот неприятный, когда мусор спускают, а теперь, когда утром едешь в лифте с соседом и вместе с вами ещё два пакета мусора, то… А ещё пакеты выставляют на площадки, чтобы утром выбросить, Так, что не знаю, что и лучше…
Антон Величко
Спасибо, Александр!
Теперь мы знаем, что поклонников «брежневок» намного больше, чем может показаться на первый взгляд!
Alexandr
Брежневки не совсем ретро. Они в каждом городе и не только в странах бывшего СССР или соцлагеря. Видел фото из Австрии, Сирии, даже Колумбии — там тоже есть дома, внешне очень похожие на брежневки.
Антон Величко
Да, но эконом-класс еще страдает несуразностями в планировке. Один мой знакомый жаловался на типовую планировку в новостроке.. не всем вкусам она подходит)
Irina
Все эти недостатки, и правда, встречаются в домах, где использована планировка»брежневка». И от некоторых порой удаётся избавиться ограничением входа в дом.
Но что я бы хотела отметить: всё же хорошо прослеживается прогресс в улучшении планировки от «хрущовки» к «брежневке» и далее.
Alexandr
Мусоропроводы в брежневках почти везде заварены, потому что в них бросали окурки, спички и случались пожары. Раньше неприятно было ходить по лестницам брежневки, лампочки часто выкручивались, пахнет, иногда на ступеньках в темноте сидели непонятные личности. Сейчас с установкой домофона в подъезд и резкого ограничения входа в дом такого уже почти нет.
Брежневка 5 этажей планировка. Брежневские дома («Брежневки»)
На смену пятиэтажкам – хрущевкам пришли «Брежневки». Изначально восьми-девятиэтажные дома серий к середине 70-х подросли до 12 и 16 этажей. В брежневских домах появились лифты и мусоропроводы. Была значительно улучшена тепло- и шумоизоляция. Планировка в брежневках стала значительно более удобной. Брежневки, строительство которых началось в 1970ых во многом являются прототипами современных. Если вас интересуют помещения в Москве под проведение деятельности вашего рабочего коллектива, компании, юридической организации и прочих форм работы, то мы рекомендуем обратить внимание на выгодную аренду офиса у метро.
| Серия | Материал стен | Этажность | Годы строит-ва |
| II-29 | кирпич | 8-10 | 1965-1970е гг. |
| II-66 | кирпич | 9-12 | 1973-1983 гг. |
| Вулыха башня | кирпич | 12,14,15,18 | |
| Тишинская башня | кирпич | 12 | 1977-1984 гг. |
| Смирновская башня | кирпич | 12-13 | 1969-1981 гг. |
| Москворец. башня | кирпич | 12,14 | 1980-1991 гг. |
| 1-515/9м | панели | 9 | 1966-1980 гг. |
| 1-515/9ш | панели | 5,9 | 1966-1984 гг. |
| И-700 | панели | 22 | 1977-1994 гг. |
| 1605/9 | панели | 9 | 1965-1972 гг. |
| 1605/12 | панели | 12 | 1969-1985 гг. |
| II-49 | панели | 9 | 1965-1985 гг. |
| II-57 | панели | 9-12 | 1963-1970 гг. |
| П-3 | панели | 4-17 | 1970-1998 гг. |
| П-44 | панели | 5-17 | |
| П-30 | панели | 5-14 | |
| П-4 | панели | 22 | 1972-1987 гг. |
| П-42 | панели | 16 | 1972-1979 гг. |
| П-43 | панели | 16 | 1972-1985 гг. |
| П-46 | панели | 12-14 | 1971-1998 гг. |
| П-55 | панели | 9-14 | |
| И-521а | панели | 25 | 1974-1994 гг. |
| И-760а | панели | 9 | 1960-1983 гг. |
| ПП-70 и ПП-83 | панели | 10,14 | 1980е-1990е гг. |
| «Лебедь» | панели | 16,20 | |
| II-68 | блоки | 16 | 1969-1989 гг. |
| II-68-02 | блоки | 12 | 1968-1984 гг. |
| II-68-03 | блоки | 12 | 1968-1981 гг. |
| II-68-04 | блоки | 12 | 1970-1975 гг. |
| И-209а | блоки | 14 | 1970-1980 гг. |
| И-491а | блоки | 7,9,11,16 | 1974-1983 гг. |
| И-522а | блоки | 9,14,16 | 1977-1993 гг. |
| II-18/9 | блоки | 8,9 | 1958-1968 гг. |
| II-18/12 | блоки | 12 | 1966-1973 гг. |
| 1-мг-600 | панели | 9 | 1965-1975 гг. |
| 1-мг-601 | панели | 16-19 | 1965-1975 гг. |
| И-III-3 | панели | 9-16 | 1979-1993 гг. |