Проект двухэтажного дома в сказочном стиле для узкого участка. Проект дома AM-21152-2-3
Проект двухэтажного дома в сказочном стиле для узкого участка. Проект дома AM-21152-2-3
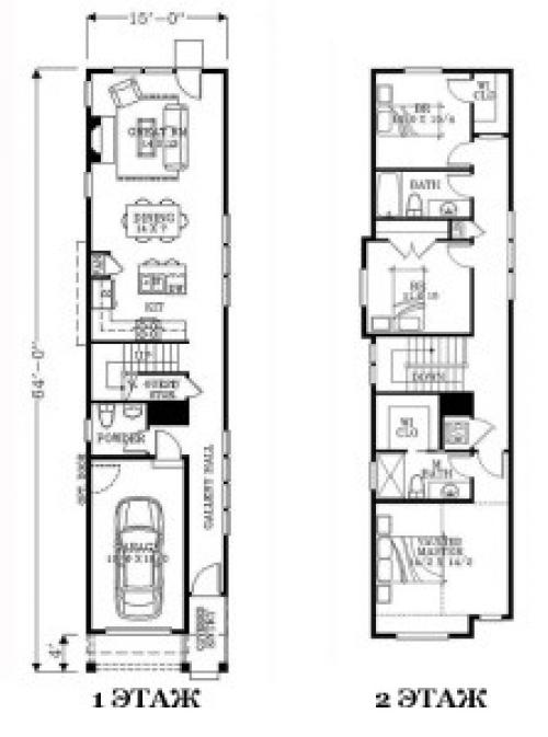
У вас узкий участок или старый дом, в котором вы пока живете и хотите рядом построить новый дом? Этот проект дома создан специально для вас. Красивый деревянный фасад, облицованный сайдингом или планкеном украшен окнами со ставнями. Второй этаж нависает над крыльцом закрывая его от дождя. Вы также можете войти в дом через гараж, который не будет лишним — в нем размещается котельная. Сделайте в нем стеллажи и получите дополнительное место для хранения сезонных вещей и садового инвентаря.
Сразу у входа в дом с крыльца прямая лестница ведет на второй этаж. Под лестницей сделана кладовка, где удобно хранить щетки, швабры, ведра и пылесос. У выхода из гаража сделана гардеробная для верхней одежды и туалет с умывальником. Зачем бегать на второй этаж?
Сразу входа в большую комнату расположена открытая кухня. Когда будете переносить покупки из машины, вы поймете, что кухня должна быть рядом с гаражом. Рядом с кухней место для столовой с окном на боковой проход. Гостиная удобно расположена в глубине дома. Окна в пол и раздвижная дверь дадут возможность любоваться любимым садом или посидеть на террасе, которую можно пристроить сзади.
Давайте посмотрим на планировку второго этажа. Не смотря на узкий план, спальни расположены удобно, предоставляя каждому члену семьи достаточно приватности.
В хозяйской спальне есть и ванная с душевой кабиной и туалетом, и гардеробная. Рядом находится прачечная и встроенный бельевой шкаф. Это очень удобно, когда рядом с ванной и прачечной есть шкаф, доступный для любого члена семьи.
Две другие спальни расположены в глубине дома. Рядом с ними есть ванная комната, которая в отличие от хозяйской ванной оборудована лежачей ванной, ведь если эти комнаты предназначены для детей, то они очень любят принимать ванную. В спальне 2 есть гардеробная, а в спальне 3 — встроенный шкаф и встроенный стол для занятия. Окно этой спальни выходит на задний двор.
Этот проект предназначен для строительства каркасного дома на узком участке. Если вы купите проект дома, то получите не только удобный и теплый дом, но и строительство дома будет недорогим.
Проекты Узких домов шириной 6 метров. Проекты домов с шириной 6 метров
В этом разделе вы найдете типовые и готовые проекты домов 6 на 6 разных видов: одноэтажных, двухэтажных, деревянных, каркасных, кирпичных, из пеноблоков или газобетона, с подвалом, гаражом, мансардой и т.п. Это хороший вариант как для загородного строительства, так и для постоянного проживания для маленькой семьи, не желающей или не имеющей возможности возвести дом больших размеров из-за особенностей самого участка или ввиду ограниченности бюджета.
Проекты Узких домов шириной 4 метра. 7 проектов Узких Домов для Длинных Участков

Проект узкого дома
Хорошо, если ваш приусадебный участок имеет большую площадь и хорошие пропорции. Но что делать тем, кто владеет узким участком и хочет построить на нем коттедж? Прежде всего, не расстраиваться — ведь даже на таком участке можно построить полноценный и красивый дом. Искала каталог таких домиков, но ничего не нашла стоящего. Пришлось искать за границей. Кое что накопала…
Вообще, конечно, ниша таких узких домов совершенно не занята. Ау, архитекторы? Компании? Ну дайте же нам уже идеи да побольше? По итогу сейчас имеем только эти наработки, но, как говорится, хоть что-то…
Рада познакомить вас с самыми, на мой взгляд, необычными и интересными проектами узких домов. Первые проекты — это двухэтажные дома для узких участков, а затем идут — одноэтажные. Все картинки можно увеличить нажав на них.

План увеличивается!
Проект длинного узкого дома в двух уровнях с гаражом. Габариты дома 4.5 метра на 19 метров. При такой небольшой ширине дом хорошо впишется на сложном нешироком участке.
На первом этаже находится гараж, кухня-гостиная и гостевой санузел. На втором этаже три жилые комнаты и два совмещенных санузла. Дом идеален для семьи с двумя детьми или семьи из трех поколений.
Проект узкого дома №2

Достаточно большой узкий проект двухэтажного дома с габаритами 6 метров на 14 метров. Все эти проекты проверены временем, это уже построенные американские дома, заслужившие доверие хозяев. Они полностью функциональны, в них все предусмотрено для полноценной жизни.

План дома увеличивается!
Первый этаж — гостиная, кухня-столовая и санузел, второй этаж — спальня хозяев и две детские. При спальне большая ванная, а на этаже также имеется совмещенный санузел с душем.
Проект узкого дома №3

Перед нами довольно длинный узкий проект дома с площадью застройки 5 метров на 16.5 метров. Мне очень понравился данный проект! Особенно его высокий первый этаж и симпатичное крыльцо.

План можно увеличить!
На первом этаже расположена гостиная (отдельное помещение) и большая кухня-столовая. Также на первом этаже находится большая гардеробная. Санузел был устроен под лестницей. Второй этаж занят тремя спальнями и двумя санузлами (один с душем, другой с ванной).
Проект узкого дома №4

Проекты с allendaledesignbuild.com
Очень длинный проект узкого дома — при ширине всего 5 метров он имеет длину 21.6 метров. Интересная идея для узкого участка под застройку. В данном проекте сочетается и красота здания и удобство строительства. Проект очень функционален и заслуживает внимания.
Планировка увеличивается!
Этот проект похож на предыдущий, принципиальная разница в том, что одна из спален находится в первом этаже. На втором этаже только две спальни и один санузел (половина дома одноэтажная).
Проект узкого дома №5

Большой узкий проект дома со встроенным гаражом на два автомобиля, при этом въезд в гараж расположен позади дома, в торце. Данное решение может быть реализовано, если у вас имеется возможность сделать два входа — ворота позади, а крыльцо спереди здания.

Увеличивается!
Проект с thehouseplanshop.com
В первом уровне находится гараж, гостиная, кухня-столовая и две жилые комнаты. Большая часть дома одноэтажная, однако есть надстройка второго этажа, в которой размещено еще две спальни и большая ванная.
Проект узкого дома №6

Весьма интересный проект узкого дома из пеноблоков, с гаражом и входом сбоку. Проект оптимально сбалансирован, подходит для владельцев длинных участков. Вообще, мне очень импонирует идея гаража при въезде, совмещенного с основным жилищем.
План первого этажа
В ширину дом всего 6 метров. План в футах и дюймах, так как брала на зарубежных ресурсах. Но при желании все можно пересчитать под наши размеры.
Проект узкого дома
Хорошо, если ваш приусадебный участок имеет большую площадь и хорошие пропорции. Но что делать тем, кто владеет узким участком и хочет построить на нем коттедж? Прежде всего, не расстраиваться — ведь даже на таком участке можно построить полноценный и красивый дом.
Двухэтажный проект узкого дома
Габариты дома: 4.5 метра на 19 метров. При такой небольшой ширине дом хорошо впишется на сложном нешироком участке.
На первом этаже находится гараж, кухня-гостиная и гостевой санузел. На втором этаже три жилые комнаты и два совмещенных санузла. Дом идеален для семьи с двумя детьми или семьи из трех поколений.
Один из проектов узкого дома
Габариты дома: 6 метров на 14 метров. Все эти проекты проверены временем, это уже построенные американские дома, заслужившие доверие хозяев. Они полностью функциональны, в них все предусмотрено для полноценной жизни.
Дом идеален для семьи с двумя детьми или семьи из трех поколений.
Дополнительные проекты
Если вам понравился какой-то из проектов, нажмите на картинку, чтобы увеличить ее.
