Особенности планировок квартир в пятиэтажных хрущевках
- Особенности планировок квартир в пятиэтажных хрущевках
- Связанные вопросы и ответы
- Какие типичные планировочные решения характерны для хрущевок с 5 этажами
- Какие преимущества и недостатки планировок в пятиэтажных хрущевках
- Могу ли я внести изменения в планировку хрущевки и какие разрешения для этого необходимы
- Какие советы по ремонту и дизайну интерьера для квартир в хрущевках
- Какие особенности планировки хрущевок отличают их от современных квартир
- Возможно ли увеличить жилую площадь в хрущевке с 5 этажами
- Какие популярные стили интерьера подходят для квартир в хрущевках
- Какие современные технологии и материалы можно использовать для ремонта в хрущевке
Особенности планировок квартир в пятиэтажных хрущевках
Хрущевки — это тип панельных домов, которые были широко распространены в СССР в 1950-1960-х годах. Эти дома были призваны решить жилищный вопрос, обеспечив граждан доступным и комфортным жильем. Пятиэтажные хрущевки стали символом советской эпохи и до сих пор остаются популярными среди жителей городов. В этой статье мы рассмотрим особенности планировок квартир в таких домах.
Основные особенности планировок
Малометражность
Одной из главных особенностей хрущевских квартир является их небольшая площадь. Обычно это 1-3 комнатные квартиры с общей площадью от 30 до 60 квадратных метров. Такие размеры были обусловлены необходимостью максимально эффективного использования жилого пространства. Однако малометражность не означала отсутствие комфорта. Архитекторы старались максимально рационально использовать каждое квадратное метр.
Стандартность планировок
Все квартиры в хрущевках построены по типовым проектам. Это означает, что планировки практически идентичны друг другу. Такой подход позволял ускорить процесс строительства и снизить его стоимость. Тем не менее, стандартность не исключала разнообразия. Существовали различные варианты планировок, которые отличались количеством комнат, расположением санузлов и другими деталями.
Функциональность
Несмотря на небольшую площадь, квартиры в хрущевках были очень функциональными. В каждой квартире было все необходимое для жизни: кухня, ванная, туалет, жилые комнаты. Кухни обычно были компактными, но хорошо оборудованными для своего времени. Санузлы также были небольшими, но удобными.
Компактность и экономичность
Компактность планировок была обусловлена не только малометражностью, но и экономичностью. Хрущевки были призваны быть доступными для широкого круга граждан, поэтому их строительство и содержание были максимально экономными. Это касалось и планировок: каждая квартира была спроектирована так, чтобы минимизировать расходы на отопление, освещение и содержание.
Типы планировок
В хрущевках существовали несколько типов планировок, которые отличались количеством комнат и расположением помещений. Вот основные из них:
| Тип квартиры | Количество комнат | Общая площадь | Особенности |
|---|---|---|---|
| Однокомнатная | 1 | 30-45 м | Комната, кухня, ванная, туалет |
| Двухкомнатная | 2 | 45-60 м | Две комнаты, кухня, ванная, туалет |
| Трехкомнатная | 3 | 60-75 м | Три комнаты, кухня, ванная, туалет |
Преимущества и недостатки
Как и любой другой тип жилья, хрущевки имеют свои преимущества и недостатки. Вот основные из них:
Преимущества
- Небольшая площадь, что облегчает содержание
- Компактная планировка, позволяющая эффективно использовать пространство
- Низкая стоимость содержания
- Удобство для небольших семей или молодых пар
Недостатки
- Ограниченная площадь, что может быть недостатком для больших семей
- Стандартность планировок, что может ограничивать возможности для перестройки
- Не всегда современные удобства, особенно в старых домах
Современные преобразования
Современные хозяева хрущевских квартир часто стремятся обновить планировки, чтобы сделать их более удобными и современными. Это может включать объединение комнат, перестановку стен, установку современных сантехнических приборов и другое. Однако такие преобразования требуют тщательного планирования и учета особенностей хрущевских домов.
Несмотря на свои особенности, хрущевские квартиры остаются популярными благодаря своей функциональности, компактности и доступности. Они продолжают быть любимым жильем для многих городских жителей, которые ценят их уют и удобство.
Связанные вопросы и ответы:
Вопрос 1: Какие основные особенности планировок квартир в хрущевках с 5 этажами
Основные особенности планировок квартир в хрущевках с 5 этажами включают компактные размеры жилых помещений, стандартизацию пространств и функциональность. Квартиры обычно состоят из одной или двух комнат, кухни, санузла и коридора. Площадь однокомнатных квартир составляет около 30-35 квадратных метров, а двухкомнатных — 45-50 квадратных метров. Планировки рассчитаны на tiимальное использование пространства, что делает их удобными для небольшого числа жильцов. Однако современные требования к комфорту часто требуют перепланировки таких квартир.
Вопрос 2: Какие типы квартир чаще всего встречаются в хрущевках
В хрущевках чаще всего встречаются однокомнатные и двухкомнатные квартиры. Однокомнатные квартиры представляют собой студию с кухонным уголком и санузлом, что делает их популярными среди молодых семей и одиночек. Двухкомнатные квартиры, напротив, имеют отдельную гостиную и спальню, что обеспечивает большую степень приватности. Также встречаются трехкомнатные квартиры, но они реже из-за ограничений площади. Все квартиры в хрущевках имеют стандартные планировки, что упрощает их строительство и эксплуатацию.
Вопрос 3: Какие недостатки планировок хрущевских квартир наиболее выражены
Основные недостатки планировок хрущевских квартир включают ограниченную площадь жилых помещений, отсутствие изоляции между комнатами и небольшой размер кухонь и санузлов. Кухни в таких квартирах обычно очень маленькие, что затрудняет размещение современной бытовой техники. Санузлы также компактны и часто не соответствуют современным стандартам комфорта. Кроме того, отсутствие балконов или лоджий в некоторых хрущевках может быть недостатком для тех, кто ценит дополнительное пространство. Эти факторы делают необходимость перепланировки особенно актуальной.
Вопрос 4: Какие преимущества планировок хрущевских квартир
Преимущества планировок хрущевских квартир включают их функциональность и компактность, что делает их удобными для жизни. Несмотря на небольшую площадь, квартиры хорошо продуманы и обеспечивают все необходимое для проживания. Также стоит отметить доступность таких квартир по цене, что делает их популярными среди первых покупателей. Кроме того, стандартность планировок упрощает процесс ремонта и перепланировки, так как многие элементы можно легко заменить или модернизировать. Это делает хрущевки хорошим вариантом для тех, кто хочет обустроить свое жилье с нуля.
Вопрос 5: Какие изменения в планировке можно внести, чтобы улучшить комфорт в хрущевской квартире
Для улучшения комфорта в хрущевской квартире можно внести несколько изменений в планировку. Во-первых, можно объединить кухню и гостиную, чтобы получить больше пространства и современный стиль. Во-вторых, можно расширить санузел за счет коридора или лоджии, если это возможно. Также можно добавить вторую комнату, разделив существующую, или увеличить площадь кухни за счет переустройства стен. Кроме того, установка современных дверей и перегородок может улучшить звукоизоляцию и сделать квартиру более уютной. Все эти изменения требуют тщательного планирования и согласования с управляющими компаниями.
Вопрос 6: Как исторически развивались планировки хрущевских квартир
Исторически планировки хрущевских квартир развивались в рамках программы массового жилья в СССР. В 1950-х годах началось строительство панельных домов, которые были рассчитаны на быстрое и дешевое возведение. Планировки были стандартизированы, чтобы снизить затраты и ускорить процесс строительства. Первоначально квартиры были очень компактными, с минимальными удобствами, но со временем планировки стали более удобными. К концу 1960-х годов появились квартиры с отдельными комнатами и более просторными кухнями. Однако основные принципы планировки остались неизменными, что и определило облик хрущевских домов.
Вопрос 7: Как сравнить планировки хрущевских квартир с современными
Сравнивая планировки хрущевских квартир с современными, можно выделить несколько ключевых различий. Современные квартиры обычно больше по площади и имеют более просторные комнаты, кухни и санузлы. Также современные планировки часто включают дополнительные помещения, такие как балконы, лоджии или кладовые. В отличие от хрущевских квартир, современные планировки более гибкие и могут быть адаптированы под индивидуальные потребности жильцов. Кроме того, современные квартиры оснащены более современной инфраструктурой и удобствами, что делает их более комфортными для жизни. Однако хрущевские квартиры сохраняют свою популярность благодаря своей доступности и возможности перепланировки.
Вопрос 8: Какие культурные аспекты связаны с планировками хрущевских квартир
Планировки хрущевских квартир имеют значительное культурное значение, отражая эпоху, в которой они были построены. Хрущевки стали символом советского жилья и массового строительства, обеспечившегоroof над головой для миллионов людей. Планировки этих квартир отражают стремление к функциональности и равенству, что было основой советской идеологии. Кроме того, хрущевские квартиры часто становятся объектом ностальгии для тех, кто вырос в них. Сегодня многие дизайнеры и архитекторы находят вдохновение в простоте и минимализме хрущевских планировок, адаптируя их к современным стандартам. Таким образом, хрущевки продолжают играть важную роль в культурной и архитектурной истории.
Какие типичные планировочные решения характерны для хрущевок с 5 этажами
С 1957 года, после принятия закона, который предусматривал устранение излишеств в проектировании домов, в СССР стали возводиться здания нового типа. В народе такие дома получили название «хрущевки» (производное от фамилии генерального секретаря ЦК КПСС Н.С. Хрущева). Такие дома получили второе название – хрущебы, в основном, из-за неудобной и непропорциональной планировки комнат, узких коридоров и пролетов площадок, тонких стен и как результат – ужасной шумоизоляции. В этой статье мы расскажем о том, что такое типовые серии хрущевок, постараемся выделить основные плюсы и минусы этих зданий. Особенности планировки предоставим в виде описаний и фото.
Типовые серии хрущевок: основные плюсы и минусы домов
Давайте рассмотрим основные характеристики квартир и определим особенности каждой серии хрущевок, которые возводились на протяжении 27 лет. Стоит заметить, что изначально хрущевки предполагалось использовать, как временное жилье и эксплуатационный срок здания составлял от 25 до 50 лет. Но, как известно, в таких домах проживают люди и в наше время. К минусам хрущевок можно отнести плохую шумоизоляцию и теплоизоляцию (зимой прохладно, а летом слишком жарко в квартире), не всегда удачную планировку квартиры и подъезда: узкие коридоры, маленькую кухню, отсутствие мусоропровода и очень часто лифта. К основным плюсам таких домов можно отнести невысокую стоимость.
К основным плюсам таких домов можно отнести невысокую стоимость жилья и развитую инфраструктуру вокруг здания. Как правило, недалеко от хрущевок есть садики, школы, магазины и отличная транспортная развязка. Если денежных средств на покупку квартиры мало, то– не самый плохой вариант. Тем более, такие здания в Москве и других городах России, подлежат сносу, в этом случае владельцы получают новенькое жилье, или реконструкции и перепланировке.

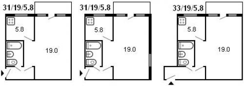
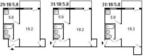
Серия 1-464 (1960 – 1967 гг.)
Общий чертеж:

Одной из самых популярных в СССР серий хрущевок стала 1-464 (1960 – 1967 гг.). Это панельный дом с 5 этажами, редко можно встретить 3 и 4 этажные здания. Во всех квартирах есть балконы (также дополнительные кладовки), а вот лифты не предусмотрены и жителям здания приходиться подниматься и спускаться по ступенькам, что достаточно тяжело пожилым людям, семьям с маленькими детьми. Санузлы в квартирах совмещенные, в подъезде нет общего мусоропровода, а количество квартир на площадке составляет 4. Высота потолков в квартирах – 2,5 м2, кухни менее 6 м2, если быть точнее – 5,8 м2. Квартиры 1, 2 и 3-х комнатные.
Картинка – чертеж:
1 комнатная:

2 комнатная:



3 комнатная:

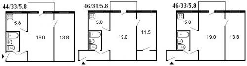
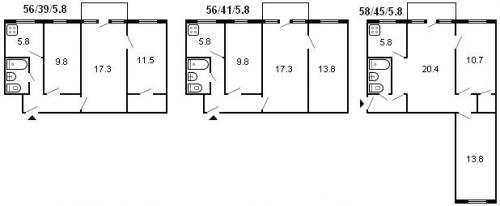
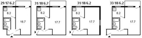
Серия 1-335 (1963 – 1967 гг.)
С 1963 по 1967 гг. территория застраивалась домами серии 1-335. Это тоже панельные здания, с высотой потолков 2,54 м., балконами в каждой квартире, совмещенными санузлами, отсутствием лифта и мусоропровода. Площадь кухни немного больше, чем в предыдущей серии – 6,2 м2, площадь потолков – 2,5 м. На площадке располагается четыре квартиры – от 1 до 3-х комнатной. Помимо балконов в квартирах есть дополнительные кладовки и встроенные шкафы.
1 комнатная:

2 комнатная:

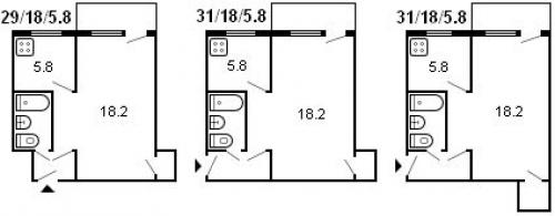
Серия 1-434 (1958 – 1964 гг.)
Эта серия строилась с 1958 года по 1964 год, в различные года застройки немного видоизменялись планировки квартир. Так, например, в зданиях 1958 года в однокомнатных квартирах площадь жилой комнаты составляла 18,6 м2, а в 1959 году она уменьшилась до 18,2 м2, в 1969 г. – площадь комнаты составляла 17,7 м2. И так во всех типах квартир площадь жилых помещений варьировалась в сторону уменьшения и увеличения. А вот площадь кухни осталась неизменной – 5,8 м2, как и высота потолков – 2,5 м. Дома – кирпичные, совмещенные санузлы, а в каждой квартире есть балкон, кладовая и встроенные шкафы.





Какие преимущества и недостатки планировок в пятиэтажных хрущевках
Главный недостаток хрущёвки — её возраст. И речь в большей степени даже не про износ конструкций, а про устаревшие коммуникационные сети и строительные нормы. То, что подходило для шестидесятых годов XX века не годится для второго десятилетия XXI века.
Например, электрические сети хрущёвок рассчитаны на малую нагрузку. Всё потому, что раньше у населения было меньше электроприборов и они требовали меньшей мощности сети. Современные электрочайники, стиральные и посудомоечные машины — настоящее испытание для дряхлой проводки хрущёвки.
Планировка хрущёвки также считается устаревшей. Смежные и проходные комнаты маленькой площади, тесные кухни, узкие коридоры. Всё это требует отдельных дизайнерских решений, специальной компактной мебели и небольших бытовых электроприборов. Известны случаи, когда в санузле хрущёвки приходилось демонтировать раковину только для того, чтобы поставить на её место стиральную машинку. Обставить же кухню хрущёвки по современным стандартам — неимоверно сложная дизайнерская задача.
Ещё одна проблема — низкие потолки. Это усложняет сборку и установку высокой корпусной мебели, например больших шкафов.
Здесь нет лифтов, а лестничные клетки чрезвычайно узкие. Это доставляет множество проблем при выносе и заносе мебели и крупногабаритной бытовой техники.
Также хрущёвки не могут похвастать хорошей тепло- и звукоизоляцией. Конечно, всегда можно установить дополнительную изоляцию самостоятельно, но это съест драгоценные квадратные метры полезного пространства.
Крыши у хрущёвок плоские. Летом они сильно нагреваются, осенью часто протекают. Для обитателей последних этажей это настоящая проблема.
В хрущёвке крайне сложно согласовать серьёзную перепланировку. Тут нет стен, которые можно снести без последствий для всей конструкции. Даже в согласовании обычного арочного проёма БТИ, с большой степенью вероятности, откажет.
Могу ли я внести изменения в планировку хрущевки и какие разрешения для этого необходимы

Фото: iStock
Если речь идет об изменении границ квартиры (владелец объединил смежные квартиры или, наоборот, одну жилплощадь поделил на две), изменении ее площади либо об обустройстве в квартире новых помещений (допустим, одну комнату поделили на две), то это перепланировка. К перепланировке относится и объединение двух комнат или, например, увеличение комнаты за счет коридора (при этом общие границы квартиры и ее площадь могут не измениться).
Как сообщал ранее Росреестр, к перепланировке относятся:
- перенос или демонтаж стен внутри квартиры,
- устройство новых дверных проемов,
- устройство еще одного окна или расширение окна,
- увеличение жилой площади за счет вспомогательных помещений (например, когда расширяют комнату за счет коридора или кладовки),
- устройство дополнительного санузла или кухни либо, напротив, их ликвидация.
Обязанность хозяина квартиры при перепланировке - внести соответствующие изменения в Единый госреестр недвижимости (ЕГРН) либо образовавшиеся после проведения работ помещения поставить на кадастровый учет и оформить права на них.
А вот если в пределах квартиры устанавливают, меняют или переносят инженерные сети (допустим, водопроводные трубы или электропроводку), переносят сантехническое, электрическое или другое оборудование, то это считается не перепланировкой, а переустройством. При переустройстве достаточно лишь внести изменения в техпаспорт на помещение.
Слово эксперту
"Перепланировка - это, например, когда переносят и разбирают перегородки в квартире, расширяют жилплощадь за счет вспомогательных помещений, обустраивают или переоборудуют уже существующий тамбур, - поясняет кандидат юридических наук, адвокат Михаил Боровский. - Переустройство может предусматривать, например, установку электрической плиты вместо газовой, перенос нагревателей, это может быть прокладка новых или замена уже имеющихся трубопроводов или устройств для установки душевых кабин и джакузи и так далее".
Следует также отличать перепланировку и переустройство от реконструкции. Последняя предполагает изменение площади, высоты или количества этажей объекта недвижимости. Например, если делают пристройку к жилому дому или возводят мансардный этаж. Реконструкцию можно проводить только на основании разрешения на строительство.
Какие советы по ремонту и дизайну интерьера для квартир в хрущевках
Прежде чем переходить к советам по ремонту в хрущевках , необходимо озвучить особенности строений, которые подпадают под данное название. Ведь общего у них собственно только маленькие габариты, часто объединенный санузел и невысокие потолки, а вот в плане конструкции различия довольно существенные, что следует учитывать при планировании ремонта, как капитального, так и легкого декоративного. Объединяет их также период строительства – 60-80 года прошлого века. В то время была разработана и внедрена в массовое строительство целая группа проектов. Среди них:
- Панельные дома из железобетонных панелей с несущими продольными внешними стенами;
- Дома с внешними кирпичными стенами, внутренним каркасом из ж/б колон;
- Панельные дома из железобетона с несущими продольными и поперечными стенами.

Основной конструктивной особенностью является наличие внутри конструкции несущих колонн и ригелей, на которые опираются плиты перекрытия. Во всех типах домов перекрытия выполнялись с использованием 220 мм железобетонных плит с пустотами.
Внутренние перегородки могут существенно различаться по материалу. Так, в панельных домах чаще всего использовались тонкие, всего в 40 мм толщиной, стены, выполненные из пенобетона и гипсобетона. Другим вариантом исполнения были деревянные перегородки, которые обшивались дранкой и оштукатуривались.
Компоновка квартир предполагает наличие проходных комнат малого размера, объединенный санузел и малогабаритную кухню, которая в лучшем случае могла иметь площадь до 7 м2.
Вентиляция организована централизованно с выводом воздуховодов в кухню и санузел. В панельных вариантах на оконных проемах отсутствуют подоконники.
Теплоизоляция внешних стен в большинстве случаев недостаточная. Особенно это заметно для центральных и северных районов страны.
Какие особенности планировки хрущевок отличают их от современных квартир
Хрущевки являются типичными представителями многоквартирных домов, построенных в СССР в период с 1950-х по 1980-е годы. Они имеют свои характерные особенности, которые позволяют легко идентифицировать этот тип дома. Вот некоторые из наиболее характерных параметров хрущевок:
- Количество этажей: обычно 5-9, реже 2-4 или 10-12
- Высота потолков: 2,5-2,7 метра
- Площадь квартир: от 30 до 60 квадратных метров
- Планировка квартир: типичная квартира хрущевки имеет небольшую кухню, комнаты смежные или изолированные, коридор и санузел, часто совмещенный
- Балконы: появились только в середине 1960-х годов и имели площадь около 2 квадратных метров
- Материал стен: панельные конструкции, часто с утеплением в виде минеральной ваты или пенопласта
- Окна: деревянные или металлопластиковые, небольшие по размеру
- Пол: деревянные доски или линолеум
- Прихожая: обычно отсутствует, место для гардероба выделяется в коридоре
- Туалет: отдельный или совмещенный с ванной
- Дизайн интерьера: простой и функциональный, с минимальным количеством декора и украшений.
Хрущевки были созданы как дешевый и быстрый способ обеспечить жильем многие семьи в период острой нехватки жилья в СССР. Их характерные особенности, такие как небольшие квартиры, низкие потолки и простой дизайн, были определены не столько эстетическими соображениями, сколько экономическими и функциональными. Однако, несмотря на все недостатки, хрущевки остаются популярными жилыми домами и по сей день.
Возможно ли увеличить жилую площадь в хрущевке с 5 этажами
Самым главным недостатком современных хрущевок является, пожалуй, их возраст и обуславливающие экономию материалов во время строительства «проблемные» зоны, которые и следует устранить во время капитального ремонта. Так, устранению подлежит:
Прежняя планировка. Решить вопрос неудобства и тесноты поможет перепланировка всего жилья, включающая в себя снос стен и перегородок, на замену которым придут визуально зонирующие пространство декоративные элементы декора. Имейте ввиду, что снос отдельных стен и перегородок требует одобрения жилищной инспекции, потому перед началом ремонтных работ лучше осведомиться о существующих нюансах;
Устаревшие канализация, водопровод и электропроводка, которые по прошествии стольких лет пришли в негодность, из-за чего в квартирах постоянно прорывает трубы и выбивает пробки. Решением проблемы станет замена всех труб, сифонов, смесителей, электропроводки и сантехники;
Тонкие стены, следствием чего становятся пронизывающий холод зимой, невыносимая жара летом и вынужденная необходимость постоянно слышать своих соседей. Решить данную проблему поможет шумоизоляция стен, пола и потолка + замена окон и дверей;
Еще одной особенностью хрущевок является неприятный затхлый шлейф, сопровождающий жильцов на протяжении всего времянахождении в доме, причиной которого становится разросшийся за много лет грибок и плесень. Устранить проблему поможет капитальный ремонт хрущевки, включающий в себя полный демонтаж пола, стен и потолка, новая стяжка, установка вентиляции, декоративная отделка пола, стен и потолка.
Какие популярные стили интерьера подходят для квартир в хрущевках

Выбор мебели для маленькой кухни необходимо производить тщательно с учетом реальных размеров и планировки комнаты. В таком миниатюрном помещении невозможно установить мебель островного типа. Однако большой ассортимент кухонных гарнитуров позволяет проявить дизайнерский вариант, и выбрать оптимальный набор – удобный и практичный, с максимальным функционалом.
Особое внимание следует уделить форме такой мебели. Возможны следующие варианты:
- Угловой тип. Для «хрущевки» достаточно характерны практически квадратные кухни площадью 4-6 кв.м. Если установить угловой, т.е. Г-образный кухонный гарнитур, то вся рабочая зона сместится в один угол. В противоположном углу можно будет даже выкроить место для небольшой обеденной зоны. При такой форме мебели в самом углу, обычно, оказывается мойка. Компактную посудомоечную машину можно разместить под ней. Рядом с мойкой должно найтись место для рабочей поверхности, где будет совершаться основной процесс приготовления продуктов. Далее, очередь наступает для варочного шкафа и духовки. С другой стороны от плиты разместится холодильник.
- Прямой, однорядный тип. В таком гарнитуре все его элементы располагаются вдоль одной стены. Он подходит для вытянутых кухонь. В квадратных помещениях однорядное исполнение применяется при желании выкроить максимум площади для столовой зоны с противоположной стороны. В этом случае придется отказаться от большой рабочей поверхности и отдельного духового шкафа. Холодильник и стиральную машину также надо перенести в другое помещение. Главный плюс – приличное пространство для оборудования мини-столовой.
- Двухрядный или П-образный тип. Он возможен, когда столовая вынесена в гостиную и совмещена с ней. На кухне не предусматривается обеденный стол, а обе противоположные стороны заполнены кухонным гарнитуром, где можно расположить достаточно много различной техники. При такой планировке важно помнить, что между рядами мебели должен оставаться проход не менее 90 см, а для комфортного перемещения – 110-120 см.
Какие современные технологии и материалы можно использовать для ремонта в хрущевке
Восстановление спроса на жилье большей площади в немалой степени зависит от доступности кредитных ресурсов. Решение президента Владимира Путина продлить до 1 июля 2024 года действие программы льготной ипотеки дало, казалось бы, позитивный сигнал участникам рынка.
Государство подтвердило готовность подставить плечо бизнесу и поддержать граждан. Другое дело, оправдаются ли ожидания. Ставка с 1 января 2023 года составит 8% (сейчас она 7%). На сегодняшний день это «потолок», если вспомнить, что для 50% россиян ипотека недоступна при значении ставки на уровне 9–10%. Такова официальная оценка Минстроя, отраженная в отраслевой стратегии. На фоне отсутствия роста реальных доходов населения как основы формирования долгосрочного спроса на жилье далеко не все рискнут взять ипотеку под 8% годовых.
Правда, продолжают действовать другие программы с господдержкой. Семейная ипотека по ставке 6% будет доступна для семей с двумя детьми в возрасте до 18 лет. Дальневосточники и жители новых регионов РФ смогут, как и раньше, получать жилищные кредиты под 2%, а ставка по сельской ипотеке сохранится на уровне 3%.
Вместе с тем девелоперы предупреждают, что сама по себе льготная ипотека не способна радикально повысить совокупный спрос на рынке недвижимости. Для этого нужен стабильный экономический рост, такой, который наблюдался с 2010 года. За 10 лет объемы строительства жилья выросли на 40%, напоминает совладелец группы «Родина» Владимир Щекин.
В обозримом будущем повторить успех едва ли получится. Поскольку перспективы полного выхода российской экономики из кризиса туманны, то вкладывать все деньги в дорогостоящие покупки граждане считают нецелесообразным. Так что спрос компактное жилье пока остается своеобразным мейнстримом даже у клиентов, не стесненных в финансах.