Быстрый план перепланировки хрущевки. Ограничения при перепланировке квартир в хрущевских домах
- Быстрый план перепланировки хрущевки. Ограничения при перепланировке квартир в хрущевских домах
- Перепланировка хрущевки 2 комнаты. Перепланировка 2-комнатной квартиры в хрущевке
- Перепланировка 2-х комнатной хрущевки со смежными комнатами. Перепланировка хрущевки (2 комнаты смежные): варианты подготовки
Быстрый план перепланировки хрущевки. Ограничения при перепланировке квартир в хрущевских домах
Как правило, перепланировка квартиры в хрущевке затрагивает самые неудобные помещения – кухню, ванную, санузел и коридор. Все эти помещения обычно настолько малы, что довольно часто возникает потребность объединить их друг с другом.
Надо сказать, что перепланировка квартиры хрущевки в этом плане облегчается тем, что в ней большинство стен являются ненесущими перегородками, а это открывает практически неограниченные возможности в плане внесения изменений в конфигурацию помещений – от новых дверных проемов до перепланировки хрущевки в студию. Сказанное относится, в первую очередь, к панельным и кирпичным хрущевкам.
Хрущевка серии 1-511, фото.



Ремонт в хрущевке
Вместе с тем перепланировка в жилых зданиях такого типа имеет и свои сложности. Например, моментом, осложняющим перепланировку кухни в хрущевке путем объединения ее с одной из жилых комнат, является наличие газовой плиты.
Электрические плиты в таких домах – большая редкость. Поэтому объединять в них кухню и комнату без плотно закрывающейся двери или установки раздвижной перегородки запрещено.
Данный запрет содержится, в частности, в пунктах 10.16 и 10.26 Приложения 1 к ППМ №508-ПП и касается не только хрущевок, но и любых других жилых многоквартирных домов с газифицированной кухней.
Перепланировка ванной комнаты в хрущевке обычно осуществляется посредством объединения ее с санузлом, а также расширения получившегося помещения на коридор. Данные мероприятия затрагивают конструкцию полов, поэтому должны сопровождаться укладкой гидроизоляции, что, в свою очередь, требует разработки проекта перепланировки .
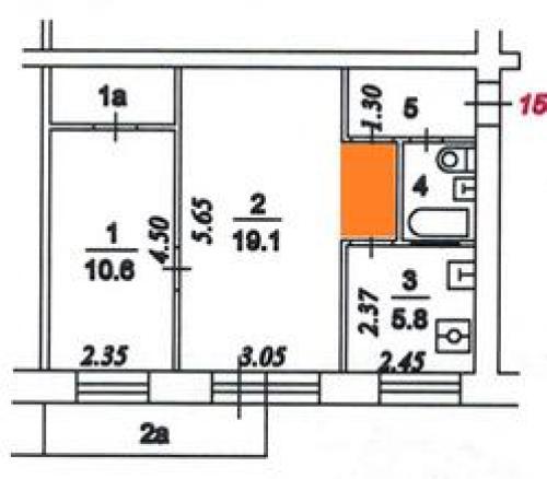
При расширении ванной и туалета следует помнить, что делать это разрешается только за счет смежных нежилых помещений, то есть коридора или кладовой. Поэтому желательно уточнить, не относится ли по документам БТИ участок коридора, примыкающий к ванной и санузлу, на самом деле, к жилой комнате (см. фото ниже).
Оранжевым цветом на планах БТИ отмечена зона, относящаяся в хрущевках не к коридору, как это принято считать, а к жилой комнате. И расширять на нее санузел (ванную) можно только в квартирах первых этажей.


Кроме того, следует учесть требования СНиПов, запрещающие расширять «мокрые точки» за счет кухни и наоборот, а также располагать эти помещения над жилыми комнатами соседей снизу.
Хрущевка серии 1-447, фото.
Зачем окно между кухней и ванной?
Во многих хрущевских квартирах проектом дома предусмотрено окно между кухней и ванной (санузлом). Оконный проем расположен в верхней части стены, разделяющей помещения, напротив уличного окна.
Данная “архитектурная находка” выполняла функцию естественного освещения, поскольку нередко происходили перебои в электроснабжении. И позволяла даже при отключении электричества пользоваться умывальником и туалетом.
Кроме того, окно делалось с расчетом на то, что в случае взрыва газа на кухне вместо стены ударной волной выбивало бы только стекло.
Оконный проем в стене между кухней и санузлом, фото.


Закладка данного оконного проема считается перепланировкой, поскольку он отмечен на плане БТИ. А любое изменение на плане квартиры должно быть согласовано.
Если заложение окна между кухней и ванной комнатой является единственным мероприятием по перепланировке квартиры, то его можно согласовать по эскизу, без разработки проектной документации.
О том, какие еще ремонтные работы в квартире возможно узаконить в упрощенном порядке, мы рассказали в статье “ Согласование перепланировки по эскизу ”.
Перепланировка хрущевки 2 комнаты. Перепланировка 2-комнатной квартиры в хрущевке
Двухкомнатные хрущевки, в большинстве своем, имеют множество перегородок, ниш, кладовых, которые «крадут» квадратные метры полезной площади. При этом комнаты не могут похвастаться удобной планировкой и выгодным метражом. Зачастую перепланировать и расширить пространство не так уж просто. Одним из выгодных вариантов изначальной планировки квартиры остается так называемая «распашонка», где комнаты расположены по обе стороны от кухни и не являются проходными. Но и перестроить площадь таким образом, чтобы получить третью комнату, не удастся. Даже разделив одну из комнат перегородкой, мы получим два помещения, одно из которых будет без окон, а во второе нужно будет организовать вход с территории и без того маленькой кухни. Поэтому такие квартиры, чаще всего, оставляют в первозданном виде.
Проект 1
Как мы уже говорили, наличие ниш и кладовых вполне можно использовать для увеличения площади. Например, как показано на фото, владельцы одной из квартир решили вопрос расширения кухни за счет смещения санузла в сторону кладовой. При данной планировке можно запросто объединить кухню с прилежащей комнатой и даже прихожей, в результате чего получится просторный зал. Однако нужно учитывать, что, если в квартире проживает полноценная семья с детьми, такая перепланировка окажется не целесообразной, лишая кого-либо из домочадцев личного пространства.

Проект 2
Один из самых неудобных проектов двухкомнатных квартир, именуемый «книжкой», предполагает наличие двух небольших смежных комнат, одна из которых проходная. В данном случае перепланировать обстановку таким образом, чтобы получить две отдельные комнаты, не получится без потери полезной площади одной из них. Здесь оптимальным вариантом выступает продление коридора за счет уменьшения площади проходной комнаты. В то же время, в комнате остается балкон, который можно утеплить и присоединить к полезной площади.


Проект 3
Квартиры типа «трамвай» также подразумевают наличие смежных комнат, но здесь можно разделить их, сохранив большее количество жилой площади. Один из вариантов предлагает попросту продлить коридор, обустроив в тупике гардеробную или кладовую. В таком случае сооружается дополнительная перегородка с дверью, которая отделит комнату. Второй вариант – продлить коридор только до конца дверного проема, ведущего в правую комнату. В данном случае необходимо будет соорудить две небольшие перегородки – одна будет тупиком коридора, а вторая – отделять комнату справа.


Перепланировка 2-х комнатной хрущевки со смежными комнатами. Перепланировка хрущевки (2 комнаты смежные): варианты подготовки
Гипсокартонная перегородка для разделения помещения на две комнаты
Перепланировка хрущевки на 2 смежные комнаты – это не косметический ремонт, а серьезный процесс, который требует ответственного подхода. Прежде чем приступать непосредственно к самому изменению конфигурации квартиры, важно позаботиться о согласовании перепланировки. Необходимо составить точный план с указанием всех деталей.
Перед началом работ по перепланировке квартиры необходимо позаботиться о ее согласовании
Работы по перепланировке лучше доверить опытным специалистам
Совет! Многие жители небольших квартир , решившись на перепланировку, считают ненужным ее узаконивание. Это большая ошибка, поскольку без утверждения документации на какие-либо изменения планировки в квартире помимо обоснованных жалоб соседей можно столкнуться с проблемами во время продажи квартиры.
Также стоит отметить, что без предварительной экспертизы даже опытные строители не смогут точно различить несущие стены, которые удерживают вес перекрытий, и самонесущие. Именно потому, затеяв серьезные изменения в структуре квартиры, стоит пригласить для экспертизы профессионалов, которые проведут оценку и предложат выгодные варианты перепроектировки.
Двухкомнатная хрущевка до и после перепланировки
Варианты перепланировки двухкомнатной хрущевки
Перенос кухни в комнату
План перепланировки двушки
Перепланировка хрущевки на 2 комнаты, фото которой выглядят весьма привлекательно, все-таки включает в себя больше, чем обычное изменение визуального облика квартиры. Необходимо собрать следующий пакет документов:
- В бюро технической инвентаризации оформляется план этажей здания, непосредственно план квартиры и детальная экспликация помещений.
- Жилищную контору стоит посетить для того, чтобы узаконить свои права на перепланировку и на квартиру в целом, также заверить эскиз будущего плана.
- Если работы будут проводиться с учетом частичной или полной замены трубопроводов или электропроводки, необходимо обратиться за разрешением в газовую службу, санэпидстанцию, пожарный отдел.
Разработку дизайна будущей квартиры можете доверить специалистам или же сделать это своими руками, воплотив в реальность все свои творческие фантазии
В зависимости от сложности проводимых работ, количество документов может существенно возрасти.