Создание уютного и функционального дизайна для двухкомнатной квартиры 44 кв.м
- Создание уютного и функционального дизайна для двухкомнатной квартиры 44 кв.м
- Связанные вопросы и ответы
- Какие основные принципы дизайна следует учитывать при проектировании двухкомнатной квартиры 44 кв.м
- Как можно оптимизировать пространство в маленькой двухкомнатной квартире 44 кв.м
- Какие цвета и материалы лучше использовать для дизайна двухкомнатной квартиры 44 кв.м
- Как можно создать уютную и функциональную кухню в двухкомнатной квартире 44 кв.м
- Как можно создать удобную и комфортную спальню в двухкомнатной квартире 44 кв.м
Создание уютного и функционального дизайна для двухкомнатной квартиры 44 кв.м
Стоимость дизайна двухкомнатной квартиры 44 кв.м.
Полная стоимость:
250 000 руб.
при оплате по факту выполненных работ
По предоплате:
225 000 руб.
подробнее об условиях акции
Вместе с ремонтом:
Бесплатно
подробнее об условиях акции
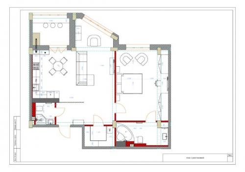
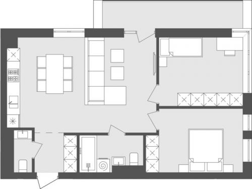
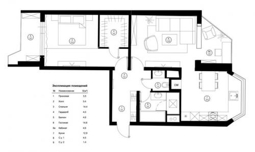
ЗАКАЗАТЬДизайн интерьера двухкомнатной квартиры 44 кв.м в ЖК «Байконур» выполнен в стиле современная классика для молодого человека. В интерьере преимущественно использованы светлые оттенки, а в материалах – глянец, большое количество зеркал и света. В совокупности это придаёт объём интерьеру. В дизайне прихожей за основу взяты светлые оттенки с разбавлением бирюзового цвета, что придаёт интерьеру визуально увеличенное пространство и добавляет красочных элементов . Зеркальное панно сочетается с зеркалами на мебели. Продолжением служит кухня -гостиная, в которой единой линией является керамогранит на полу и цветовая палитра. Ярким акцентом в гостиной служит диван, который задал тон остальным элементам декора. Разделением кухни-гостиной послужила барная стойка. В самом пространстве гармонично сочетаются различные фактуры, декоративная штукатурка, покраска стен, обои, элементы декора. Чтобы «не съедать» объем, в мебели использованы светлые цвета и глянцевая текстура. В небольшой, но уютной спальне акцентом является зона изголовья, которая украшена обоями, создающие эффект объёма и мягкости. Так же в ней выделена рабочая зона и встроенный гардероб. Напротив спального места была создана зона ТВ-конструктив стен, покрашенная в глубокий сине-белый цвет. В ванной комнате грамотное зонирование позволило вместить душевую кабину, полотенцесушитель, тумбу для раковины и постирочное место.
Связанные вопросы и ответы:
Вопрос 1: Какие факторы следует учитывать при проектировании дизайна двухкомнатной квартиры площадью 44 кв.м
Ответ: При проектировании дизайна двухкомнатной квартиры площадью 44 кв.м следует учитывать следующие факторы:
1. Размеры комнат и их расположение.
2. Особенности архитектуры и конструкции здания.
3. Влияние на дизайн окружающей среды.
4. Цели и предпочтения владельца квартиры.
5. Бюджет на ремонт и дизайн.
Вопрос 2: Какие элементы дизайна можно использовать для оптимизации пространства в двухкомнатной квартире
Ответ: Для оптимизации пространства в двухкомнатной квартире можно использовать следующие элементы дизайна:
1. Удобные и функциональные мебельные решения.
2. Освещение, которое помогает создать иллюзию большего пространства.
3. Использование зеркал для создания иллюзии большего пространства.
4. Удачное расположение мебели и предметов интерьера.
5. Использование светлых цветов для стен и пола.
Вопрос 3: Какие материалы и цвета можно использовать для создания уютной и комфортной обстановки в двухкомнатной квартире
Ответ: Для создания уютной и комфортной обстановки в двухкомнатной квартире можно использовать следующие материалы и цвета:
1. Комнаты можно отделывать природными материалами, такими как дерево, камень или керамика.
2. Цвета для стен и пола можно выбирать в светлых тонах, таких как бежевый, светло-серый или светло-зеленый.
3. Мебель можно выбирать в нейтральных тонах, таких как бежевый, серый или чёрный.
4. Цветы и растения можно использовать для создания домашнего очарования.
5. Текстильные изделия, такие как ковры, подушки и шторы, можно выбирать в сочетании с цветом стен и мебели.
Вопрос 4: Какие особенности дизайна следует учитывать при проектировании детской комнаты в двухкомнатной квартире
Ответ: При проектировании детской комнаты в двухкомнатной квартире следует учитывать следующие особенности дизайна:
1. Размеры комнаты и возможность размещения необходимой мебели и предметов интерьера.
2. Удобство и безопасность мебели и предметов интерьера.
3. Влияние на дизайн окружающей среды и предпочтения ребенка.
4. Бюджет на ремонт и дизайн.
5. Возможность изменения дизайна комнаты в будущем, учитывая возраст и интересы ребенка.
Вопрос 5: Как можно создать разделение между спальней и гостиной в двухкомнатной квартире
Ответ: Для создания разделения между спальней и гостиной в двухкомнатной квартире можно использовать следующие решения:
1. Использование различных цветов для стен спальни и гостиной.
2. Использование различных типов пола для спальни и гостиной.
3. Использование различных типов освещения для спальни и гостиной.
4. Использование различных типов мебели для спальни и гостиной.
5. Использование различных типов текстильных изделий, таких как ковры, подушки и шторы, для спальни и гостиной.
Вопрос 6: Какие современные технологии можно использовать при проектировании дизайна двухкомнатной квартиры
Ответ: При проектировании дизайна двухкомнатной квартиры можно использовать следующие современные технологии:
1. Интерактивные системы управления освещением и климат-контролем.
2. Умные устройства для домашнего очарования, такие как умные лампы и умные колонки.
3. Умные системы безопасности, такие как умные камеры и умные замки.
4. Умные системы для управления домашними приборами, такие как умные холодильники и умные стиральные машины.
5. Умные системы для управления музыкой и видео, такие как умные телевизоры и умные медиацентры.
Какие основные принципы дизайна следует учитывать при проектировании двухкомнатной квартиры 44 кв.м
Каждая двухкомнатная квартира имеет свои особенности. Которые необходимо учесть, думая об ее планировке. При этом необходимо учитывать, что все пространство квартиры должно использоваться максимально рационально и экономно.

С чего нужно начинать
Прежде всего нужно провести анализ особенностей квартиры. Для этого составляют подробную схему и выявляют нерациональное использование доступного пространства.
Затем нужно решить, какая планировка необходима. Она может включать не только выбор расположения мебели, но и перепланировку стен там, где это разрешено законодательством.

Одной из целей этой работы является обеспечение, в соответствии с имеющимися возможностями, индивидуального пространства для каждого проживающего в этой квартире.
Важно выбрать подходящий стиль будущего оформления и предпочтительный дизайн квартиры. В дальнейшем вся работа по перепланировке будет вестись в разработанных заранее рамках. Для того, чтобы провести выбор, необходимо ознакомиться с доступными фото планировки двушки.
Существующие типы двухкомнатных квартир
Двушки могут иметь различные планировки. Далее рассказано о наиболее распространенных из них.
Хрущевки
Когда эти дома возводились, о них говорили, как о временном жилье. В это время было важно обеспечить граждан квартирами.в хрущевке имела свои особенности. Вот основные из них:
- Относительно низкие потолки.
- Компактные размеры.
- Очень маленькие кухни. Площадь в них обычно не превышала 6 кв. м.
- Часто санузлы были совмещенными.

Планировка старой двушки имела много недостатков. Однако и в таких ситуациях существуют способы сделать ее более удобной.
Сталинки
Типичным отличием таких квартир, которые видны с первого взгляда, являются высокие потолки и большая площадь комнат. Это дает возможность выполнять разнообразные перепланировки.

В связи с большой площадью помещений здесь возможна планировка из однушки в двушку. В сталинках не используются внутренние несущие стены.
Брежневки
Планировка панельной двушки по сравнению с хрущевками является улучшенной. Здесь часто предусматривается наличие раздельного санузла. Размер кухни достигает 8 кв. м. Несущие стены располагаются внутри квартиры, поэтому возможности перепланировки ограничены.

Серия П 44
Квартиры серии П 44 строились с конца семидесятых до конца девяностых. Они являлись для своего времени принципиально новой разработкой. Планировки двушки П 44 отличались продуманной и качественной планировкой: большими кухнями, удобными прихожими и другими особенностями. Их рассматривали как альтернативу брежневкам.
Новостройки
Для них характерна более рациональная планировка. Планировки двушек в новостройках предусматривают крупные кухни, просторные прихожие, раздельные входы в комнаты. Часто в квартире имеется лоджия, которую можно присоединить к комнате. Обычно квартиры продуманы так, что необходимость в перепланировке возникает редко.

Какие бывают минусы в планировке квартиры
Поскольку изменения в первую очередь должны помочь избавиться от существующих недостатков, полезно знать, на что следует обращать особое внимание. Наиболее распространенными недостатками являются следующие.

Планировка санузла
Многие считают, что если имеется совмещенный санузел, то его желательно перепланировать в раздельный. Хотя в большинстве случаев это оправдано, тем не менее, некоторые предпочитают использовать совмещенный.
Первый вариант удобен для большого количества жильцов, второй может подойти там, где в квартире живут один или два человека. Обычно вопрос о том, как удобнее, решают исходя из конкретной ситуации.

Как можно оптимизировать пространство в маленькой двухкомнатной квартире 44 кв.м
Если хочется поддерживать единую стилистику в помещении, то необходимо определиться со стилем всего проекта. Можно выбирать из списка популярных вариантов, но покопаться в необычных и нераспространенных, оригинальных направлениях также полезно.
Главное, чтобы оформление жилища нравилось хозяевам квартиры, даже если оно собрано из множества стилевых решений
Скандинавский стиль
Это один из наиболее подходящих вариантов оформления маленького двухкомнатного жилья. Суть в чистоте, большом количестве белых тонов и яркие жизнерадостные акценты. Необходимо «впустить» максимум солнечного света, использовать натуральные материалы и сделать помещение весьма приспособленным для проживания в нем.
Скандинавскому интерьеру свойственна легкость, простота и естественные оттенки
Лофт
Его стиль похож на дизайн однокомнатной кв. 44 кв. м., так как предполагает единое зонированное пространство. Размещение гарнитуры, фактура и цветовая гамма напоминают индустриальную тематику, где преобладает кирпичный, бетонный, металлический материал. Должно создаваться ощущение, что это фабричное здание, куда принесли первую попавшуюся взгляду мебель.
В лофтном интерьере приветствуются неординарные решения, с помощью которых создается оригинальный дизайн помещения
Хай-тек стиль
Дизайн будущего, предполагает использование монохромных тонов, глянцевые покрытия и зеркала. У него много общего с минимализмом, характерна геометрия, четкие линии и скрытые от взгляда мелочи – минимум декора. Ящики, шкафы часто встроены с стену, не имеют ручек.
Комната в стиле хай-тек оформляется в сдержанной цветовой палитре с минимумом текстиля и декора
Стиль фьюжн
Представляет собой совмещение двух или трех разных стилей, направлений, оттенков. Это комбинирование разных, даже противоположных, фактур, расцветок и материалов в одном помещении. Такой подход делает оформление уникальным и индивидуальным, так как владелец может полностью выразиться через обстановку в его доме.
Фьюжн – это просто находка для людей, которые не любят строгие рамки и общепринятые каноны
Стиль прованс
Он отсылает воображение в деревенский уютный и ухоженный домик, где преобладают натуральные материалы, много рюшей, полевых, разных цветов и вышивки. Можно добавить кружевные салфетки, изображения домашних животных. Ориентироваться здесь стоит на создание особой теплой и приятной атмосферы.
Оптимизация пространства в маленькой двухкомнатной квартире 44 кв.м.
Чтобы создать функциональное и комфортное пространство в маленькой двухкомнатной квартире, необходимо грамотно подойти к ее планировке и дизайну. В этой статье мы рассмотрим несколько вариантов, которые помогут вам оптимизировать пространство в вашей квартире.
1. Выбор стиля
Перед тем, как начать обустраивать квартиру, необходимо определиться со стилем всего проекта. Это может быть скандинавский, лофтный, минималистический или любой другой стиль, который вам нравится. Главное, чтобы он соответствовал вашим предпочтениям и создавал уютную атмосферу в квартире.
2. Использование светлых тонов
Светлые тона могут визуально увеличить пространство в квартире. Используйте белые, светло-серые или бежевые тона для стен, пола и потолка. Это создаст ощущение простора и свободы.
3. Минимализм
Минимализм - это стиль, который предполагает использование минимума мебели и декора. Это идеальный вариант для маленькой квартиры, поскольку он позволяет сохранить пространство и создать ощущение простора.
4. Использование вертикального пространства
В маленькой квартире важно использовать вертикальное пространство. Установите высокие шкафы, полки и стеллажи, чтобы хранить вещи и освободить пол.
5. Зонирование пространства
Зонирование пространства - это техника, которая позволяет разделить квартиру на несколько зон. Используйте перегородки, шторы или мебель, чтобы создать отдельные зоны для сна, отдыха и работы.
6. Использование зеркал
Зеркала могут визуально увеличить пространство в квартире. Используйте зеркала на стенах, потолке или полу, чтобы создать ощущение простора.
7. Удаление лишних вещей
Лишние вещи могут загромождать пространство в квартире. Удалите все ненужные вещи и сохраните только то, что действительно необходимо.
8. Использование складной мебели
Складная мебель - это идеальный вариант для маленькой квартиры. Используйте складные стулья, столы и кровати, чтобы освободить пространство.
9. Создание функциональных зон
Создайте функциональные зоны в квартире, такие как зона для сна, зона для отдыха и зона для работы. Это поможет вам сохранить порядок и организовать пространство.
10. Использование натуральных материалов
Натуральные материалы, такие как дерево, камень и кирпич, могут добавить уют и тепло в квартиру. Используйте их для отделки стен, пола и потолка.
Следуя этим советам, вы сможете оптимизировать пространство в вашей маленькой двухкомнатной квартире и создать комфортную и функциональную обстановку.
Если вы хотите поддерживать единую стилистику в помещении, то необходимо определиться со стилем всего проекта. Вы можете выбрать из списка популярных вариантов, но также полезно покопаться в необычных и нераспространенных, оригинальных направлениях.
Главное, чтобы оформление жилища нравилось вам, даже если оно собрано из множества стилевых решений.
Минимализм
Это один из наиболее подходящих вариантов оформления маленького двухкомнатного жилья. Суть в чистоте, большом количестве белых тонов и ярких жизнерадостных акцентах. Необходимо «впустить» максимум солнечного света, использовать натуральные материалы и сделать помещение весьма приспособленным для проживания в нем.
Скандинавскому интерьеру свойственна легкость, простота и естественные оттенки.
Скандинавский стиль
Его стиль похож на дизайн однокомнатной кв. 44 кв. м., так как предполагает единое зонированное пространство. Размещение гарнитуры, фактура и цветовая гамма напоминают индустриальную тематику, где преобладает кирпичный, бетонный, металлический материал. Должно создаваться ощущение, что это фабричное здание, куда принесли первую попавшуюся взгляду мебель.
Лофтный стиль
Лофтный интерьер приветствуется неординарными решениями, с помощью которых создается оригинальный дизайн помещения.
Дизайн будущего, предполагает использование монохромных тонов, глянцевые покрытия и зеркала. У него много общего с минимализмом, характерна геометрия, четкие линии и скрытые от взгляда мелочи – минимум декора. Ящики, шкафы часто встроены с стену, не имеют ручек.
Какие цвета и материалы лучше использовать для дизайна двухкомнатной квартиры 44 кв.м
Перед планированием ремонта и предварительного консультирования с дизайнером важно обговорить основные моменты и принять решения по ряду вопросов самостоятельно. Хозяева должны знать, какой дизайн они хотят видеть в своей квартире. Возможно, понадобится перепланировка.
На этот фактор влияет несколько особенностей:
- Общая площадь квартиры и месторасположение комнат.
- Количество проживающих и необходимость обустройства личного уголка для каждого.
- Стиль жизни членов семьи.
- Выбранный стиль.
Создавать дизайн двухкомнатной квартиры в «новостройке» гораздо проще, чем во вторичном жилье. Совсем немногие оказываются недовольны планировкой квартир в новых домах, и хотят изменить ее. К сожалению, то же самое об обладателях квартир в старых домах сказать нельзя, ведь квартиры здесь зачастую совсем крошечные. Не радуют и архитектурные особенности: узкий и темный коридор, совмещенные ванная и туалет, маленькая кухня. Одни дизайнеры прибегают к использованию методов зрительного увеличения помещений, другие настаивают на перепланировке.
Имейте в виду, что в некоторых домах получить разрешение на перепланировку кухни невозможно. Это связано, в первую очередь, с расположением коммуникаций, в частности, газопроводов.
После того, как работы по перепланировке завершены, можно начинать планировать непосредственно ремонт. Практически все дизайнеры рекомендуют оформлять пространство в едином стиле, выбранном заранее. При комбинировании в двухкомнатной квартире нескольких стилей потребуется помощь настоящего профессионала своего дела, однако мало кто станет планировать интерьер смешанной стилистики на площади в 40 кв. м. Оформление квартиры в современном стилистическом направлении подразумевает сочетание комфорта и функциональности, присущих стилю минимализм. Удобство, практичность и внешняя привлекательность составляют основу современного дизайна.
Как можно создать уютную и функциональную кухню в двухкомнатной квартире 44 кв.м
Рассмотрим способы, позволяющие обустроить в таком пространстве главные функциональные зоны.
Совмещение кухни с гостиной
Подобный прием особенно хорош в том случае, когда размеры комнат не совпадают и меньшая из них примыкает к кухне. Демонтаж перегородки между помещением для готовки и смежным пространством позволит обрести значительно большую свободу действий. Однако обозначить зоны кухни и гостиной все-таки придется. Для этого можно:
- Разделить функциональные части помещения предметом в виде барной стойки, высокой спинки дивана или легкой раздвижной перегородки.
- Подобрать для каждой зоны свое напольное покрытие. Кухню, например, хорошо оформить крупной плиткой, а гостиную – ламинатом.
- Отделать стены отличными друг от друга способами. Здесь неплохо поэкспериментировать с цветами и фактурами.

Разделение кухни и гостиной.

Грамотное применение напольного покрытия.

Акцентная стена в гостиной зоне.
В оставшейся части квартиры можно обустроить спальню-детскую.
Муж и жена, а рядышком дитя
Речь идет о спальне, в которой будут комфортно чувствовать себя все члены семьи. Вернее, о спальне-детской, ведь помимо размещения кроватей в этой же комнате можно попытаться обустроить для сына или дочери собственный уголок.
Если ребенок совсем кроха, удобно просто поставить его кроватку рядом с ложем родителей. Малыш всегда будет под боком, и успокоить его ночью не составит труда.

Спальня для родителей и малыша.
В дальнейшем, когда ребенок подрастет, лучше разграничить пространство, используя ширму, штору, широкий стеллаж или вертикальные жалюзи, и здесь находящие свое применение.

Сложенная штора между взрослой и детской зоной.
Вторая комната квартиры может стать гостиной, как отдельной, так и совмещенной с кухней или кабинетом.

Гостиная-кабинет.
Рациональная идея – спальня-гостиная
Можно вполне понять родителей, желающих отдать любимому чаду целую комнату. Это решение является еще больше оправданным, если муж и жена планируют в будущем иметь больше детей. Итак, когда нет сомнений в назначении одной из комнат, остается подумать о том, как наиболее выгодно использовать квадратные метры второго помещения. Неплохим решением является организация в нем спальни-гостиной.
Идею обустройства такой комнаты можно реализовать по-разному. Один из вариантов предполагает наполнение интерьера многофункциональными предметами. Здесь, например, неплохо поставить раскладные кресла или удобный диван, оснащенный откидной спинкой. С такой меблировкой одно и то же помещение днем будет выступать в роли просторного зала, а ночью – превращаться в уютную спальню.

Многофункциональная мебель в спальне-гостиной.
Можно обойтись и без предметов, способных трансформироваться. Тогда снова стоит прибегнуть к зонированию. Одно из удачных решений – отделение спального места от остального пространства с помощью балдахина.

Обособление спального места с помощью балдахина.
Сквозная перегородка, пропускающая свет, тоже неплохой вариант.

Сквозная перегородка в комнате.
Две комнаты: спальня и детская
При такой организации пространства основные помещения станут полноценными комнатами. Одна из них, являясь спальней, будет всецело принадлежать взрослым, другая станет уютным гнездышком для ребенка.

Приятно находиться в этой светлой бежевой спальне.

Отдельная детская комната.
Но куда в таком случае привести гостей? – Прямо на кухню. Конечно, при условии, что площадь этого помещения позволит разместить в нем хотя бы скромный диван.

Диван отлично вписался в кухню.
Как можно создать удобную и комфортную спальню в двухкомнатной квартире 44 кв.м
Безусловно, оформление собственной квартиры - занятие интересное. Однако большое разнообразие дизайнерских решений, сбивают с толку. Не стоит переживать по этому поводу. Мы собрали для вас общие рекомендации по дизайну интерьера, которые помогут вам создать продуманный дизайн квартиры.
- Чтобы сделать квартиру функциональной, необходимо понять, кто будет проживать и как вы будете использовать пространство. Безусловно, оно будет использоваться для разных целей: работы, отдыха, сна, приготовления и приема пищи и т.д. Это требует создания определенных зон. Здесь учитывается состав семьи, есть ли дети, возраст, пол, род занятий, образ жизни каждого члена семьи.
- В небольших квартирах имеет смысл рассмотреть вариант перепланировки - объедините кухню и гостиную или кухню с прихожей. А для организации рабочего места утеплите балкон.
- Поскольку в квартире будет несколько комнат, то обязательно продумайте возможность удобного перемещения между помещениями. Оцените антропометрические данные каждого члена семьи и уже с учетом этих данных продумайте расстановку мебели.
- Организуйте системы хранения в каждой комнате. Используйте вертикальное пространство по максимуму - встроенные шкафы, антресоли и многое другое. В небольших двухкомнатных квартирах с помощью продуманной системы хранения вы сэкономите место и время на уборку.
- Расположение розеток - еще одна задача, которую лучше решить на этапе проектирования. Распределите функциональные зоны и продумайте, какие приборы вы будете тут использовать.
- Не ограничивайтесь только центральным освещением. Зональные светильники обеспечат хорошее освещение и сэкономят ваш бюджет. А с помощью акцентного освещения можно выделять различные зоны или декоративные композиции.
- Чтобы цветовая гамма в квартире всегда была сбалансирована, воспользуйтесь правилом 60-30-10. Сначала выбирается один оттенок, который будет доминировать в комнате. Он занимает примерно 60% помещения. Как правило, это нейтральный или пастельный оттенок. 30% будет занимать второй цвет, немного заметнее и смелее. 10% оставить на третий цвет. Цвет акцента самый яркий, смелый. Его видно в элементах декора.
- Определитесь со стилем в самом начале проекта. Изучите полный список стилей в другой нашей статье. Популярными сегодня являются квартиры в современном, скандинавском, классическом стиле, а также в стиле минимализм, хай-тек и лофт. Каждый имеет свои особенности и уникальные черты. Познакомьтесь с ними, чтобы понять, какой стиль оформления нравится вашей душе.