Как из однушки 40 м² сделать двушку. Однушку в двушку: популярные варианты перепланировки
Как из однушки 40 м² сделать двушку. Однушку в двушку: популярные варианты перепланировки
«Затевать перепланировку однушки в двушку можно и нужно, если общая площадь квартиры насчитывает хотя бы 40 квадратов»
Перекроить однокомнатную квартиру, передвинуть в ней стены, адекватно отделать – даже при наличии утвержденного плана – будет делом нелегким. Малогабаритное жилье в прямом смысле не дает развернуться. Затевать перепланировку однушки в двушку допустимо и нужно, если общая площадь квартиры насчитывает хотя бы 40 квадратов. В меньших пространствах сделать из однушки действительно уютную двушку будет архисложно.
Идей по изменению внутреннего пространства жилья предлагается много, но в основном они отличаются дизайнерским решением. В основу перепланировки заложены стандартные решения. Какое из них будет выбрано – зависит от исходных параметров видоизменяемого жилья.
Вариант 1
Наиболее популярным видом трансформации однушки в двушку является создание квартиры-студии. Особенно нравится подобный подход молодежи, симпатизирующей современным направлениям оформления интерьеров.
Планировка такого жилья предполагает выделение в отдельную комнату спальни и объединение в единое пространство площадей гостиной и кухни. Разделение последней, при перепланировке однушки в двушку, чисто символическое. Без использования раздвижных перегородок и штор. Зоны принято разграничивать: разной фактуры отделкой, игрой цветов, архитектурными элементами. Например, в кухонной части может быть приподнят пол и на входе в нее образована ступенька.
Создавая из однушки уютную двушку-студию, важно использовать только модерновую отделку. В интерьере должна появляться исключительно современная мебель, желательно привлекающая нестандартностью своей конструкции или дизайна.
В такой квартире должен царить абсолютный порядок. Обилие декора и просто бардак лишит интерьер свежести, украдет пространство и вообще сведет его эффектность на нет.
Нужно учитывать, что используя этот вариант преобразования однушки в двушку, жильцам придется терпеть определенные неудобства, а именно – разносящиеся по гостиной запахи кухни. Но если никого из квартирантов это не смущает, то в остальном – решение вполне комфортно.
Вариант 2
Он предлагает из однушки сделать двушку посредством передела комнаты гипсокартонной стеной, с последующим переносом межкомнатных дверей. Об использовании кирпичной кладки речь в квартирах обычно не ведется. Такая стена будет тяжела и усилит нагрузку на межэтажное перекрытие.
Эта идея перепланировки онушки в двушку может и должна быть взята за основу, если комната крупногабаритна и в ней предусмотрено два окна. В этом случае есть шанс получить два полноценных, возможно даже изолированных пространства, площадь которых можно задействовать по своему усмотрению.
В малогабаритных комнатах также можно поставить перегородку, но не гипсокартонную, а преобразовать однушку в двушку при помощи стекла. За стеной из стеклоблоков можно обустроить кабинет или миленькую спальню.
Вместо стационарного перестенка можно установить раздвижные панели из стекла. Удачным дизайнерским ходом будет использование витража.
Наиболее сложна перепланировка квадратной однушки в двушку. Единственное окно и пропорциональные стены очень ограничивают варианты дизайна и организации пространства.
Вариант 3
Менее популярный, но все же пользующийся спросом способ преобразования однушки в двушку – задействование штор. Используя данный прием, можно получить две комнаты без крушения стен и кучи согласований. За плотной тканевой перегородкой можно организовать уютный спальный уголок или комфортную рабочую зону. Текстильная ширма не крадет пространство, зато высоко функциональна и при необходимости может быть убрана одним движением руки.
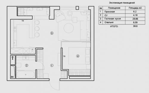
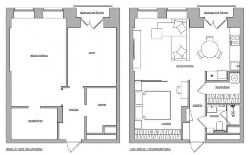
Однушка 43 в двушку. Готовые схемы проектов переделки однокомнатной квартиры в двухкомнатную разной площади
При перепланировке в 38 кв м учитывается все до мелочей. Для такой квартиры лучше всего подойдут такие стили, как хай-тек, скандинавский или кантри. При использовании одного из стилей в квартире будет уютно и просторно. Важно заранее все распланировать, как из однушки сделать двушку и постепенно начать перестройку. Главное, выбрать подходящий вариант и тем самым можно преобразить свою жилплощадь.

Спальная зона выделена в небольшую, но отдельную комнату. Большая часть пространства досталась кухне-гостиной, в которой раскладной диван служит дополнительным местом для сна
При 40 кв м комнаты могут быть открытыми, что придаст квартире неповторимый вид. При перепланировке в любой интерьер можно внести “изюминку” и тогда все будет смотреться изящно и красиво. Каждому хозяину квартиры можно создать индивидуальный проект и решить как из однушки сделать двушку 40 кв. Разграничивая помещения в квартире нужно сделать так, что все было компактно расставлено.

Приватное место для ночного отдыха размещено за стеклянной перегородкой, что позволило сохранить в спальне естественное освещение
При 43 кв м будет уютно, если разграничить основную комнату перегородкой. У тех, у кого есть дети сделать для них игровую комнату. Если владелец проживает один, то ему можно создать уютное офисное помещение. Все гармонично сочетаться в соответствие с установленными правилами.

Комната с двумя окнами разделена на спальную и гостиную зоны, последняя отделена от кухни барной стойкой
При 45 кв м в одной комнате можно установить кровать и диван без потери основного стиля. Вторая половина может быть занята кухней в американском стиле. Здесь можно все разграничить так, чтобы уместились:
- напольные вешалки;
- небольшие шкафчики;
- напольный торшер;
- столик;
- диван и т.д.

Благодаря перепланировки удалось организовать просторную кухню-гостиную и уютную спальную зону с небольшим гардеробом
При 50 кв м может получиться в одной половине уютная спальня, а в другой отдельный уголок отдыха. В качестве перегородки можно поставить прозрачные. Это придаст помещению современный, презентабельный вид. В квартире может быть объединена кухня с гостиной и отдельная спальня. Все это может быть удобным вариантом для семейной пары.

Функциональный интерьер с достаточно большой спальной комнатой, кухне-гостиной и рабочим кабинетом на утепленной лоджии
При перепланировке 55 кв м можно сделать интерьер в швейцарском стиле, использовав светлые оттенки. Интерьер лучше не перегружать лишними деталями, а повесить украшения на стены и потолок. Если даже дизайн простой, то интерьер может получиться стильный и современный.

Перепланировка евродвушки в двушку. Что такое евродвушка
Простыми словами, евродвушка — это двухкомнатная квартира, где одна комната изолированная и используется как спальня, а вторая совмещена с кухней и выполняет функцию гостиной. По планировке такой формат похож на студию с дополнительной отдельной комнатой для сна.
Исторически сложилось, что кухня — это место приема гостей, задушевных разговоров и посиделок. «Даже при наличии отдельной гостиной друзья и родственники чаще ютятся на кухне. От этого сначала появилась тенденция к объединению кухни и жилой комнаты, а теперь и предложение от застройщиков большой кухни-гостиной в изначальной планировке. Эта идея была подсмотрена на Западе, отсюда евродвушка и получила свое название», — пояснила дизайнер Марина Пахомова.
Евродвушки в Москве
Евродвушки на столичном рынке недвижимости появились в кризис 2014–2015 годов и получили большую популярность, рассказала председатель совета директоров риелторской компании «Бест-Новострой» Ирина Доброхотова.
«Поскольку во многих проектах квартиры такого формата выходили с меньшими площадями и с меньшими ценами, чем классические однушки, двушки и трешки, то были очень востребованы. В кризис многие покупатели были финансово ограничены и стремились приобрести квартиру с наименьшим бюджетом и максимально возможной площадью», — подчеркнула Доброхотова.
На сегодняшний день в зависимости от класса и концепции жилого комплекса квартиры с кухней-гостиной, по оценке «Бест-Новостроя», могут составлять 10–20% от предлагаемого объема. Такой формат присутствует практически во всех сегментах новостроек в столице за исключением высокобюджетной недвижимости.
Популярность евродвушек с каждым годом только увеличивается: в 2020 году спрос на них на 2% превысил аналогичные показатели для лотов с классической планировкой, уточнила управляющий директор компании «Метриум» Надежда Крокка. Это обусловлено в том числе более низкой стоимостью евроформата: такая квартира обойдется в среднем на 15% дешевле, пояснила она.
«Существующее предложение полностью удовлетворяет спрос. Евродвушки чаще всего выбирают те, кому нужна квартира с большой кухней, и те, кто покупает жилье небольшой площади. За счет отсутствия стены между кухней и гостиной квартира визуально выглядит более просторной и светлой», — резюмировала Доброхотова.