Перепланировка хрущевки с 2 смежными.. Перепланировка 2-комнатной квартиры в хрущевке
- Перепланировка хрущевки с 2 смежными.. Перепланировка 2-комнатной квартиры в хрущевке
- Планировка хрущевки 2 комнаты 44 м. Типы исходной планировки с вариантами улучшений
- Перепланировка двухкомнатной хрущевки с проходными комнатами. Возможные перепланировки
- Перепланировка 2-комнатной хрущевки в 3-комнатную. Сделать две детские комнаты из одной
Перепланировка хрущевки с 2 смежными.. Перепланировка 2-комнатной квартиры в хрущевке
Двухкомнатные хрущевки, в большинстве своем, имеют множество перегородок, ниш, кладовых, которые «крадут» квадратные метры полезной площади. При этом комнаты не могут похвастаться удобной планировкой и выгодным метражом. Зачастую перепланировать и расширить пространство не так уж просто. Одним из выгодных вариантов изначальной планировки квартиры остается так называемая «распашонка», где комнаты расположены по обе стороны от кухни и не являются проходными. Но и перестроить площадь таким образом, чтобы получить третью комнату, не удастся. Даже разделив одну из комнат перегородкой, мы получим два помещения, одно из которых будет без окон, а во второе нужно будет организовать вход с территории и без того маленькой кухни. Поэтому такие квартиры, чаще всего, оставляют в первозданном виде.
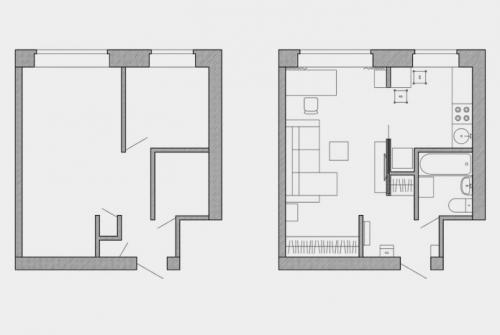
Проект 1
Как мы уже говорили, наличие ниш и кладовых вполне можно использовать для увеличения площади. Например, как показано на фото, владельцы одной из квартир решили вопрос расширения кухни за счет смещения санузла в сторону кладовой. При данной планировке можно запросто объединить кухню с прилежащей комнатой и даже прихожей, в результате чего получится просторный зал. Однако нужно учитывать, что, если в квартире проживает полноценная семья с детьми, такая перепланировка окажется не целесообразной, лишая кого-либо из домочадцев личного пространства.


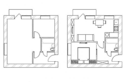
Проект 2
Один из самых неудобных проектов двухкомнатных квартир, именуемый «книжкой», предполагает наличие двух небольших смежных комнат, одна из которых проходная. В данном случае перепланировать обстановку таким образом, чтобы получить две отдельные комнаты, не получится без потери полезной площади одной из них. Здесь оптимальным вариантом выступает продление коридора за счет уменьшения площади проходной комнаты. В то же время, в комнате остается балкон, который можно утеплить и присоединить к полезной площади.


Проект 3
Квартиры типа «трамвай» также подразумевают наличие смежных комнат, но здесь можно разделить их, сохранив большее количество жилой площади. Один из вариантов предлагает попросту продлить коридор, обустроив в тупике гардеробную или кладовую. В таком случае сооружается дополнительная перегородка с дверью, которая отделит комнату. Второй вариант – продлить коридор только до конца дверного проема, ведущего в правую комнату. В данном случае необходимо будет соорудить две небольшие перегородки – одна будет тупиком коридора, а вторая – отделять комнату справа.


Планировка хрущевки 2 комнаты 44 м. Типы исходной планировки с вариантами улучшений
Базовая планировка 2-комнатной хрущевки определяется не только размером свободной площади, но еще и характером расположения жилых комнат. В этом плане есть несколько вариантов, и мы пробежимся по самым популярным из них — со вполне конкретным предложением по кардинальным преобразованиям к каждому.
«Распашонка»
Примерно одинаковые по площади жилые комнаты (16-17 кв.метров) расположены по левую и правую стороны от прихожей и изолированы друг от друга. Между ними располагается санузел и небольшая кухня примерно на 5 кв. метров.

Что можно сделать:
Самое слабое звено в этой схеме — скромная кухня, и ее можно увеличить за счет одной из комнат.

Планировка распашонкой для 2-комнатной хрущевки смотрится одним из самых удачных решений, так как позволяет обойтись минимумом потраченных усилий для придания квартирному пространству более современного вида.

«Книжка»
Две жилые комнаты является смежными — их разделяет одна длинная стена. Кухня на 4-5 кв.метра и санузел располагаются по левую-правую сторону от коридора.


Что можно сделать:
- увеличить кухню за счет объединения с прилегающей к ней комнатой;
- продлить коридор и сделать пространство при входе более свободным.



Мини-улучшенка
2 жилые комнаты изолированы друг от друга. Вход в каждую оформлен через прихожую. Выделяется гостиная с прилегающим балконом — примерно на 20 кв. метров. Вторая комната поменьше, на 10-11 квадратов: за ней расположена очень маленькая кухня. Такая планировка 2-комнатной хрущевки занимает в общей сложности 45 кв. метров и признается одной из лучших среди квартир советского типа.
Что можно сделать:
- сделать более просторной кухню за счет объединения с малой комнатой или прихожей;
- убрать перегородку между гостиной и балконом;
- объединить туалет и ванную комнату.

Трамвай
Прихожую в хрущевках такого типа венчает вход в большую гостиную, к которой примыкает вторая аналогичная по размеру смежная комната. Справа от прихожей располагается раздельный на туалет и ванную санузел.


Это очень выгодная планировка, так как кухня при такой схеме имеет вполне комфортные размеры.
Перепланировка двухкомнатной хрущевки с проходными комнатами. Возможные перепланировки
Хрущевка - это малогабаритная квартира с однотипной планировкой, в которой не совсем удобно расположены комнаты, присутствуют низкие потолки, узкие коридоры, маленькие кухни и ванные. Однако, за счет дизайнерских возможностей, учитывающих все особенности, неудобное жилище можно сделать максимально комфортным и уютным.
Варианты перепланировки 1-комнатной хрущевки
Несмотря на скромные габариты, существует ряд возможных примеров трансформации однушки.
Хрущевка с двумя окнами
Квартира с балконом и двумя окнами, является угловой. Хрущевка с подобной планировкой может представлять собой не самый лучший вариант или наоборот, предоставить большое количество интересных идей перепланировки.



На фото пример перепланировки угловой хрущевки однушки с двумя окнами.
Хрущевка с одним окном
Однушки, имеющие одно окно и балкон, встречаются в кирпичных домах серии 1-511, в панельных застройках серии 1-515 и прочих. В таких квартирах присутствует раздельный санузел и коридор. В хрущевках с другой планировкой данное пространство представляет жилую комнату, что создает ограничение при переделке жилья.



На фото перепланировка однокомнатной квартиры хрущевки 30 кв с одним оконным проемом.
Перепланировка из 1-комнатной в двухкомнатную хрущевку
Самый простой и бюджетный способ перепланировки - установить гипсокартонную перегородку и сделать в ней дверной проем. Таким образом получится два небольших помещения с разным функциональным назначением.
Также трансформировать однокомнатную хрущевку в двушку или полуторку можно за счет раздвижных дверей, которые не займут много места и позволят обособить такие комнаты, как детская, спальня или зал.
Немалое значение в дизайне играет выбор мебельных конструкций. Например, сэкономить пространство поможет встроенная бытовая техника в виде уменьшенного холодильника или маленькой плиты.



На фото однокомнатная квартира хрущевка с перепланировкой в двушку.

Перепланировка 2-комнатной хрущевки в 3-комнатную. Сделать две детские комнаты из одной
Вот какие варианты преобразования квартиры можно использовать в хрущевке:
- если по плану одна из комнат не проходная и достаточно длинная, то ее можно разделить на 2 части – при этом вход в нее можно оставить через возводимую перегородку;
- так как в хрущевке практически все внутренние стены не являются несущими, то организовать членение внутреннего пространства можно практически в любой комбинации, например, изменив коридор;
- увеличить одну из комнат можно за счет устранение простенка на балкон, тогда именно эту, увеличенную, комнату можно будет разделить на две части.

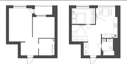
Двухкомнатная хрущевка до перепланировки – проходная гостиная, комната с кладовкой, маленькая ванная

Квартира после перепланировки – две детские комнаты, гостиная-спальня, просторная ванная комната
В случае со сталинками ситуация обстоит сложнее. Обусловлено это в первую очередь тем, что стены здесь более толстые, в том числе и внутри самой квартиры. Но воспользоваться ситуацией все равно можно.
Так, например, одну комнату можно всегда разделить на 2 более маленькие по площади. В сталинках это удобнее делать, чем в хрущевках потому, что в этих проектах часто встречаются комнаты, в которых есть два окна. В этом случае перегородку возводить можно самыми разными способами. И двухкомнатная квартира становится практически полноценной трехкомнатной с окном в каждом помещении.

Угловая двушка до перепланировки – проходной зал, спальня с двумя окнами

Квартира после перепланировки – две детские комнаты, гостиная-кухня, спальня для родителей

Раскладной диван в кухне-гостиной – дополнительное спальное место всегда пригодится
Нужно знать, что перепланировка двушки распашонки в трешку возможна только:
- за счет перепланировки кухни с комнатой в маленькую кухню и две небольшие комнаты;
- за счет разделения одной из комнат на две, но в этом случае новообразующаяся комната не будет иметь окна (в преобладающем большинстве случаев).