Три способа преобразить двушку в хрущевке: планировочные идеи для малогабаритного пространства
- Три способа преобразить двушку в хрущевке: планировочные идеи для малогабаритного пространства
- Связанные вопросы и ответы
- Какие особенности планировки хрущевки стоит учитывать при проектировании двушки
- Какие преимущества и недостатки каждого из трех вариантов планировки
- Можно ли внести изменения в планировку хрущевки без значительных вложений
- Как выбрать оптимальный вариант планировки для конкретной двушки
- Какие современные дизайнерские решения можно применить в планировке хрущевки
- Как увеличить полезную площадь двушки при помощи планировки
- Какие материалы и техники лучше использовать для ремонта в хрущевке
- Какие нюансы нужно учесть при объединении комнат в хрущевке
Три способа преобразить двушку в хрущевке: планировочные идеи для малогабаритного пространства
43 квадрата никогда не превратятся в 70 или хотя бы в 50. Тем не менее грамотное перераспределение площадей помогает чувствовать себя комфортно даже на небольшой территории.
Одним из популярных решений является объединение нескольких помещений в одно. 2-х комнатная квартира может превратиться в однокомнатную или в студию. Помещение расширяется за счет исчезновения межкомнатных перегородок. Это позволяет поместить необходимую мебель, а также избавиться от давления, оказываемого на человека небольшим помещением. Жилую площадь можно расширить и за счет коридора, прихожей, кладовки или кухни.
В объединенном помещении удобно использовать зонирование для разграничения мест работы, отдыха, приготовления и принятия пищи, а также отдельных пространств для каждого живущего в этой квартире.
Другой способ изменить маленькую квартиру – визуально увеличить ее путем использования определенных цветов, перегородок, материалов.
При перепланировке необходимо принять во внимание несколько моментов.
- Не любую стену можно сносить . Несущие стены, толщина которых 22-32 см, составляют каркас дома, и их трогать нельзя. Зато внутрикомнатные перегородки толщиной 7-9 см можно убрать, перенести или проделать в них дверь в удобном месте. К сожалению, в кирпичном доме почти все стены являются несущими, в панельном же межкомнатные перегородки сделаны из гипсоцемента или гипсовых плит, и их можно сносить.
- Кухню нельзя сделать частью жилой комнаты , если в ней установлена газовая плита, колонка или котел. Поставить барную стойку между кухней и комнатой не получится, но можно сделать легкую перегородку. Или же можно установить на кухне электрическую плиту, она безопаснее и не вызывает возражений у БТИ. Что же касается водонагревателя, его, если имеется такая возможность, перемещают в санузел.
- К кухне нельзя присоединять часть жилого помещения . Однако кухню можно расширить, использовав для этого часть коридора или прихожей.
- Сделать санузел частью комнаты или увеличить его за счет комнаты тоже не получится.
- Не разрешается перекрывать доступ к центральным коммуникациям , переносить или демонтировать вентиляционные шахты.
- Нельзя полностью или частично разрушать межэтажные перекрытия, если смежные квартиры расположены одна над другой.
- Также не подлежит полному сносу несущая стена между балконом и основным помещением.
Связанные вопросы и ответы:
Вопрос 1: Какие основные варианты планировки двушки в хрущевке существуют
Основных вариантов планировки двушки в хрущевке можно выделить три. Первый вариант – это классическая планировка, где одна комната используется как гостиная, а другая – как спальня. Второй вариант предполагает объединение комнат, создавая студию, что позволяет сделать пространство более открытым и просторным. Третий вариант – это зональная планировка, где пространство делится на функциональные зоны с помощью мебели или перегородок. Каждый из этих вариантов имеет свои преимущества и подходит для разных стилей жизни.
Вопрос 2: Какие плюсы и минусы у каждого из вариантов планировки
Классическая планировка удобна тем, что позволяет разделить пространство на отдельные зоны для сна и отдыха, что особенно подходит для семей. Однако она может показаться тесной из-за небольшой площади. Студия же визуально увеличивает пространство и создает ощущение свободы, но может быть шумной и не подойти для больших семей. Зональная планировка позволяет гибко организовать пространство, но требует тщательного планирования и может быть сложной в реализации.
Вопрос 3: Как можно визуально увеличить пространство в двушке
Для визуального увеличения пространства в двушке можно использовать светлые цвета стен, установить зеркала или глянцевые поверхности, которые отражают свет и создают иллюзию простора. Также важно минимизировать количество мебели и использовать компактные варианты, такие как встроенные шкафы и-transformers. Пространство можно сделать более открытым, объединив комнаты или используя легкие перегородки.
Вопрос 4: Как использовать builtin мебель и хранение в двушке
В двушке можно эффективно использовать встроенную мебель, такую как шкафы-купе, встроенные полки и лестницы. Это позволяет максимально использовать пространство и избежать загромождения комнат. Также можно использовать подъемные или выдвижные механизмы, чтобы хранить вещи в неприметных местах, таких как под кроватью или в нишах. Важно тщательно спланировать расположение мебели, чтобы она не мешала движению и не создавала ощущения тесноты.
Вопрос 5: Как можно объединить комнаты в двушке
Объединение комнат в двушке можно осуществить несколькими способами. Первый способ – это полная сноска стены между комнатами, что создает просторное открытое пространство. Второй способ – это установка арки или легкой перегородки, которая сохраняет разделение, но делает пространство более связанным. Третий способ – это использование дверей-купе, которые позволяют открыть или закрыть пространство по необходимости. Перед объединением комнат важно учитывать несущие стены и проконсультироваться со специалистом.
Вопрос 6: Как сделать декор в двушке, чтобы она была уютной и функциональной
Для создания уютного и функционального декора в двушке важно использовать светлые оттенки и минималистичный стиль. Можно добавить текстуры с помощью ковров, подушек и одеял, а также использовать растения для оживления пространства. Функциональность можно повысить с помощью многоуровневого освещения и компактной мебели. Также важно учесть личные предпочтения и добавить элементы, которые делают пространство индивидуальным, такие как картины, фотографии или декоративные аксессуары.
Какие особенности планировки хрущевки стоит учитывать при проектировании двушки
Нельзя начать ремонт двухкомнатной квартиры хрущевки без понимания ее особенностей.
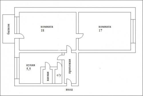
Кухня с небольшим метражом (5–6 метров).
Низкие потолки.
Одна из комнат – проходная.
Санузел и ванна совмещенные, при этом у комнаты небольшой метраж, который не позволяет смонтировать стандартную ванную.
Если отдельная кладовка.
Если квартира расположена не на первом этаже – есть балкон или лоджия.
Еще две грустные особенности «хрущевок» – очень малый метраж прихожей и плохая шумоизоляция. Впрочем, практически все недостатки квартиры можно нивелировать современным ремонтом.

Скажем еще пару слов об особенностях планировок в домах разных серий, а потом дадим рекомендации по улучшению ситуации.
Метражи и особенности планировки двухкомнатных хрущевок
Встречаются разные варианты планировок:
«Книжки». Квартиры этой планировки имеют площадь в 42–43 м2. Их главная особенность – кухня, спальня и гостиная идут друг за другом. Проходная комната должна выполнять роль столовой. Если семья больше двух человек, придется в ней же спать, что очень неудобно. Жирный минус такой планировки – проходная комната останется проходной, как бы и что вы ни запланировали. Самый распространенный вариант изменения в такой комнате – снос перегородок между кухней и столовой (комната превращается в уверенную студию).

«Трамваи» (они же «Павровозики») – квартиры с метражом в 47 метров. В такой планировке две спальные комнаты располагаются смежно. При этом одна из них угловая, а вторая – проходная. Чаще всего при такой планировке «отрезается» часть проходной комнаты, достраивается стена и создается своеобразный коридор (в котором дополнительно размещают системы хранения вещей).

«Бабочки» (они же «Распашонки») – квартиры с метражом в 46 м2. Сразу за прихожей размещается кухня и санузел, комнаты располагаются по бокам. Достаточно удобный вариант, главный минус – санузел находится практически на кухне.

Неважно, какая именно планировка у вашей квартиры – с помощью продуманного ремонта ее можно превратить в дом вашей мечты.
Комплексный ремонт квартир под ключ
Всё включено
В стоимость ремонта входит всё: работы, материалы, документы.
Без вашего участия
После согласования проекта мы беспокоим хозяев только при сдаче ремонта.
Цена известна заранее
Стоимость ремонта фиксируется в договоре.
Фиксированный срок ремонта
Ремонт квартиры под ключ за 3,5 месяца. Срок закреплен в договоре.
Какие преимущества и недостатки каждого из трех вариантов планировки
Еще в советское время за наиболее распространенными планировками квартир закрепились определенные названия.
К примеру, «малосемейка» — это небольшая квартира, имеющая площадь до 25 квадратов, на такую жилплощадь чаще всего заселялись молодожены или семьи с одним ребенком.
«Хрущевки», «распашонки», «гребенки», «линейки», «улучшенки» — все эти названия используются и сегодня, причем к ним добавляются новые народные названия.
И если вы планируете покупку квартиры, то наверняка будете просматривать объявления, где собственник использует устоявшиеся десятилетиями названия планировок.
Чтобы вы могли правильно ориентироваться в терминах, мы подготовили для вас наиболее популярные обозначения планировок с их описанием расскажем, как выглядит квартира той или иной планировки, какими преимуществами и недостатками обладает каждая из них
Каких типов бывают планировки
На самом деле, невозможно точно подсчитать, сколько существует типов планировок. С одной стороны, можно выделить следующие виды:
С другой стороны, планировку квартиры определяют по расположению комнат внутри нее:
- когда все окна расположены по одной стороне — это линейная (коридорная) планировка ;
- когда окна «смотрят» на разные стороны — это «распашонка» и так далее .
Также существует разделение по типу домов. В СССР при строительстве жилых домов утверждались серии объектов, в которых четко определялись планы этажей и квартир на них. Даже в знаменитых «хрущевках» существовало более 40 разновидностей планов для однокомнатных квартир, а кроме них в жилом фонде советских времен были и квартиры с несколькими комнатами — в сталинках, «брежневках» и домах других периодов постройки.
Пожалуй, самая большая коллекция с описанием типовых серий домов собрана на сайте Квадратный метр .
На сегодняшний день вариантов насчитывается гораздо больше. Сегодня застройщики предлагают более 200 видов планировок для жилья из разных категорий. А если учесть свободную планировку, можно утверждать, что общее число типов квартир в нашей стране точно могут назвать только строительные компании.
Зачем нужно определиться с планировкой квартиры
Для покупателя важно понимать, сколько пространства он получит для обеспечения собственных нужд. Планировка жилой площади позволяет определить, каким образом разместить всё, что необходимо для комфортного проживания. Даже один человек может иметь различные бытовые потребности:
- место для отдыха и сна;
- место под хранение личных вещей (шкафы, комоды, полки);
- место для общения с друзьями;
- место для работы или занятий спортом.
Семьи с детьми нуждаются в большем количестве спальных мест, также важно предусмотреть пространство для игр и занятий.
Вот почему покупателей интересует планировка рассматриваемых квартир исключительно в практических целях. Далее рассмотрим более распространенные планировки квартир, их особенности, плюсы и минусы.
Основные типы планировок
При поиске идеальной квартиры каждый человек предъявляет к ней целый список пожеланий и ориентируется на личные предпочтения. Для кого-то важен район, этаж, сторона, на которую выходят окна, а другие включают в этот список и тип планировки. А потому вопрос, каких типов бывают квартиры, остается актуальным.
Квартира с планировкой «распашонка»
В таких квартирах окна расположены на противоположных сторонах дома. Планировка напоминает детскую одежду с рукавами, где один «рукав» — это комната, а другой — кухня.
Плюсы
- в комнате с окнами на север будет прохладно и темно, что делает её идеальным местом для спальни;
- в комнате с окнами на юг будет светло, что делает её подходящей для гостиной или детской.
Минусы
- если открыть окна в противоположных комнатах, может возникнуть сквозняк;
- в таких квартирах обычно есть темная прихожая, куда не попадает солнечный свет.
В таких квартирах все окна выходят на одну сторону, создавая единую линию комнат. Такая планировка встречается в домах разных эпох, в том числе в современных.
Плюсы:
- в квартире нет сквозняков.
Минусы:
- квартиру сложно проветривать;
- если окна выходят на север, то во всех комнатах будет холодно, а если на юг — жарко.
Это «линейка» с узкими комнатами и длинной прихожей. На плане прихожая напоминает основание гребня, а комнаты — зубцы. Квартиры с такой планировкой встречаются в основном в старых домах и в хрущевках.
Плюсы:
- в квартире нет сквозняков.
Минусы:
- мебель в узких комнатах приходится ставить вдоль стен, из-за чего они напоминают вагоны поезда;
- прихожая настолько узкая, что в неё не всегда помещается шкаф;
- если открыть дверь в ванную или туалет, она перегородит проход.

Квартира с планировкой «гребенка»
Квартира с планировкой «гостинка»
Это небольшая квартира с санузлом, но без отдельной кухни. Площадь таких квартир обычно составляет 12–18 м².
Плюсы:
- низкая цена;
- хороший вариант для одинокого человека, который проводит много времени на работе.
Можно ли внести изменения в планировку хрущевки без значительных вложений
Подавляющее большинство собственников зачастую поступают очень недальновидно, осуществляя работы по перепланировке и даже не задумываются о том, что эти работы по закону требуют согласования. Отметим, что даже демонтаж встроенного шкафа или антресоли требует согласования, не говоря уже о изменении конфигурации стен, объединении кухни и комнаты и других серьёзных изменениях в планировке квартиры.
Стоит помнить, что самовольная перепланировка – это мина замедленного действия, никогда не знаешь в какой момент взорвётся. Жалоба на вашу самовольную перепланировку может появиться в любой момент. Инициаторами жалобы могут оказаться как ваши «добрые» соседи, случайно узнавшие о «самоволке», так и представители управляющих организаций и Жилкомсервисов, представители коммунальных служб и районных администраций Санкт-Петербурга.
Штраф за незаконную перепланировку небольшой, но дело штрафом, как правило, не ограничивается. Нарушителю, будет выдано предписание о приведении квартиры в первоначальный вид, в соответствии с планом, указанным в выписке ЕГРН. В случае, если нарушитель не выполнит требования предписания, на него готовиться исковое заявление, которое подаётся в суд. А в результате судебного дела, на основании судебного решения, приведением квартиры в первоначальный вид будут уже заниматься судебные приставы. По итогу – приведение квартиры в первоначальный вид выливается в огромные потери денег, нервов и времени.
Как выбрать оптимальный вариант планировки для конкретной двушки
Со временем типы наиболее распространенных планировок меняются, и в истории жилищного строительства нашей страны отчетливо выделяются следующие этапы.

Варианты планировок
- «Сталинка»
Это жилье, строившееся в середине прошлого века, несмотря на солидный возраст, по-прежнему пользуется спросом благодаря своим конструктивным особенностям. Наиболее заметные признаки «сталинок» – высокие потолки (до 4 м), просторные по площади помещения, включая кухню, широкие балконы, малое количество внутренних несущих стен. К этому стоит добавить отменное качество строительных работ, которое обеспечивает надежную шумо- и теплоизоляцию.
- Хрущевка
Сооружение хрущевок приходится на вторую половину 1950-х – 1960-е гг. Поскольку массовое строительство означало приоритет количества возводимого жилья над качеством, квартиры данного периода ценятся сейчас не слишком высоко. Это определяется их характеристиками: низкие потолки (2,5 м), совмещенный санузел, скромная кухня (около 6 кв. м), небольшие комнаты, причем смежные, слабая шумо- и теплоизоляция.
- «Брежневка»
Возведение многоэтажек в брежневскую эпоху, расцвет которой приходится на 1970-е годы, продолжалось ускоренными темпами. Качество строительства возросло, что проявилось в использовании улучшенной планировки. Потолки поднялись до 2,8 м, комнаты стали делаться изолированные, а санузел раздельный, площадь кухни увеличилась до 9 кв. м. Правда, возможности перепланировки ограничиваются наличием внутренних несущих стен.
В открытом доступе только до 16 мая
10 критических ошибок в ремонте, которые делают смету дороже на 100%
В открытом доступе только до 16 мая
10 критических ошибок в ремонте, которые делают смету дороже на 100%
Ремонт в кризис: 5 лайфхаков на чем можно сэкономить
20 важных шагов, которые облегчат процесс ремонта
10 советов, чтобы сохранить нервы, время и деньги
- Новая планировка
В последние десятилетия наблюдается большее разнообразие планировок, и изменения идут в сторону увеличения комфортности. Современные квартиры отличаются помещениями больших размеров, высокими потолками, просторными лоджиями/балконами, наличием кладовок, которые легко переделываются в гардеробные.
Более того, сейчас строители учитывают индивидуальные пожелания приобретателей жилья и нередко предлагают полностью свободную планировку. При этом встречаются квартиры, лишенные внутренних стен и перегородок, кроме санузла, или с комнатами нестандартной формы.
Таким образом, новостройки дают наибольшую свободу действий, но и вторичное жилье имеет определенные возможности для перепланировки.
Какие современные дизайнерские решения можно применить в планировке хрущевки
Покупая отделочные материалы для ремонта в хрущевке, следует отдавать предпочтение зеркальным покрытиям, фотообоям с эффектом 3д, обоям с вертикальными и горизонтальными линиями и другой облицовке, позволяющей визуально увеличить пространство.
Независимо от количества комнат в квартире, лучше выбрать для них светлое оформление стен и потолка. Так помещение будет смотреться намного шире. Идеальным решением станет использование одной цветовой гаммы для ремонта каждой комнаты. В маленькое пространство впишутся кремовые, персиковые, оливковые, бежевые и другие нюдовые оттенки. Наполнить обстановку светом и смягчить контрасты можно с помощью добавления белого цвета.
Желательно избегать слишком яркой и насыщенной палитры в облицовке. Для того, чтобы разбавить интерьер лучше использовать несколько акцентов таких, как сувениры, картины, подушки, шторы и прочий текстиль и декор.
Несмотря на то, какой ремонт предполагается в хрущевке, малогабаритное жилье может выглядеть шикарно за счет оформления в одном стиле.



Рационально задействовать пространство в хрущевке помогут различные дизайнерские идеи. Например, кладовку уместно очистить от ненужного хлама и оборудовать в ней рабочий мини-кабинет, кровать установить на деревянный подиум с системой хранения для постельного белья и вещей, громоздкие шкафы заменить на стеллажи или открытые полки, а подоконник использовать в качестве письменного, компьютерного стола или дополнительной столешницы.

Как увеличить полезную площадь двушки при помощи планировки
Две спальни в 2-комнатной хрущевке можно сделать, если снести встроенные шкафы, кладовые, гостиные и передвинуть границы комнат. В одной из спален можно разместить детскую, в другой – комнату для взрослых. Тогда фактически квартира станет уже не 2-, а 3-комнатной.
Очень распространенный вариант — две спальни и просторная кухня-гостиная. Иногда вместо кухни-гостиной делают большой холл: объединяют гостиную и коридор, как показано на этом примере:
В квартире убрали гардеробную и встроенный шкаф (1а и 2а), и вместо одной спальни сделали две отдельные комнаты. За счет переноса двери на кухню (5) получилось оборудовать гардеробную рядом с санузлом и расширить холл, объединив его с гостиной. Серия дома — I-511. Весь проект перепланировки можно посмотреть здесь .
Если новая спальня оборудуется на месте бывшей нежилой комнаты (кухни, гардеробной, кладовой), по документам она тоже будет считаться нежилой. В плане квартиры она будет кабинетом или гардеробной, что не помешает использовать ее так, как удобно вам. Например, в качестве спальни или детской.
При изменении числа комнат и их размеров важно учитывать строительные правила и нормативы. Например, площадь жилой комнаты должна быть не менее 8 кв. м.
Эти требования периодически меняются, поэтому актуальные данные по метражу комнат уточняйте у специалистов по проектированию и согласованию перепланировок. Делать это необходимо заранее, до того, как вы заказали дизайн-проект.
Какие материалы и техники лучше использовать для ремонта в хрущевке
Рис. 2. Дом в г. Воронеж на ул. Менделеева, постройка 1959 года
Особенностью строительства «хрущевок» в Воронеже стало появление кирпичных типовых домов, а уже позднее — панельных. Такое явление объясняется нехваткой продукции заводов ЖБИ . Кирпичные здания обладают большей тепло- и шумоизоляцией, способны поддерживать внутри помещений свой микроклимат, медленнее охлаждаясь и нагреваясь при смене сезонов года, а также кирпич обладает свойством впитывать и отдавать воду, что препятствует образованию сырости. Таким образом, сохранившиеся кирпичные «хрущевки» обладают рядом преимуществ для комфортной жизни, отличаясь при этом невысокой ценой. Среди недостатков внешнего облика такой застройки стоит отметить изношенность и низкую эстетическую ценность фасадов, проявляющуюся в сохранившейся при возведении колористической монотонности.
В наше время все чаще возникает вопрос о дальнейшей судьбе воронежских «хрущевок», и существует два мнения: снести устаревшее жилье или провести реновацию. В ходе анализа количественного значения советских многоквартирных домов становится очевидно, что снос большой части жилого фонда города не может быть выходом из сложившейся ситуации . В Воронеже было издано постановление правительства Воронежской области от 10.10.2013 № 884 «О создании фонда, осуществляющего деятельность, направленную на обеспечение проведения капитального ремонта общего имущества в многоквартирных домах» , благодаря которому производится ремонт в том числе и советских домов. Недостатком программы в реновации фасадов является отсутствие комплексного решения для улиц, так как в ходе реализации проекта выбираются отдельные здания, игнорируя внешний облик соседних сооружений. Также следует отметить, что в ходе выполнения постановления происходит именно ремонт, а не реновация, поэтому во внешнем облике домов меняется лишь цвет, зачастую соответствующий ранее существующему на ремонтируемом фасаде, что сохраняет изначальную монотонность, депрессивность и безликость колористического решения «хрущевок» (рис. 3, 4).
Какие нюансы нужно учесть при объединении комнат в хрущевке
Дома, возведенные во времена СССР, предназначались для временного проживания. Такие квартиры имеют невысокую стоимость из-за не полного соответствия современным требованиям к качеству проживания в них людей. Для того, чтобы преобразить подобное жильё, придав ему современные качества и дизайн, требуется вложение немалых финансовых средств.

Наиболее часто владельцы хрущевок допускают досадные ошибки при ремонте своих квартир, ведущие к переделке работы. Вот самые распространенные из них.
Ошибка № 1
Отсутствие плана работ приведет к нарушению последовательности работ, не позволит определить точные сроки их выполнения и рассчитать итоговую смету ремонта. Ремонт следует начинать с удаления старой отделки потолка, стен и пола. Затем производят демонтаж сантехники, радиаторов отопления и коммуникационных сетей. Ремонт производят в обратной последовательности – сначала монтируют трубопроводы и систему отопления, затем прокладывают коммуникации, осуществляют черновую отделку потолка, стен и устанавливают сантехнику. На последнем этапе делают финишную отделку квартиры в той же последовательности.

Ошибка № 2
Газовые трубы и канализационные стояки в хрущевках проведены поверх стен. Самовольный перенос таких коммуникаций строго запрещен. Поэтому нельзя замуровывать газовую трубу в поверхность стены, даже если она имеет неэстетичный внешний вид. Лучше сделать для нее съемный декоративный короб. В противном случае, газовая служба заставит владельца сломать всю отделку.

Ошибка № 3
Не стоит оставлять к квартире старые чугунные и металлические трубопроводы. Их следует заменить пластиковыми трубами. Особенно это касается канализационного стояка, заменить который можно по согласованию, совместно с соседями.

Ошибка № 4
При попытке установить на кухне вытяжку над плитой, многие владельцы квартир обнаруживают, что вентиляционная шахта полностью забита и очистить ее, не представляется возможным. В таких случаях прокладывают собственную вентиляцию. Проведение работ без участия специалиста, приведет к возникновению неприятностей со стороны соседей и обслуживающей организации. Ведь при монтаже собственной вентиляции, можно повредить общие коммуникационные сети и центральную вентиляционную шахту.

Ошибка № 5
Если вентиляционная шахта в рабочем состоянии, то многие монтируют в нее трубу кухонной вытяжки, полностью перекрывая решетку в комнату. Делать этого категорически нельзя, так как нарушается вентиляция квартиры. Воздух в ней становится влажным, появляется сырость и плесень, становится душно. Чтобы не допустить этого, следует расширить вход в вентиляционную шахту, установив трубу рядом с вытяжной решеткой в кухню.
